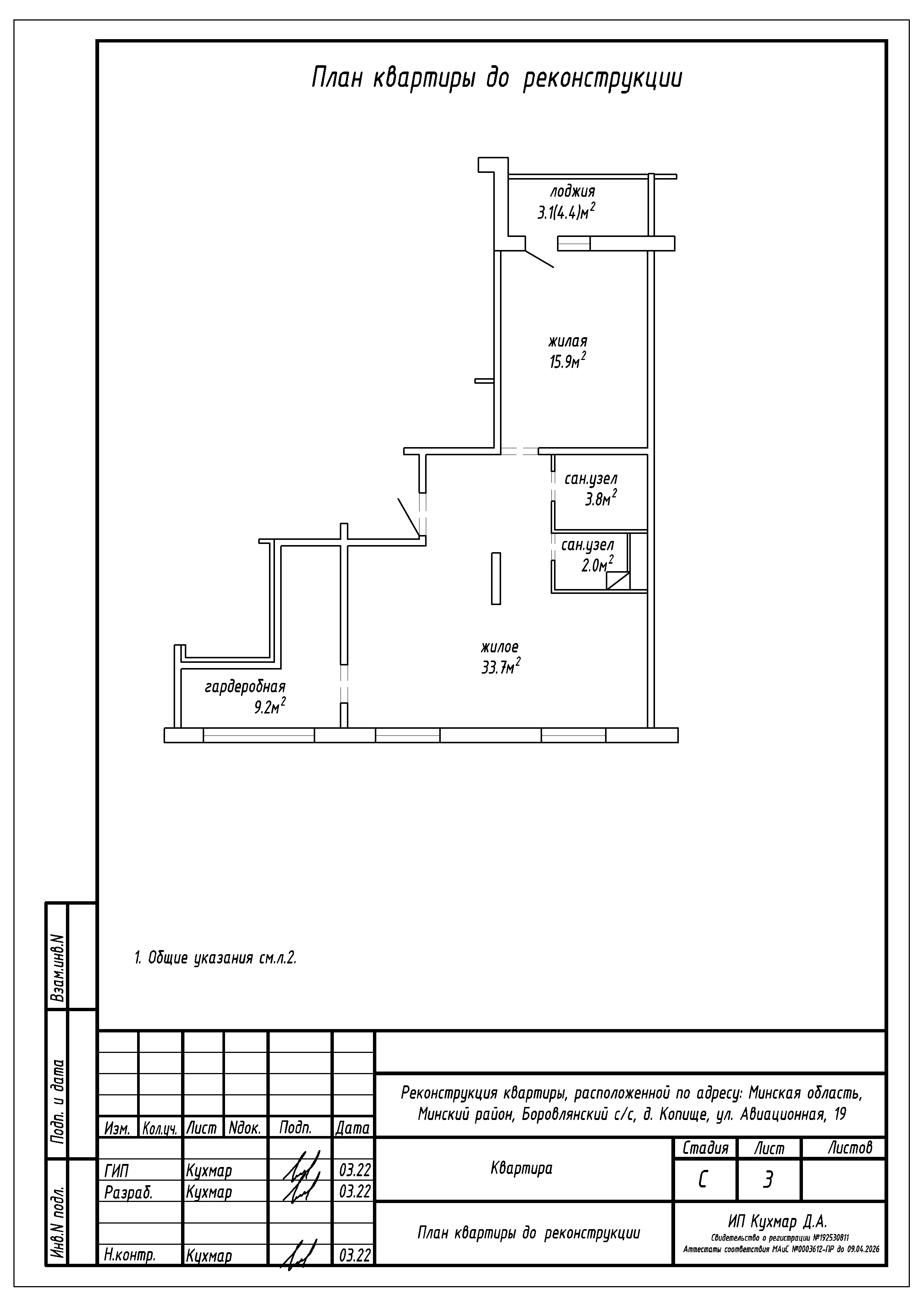
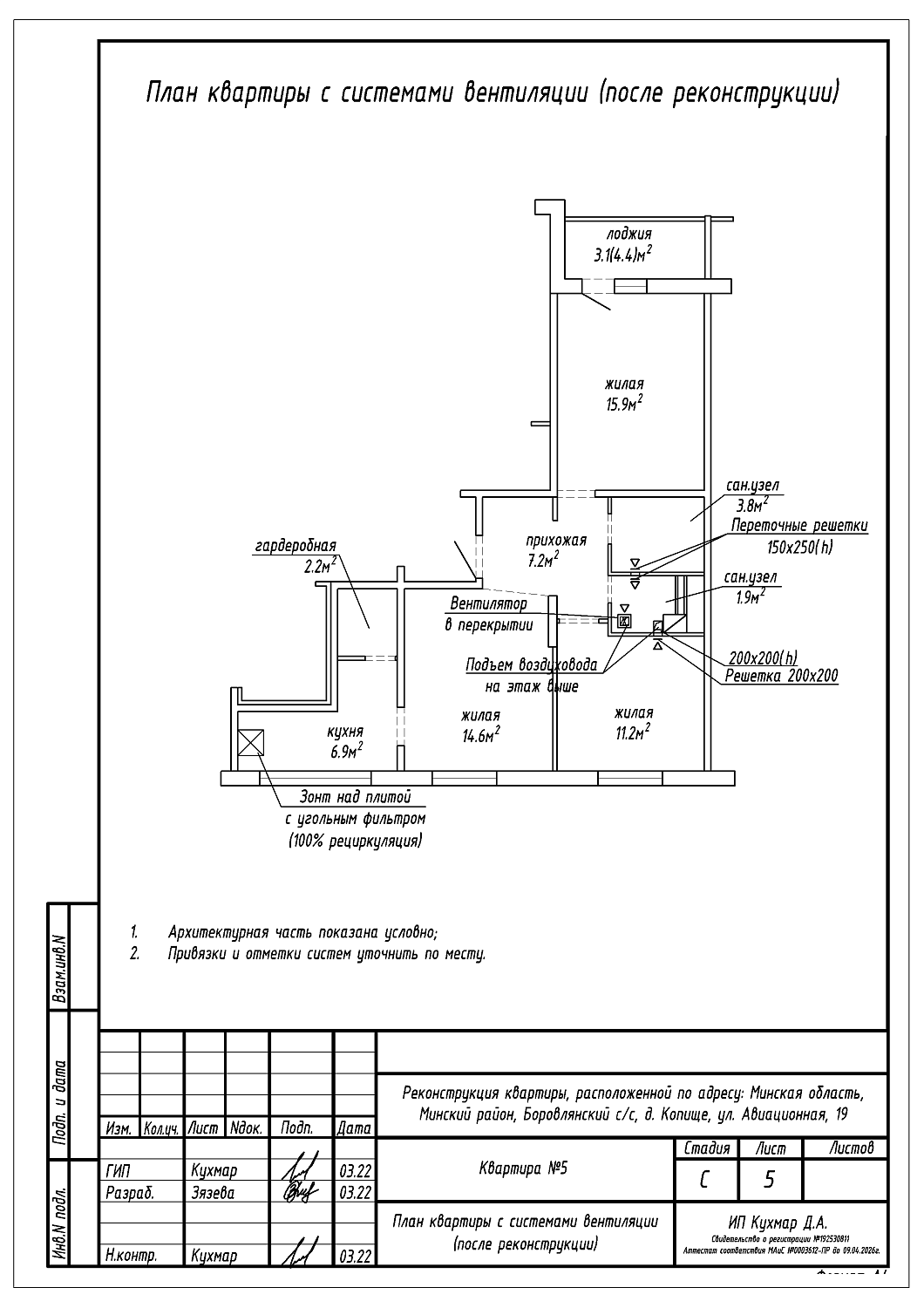
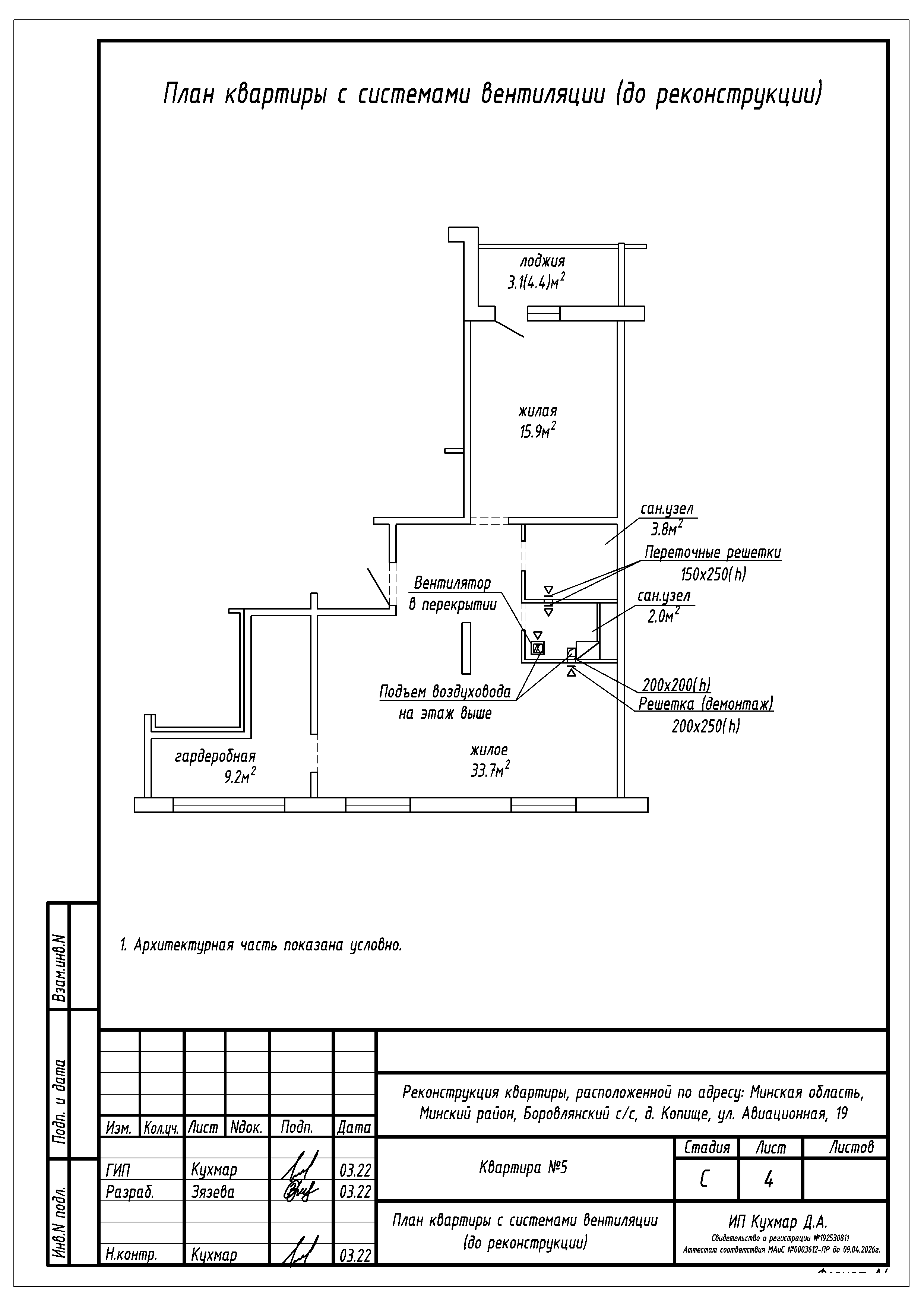
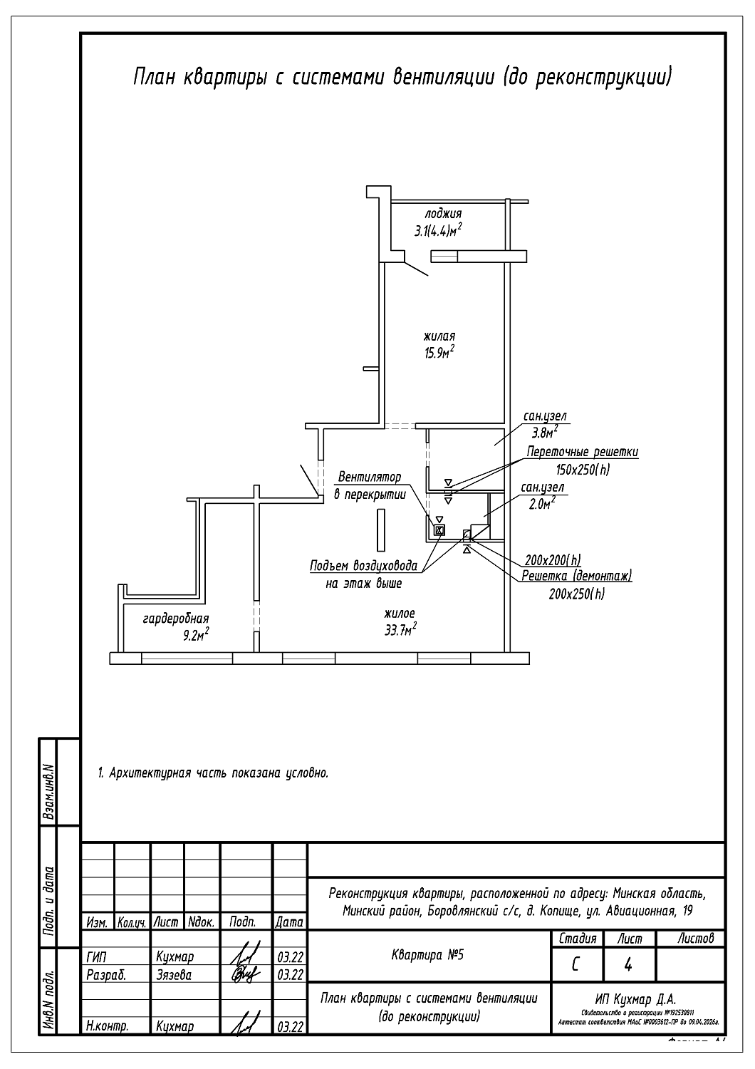
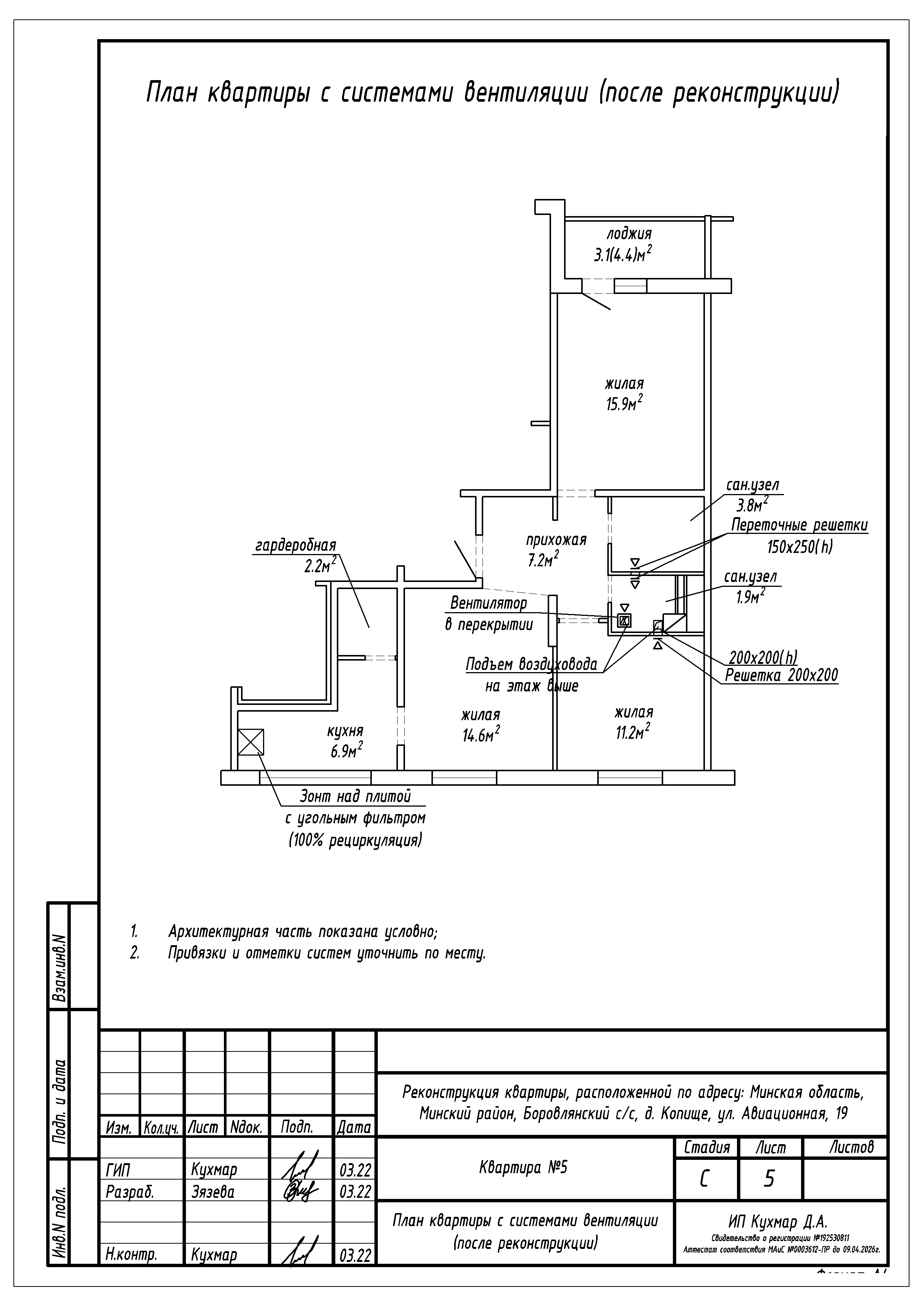
Реконструкция квартиры по ул. Авиационная, 19 в ЖК «Новая Боровая»
Пожелания заказчика:
- Устройство кухни на части площади гардеробной;
- Устройство двух жилых, гардеробной и прихожей на площади общего жилого;
- Устройство зашивки инсталляции в туалете.
Нами были разработаны следующие разделы проектной документации для согласования в исполкоме:
- АС - архитектурно-строительные решения;
- ОВ - отопление и вентиляция;
- ВК - вентиляция и канализация.
