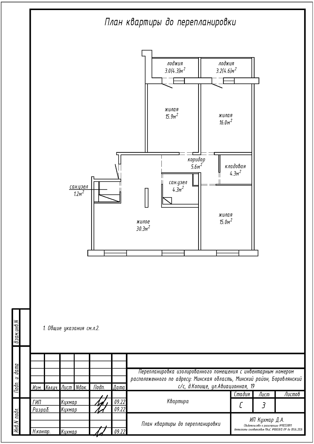
Перепланировка квартиры по ул. Авиационная, 19 в ЖК «Новая Боровая»
Пожелания заказчика:
- Разделение общего жилого на жилую с кухонным оборудованием и коридор;
- Закладка дверного проёма между санузлом и жилой с кухонным оборудованием;
- Устройство дверного проёма между коридором и санузлом;
- Устройство гардеробной на площади кладовой;
- Расширение дверного проёма между жилой и коридором.
Нами были разработаны следующие разделы проектной документации для согласования в исполкоме:
- АС - архитектурно-строительные решения.
