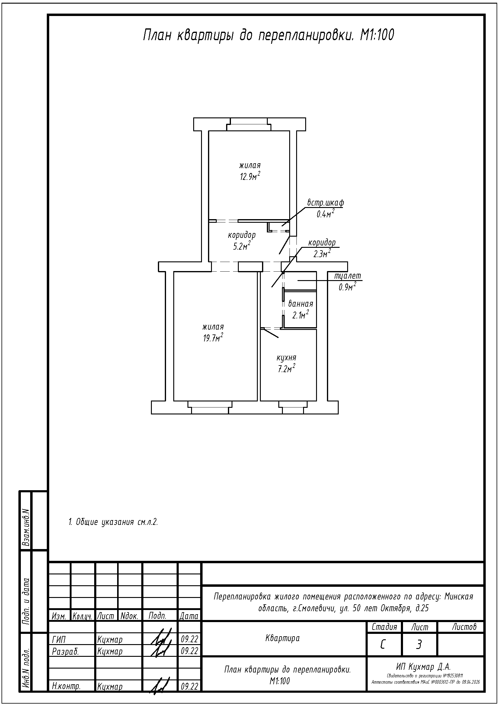
Перепланировка квартиры по ул. 50 лет Октября, 25 в г.Смолевичи
Пожелания заказчика:
- Объединение ванной и туалета в едины санузел;
- Демонтаж встроенного шкафа;
- Смена направления открывания входной двери.
Нами были разработаны следующие разделы проектной документации для согласования в исполкоме:
- АС - архитектурно-строительные решения.
