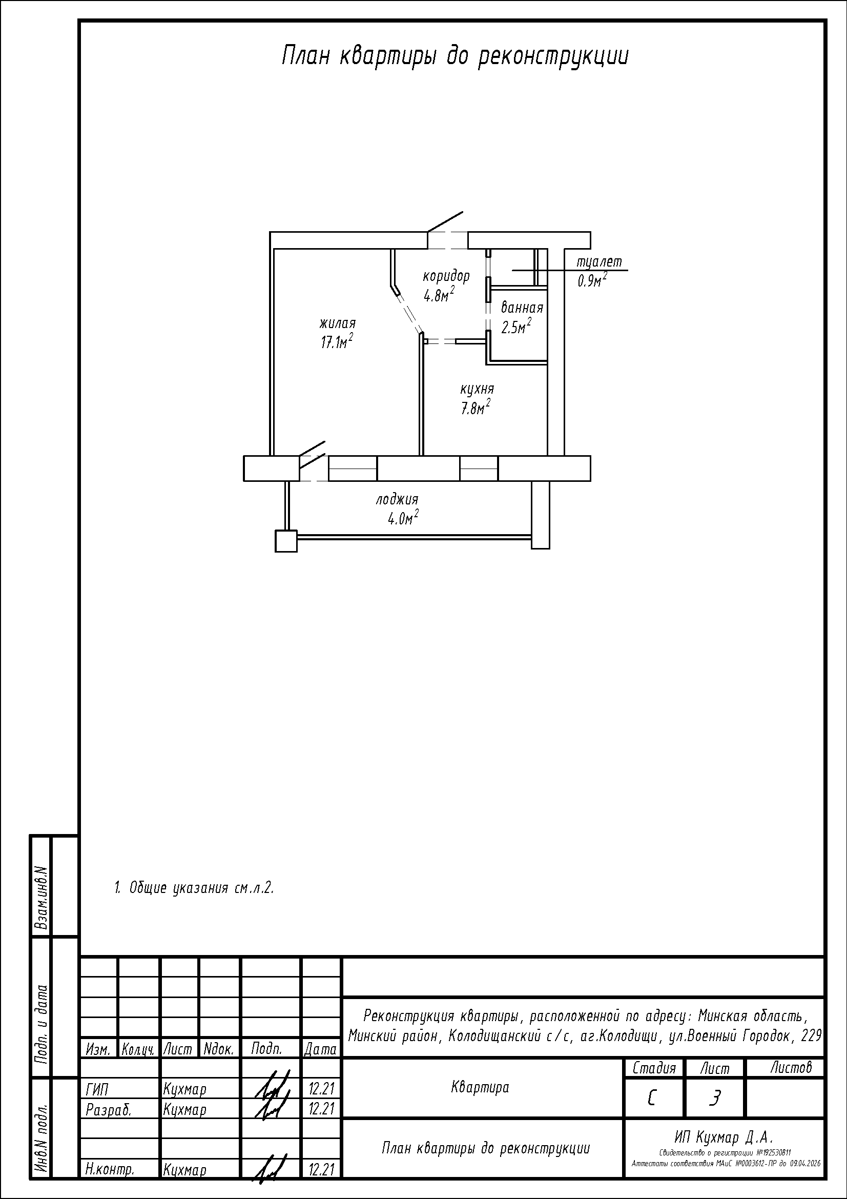
Перепланировка квартиры по ул. Военный Городок, 229 в аг. Колодищи
Пожелания заказчика:
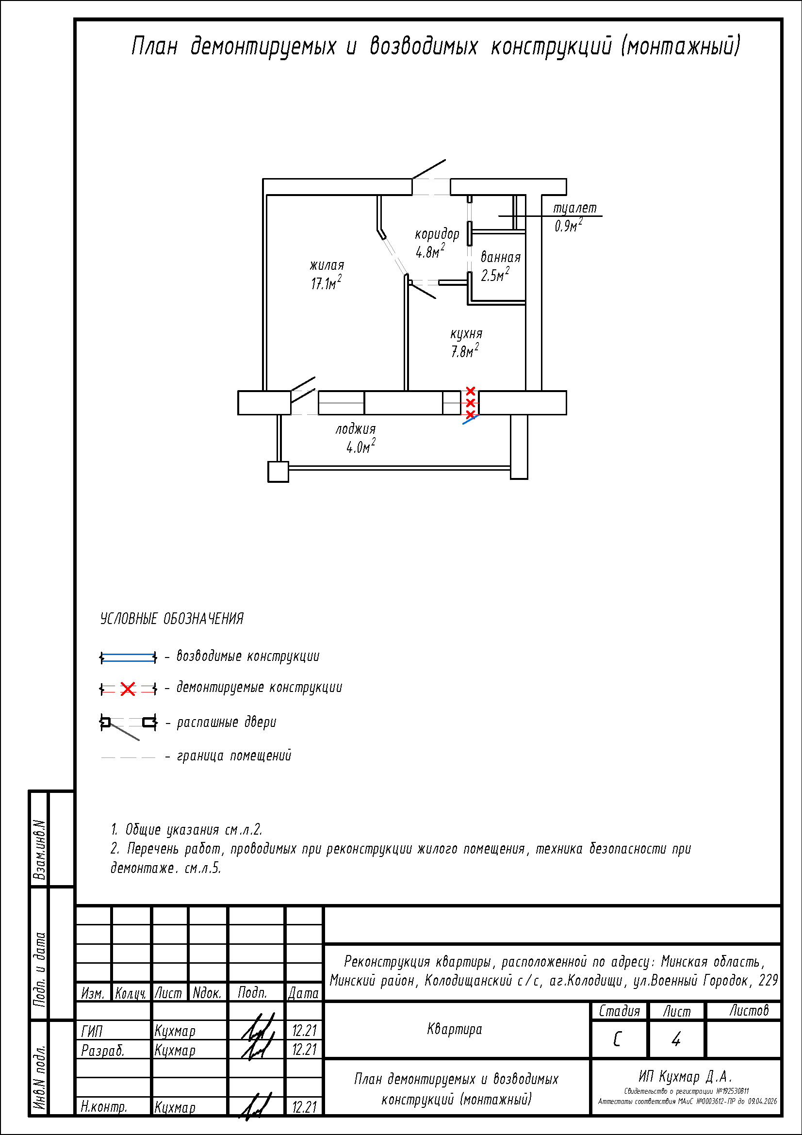
- Демонтаж подоконной части между кухней и лоджией с установкой балконного блока.
Нами были разработаны следующие разделы проектной документации для согласования в исполкоме:
- АС - архитектурно-строительные решения.
