Перепланировка квартиры по ул. Виталия Цвирко, 76 в ЖК «Северный Берег»
Пожелания заказчика:
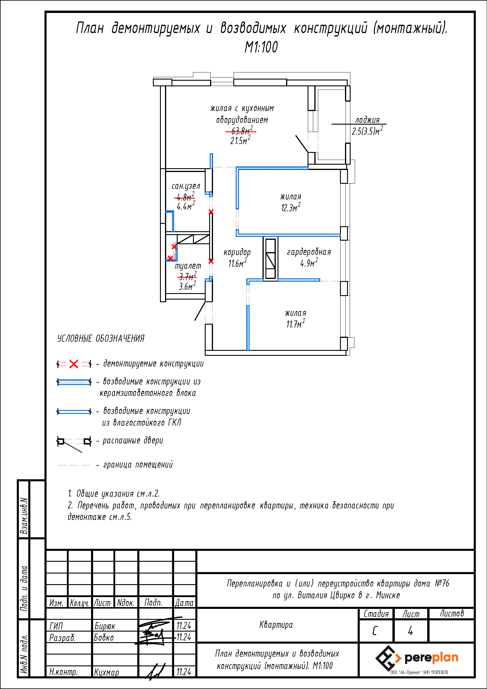
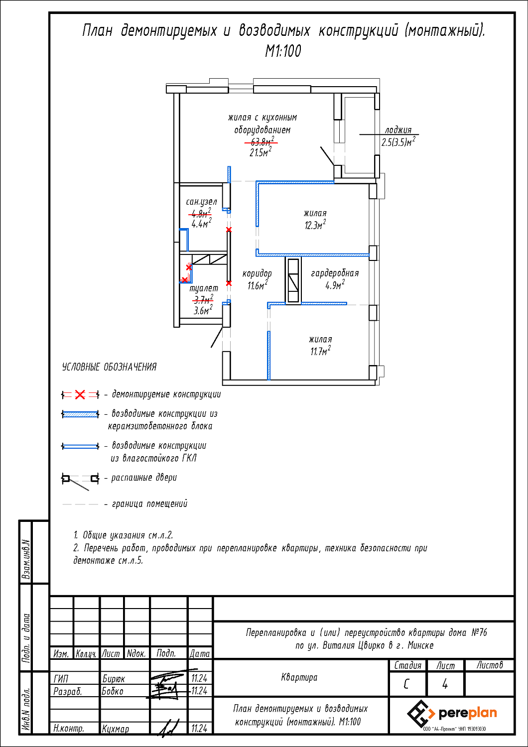
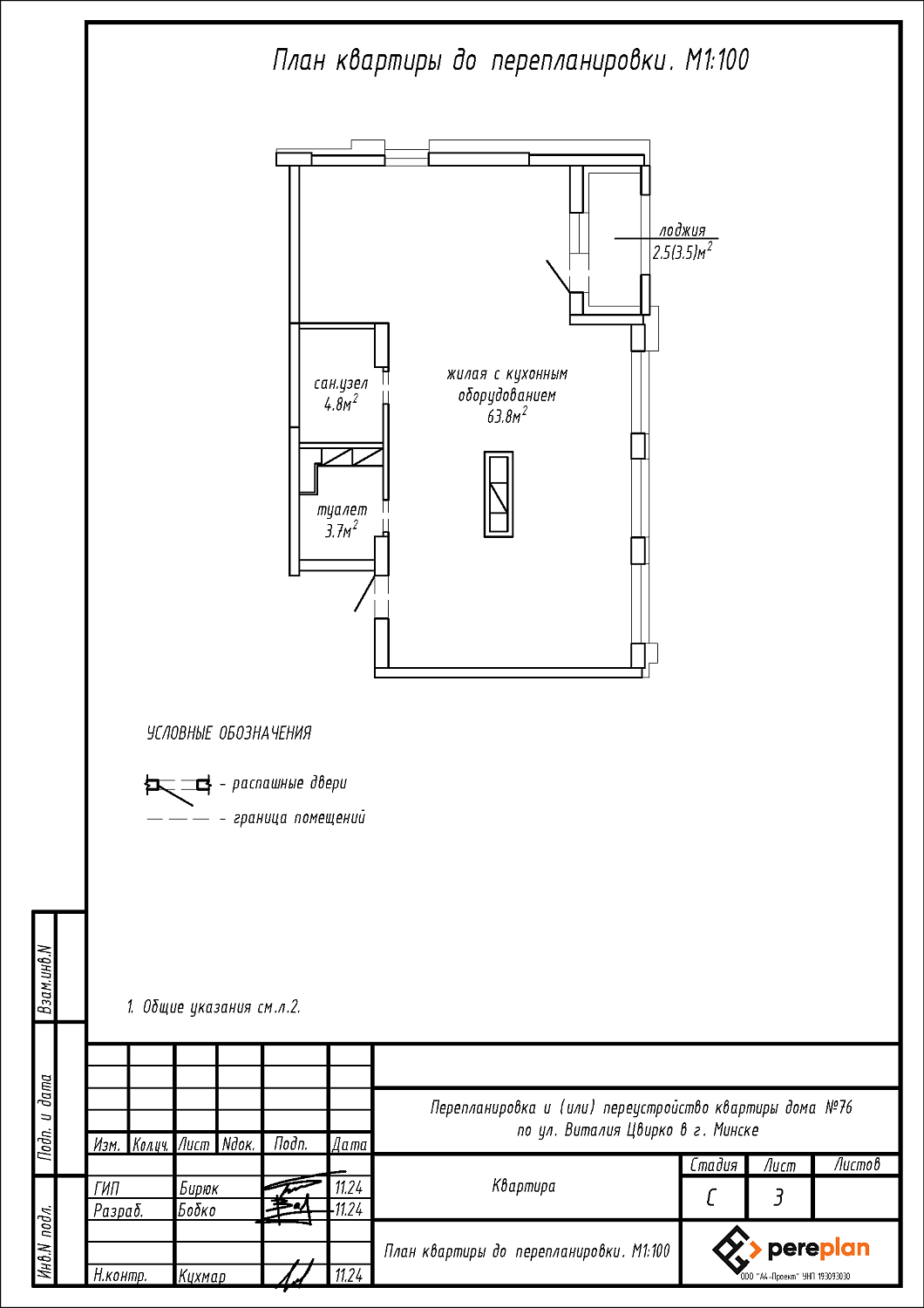
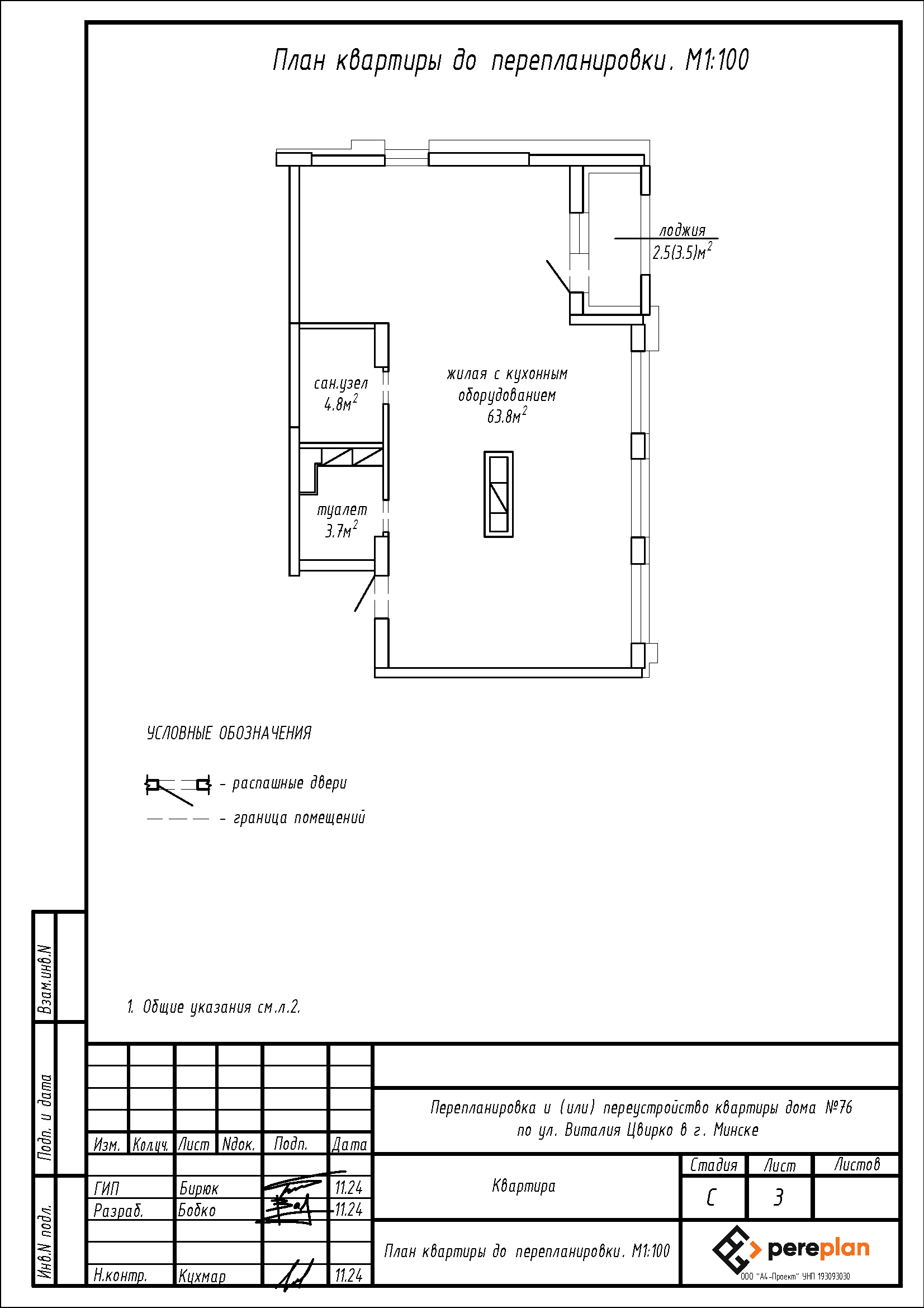
- Демонтаж части перегородки с дверным проемом между санузлом и жилой с кухонным оборудованием, с последующим устройством новых перегородок с дверными проемами на части площади санузла, жилой с кухонным оборудованием, туалета, с целью образования помещений: двух жилых, двух санузлов, двух гардеробов, кладовой и кухни;
- Устройство дверного проема в перегородке между гардеробом и санузлом;
- Устройство оконного блока в перегородке между санузлом и жилой с кухонным оборудованием.
- АС - архитектурно-строительные решения.
