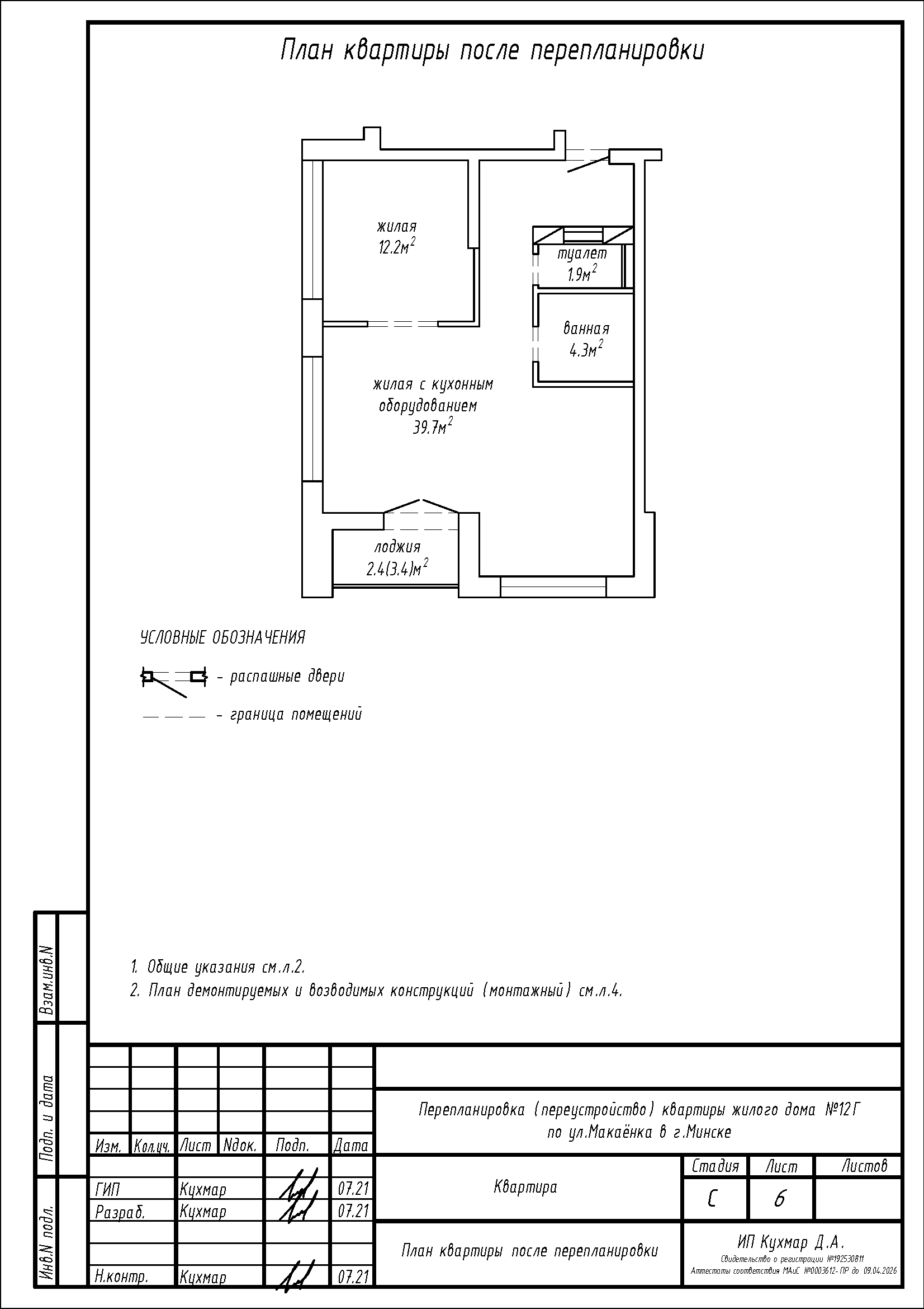
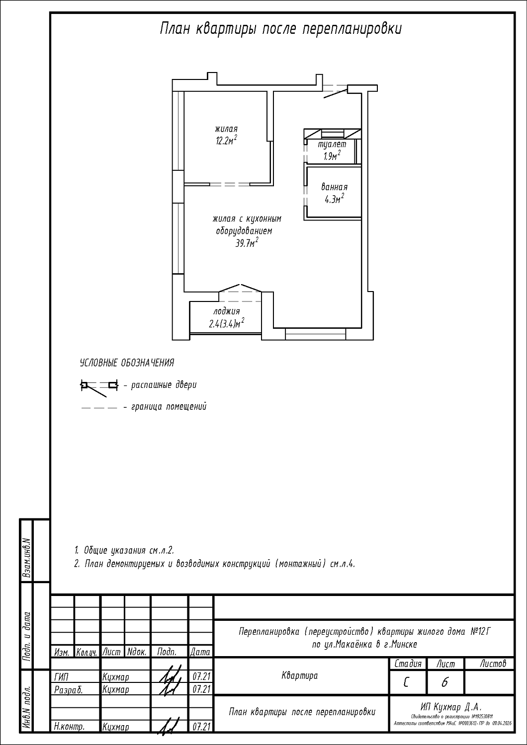
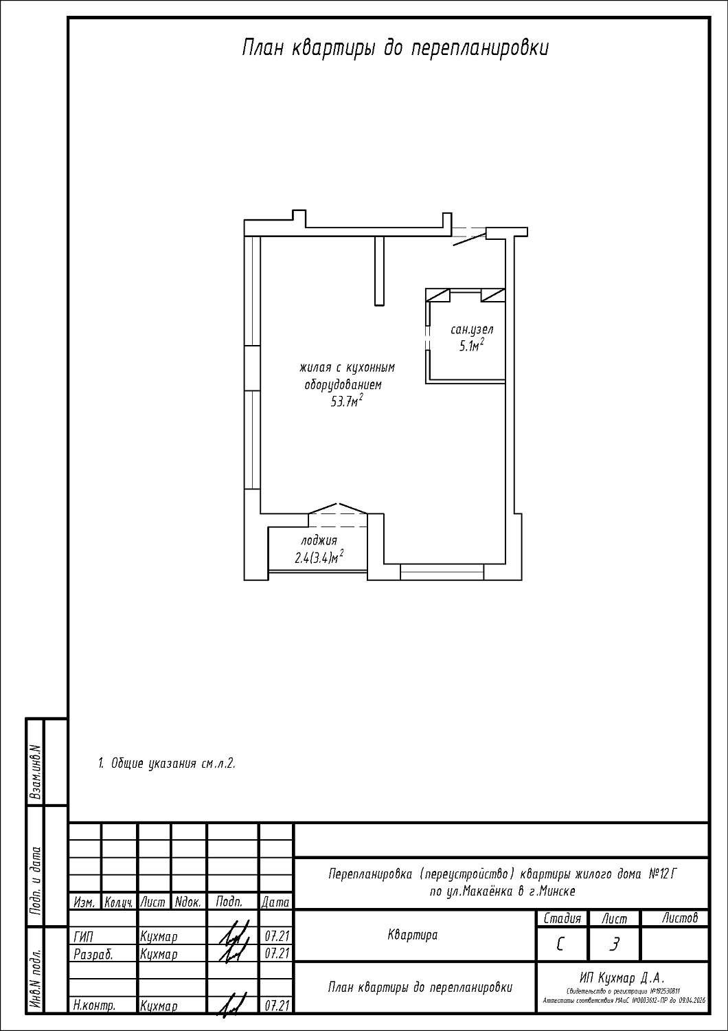
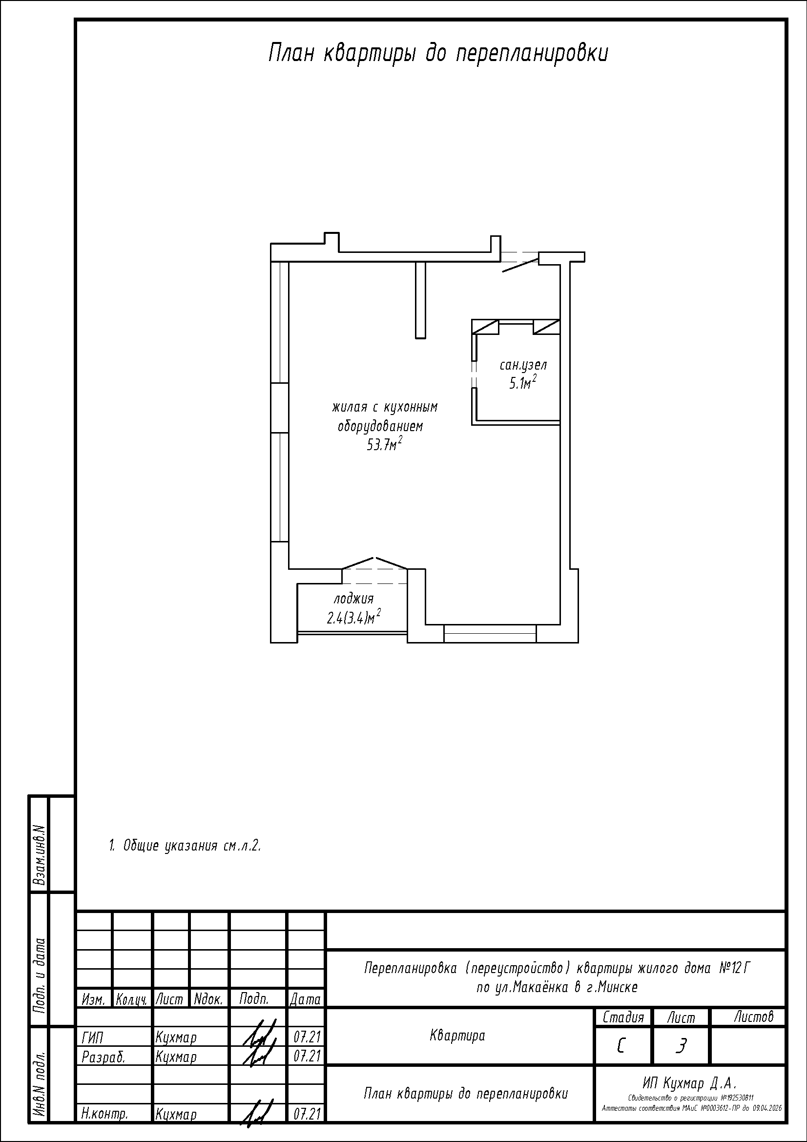
Перепланировка квартиры по ул. Макаёнка, 12Г в ЖК «Vogue»
Пожелания заказчика:
- Разделение общей жилой с кухонным оборудованием на жилую с кухонным оборудованием и жилую;
- Устройство туалета и ванной на площади существующего санузла.
Нами были разработаны следующие разделы проектной документации для согласования в исполкоме:
- АС - архитектурно-строительные решения.
