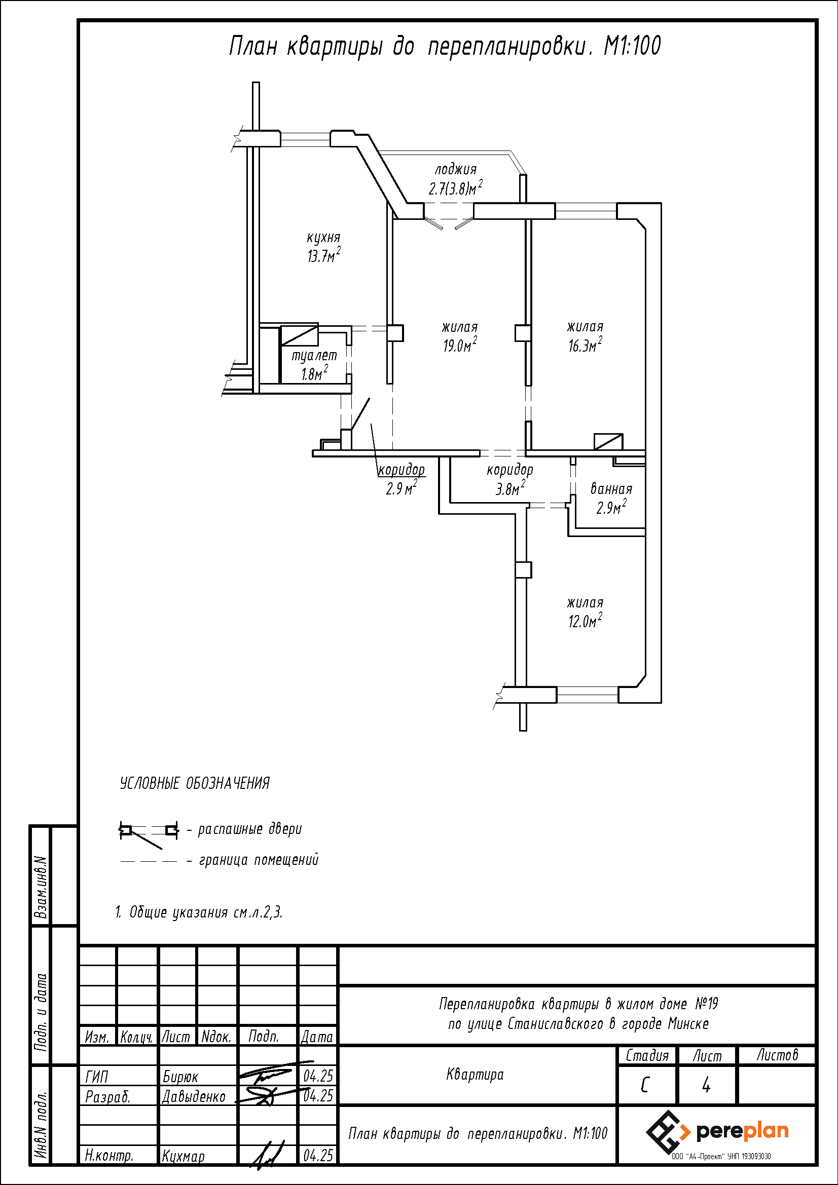
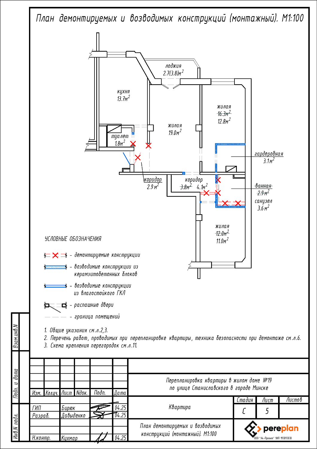
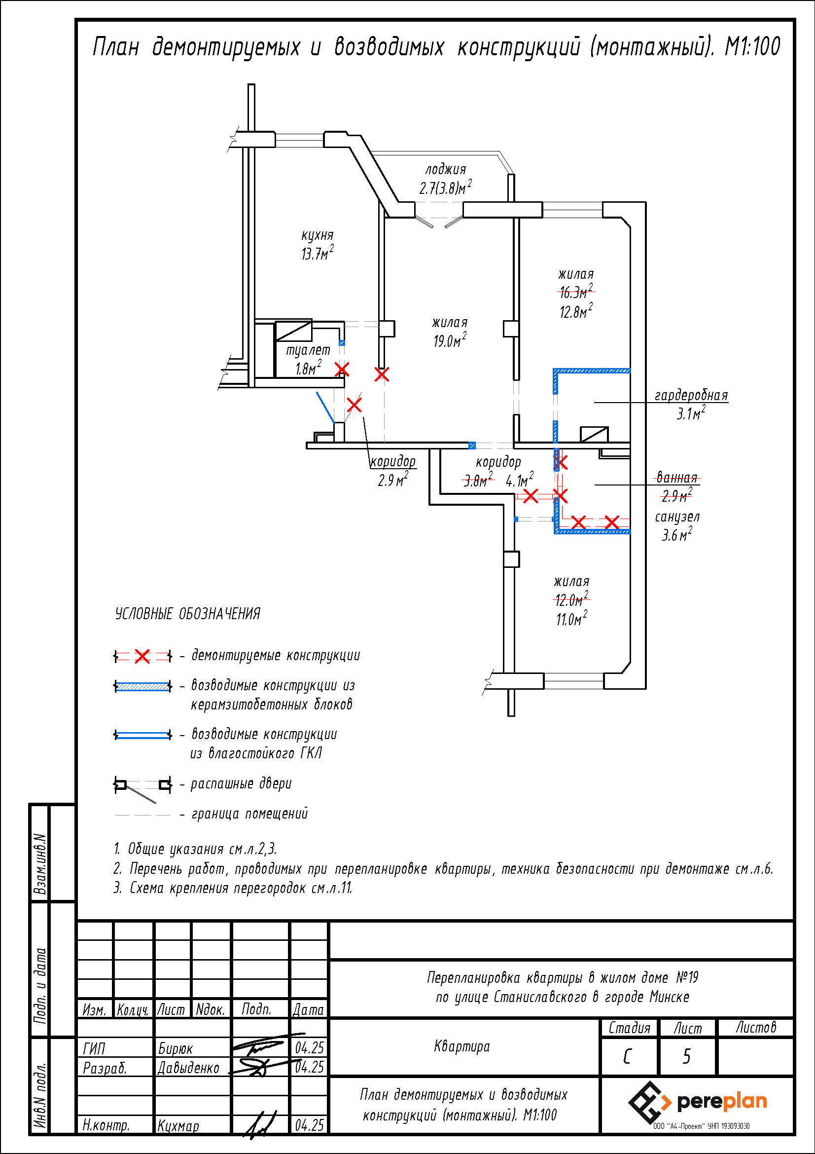
Перепланировка квартиры по ул. Станиславского, 19 в ЖК «Антоновский квартал» в г. Минске
Пожелания заказчика:
- Устройство санузла на площади ванной и части площади жилой комнаты (не более 25% существующей ванной);
- Смещение дверного проема в туалете;
- Устройство гардеробной на части площади жилой комнаты 16,3 м2;
- Устройство жилой комнаты на части площади жилой комнаты 16,3 м2;
- Устройство жилой комнаты на части площади жилой комнаты 12,0 м2;
- Установка дверного блока между жилой комнатой 12,0 м2 и коридором;
- Устройство коридора на части площади коридора;
- Замена дверного блока входной двери со сменой направления открывания;
- Перенос и замена отопительного прибора.
Нами были разработаны следующие разделы проектной документации для согласования в исполкоме:
- АС - архитектурно-строительные решения.
- ОВ - отопление и вентиляция.


