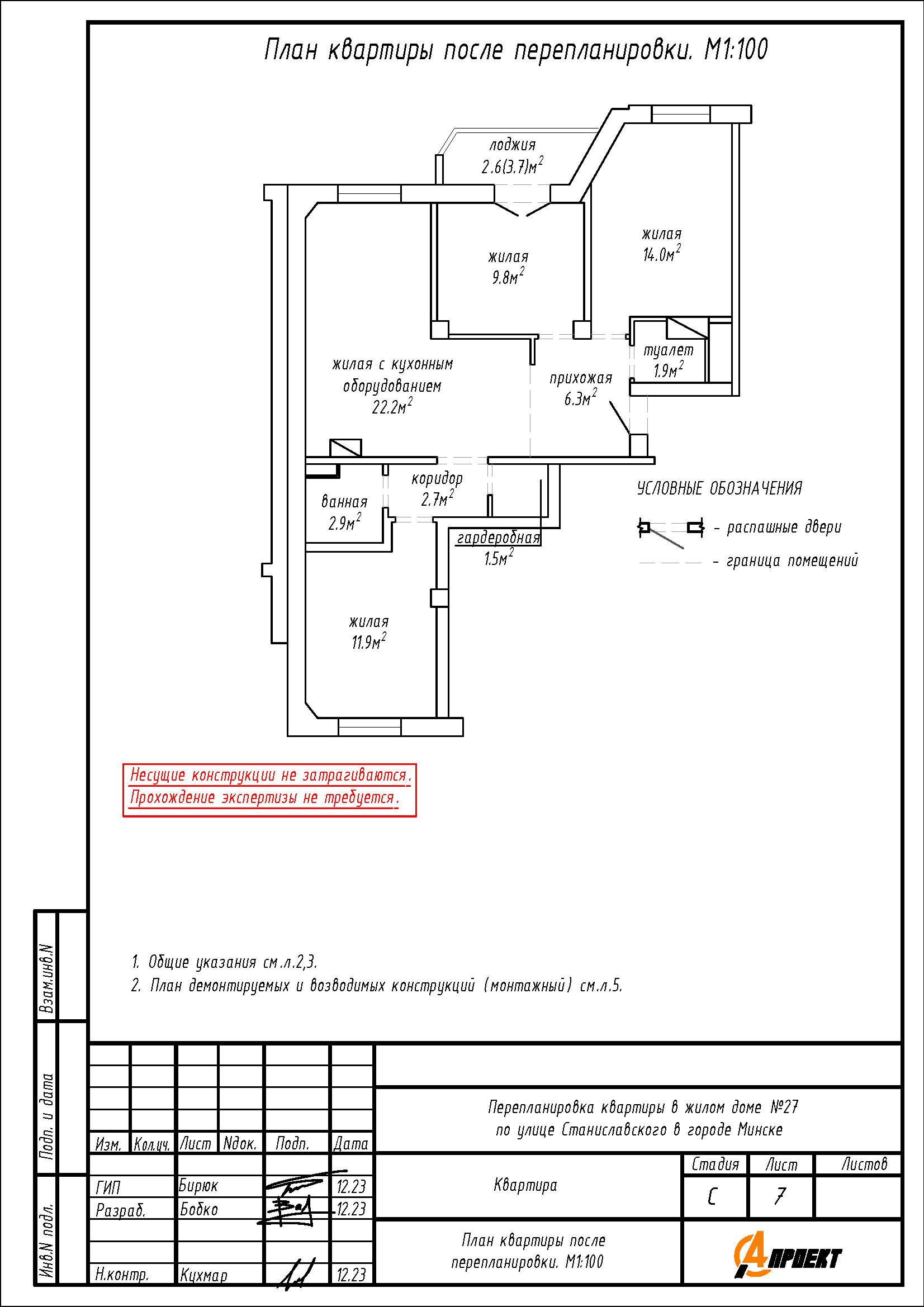
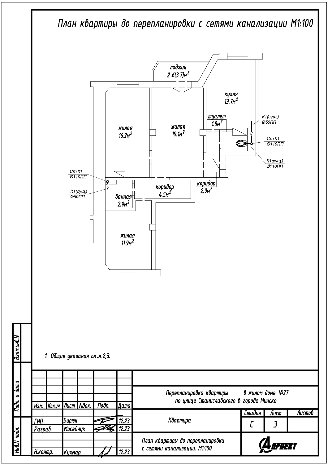
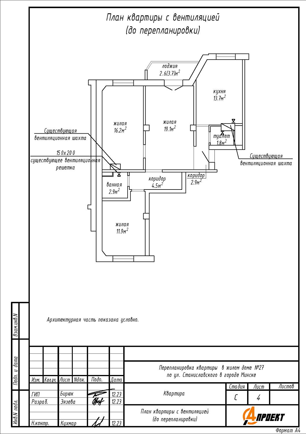
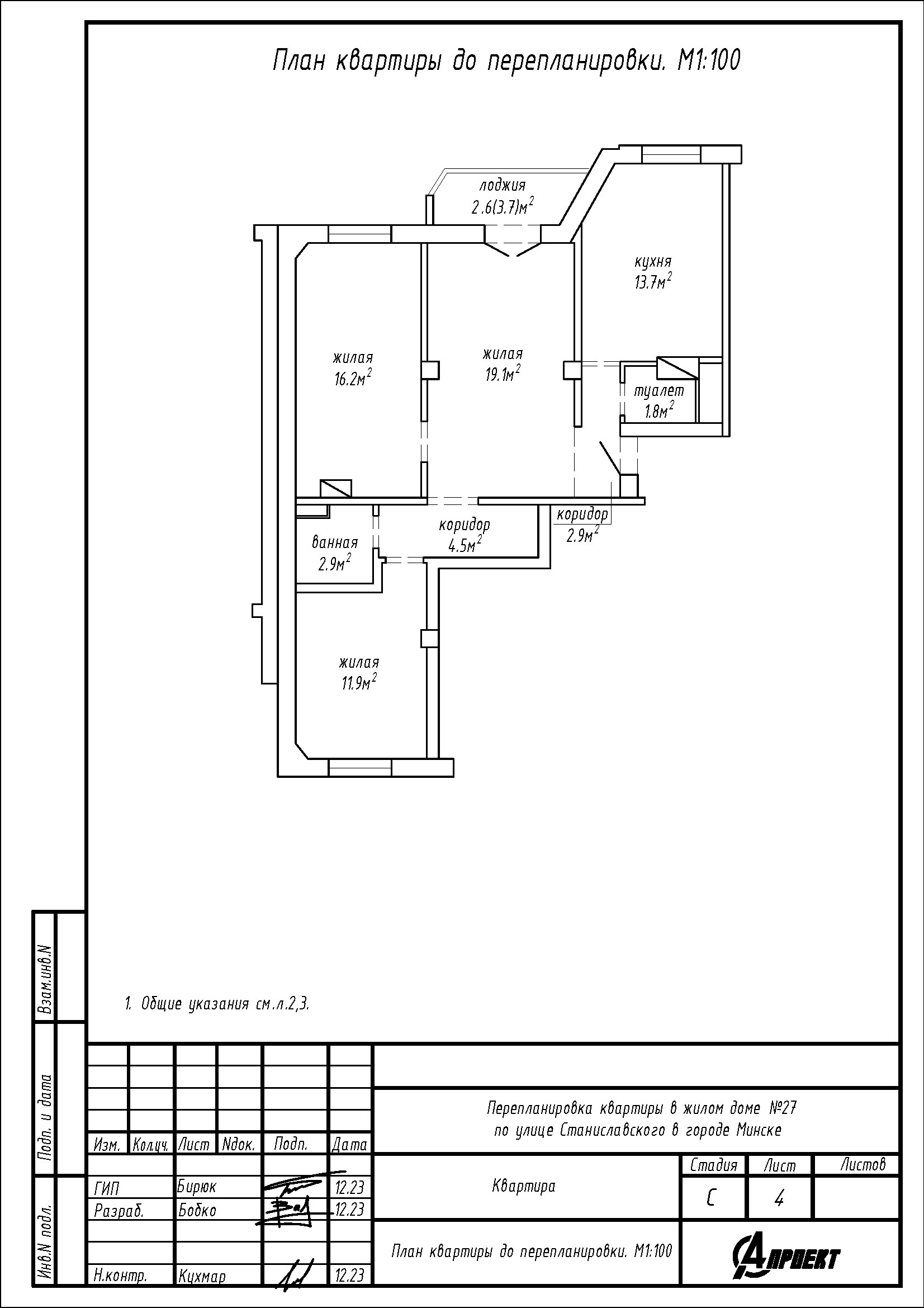
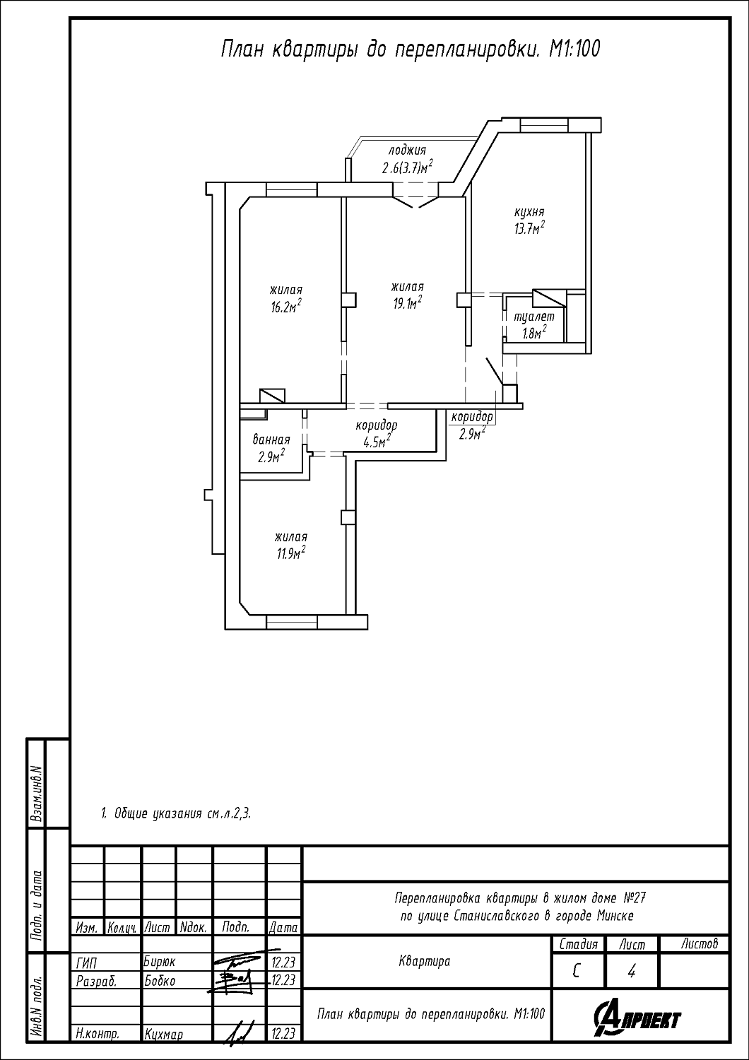
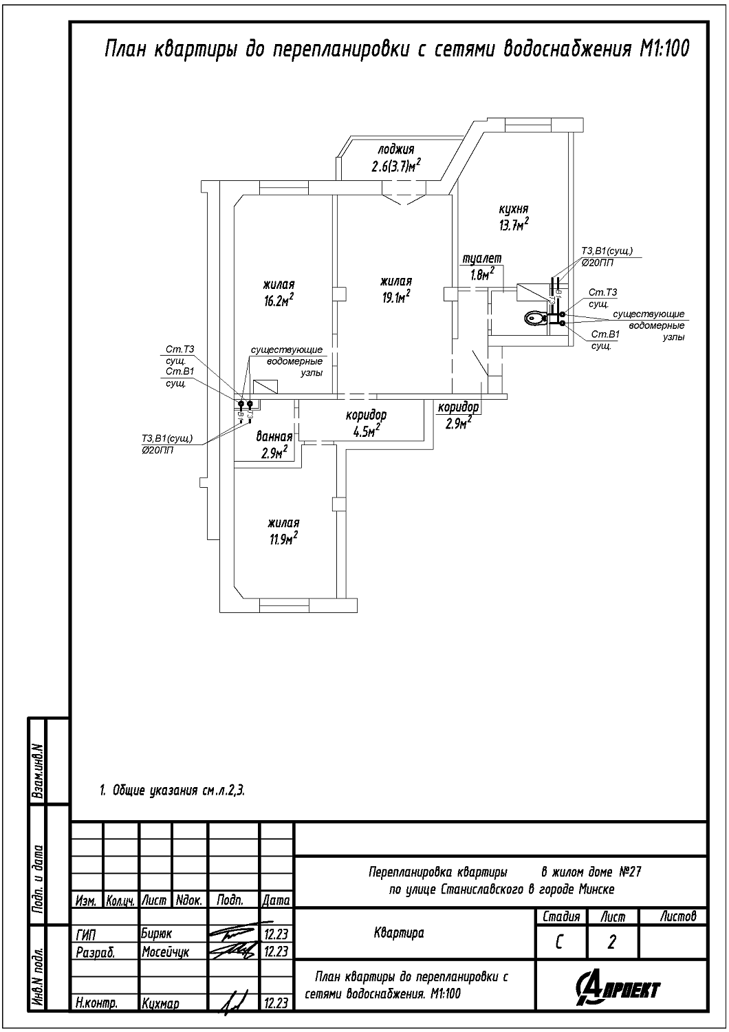
Перепланировка квартиры по ул. Станиславского, 27 в ЖК «Антоновский квартал» в г. Минске
Пожелания заказчика:
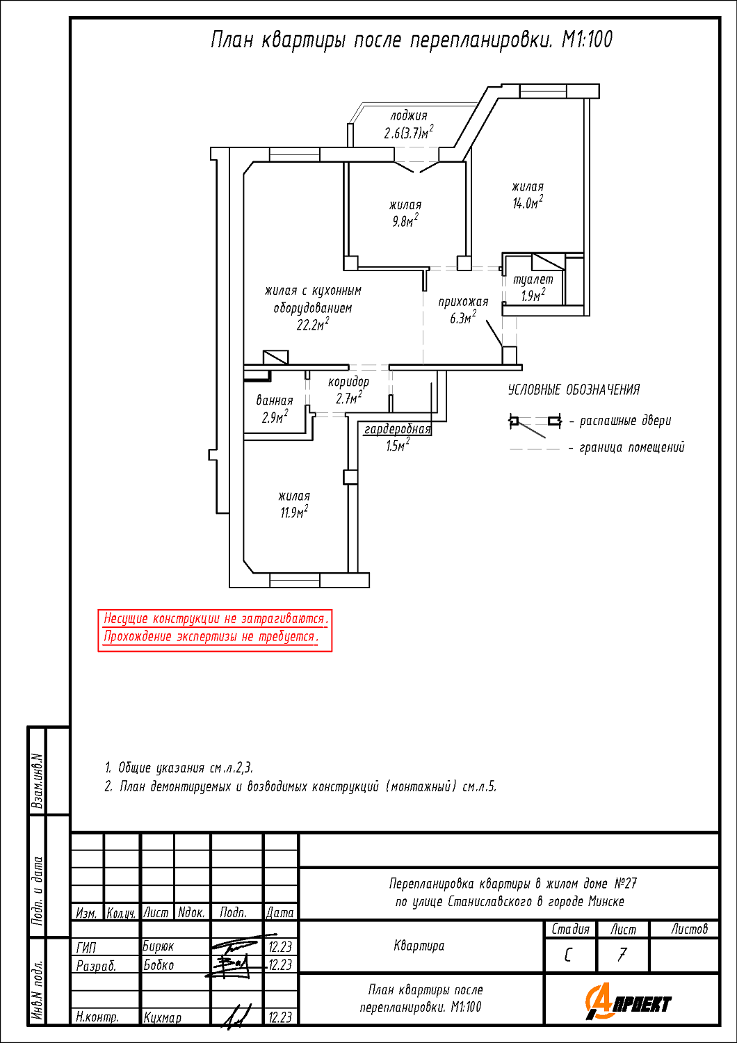
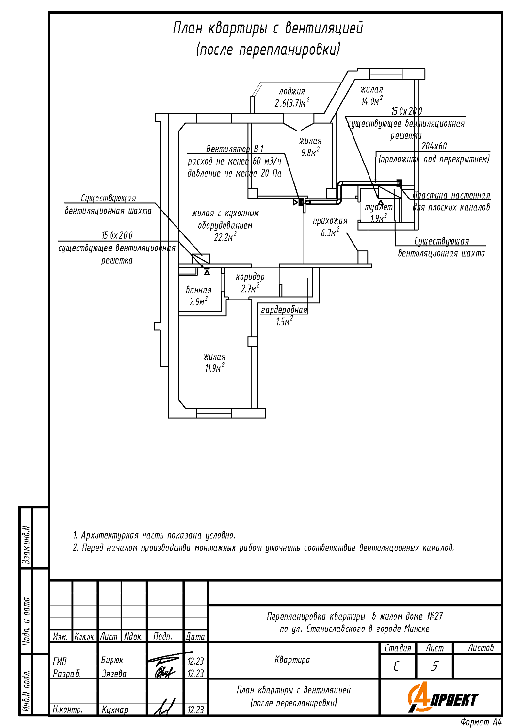
- Устройство жилой комнаты на площади кухни;
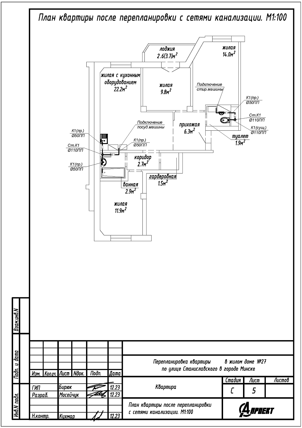
- Устройство инсталляции в туалете;
- Устройство жилой комнаты на части площади жилой комнаты 19.1 м2;
- Устройство прихожей на площади коридора и части площади жилой комнаты 19.1 м2;
- Устройство гардеробной на части площади коридора 4.5 м2;
- Устройство коридора на части площади коридора 4.5 м2;
- Смещение дверного проема в перегородке между туалетом и коридором;
- Демонтаж перегородки с дверным проемом между кухней и коридором с последующим устройством перегородок с дверным проемом.
Нами были разработаны следующие разделы проектной документации для согласования в исполкоме:
- АС - архитектурно-строительные решения.
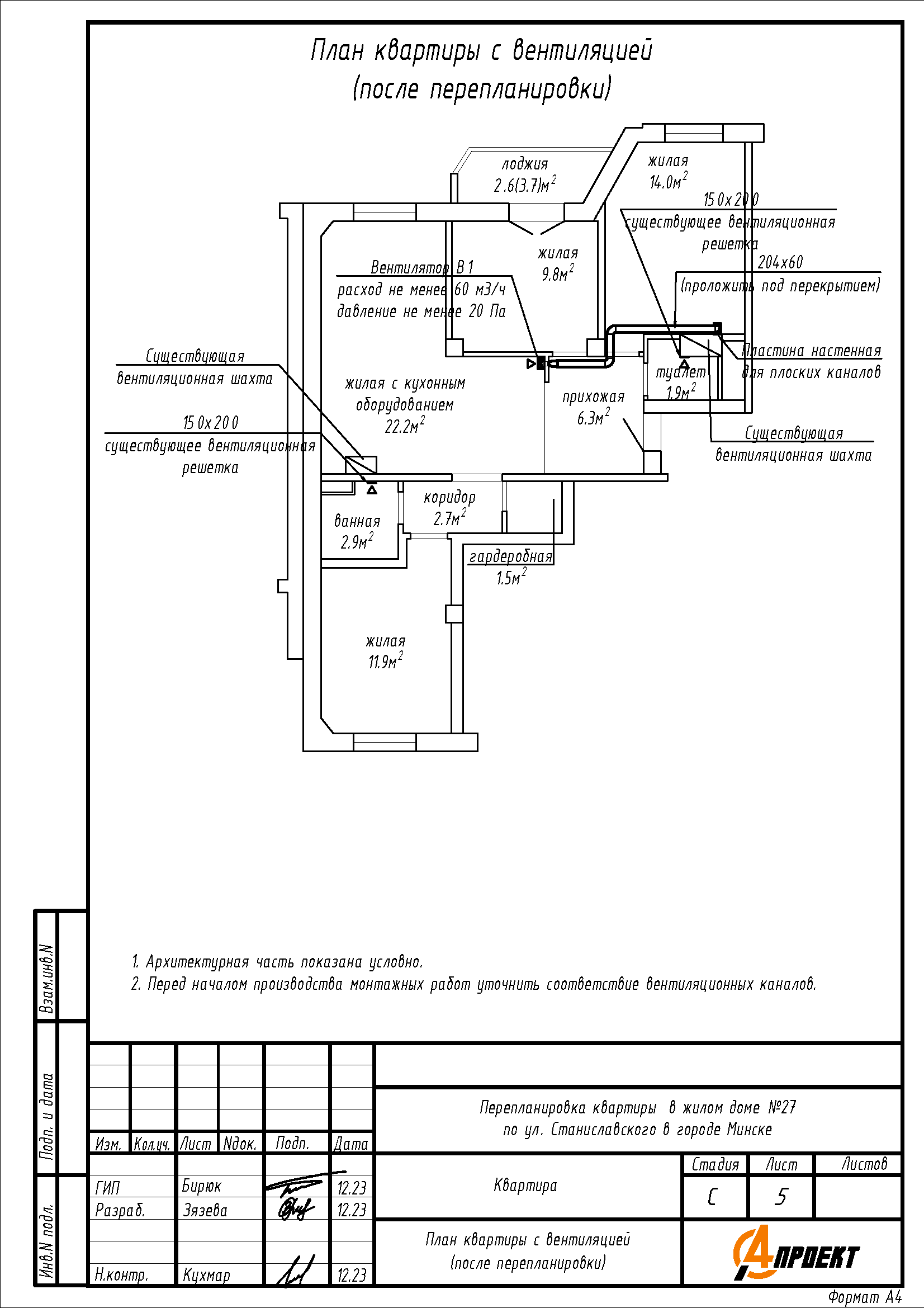
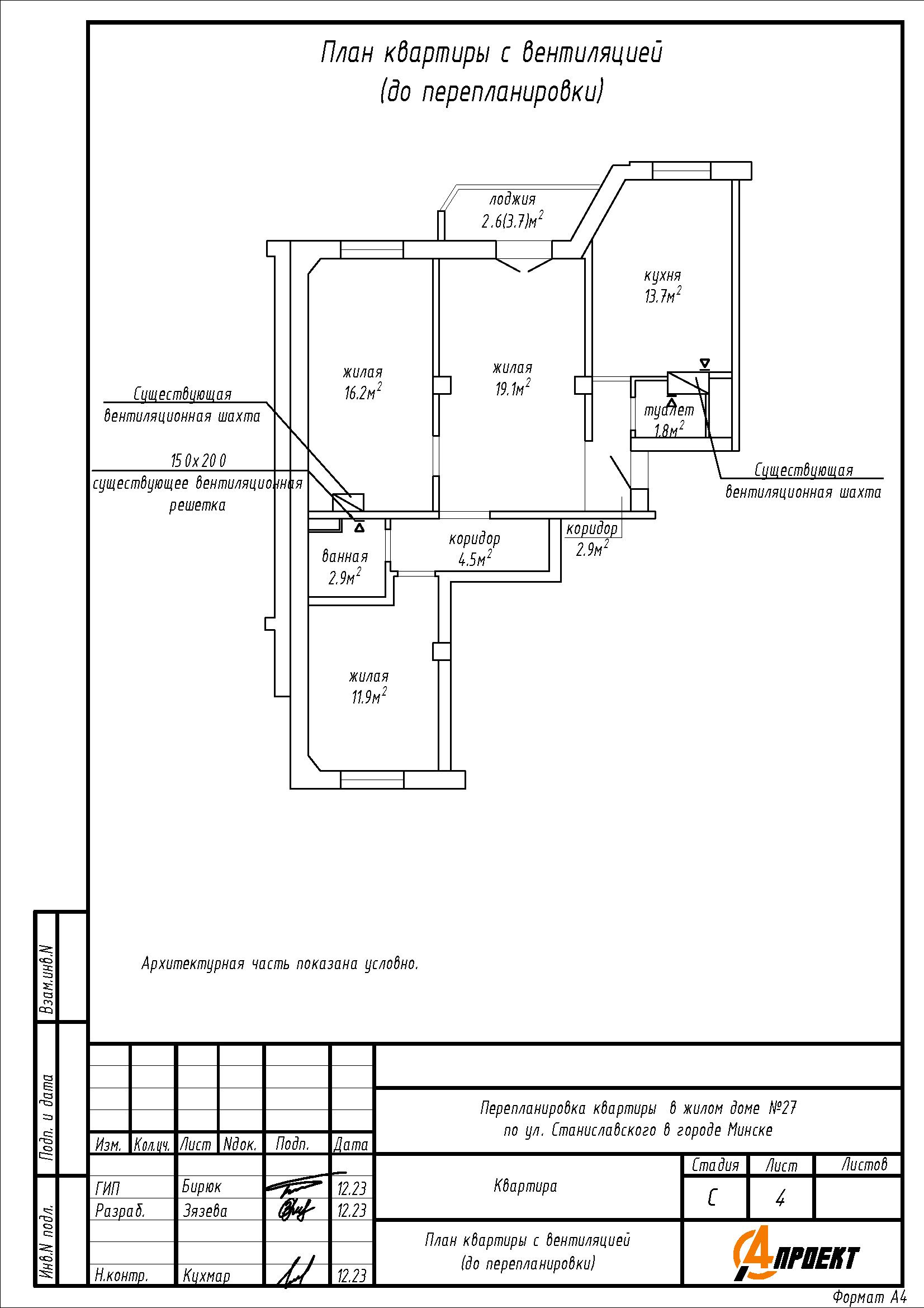
- ОВ - отопление и вентиляция.
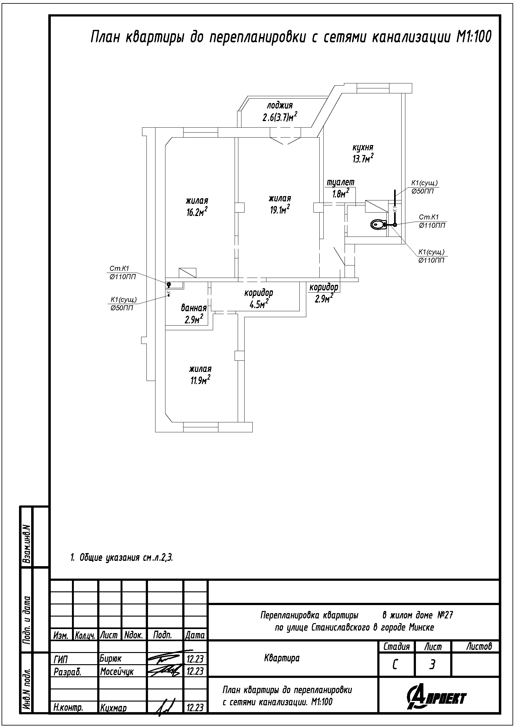
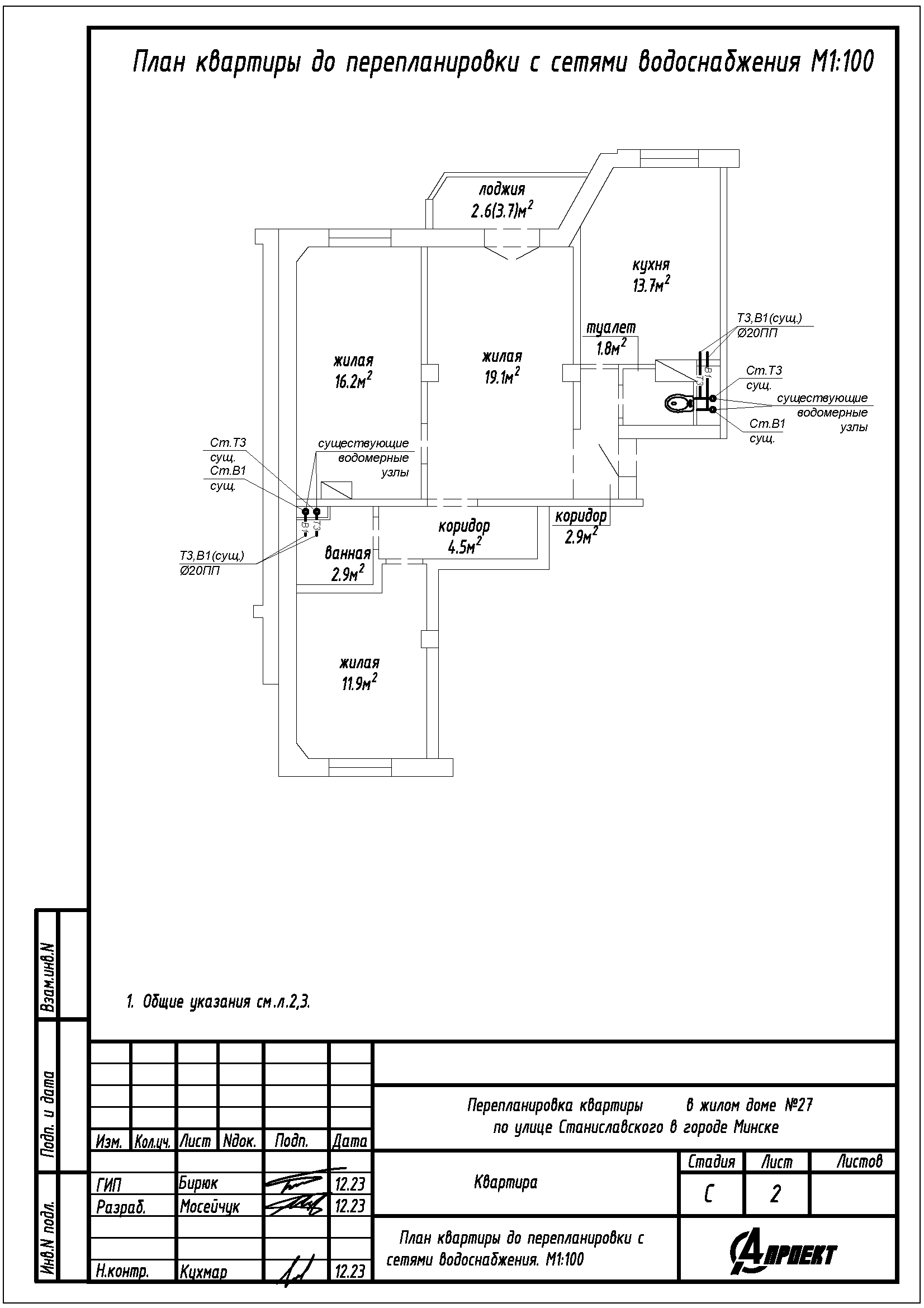
- ВК - водоснабжение и канализация.


