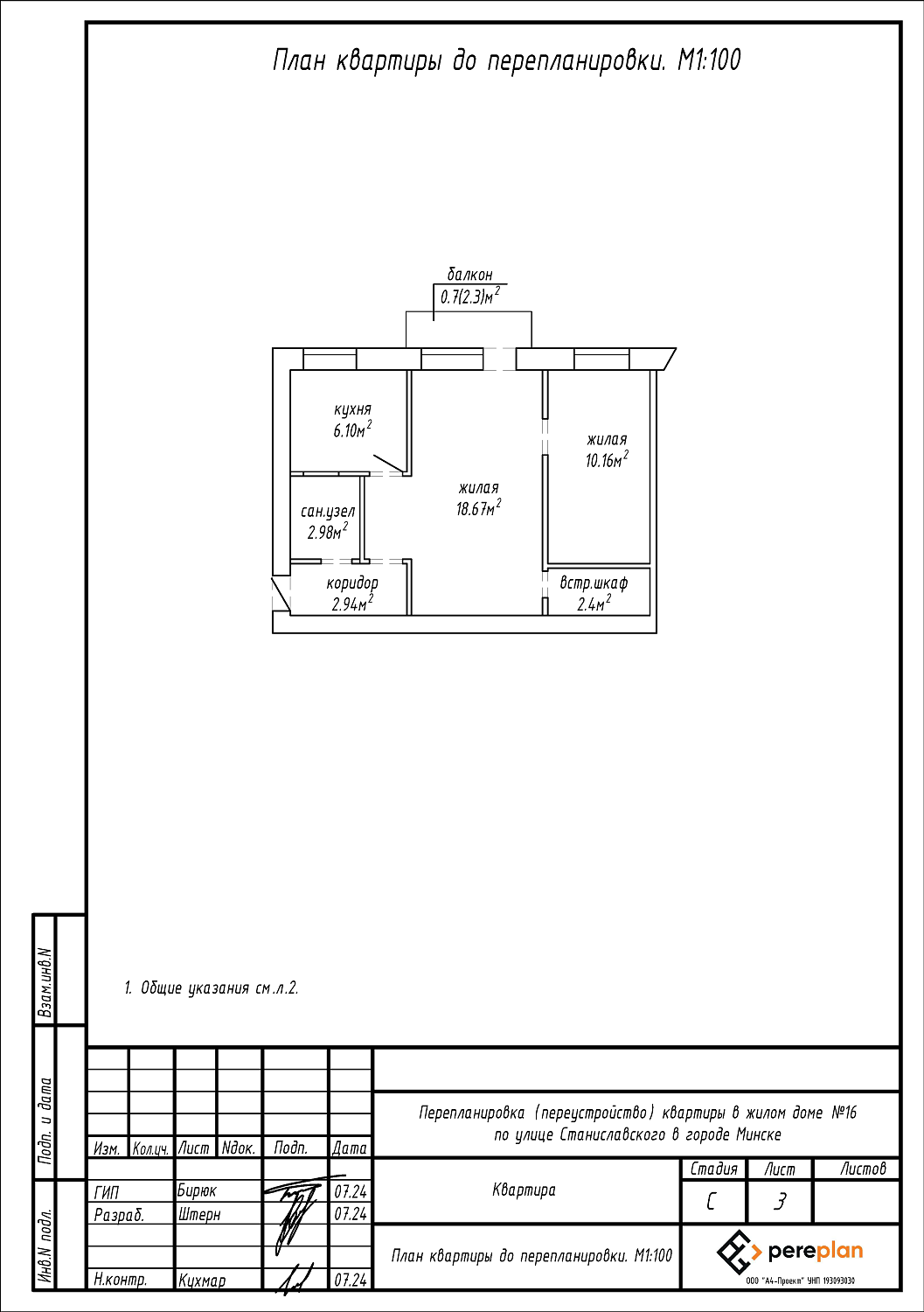
Перепланировка квартиры по ул. Станиславского, 16 в г. Минске
Пожелания заказчика:
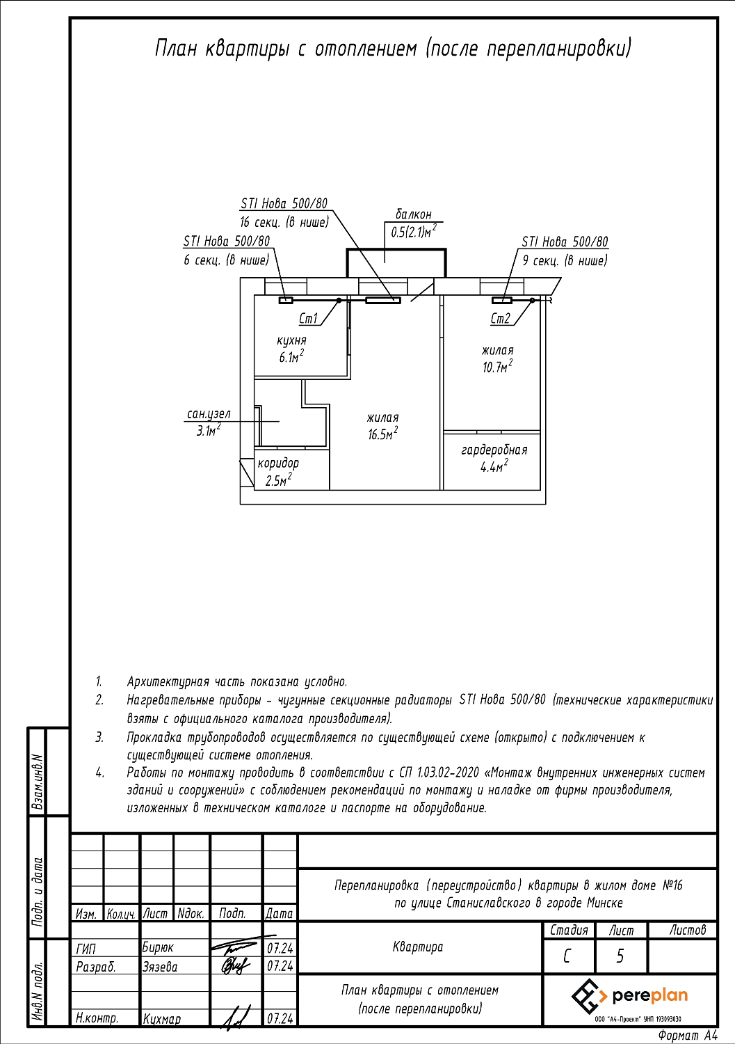
- Устройство сан.узла на площади существующего сан.узла и части площади жилой комнаты, но не более чем на 25%;
- Демонтаж перегородок в квартире и возведение новых перегородок на месте существующих;
- Демонтаж части перегородки между кухней и жилой комнатой 18,67 м2 с устройством дверного проема и установкой дверного блока;
- Закладка дверного проема между кухней и жилой комнатой 18,67 м2;
- Закладка дверного проема между кладовой и жилой комнатой 18,67 м2;
- Устройство дверного проема между кладовой и жилой комнатой 10,16 м2;
- Демонтаж перегородки в коридоре;
- Смещение дверного проема между жилой комнатой 18,67 м2 и жилой комнатой 10,16 м2;
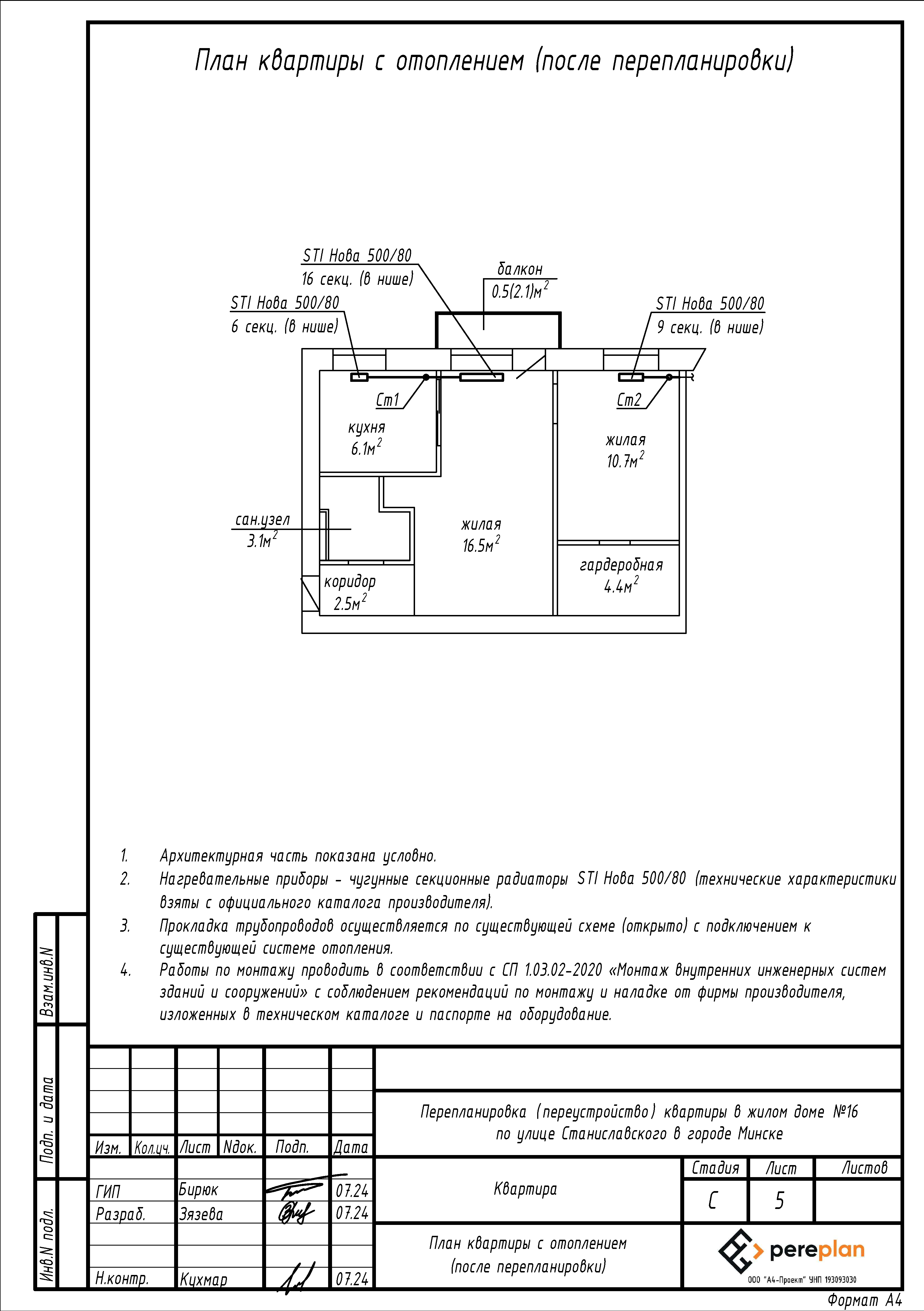
- Устройство зашивки на балконе;
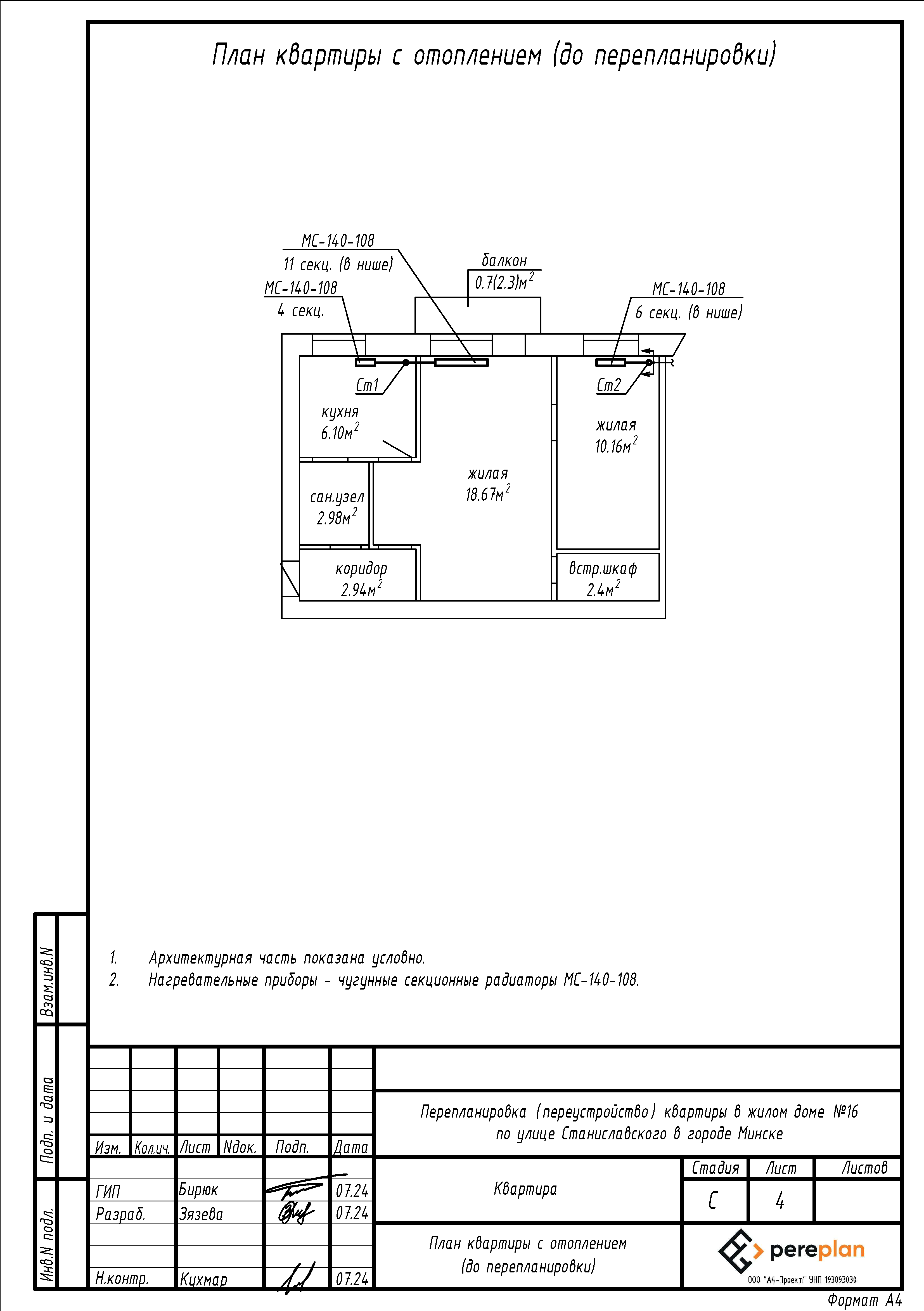
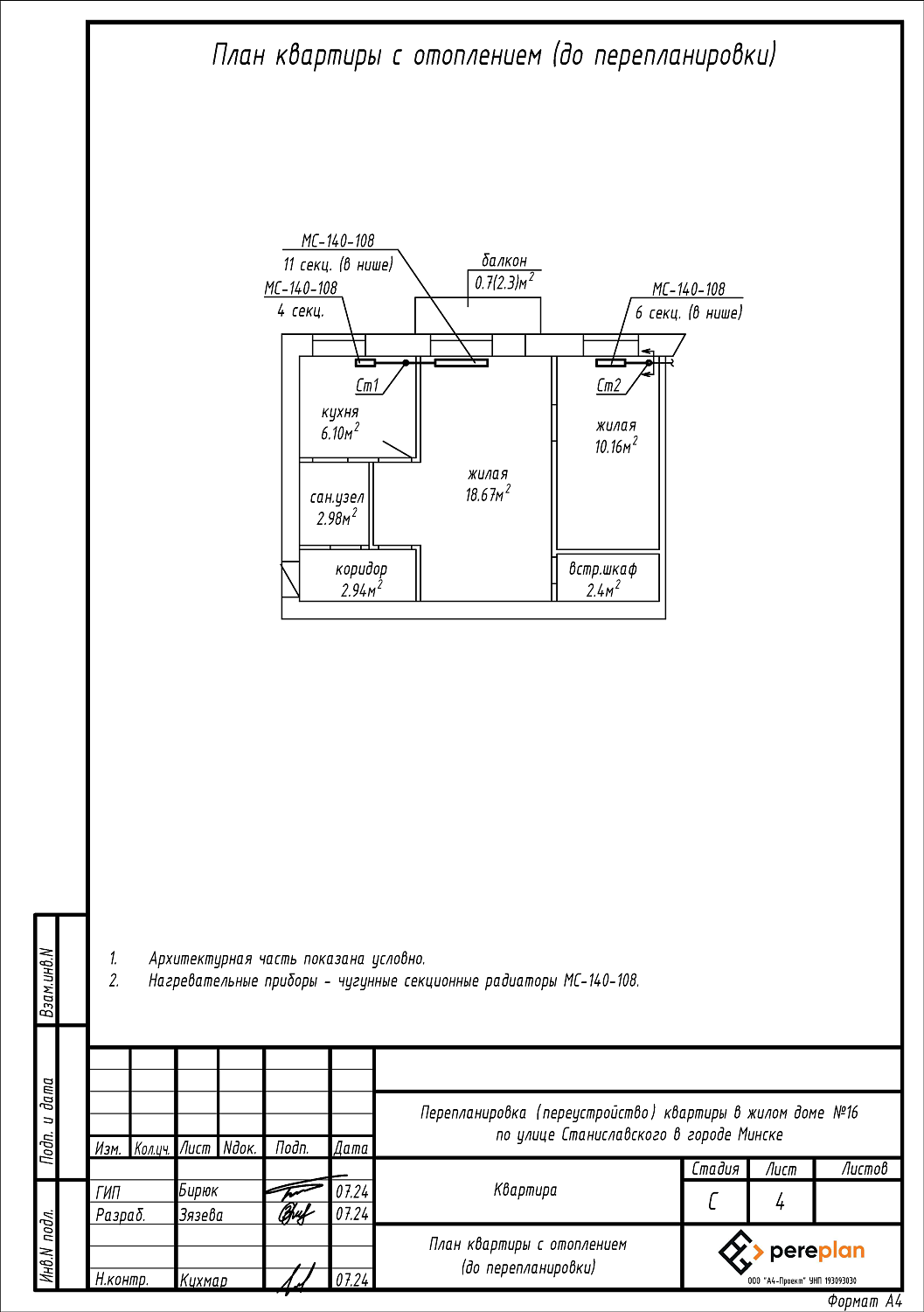
- Замена и перенос отопительных приборов.
Нами были разработаны следующие разделы проектной документации для согласования в исполкоме:
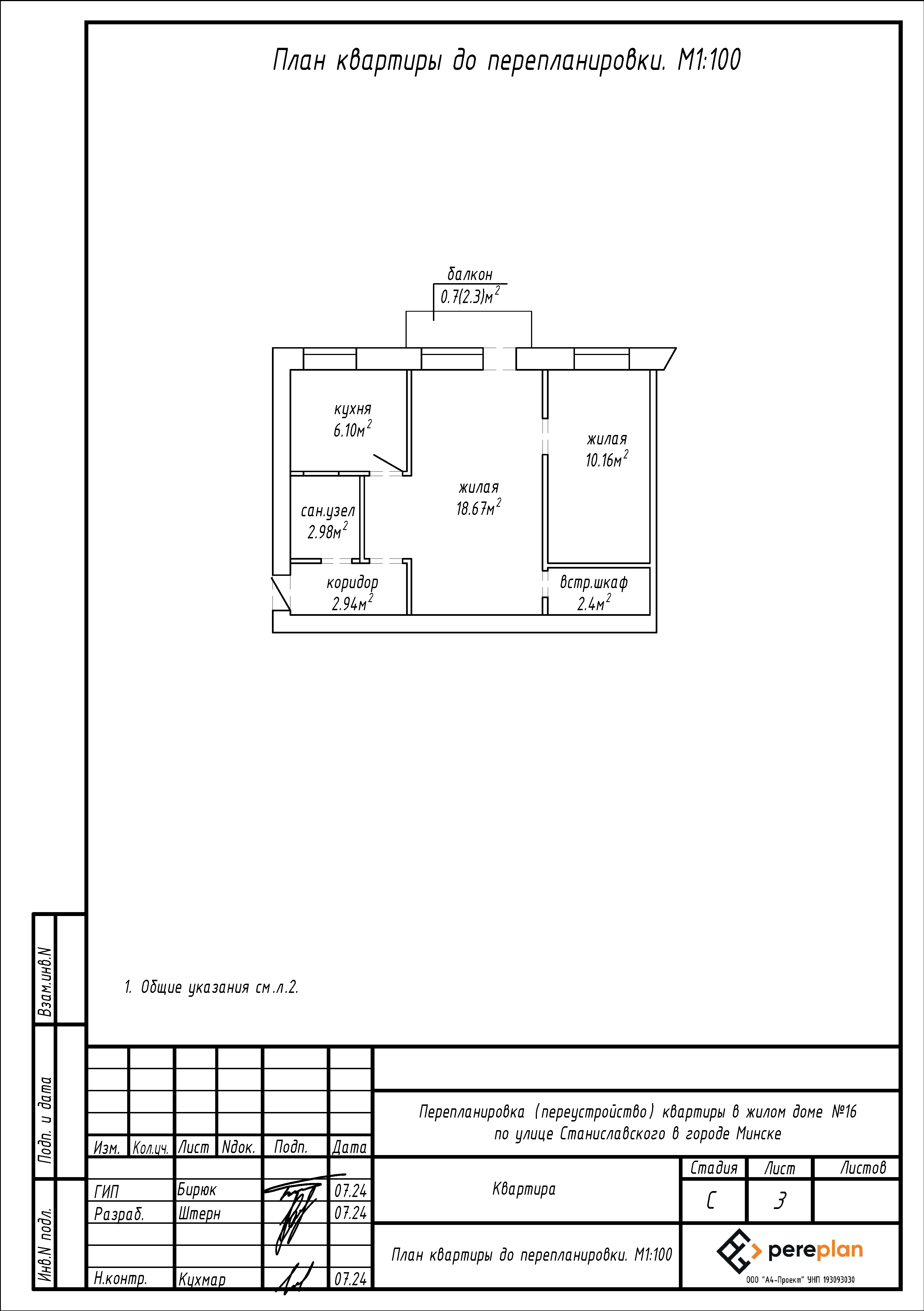
- АС - архитектурно-строительные решения;
- ОВ - отопление и вентиляция.
