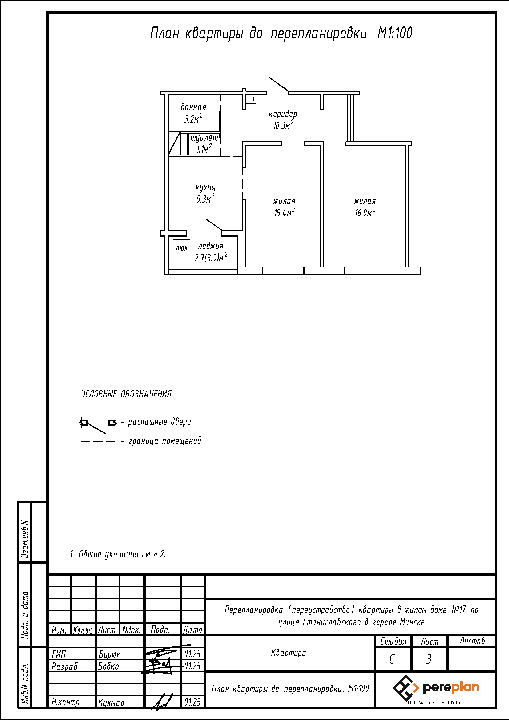
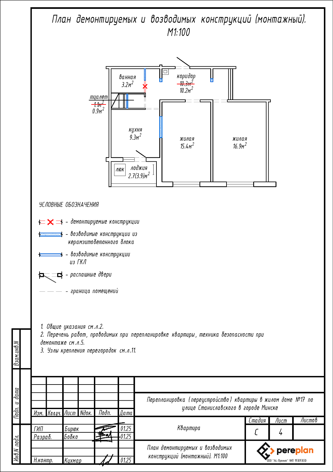
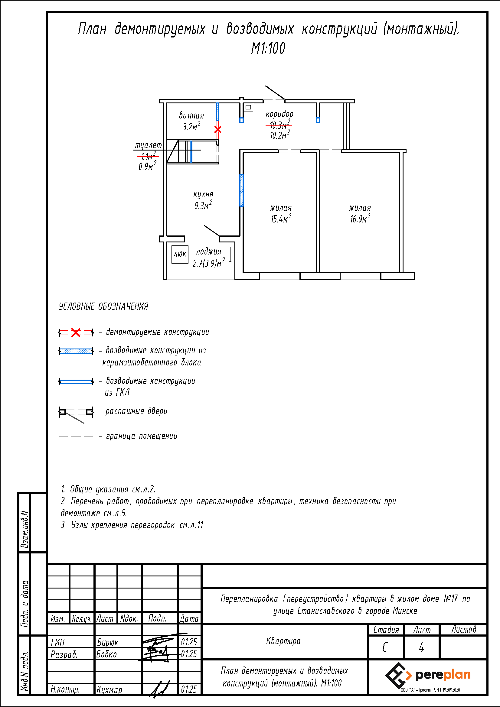
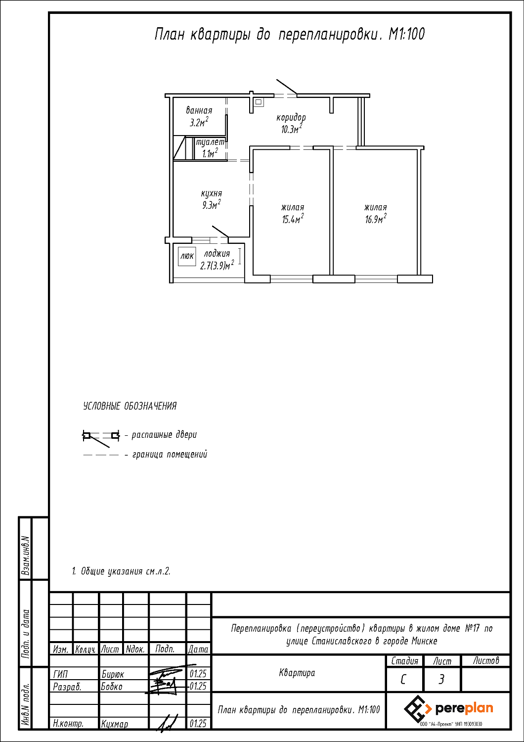
Перепланировка квартиры по ул. Станиславского, 17 в ЖК «Антоновский квартал» в г. Минске
Пожелания заказчика:
- Смещение дверного проема в ванной;
- Устройство частей перегородки в коридоре;
- Устройство зашивки из ГКЛ на части площади туалета;
- Закладка дверного проема между кухней и жилой.
Нами были разработаны следующие разделы проектной документации для согласования в исполкоме:
- АС - архитектурно-строительные решения.


