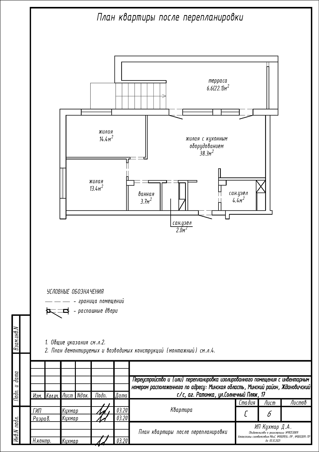
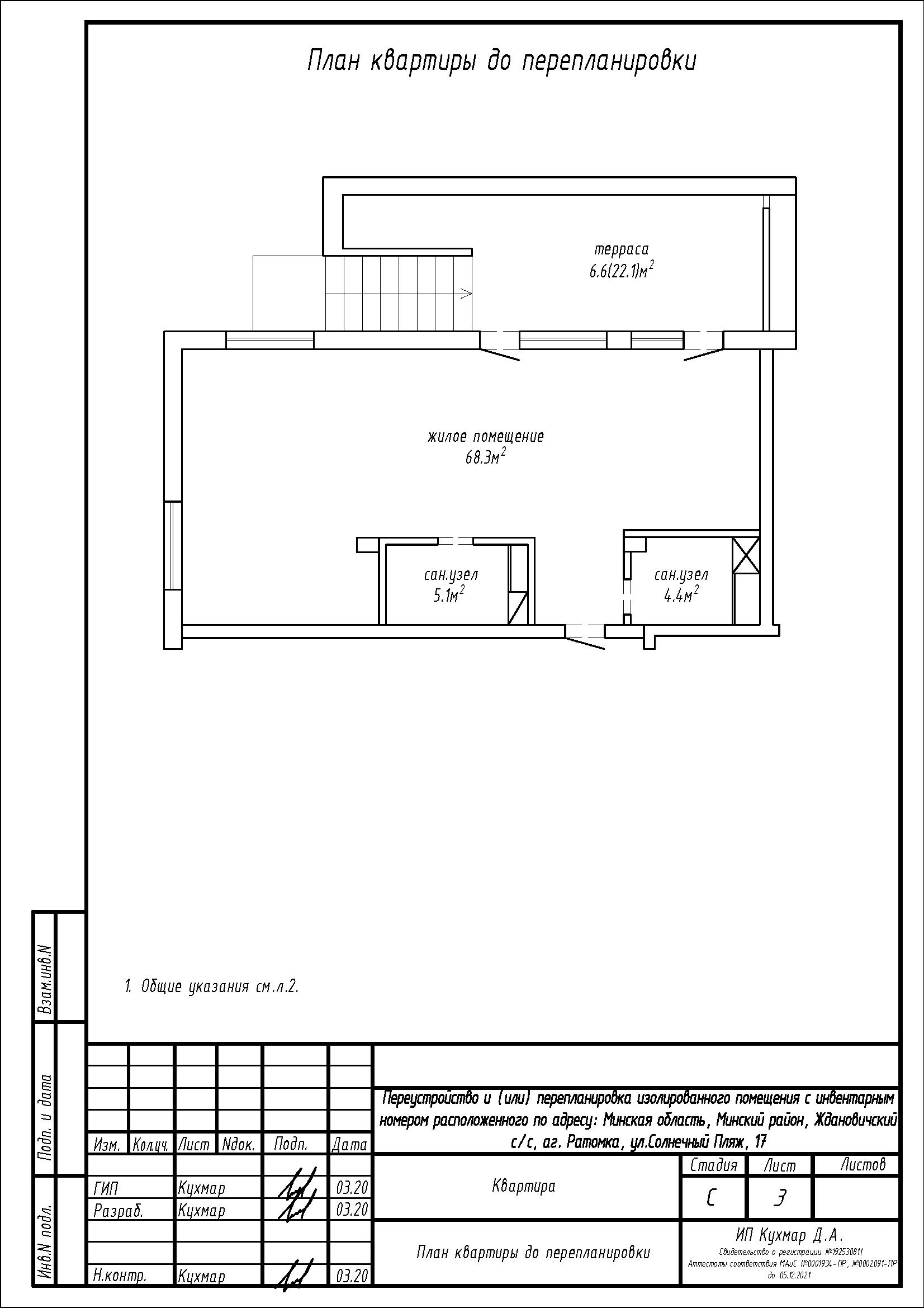
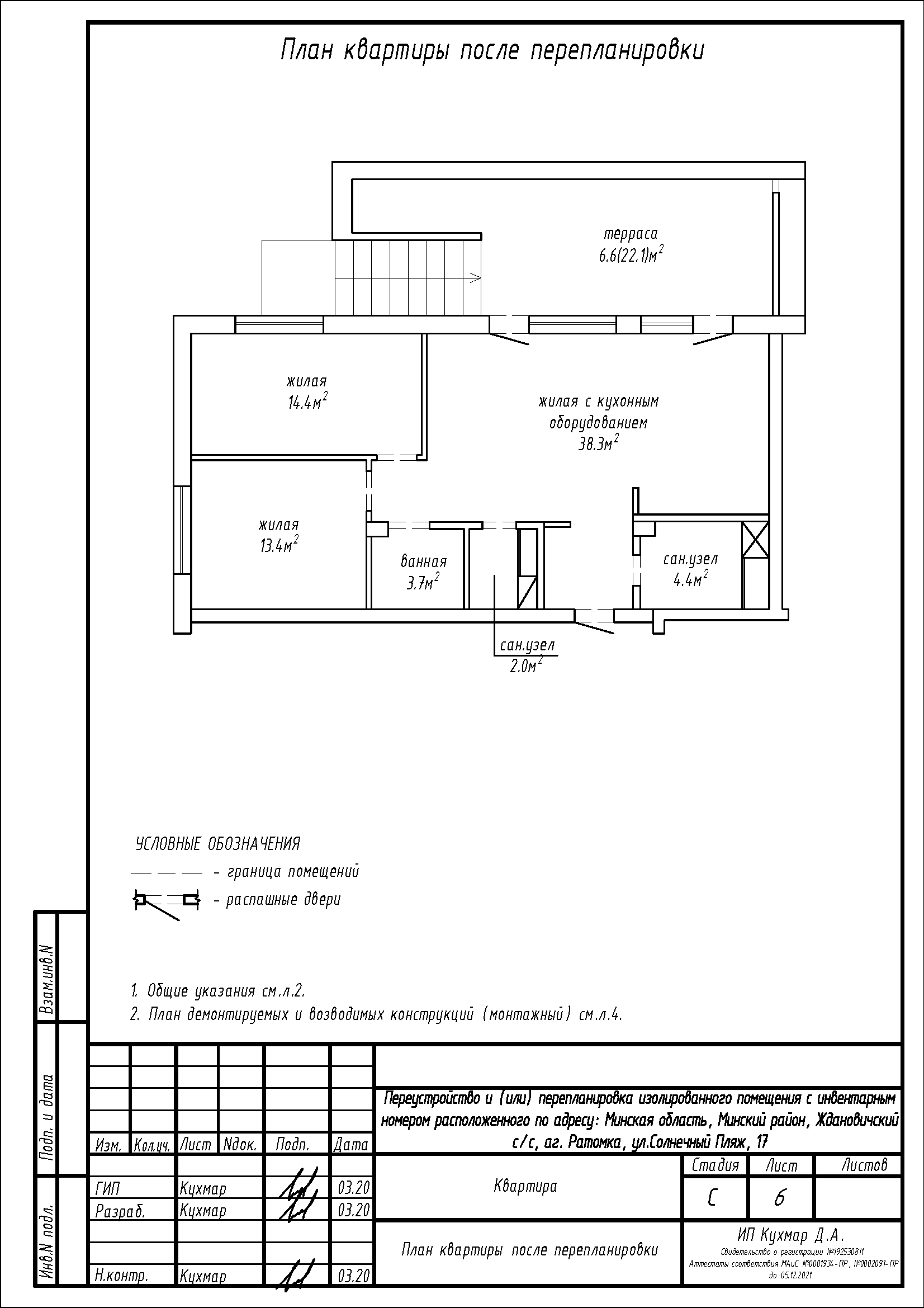
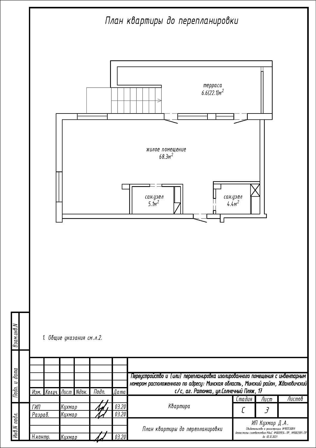
Перепланировка квартиры по ул. Солнечный Пляж, 17 в ЖК «Пирс»
Пожелания заказчика:
- Разделение общего помещения на жилую с кухонным оборудованием и две жилые;
- Разделение общего санузла на ванную и туалет;
- Смещение дверного проёма в санузла.
Нами были разработаны следующие разделы проектной документации для согласования в исполкоме:
- АС - архитектурно-строительные решения.


