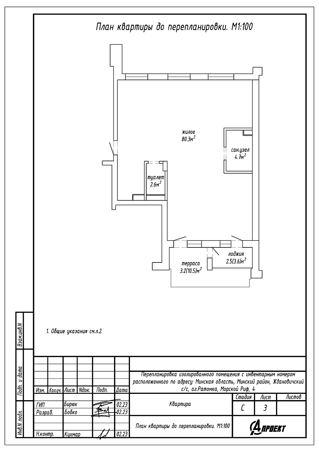
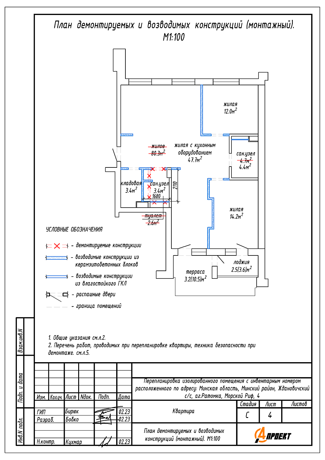
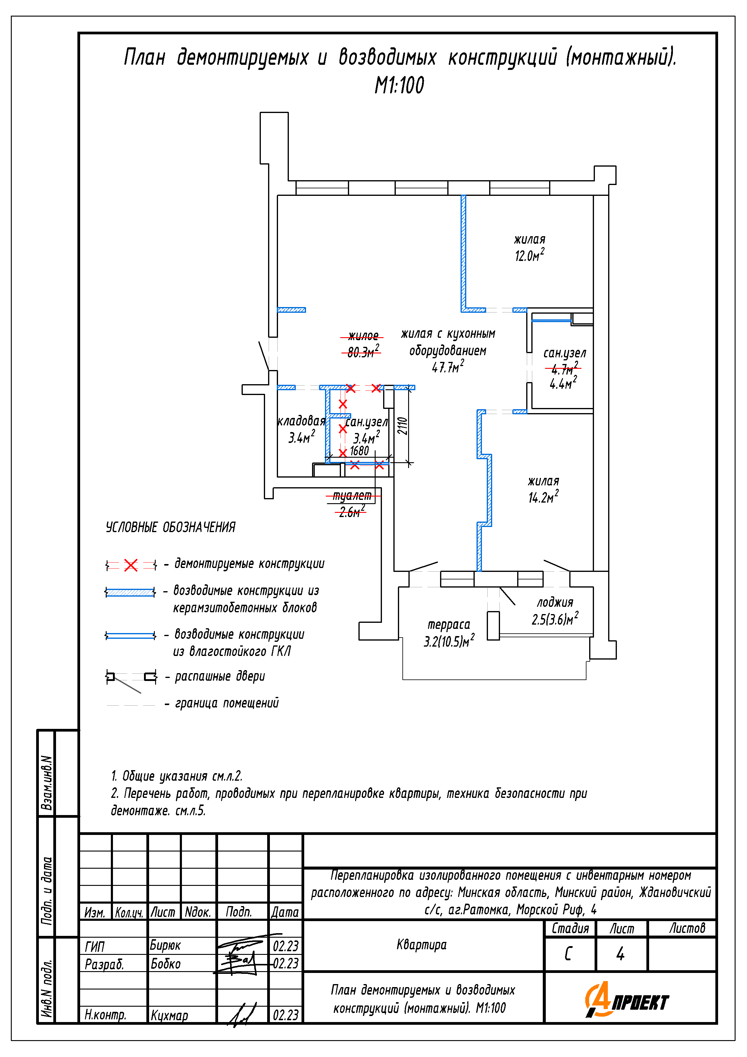
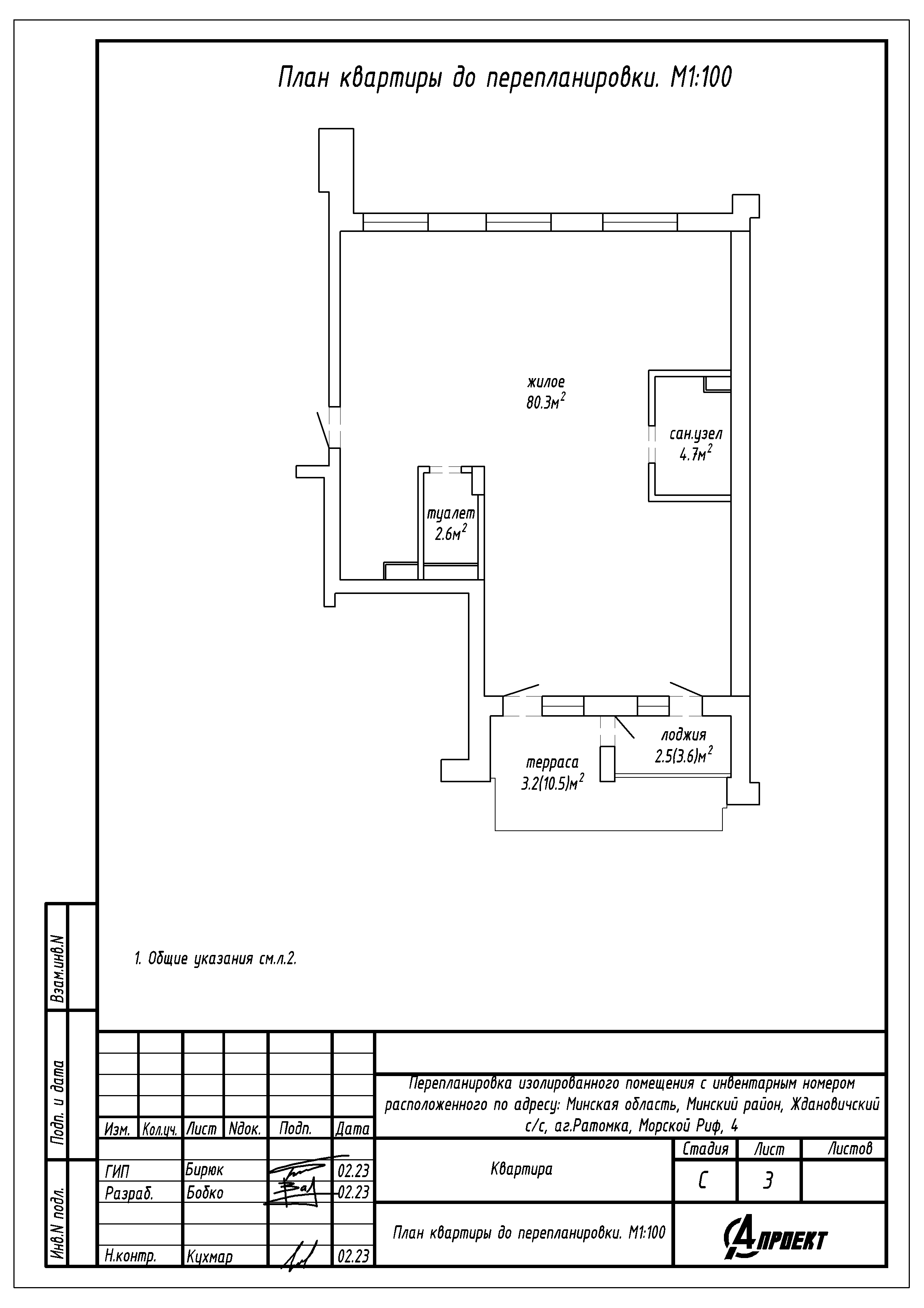
Перепланировка квартиры по ул. Морской Риф, 4 в ЖК «Пирс»
Пожелания заказчика:
- Устройство перегородок, в том числе дверных проёмов, на площади жилого с последующим образованием двух жилых, жилой с кухонным оборудованием, кладовой;
- Устройство санузла на площади существующего туалета.
Нами были разработаны следующие разделы проектной документации для согласования в исполкоме:
- АС - архитектурно-строительные решения.
