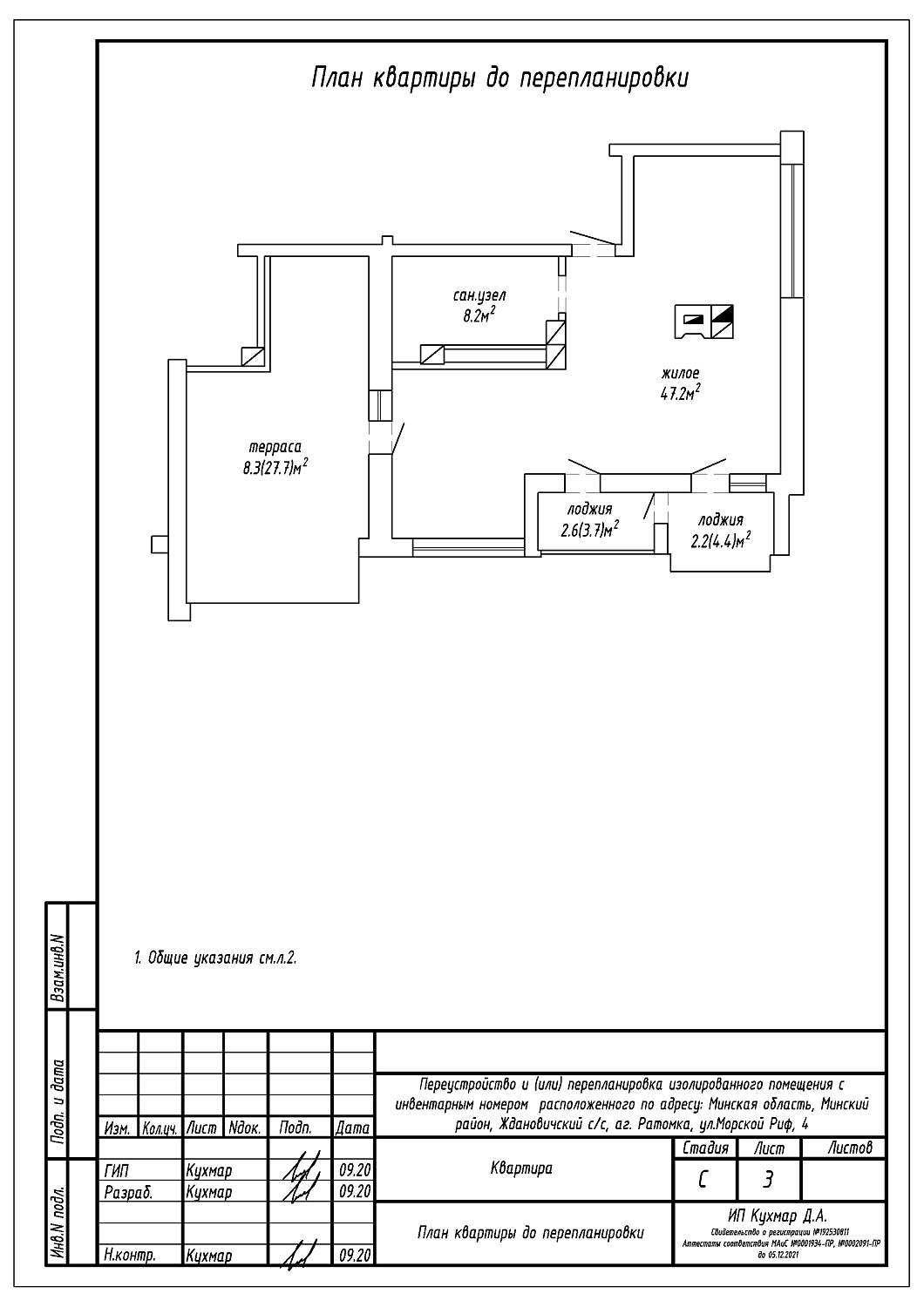
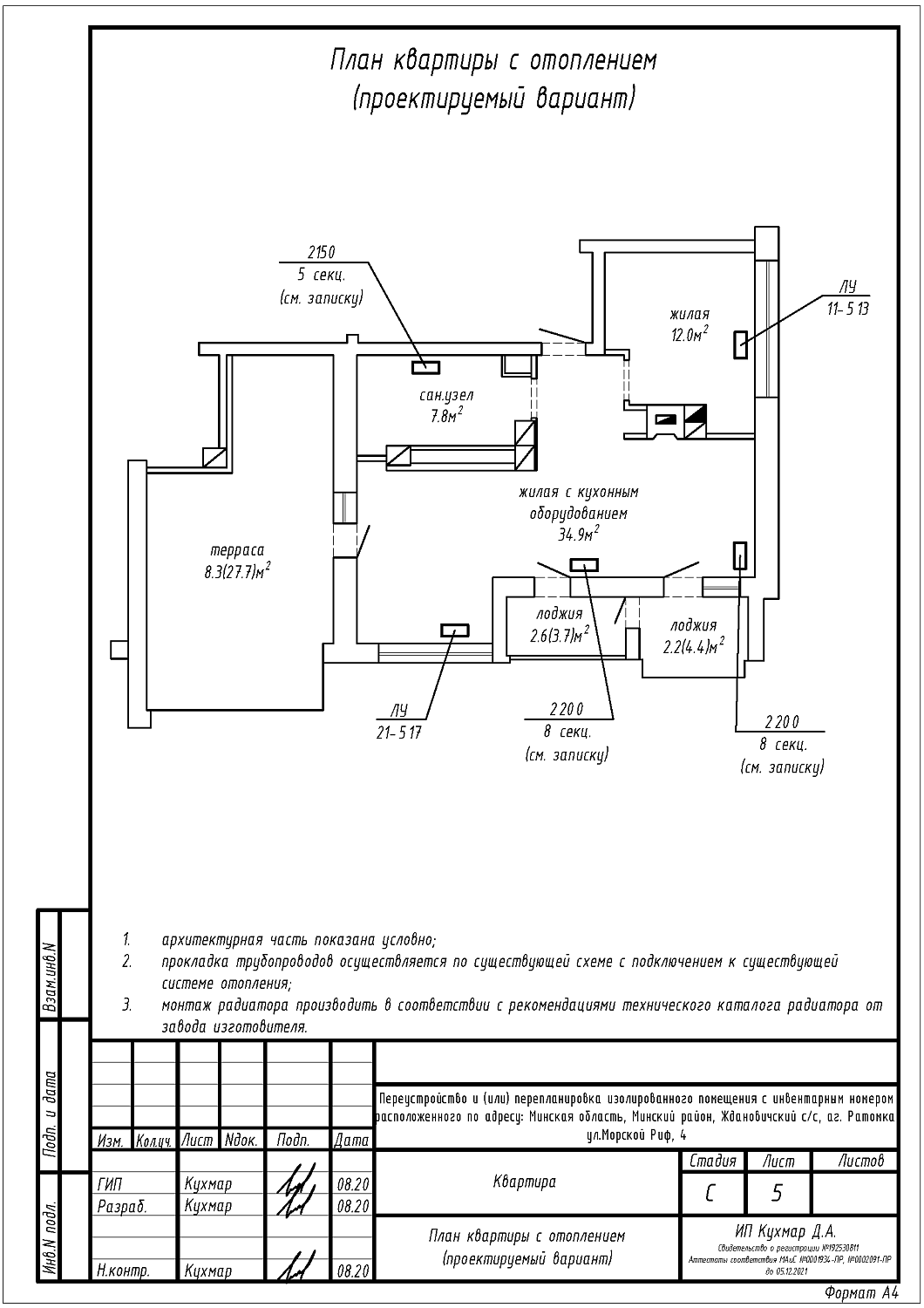
Перепланировка квартиры по ул. Морской Риф, 4 в ЖК «Пирс»
Пожелания заказчика:
- Разделение общего жилого помещения на жилую с кухонным оборудованием и жилую;
- Изменение габаритов санузла;
- Устройство зашивок из ГКЛ на площади санузла;
- Замена и перенос нагревательных приборов.
Нами были разработаны следующие разделы проектной документации для согласования в исполкоме:
- АС - архитектурно-строительные решения;
- ОВ - отопление и вентиляция.
