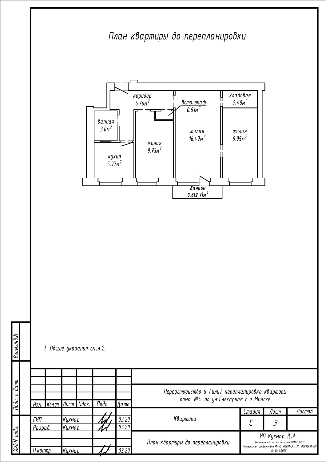
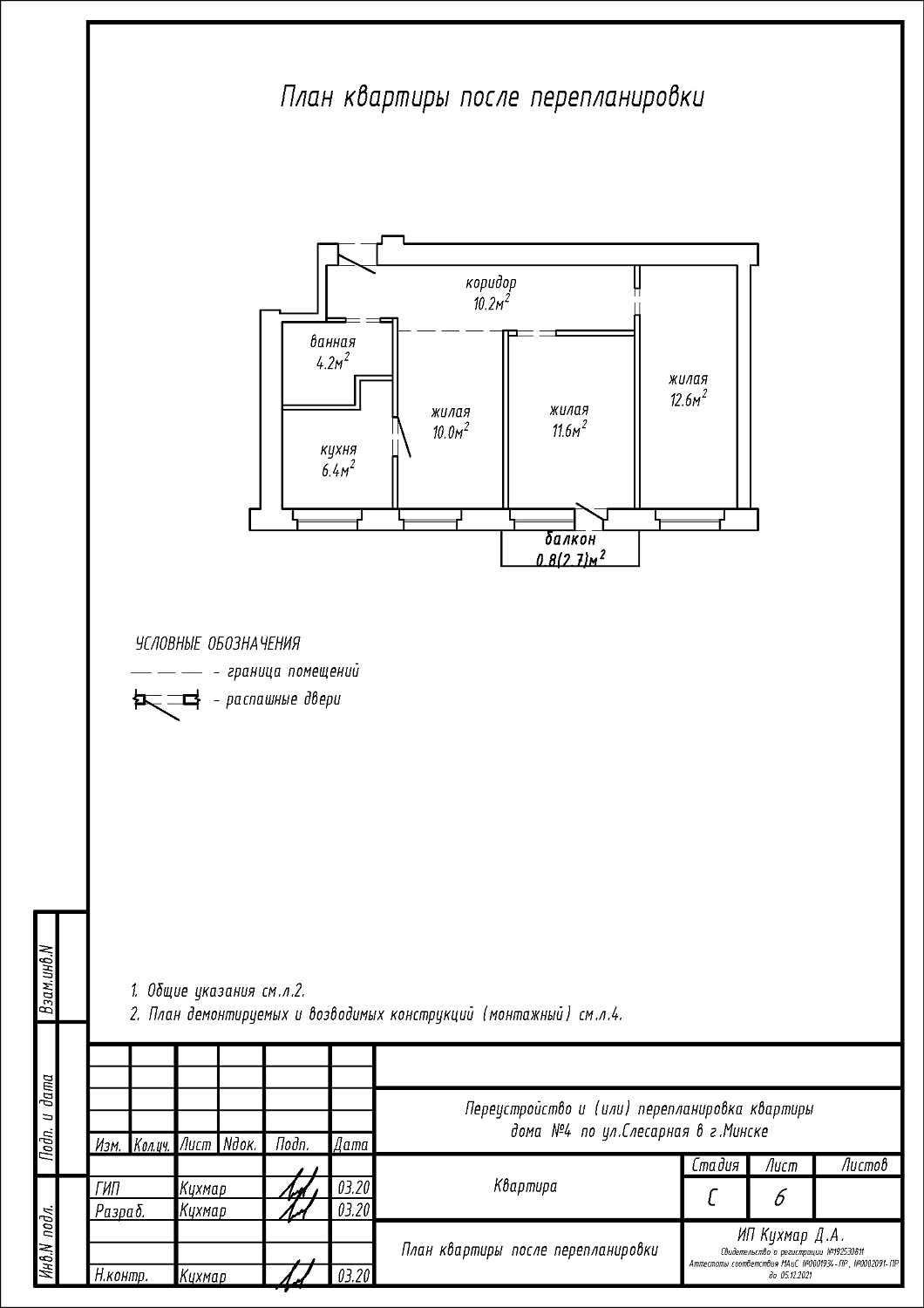
Перепланировка квартиры по ул. Слесарная, 4 в г. Минске
Пожелания заказчика:
- Закладка дверного проёма между жилой 16.47 м2 и жилой 9.95 м2;
- Демонтаж перегородок в кладовой, с целью объединения с жилой комнатой 9.95 м2;
- Закладка дверного проёма между кухней и коридором;
- Устройство дверного проёма между кухней и жилой комнатой;
- Демонтаж встроенного шкафа;
- Увеличение площади ванной за счёт части площади коридора;
- Демонтаж перегородок между жилой комнатой 9.73 м2 и коридором; между коридором и жилой 16.47 м2.
- АС - архитектурно-строительные решения.
