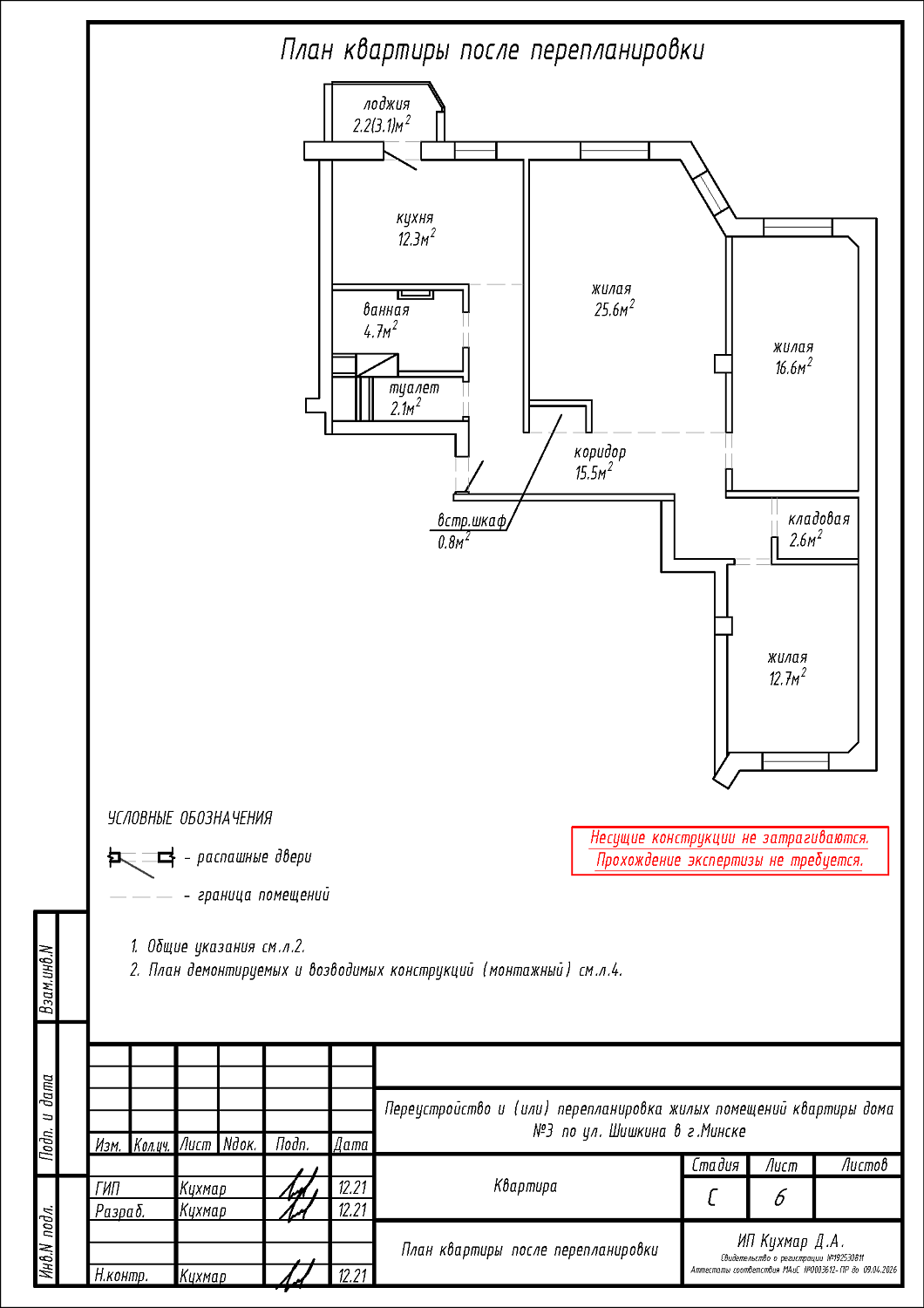
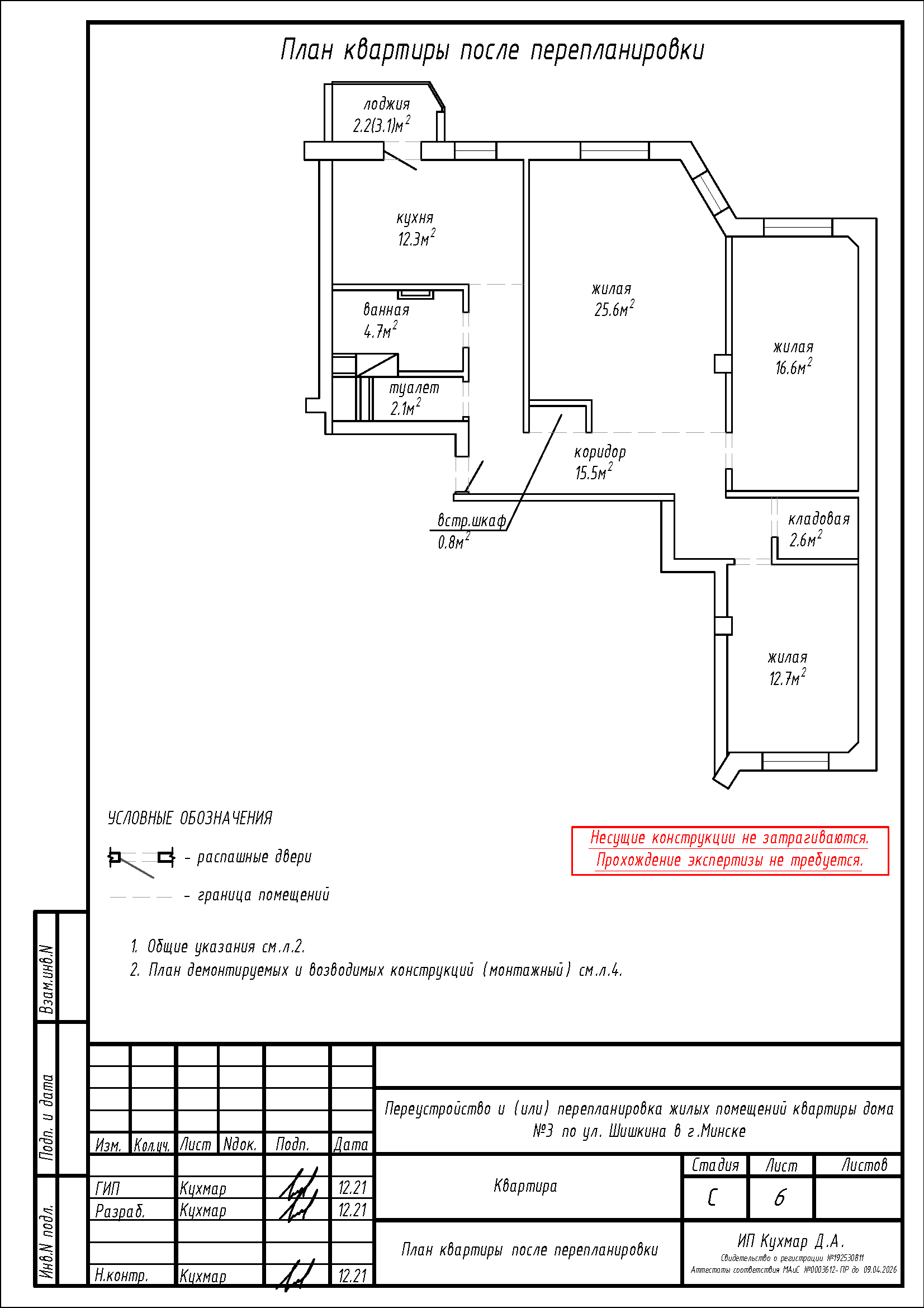
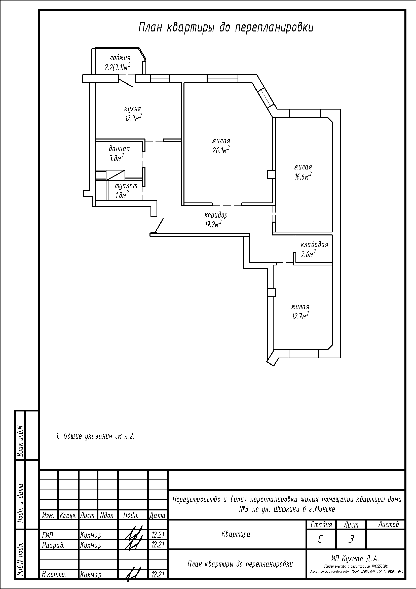
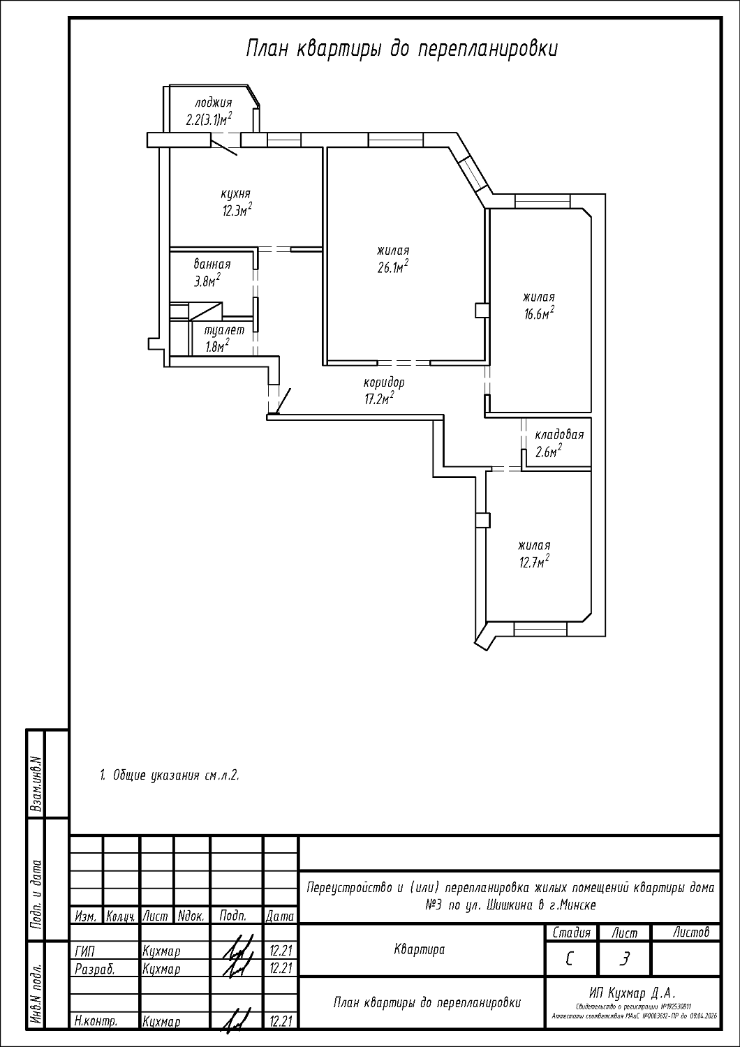
Перепланировка квартиры по ул. Шишкина, 3 в ЖК «Малая Родина»
Пожелания заказчика:
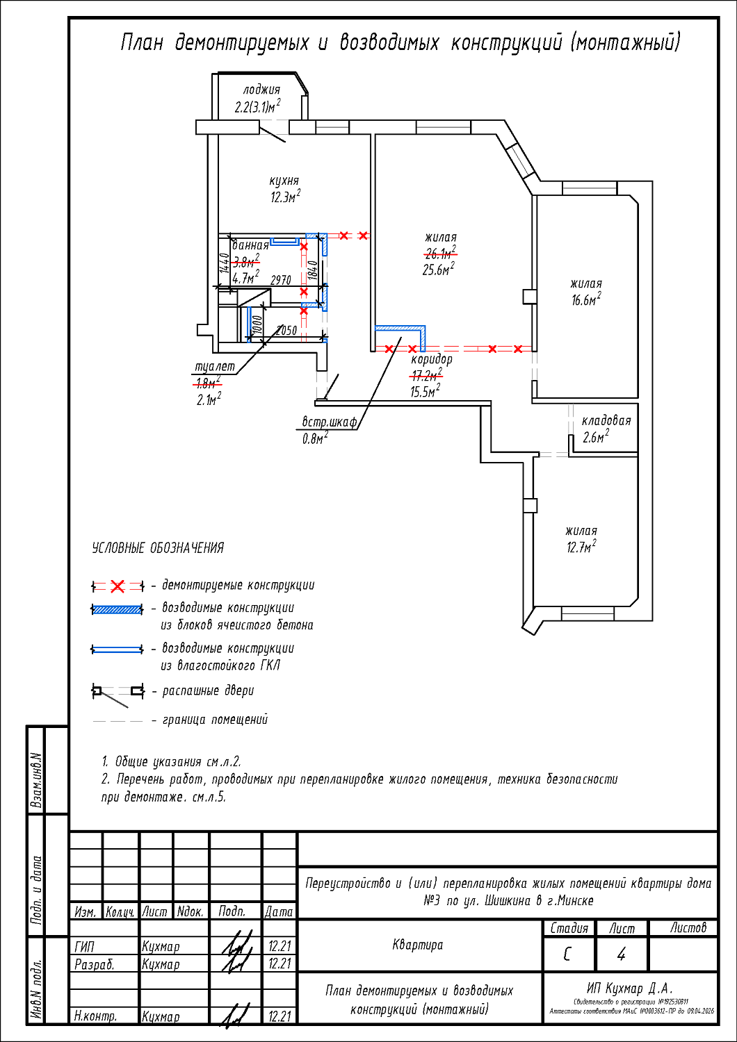
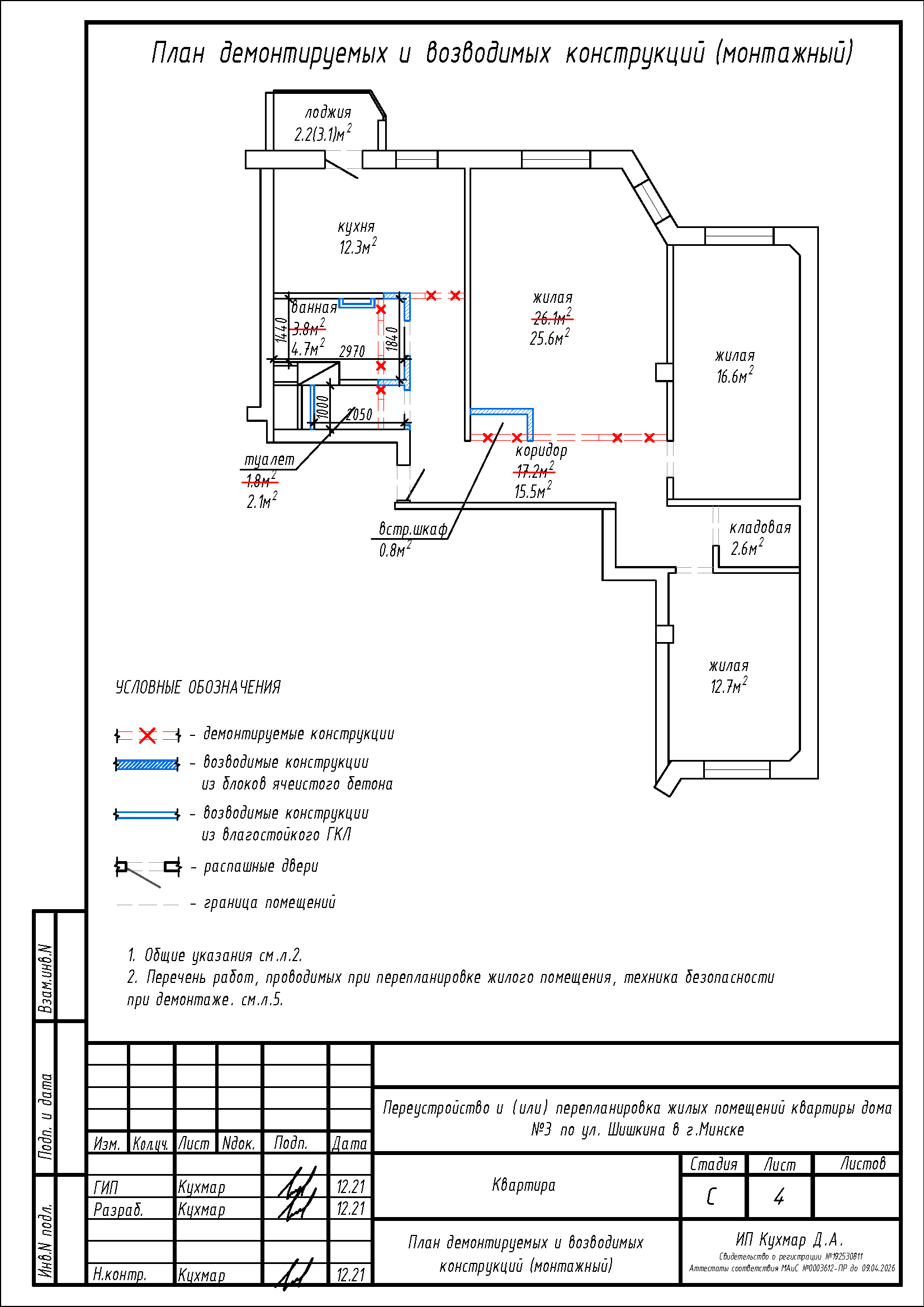
- Демонтаж перегородок между жилой комнатой и коридором;
- Демонтаж перегородки в кухню;
- Увеличение площади ванной и туалета за счёт коридора;
- Оборудование шкафа-купе в жилой комнате.
Нами были разработаны следующие разделы проектной документации для согласования в исполкоме:
- АС - архитектурно-строительные решения.
