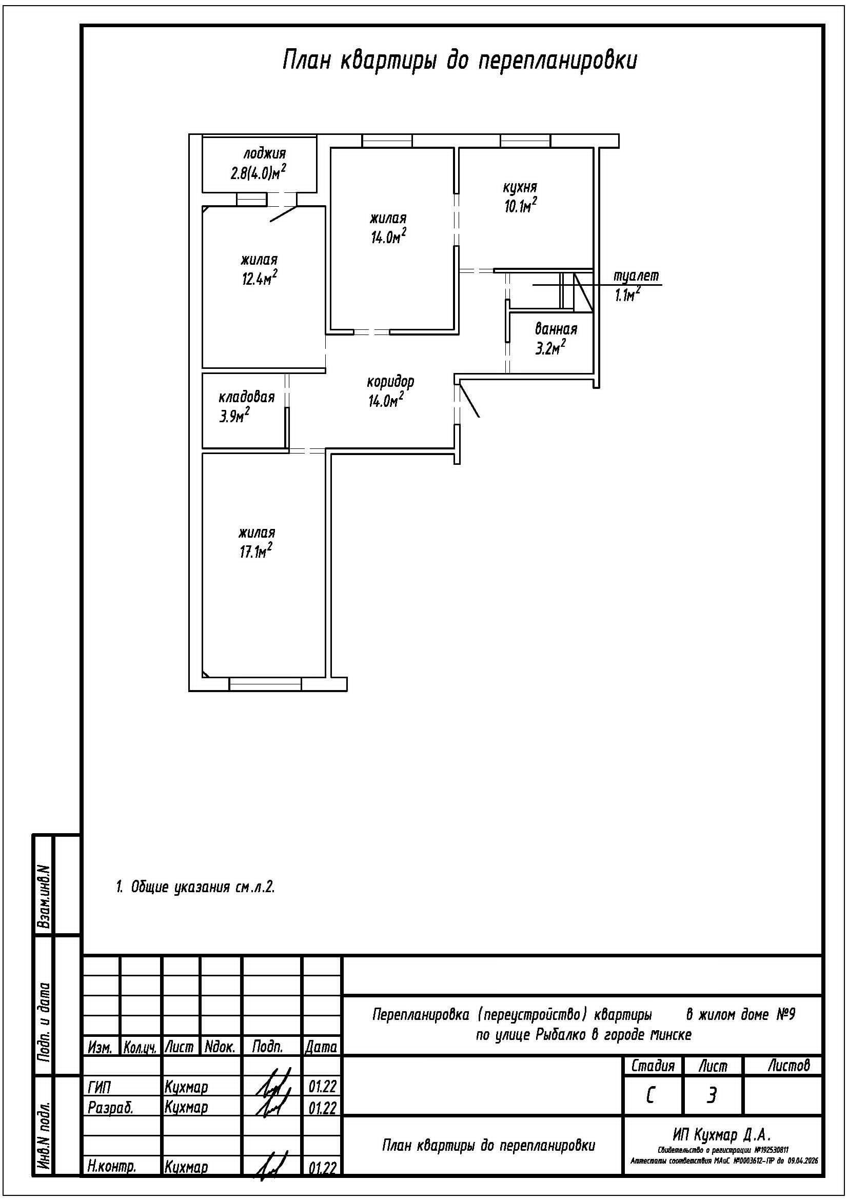
Перепланировка квартиры по ул. Рыбалко, 9 в ЖК «Антоновский квартал»
Пожелания заказчика:
- Объединение ванной и туалета в санузел;
- Увеличение санузла за счёт коридора;
- Закладка дверного проема на кухню.
Нами были разработаны следующие разделы проектной документации для согласования в исполкоме:
- АС - архитектурно-строительные решения.
