Перепланировка квартиры по ул. Ратомская, 7 в ЖК «Браславский»
Пожелания заказчика:
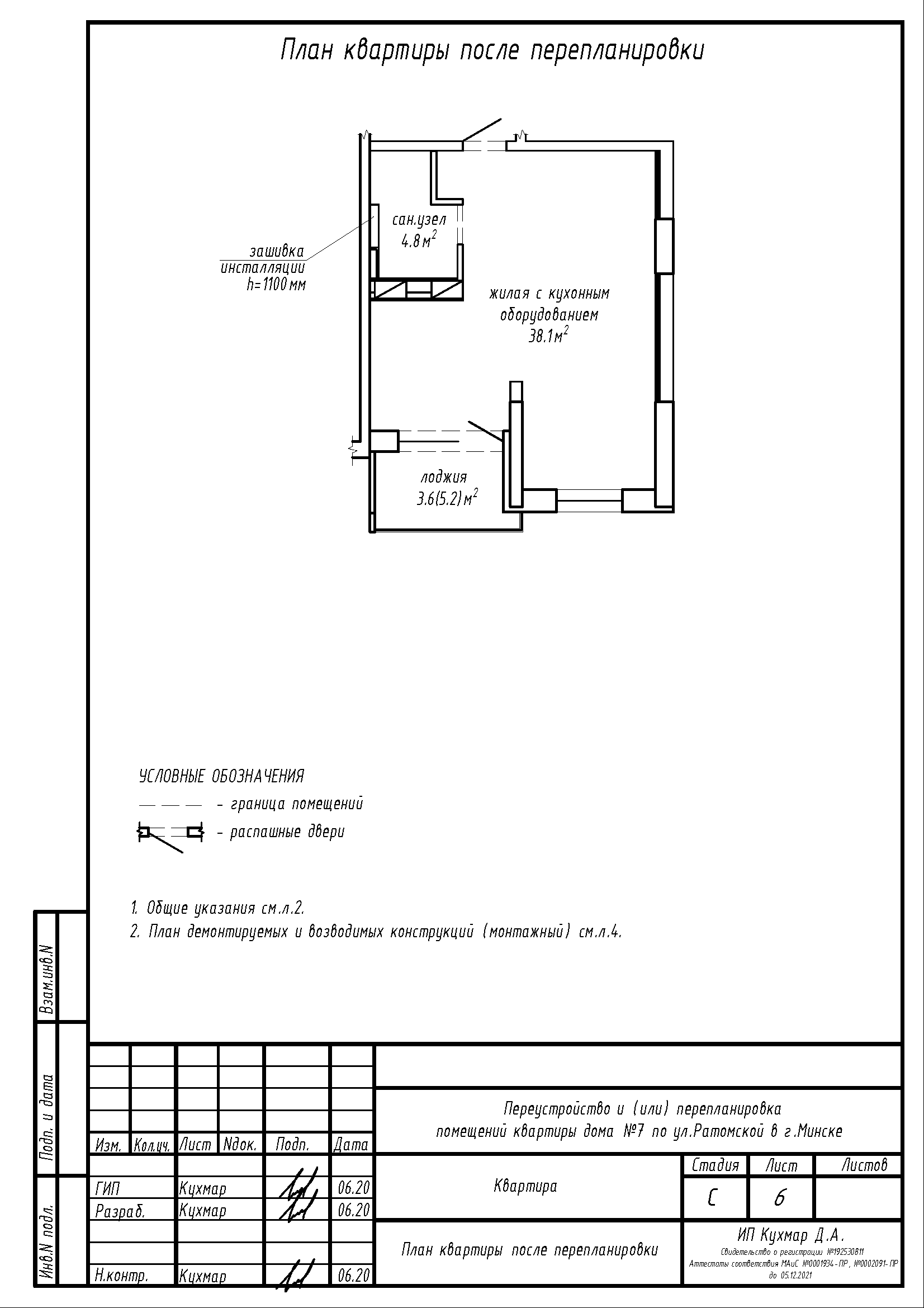
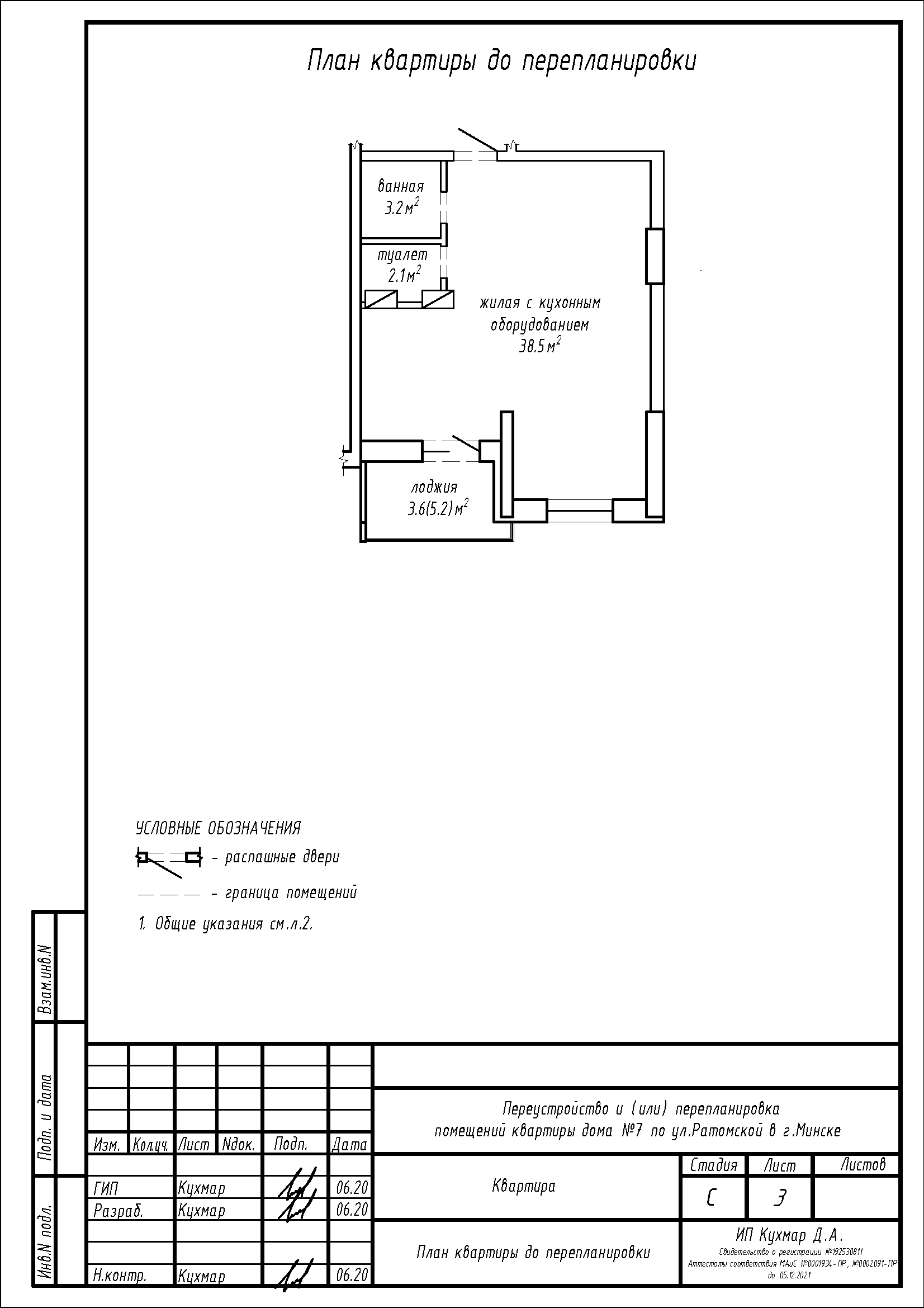
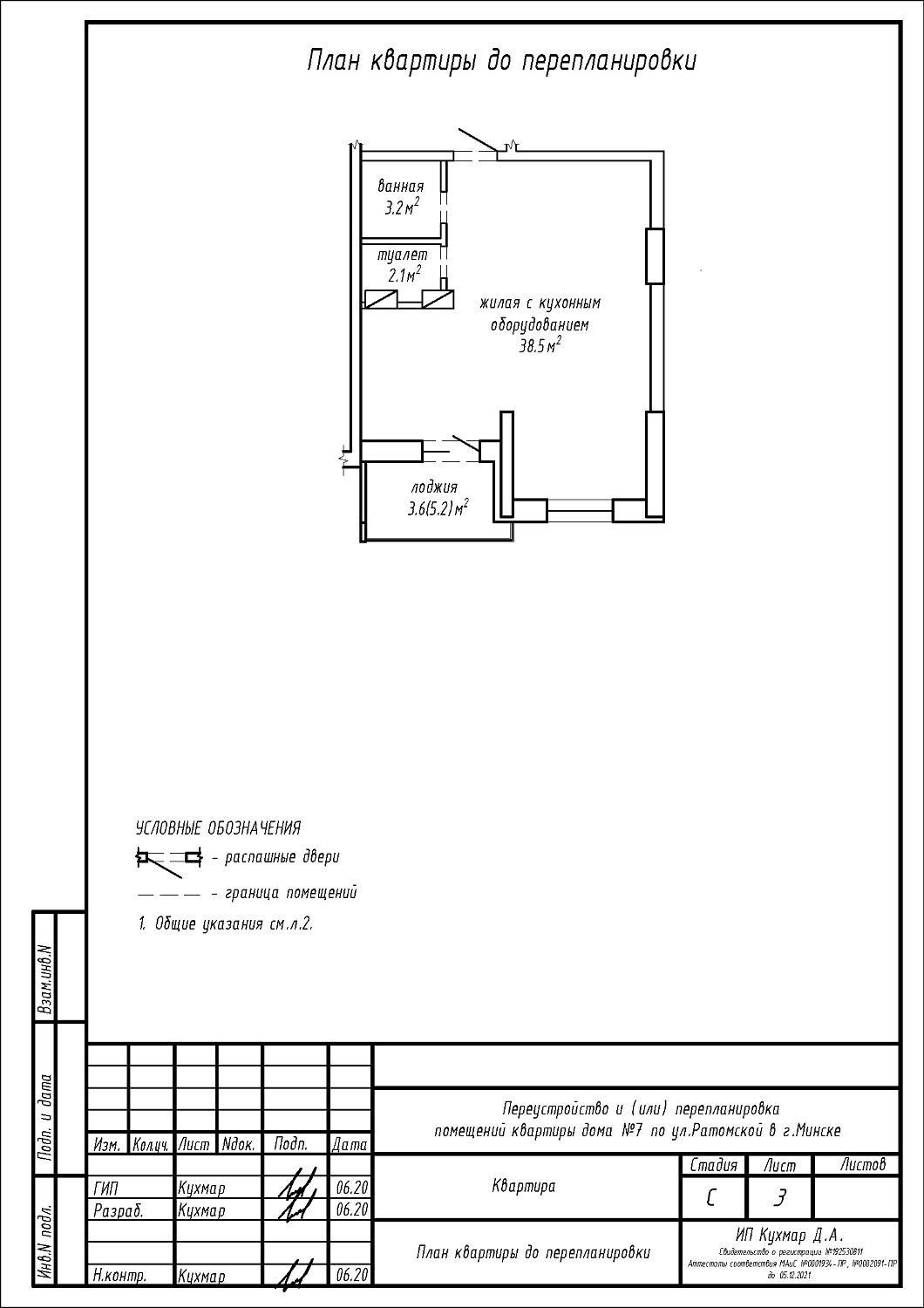
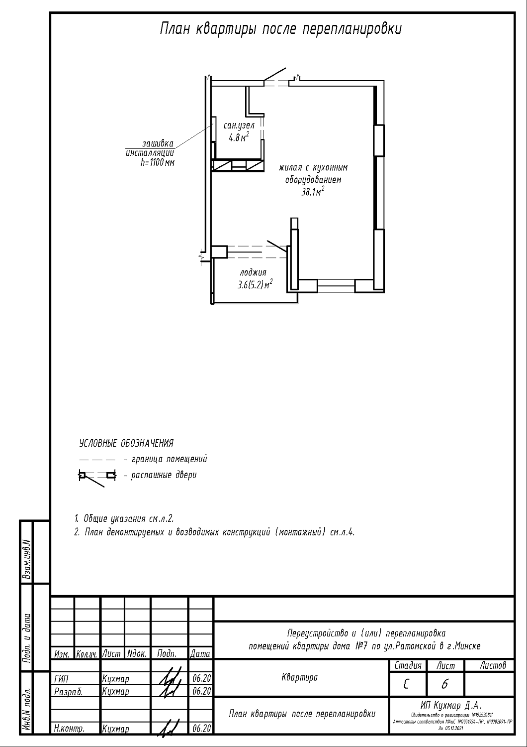
- Демонтаж перегородок между ванной, туалетом и жилой комнатой с кухонным оборудованием площадью 38.5 м2 с последующим устройством новых перегородок, образованием жилой комнаты с кухонным оборудованием и сан.узла;
- Демонтаж оконного и дверного блоков, части простенков между жилой комнатой с кухонным оборудованием площадью 38.5 м2 и лоджией с последующим устройством нового оконного и дверного блоков без создания отапливаемого помещения;
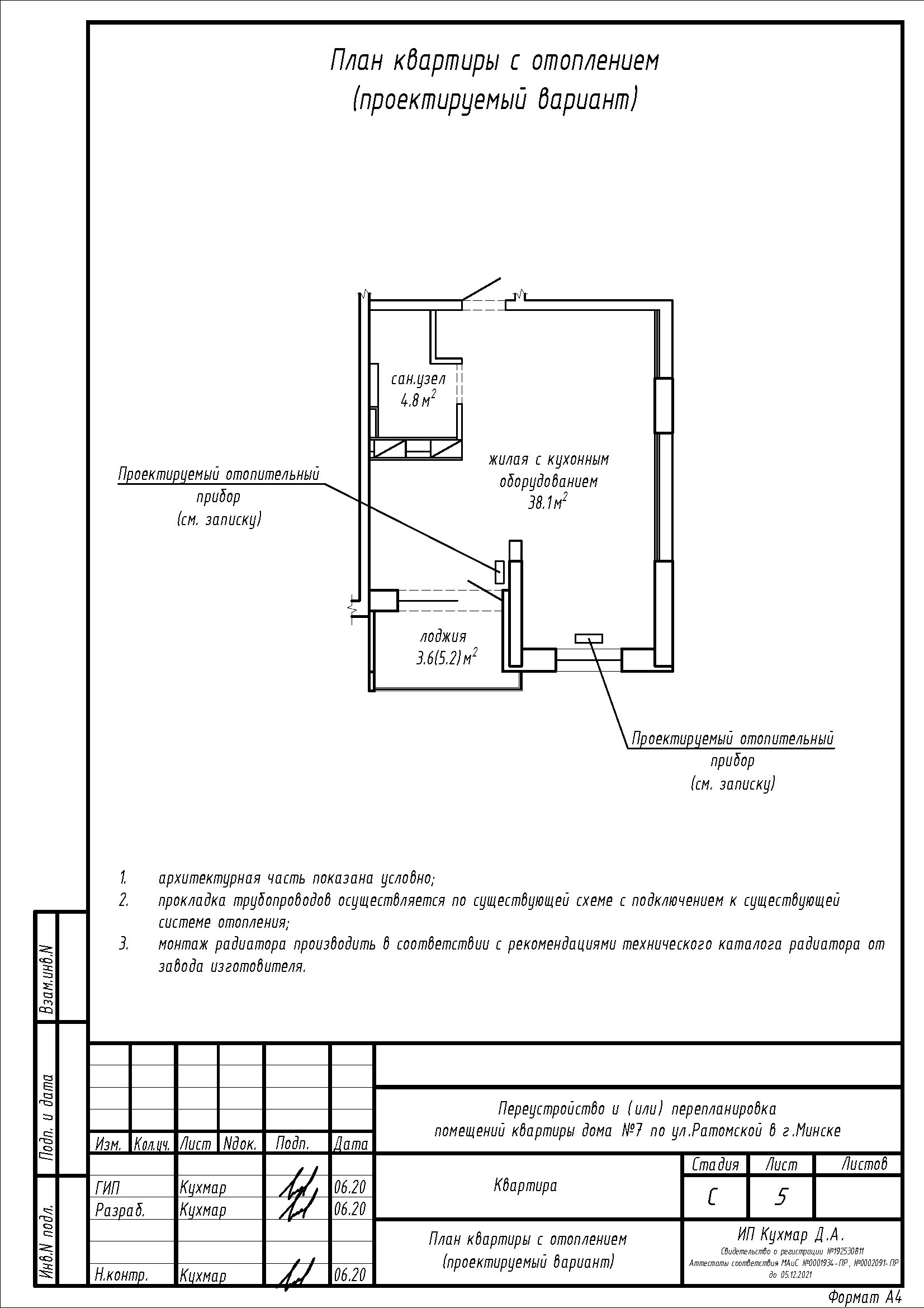
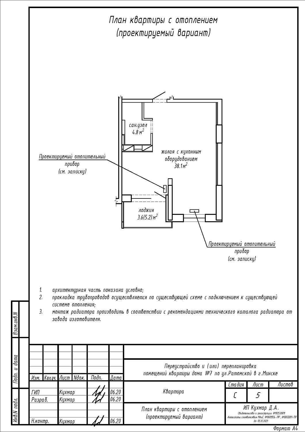
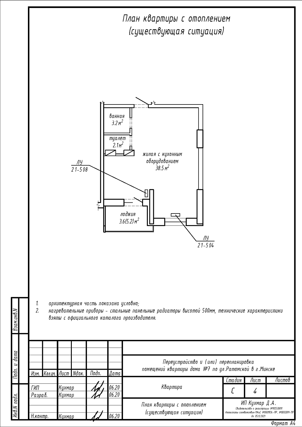
- Замена отопительных приборов.
Нами были разработаны следующие разделы проектной документации для согласования в исполкоме:
- АС - архитектурно-строительные решения;
- ОВ - отопление и вентиляция.
