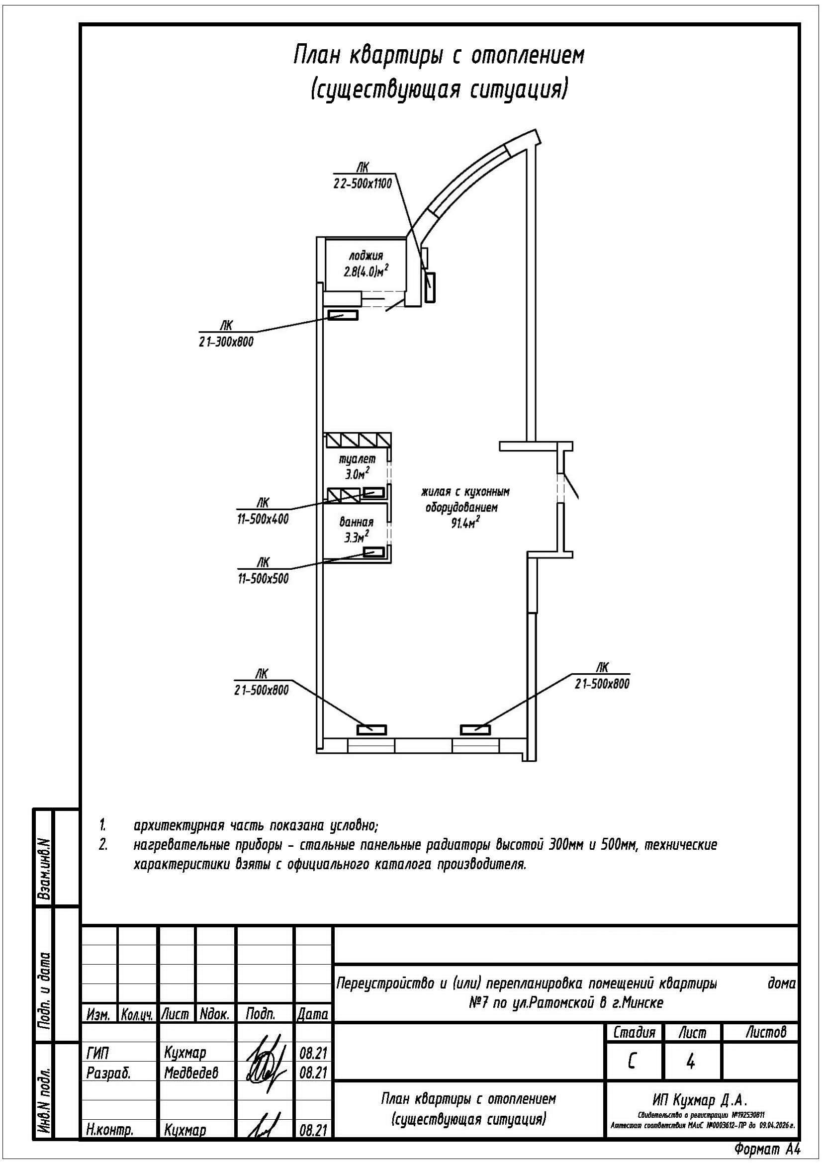
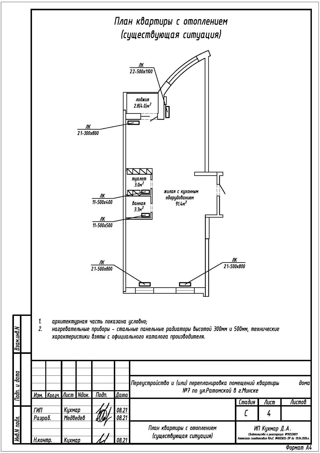
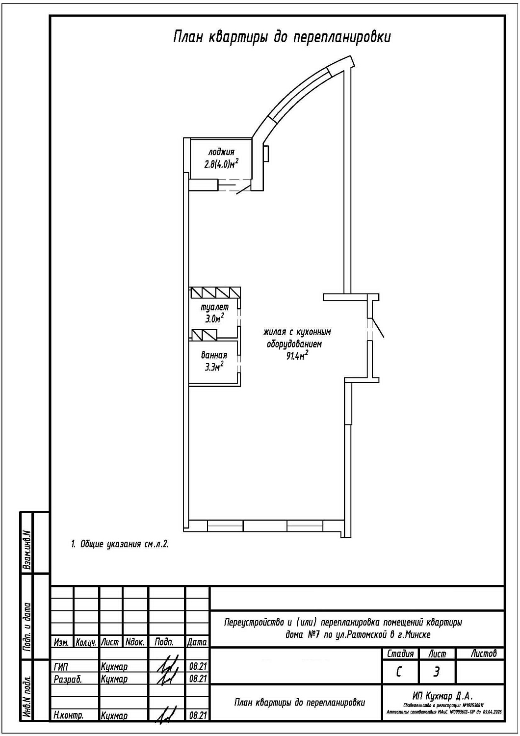
Перепланировка квартиры по ул. Ратомская, 7 в ЖК «Браславский»
Пожелания заказчика:
- Устройство санузлов на месте ванной и туалета;
- Увеличение площади санузла за счет жилой с кухонным оборудованием (не более 25%);
- Разделение общего помещения жилой с кухонным оборудованием на три жилые, кухню, коридор;
- Перенос и замена отопительных приборов.
Нами были разработаны следующие разделы проектной документации для согласования в исполкоме:
- АС - архитектурно-строительные решения;
- ОВ - отопление и вентиляция.
