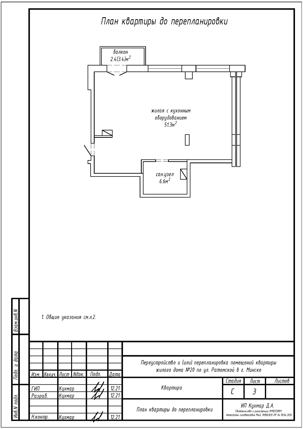
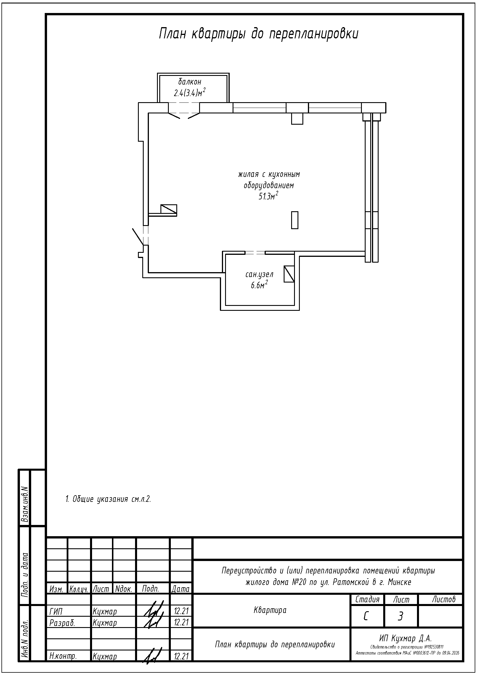
Перепланировка квартиры по ул. Ратомская, 20 в ЖК «Олимпик Парк»
Пожелания заказчика:
- Разделение жилой с кухонным оборудованием на жилую с кухонным оборудованием, жилую, гардеробную и коридор;
- Увеличение площади санузла, но не более чем на 25%;
- Устройство зашивки коммуникации и инсталляции на части площади санузла;
- Устройство зашивок из ГКЛ на части площади жилой с кухонным оборудованием.
Нами были разработаны следующие разделы проектной документации для согласования в исполкоме:
- АС - архитектурно-строительные решения.
