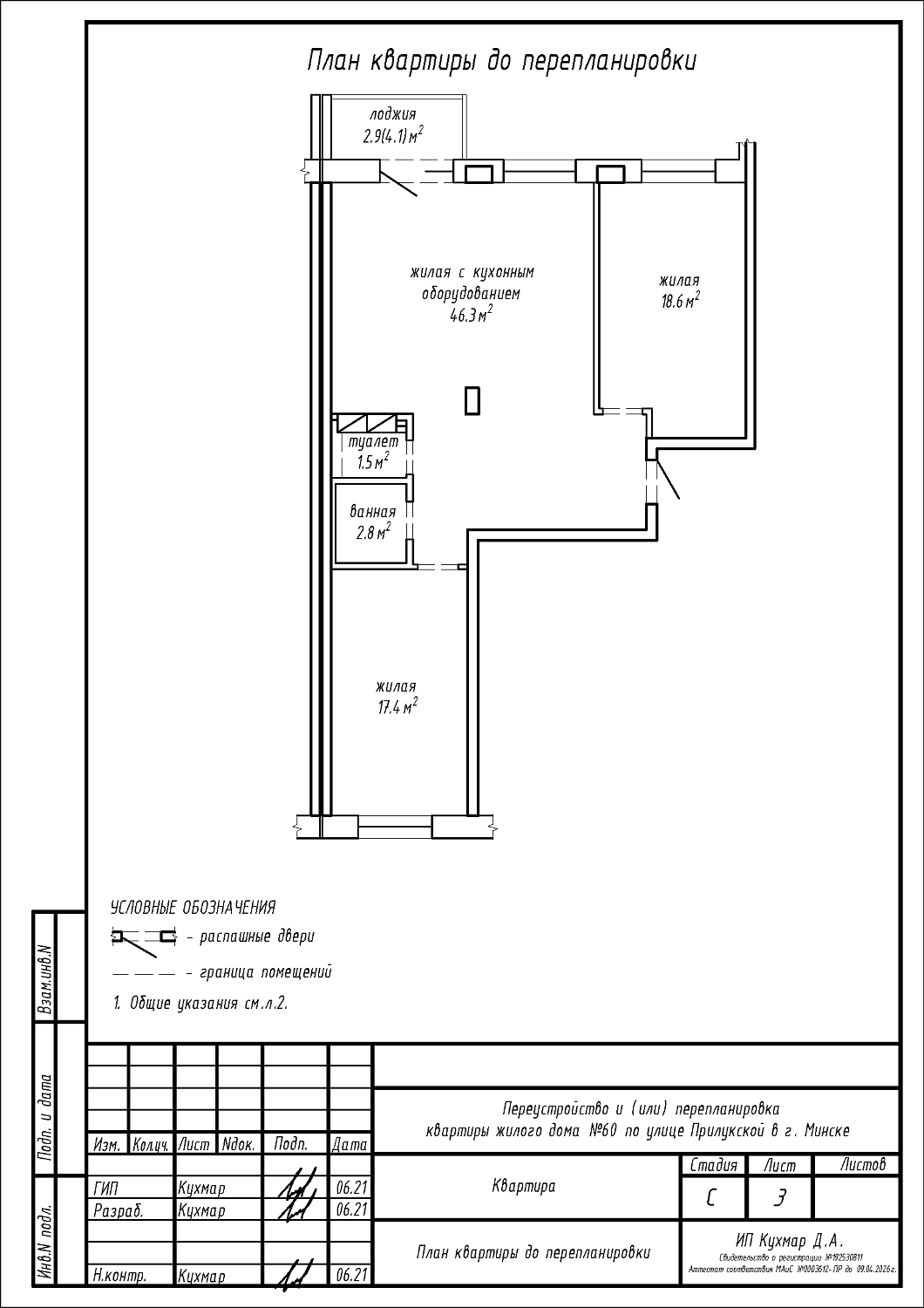
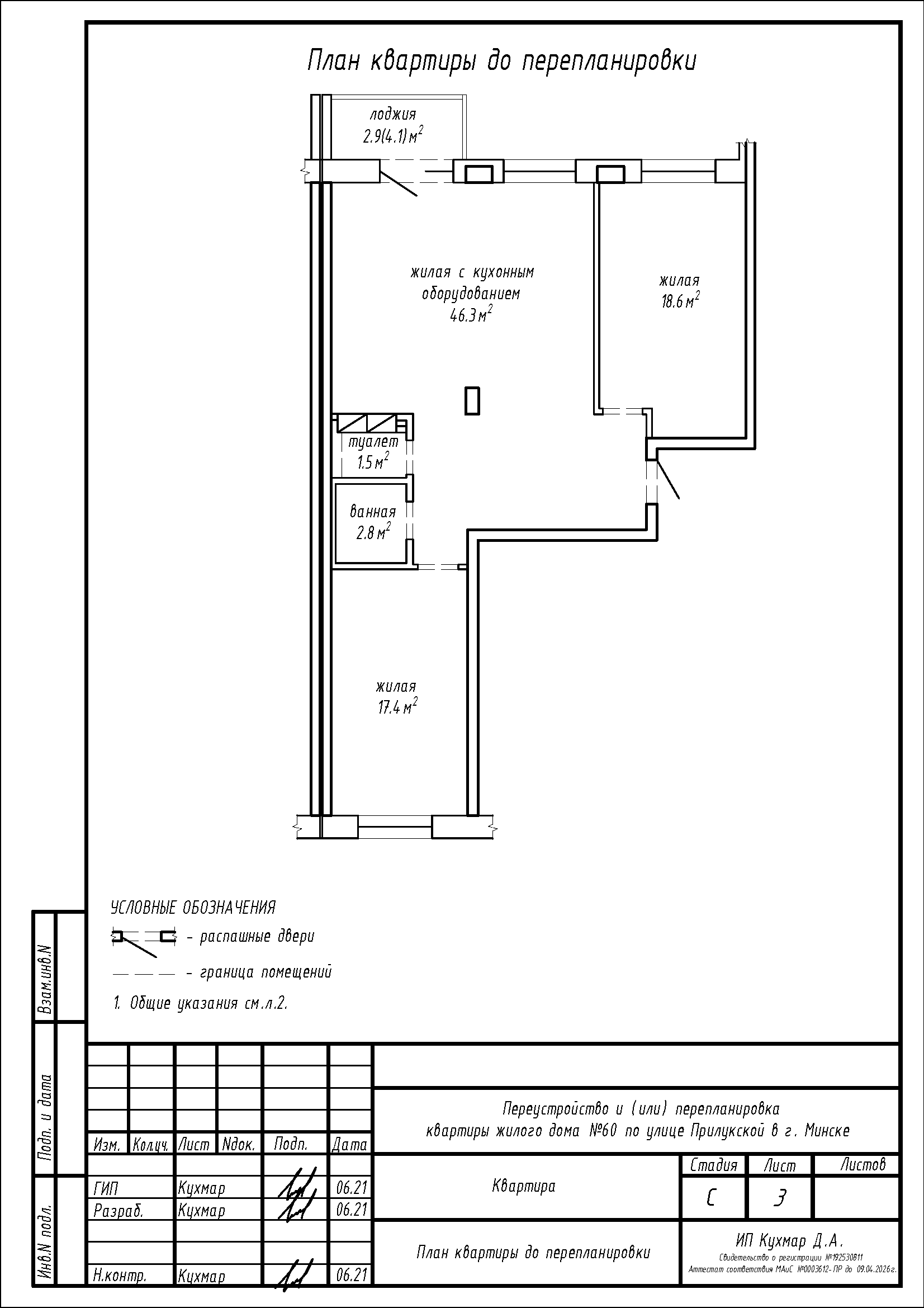
Перепланировка квартиры по ул. Прилукская, 60 в г.Минске
Пожелания заказчика:
- Разделение общей жилой с кухонным оборудованием на кухню, жилую и коридор;
- Увеличение площади ванной за счёт площади жилой, но не более чем на 25%;;
- Устройство зашивок стояков труб в туалете.
Нами были разработаны следующие разделы проектной документации для согласования в исполкоме:
- АС - архитектурно-строительные решения.
