Перепланировка квартиры по ул. Плеханова, 52/1 в г. Минске
Пожелания заказчика:
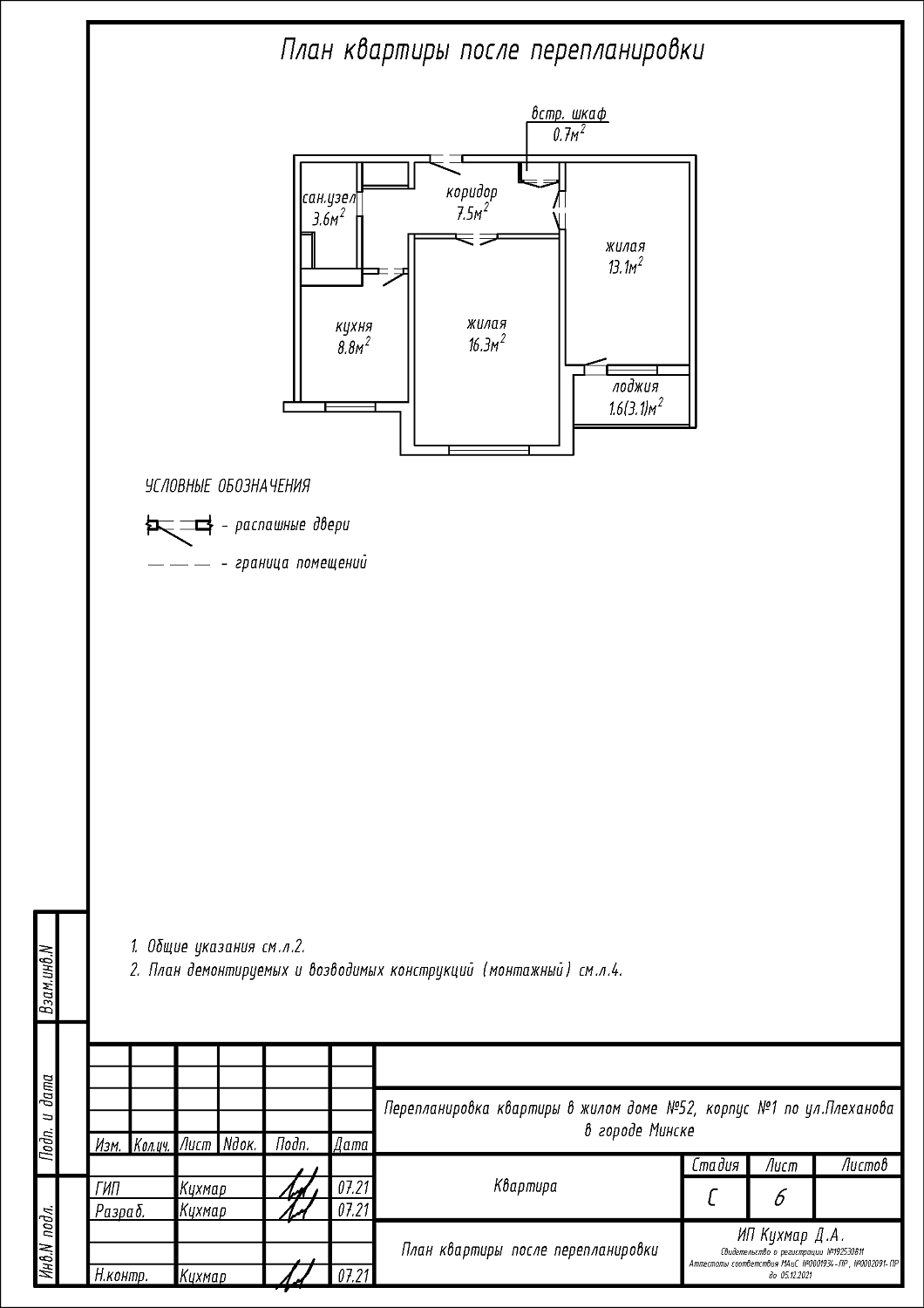
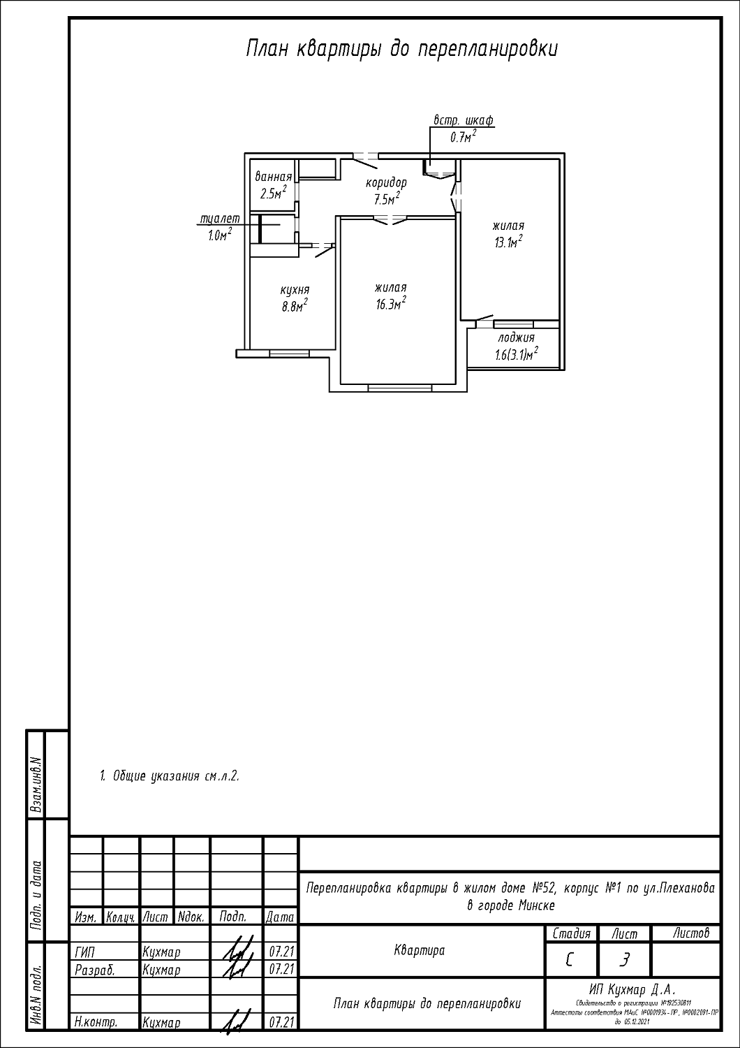
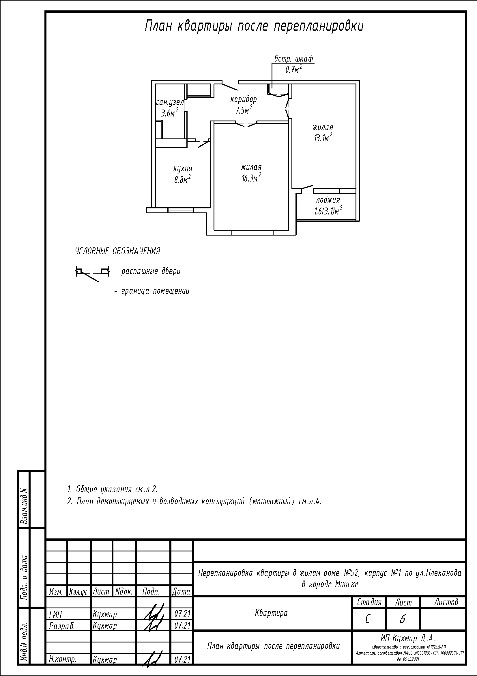
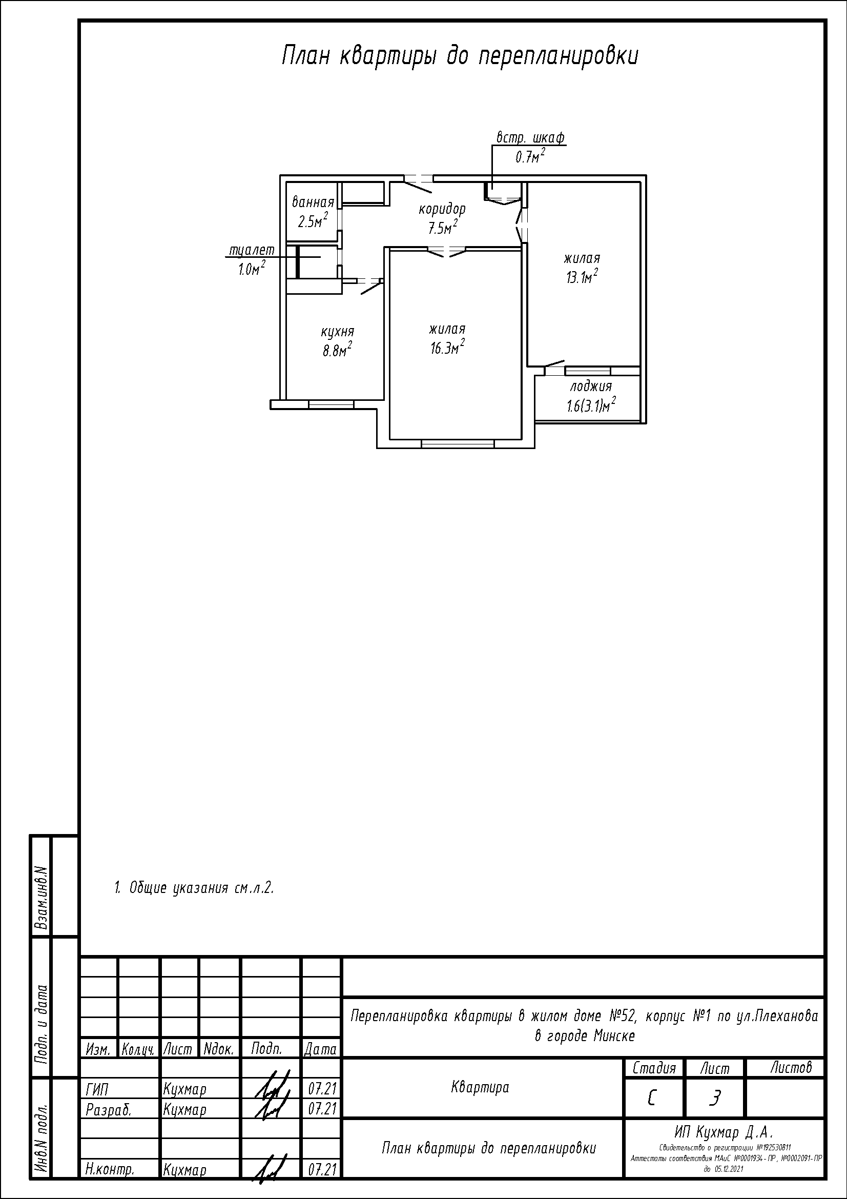
- Объединение ванной и туалета в единый санузел.
Нами были разработаны следующие разделы проектной документации для согласования в исполкоме:
- АС - архитектурно-строительные решения.
