Перепланировка квартиры по ул. Шаранговича, 49 корпус 1 в г. Минске
Пожелания заказчика:
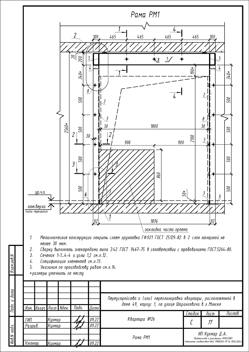
- Устройство дверного проёма в несущей стене между жилой и кухней;
- Закладка дверного проёма между кухней и коридором;
- Объединение ванной и туалета в единый санузел;
- Увеличение площади санузла;
- Демонтаж подоконной части стены между жилой и лоджией, с последующей установкой дверного блока.
Нами были разработаны следующие разделы проектной документации для согласования в исполкоме:
- АС - архитектурно-строительные решения.
