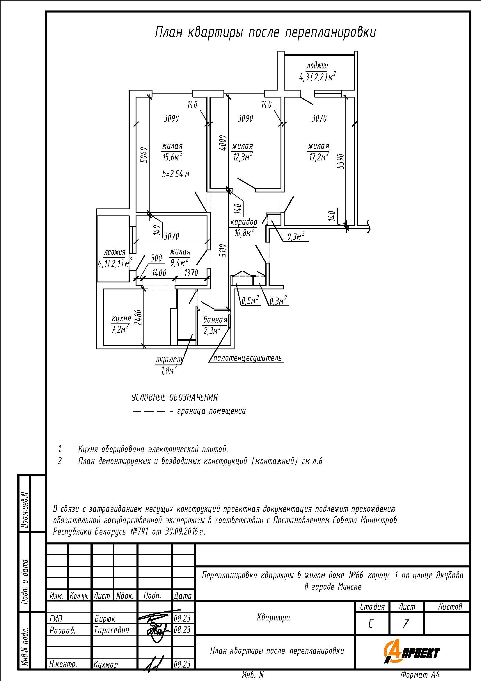
Перепланировка квартиры по ул. Якубова, 66/1 в г. Минске
Пожелания заказчика:
- Устройство дверного проёма в несущей стене между кухней и жилой;
- Закладка дверного проёма между кухней и коридором;
- Устройство туалета на площади существующего туалета.
Нами были разработаны следующие разделы проектной документации для согласования в исполкоме:
- АС - архитектурно-строительные решения.
