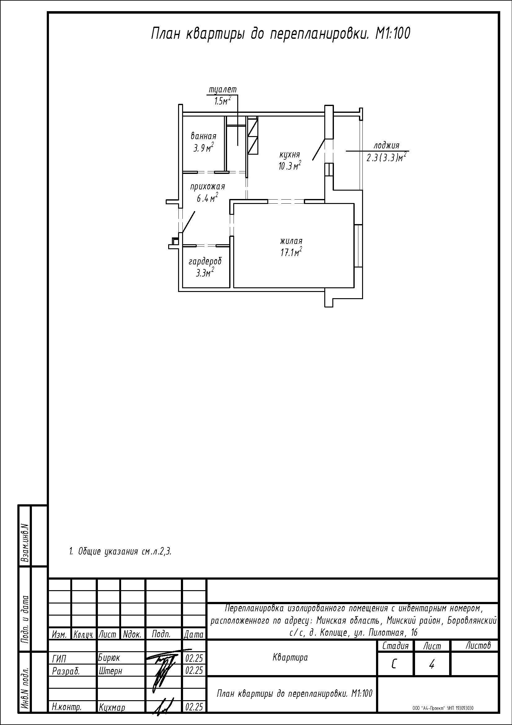
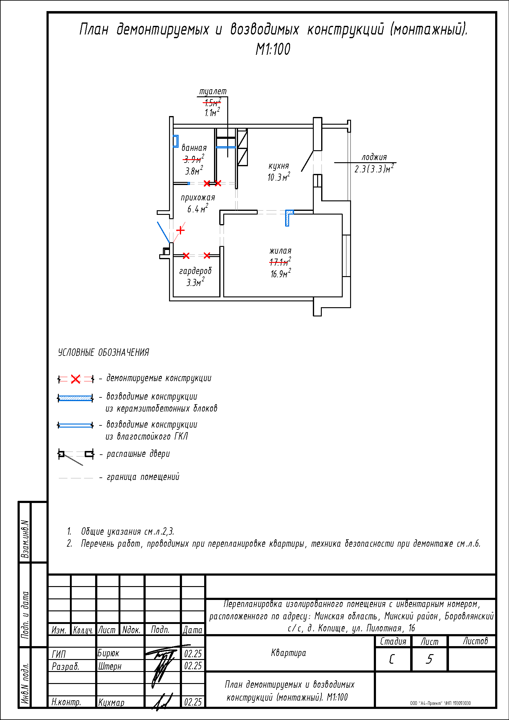
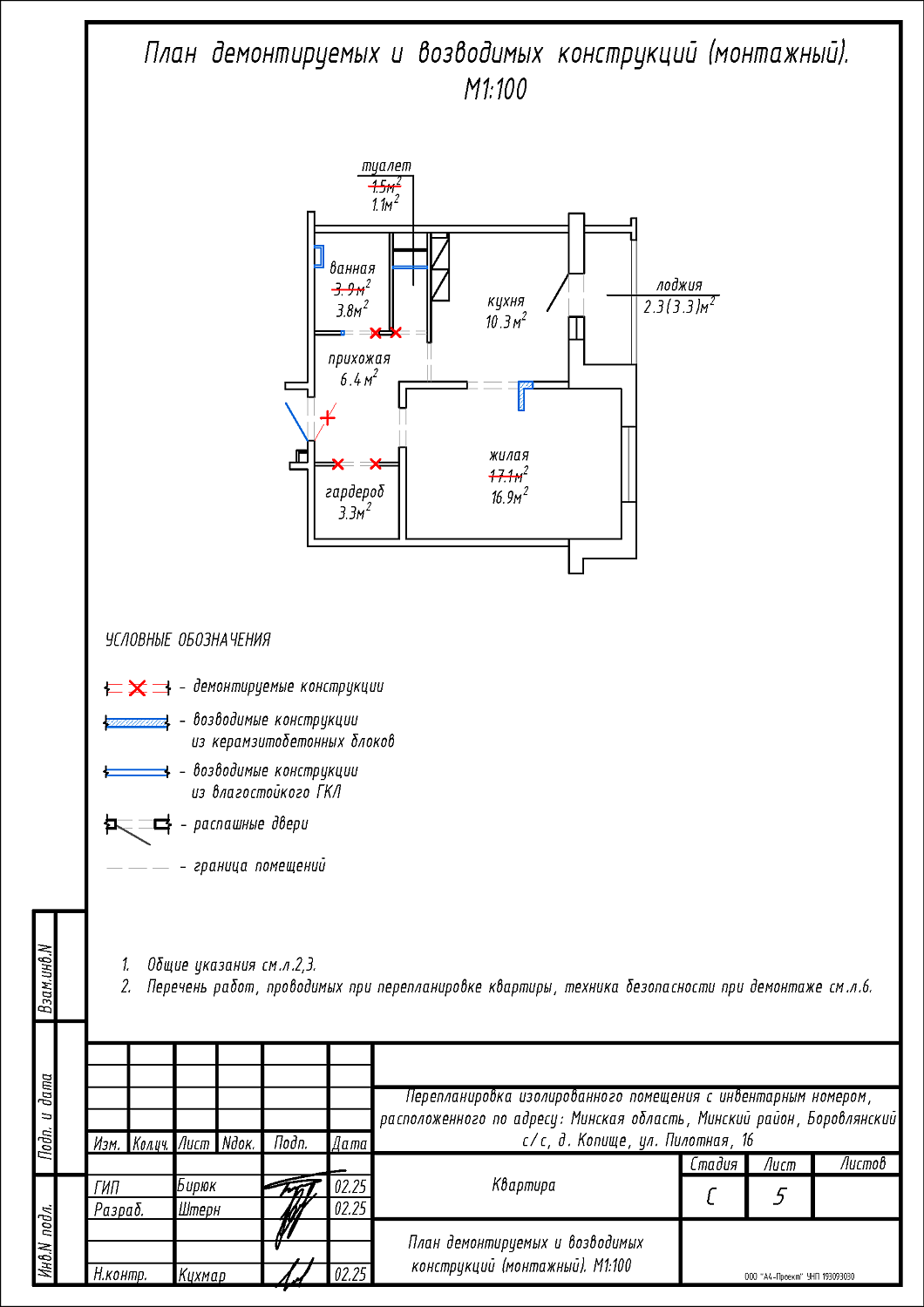
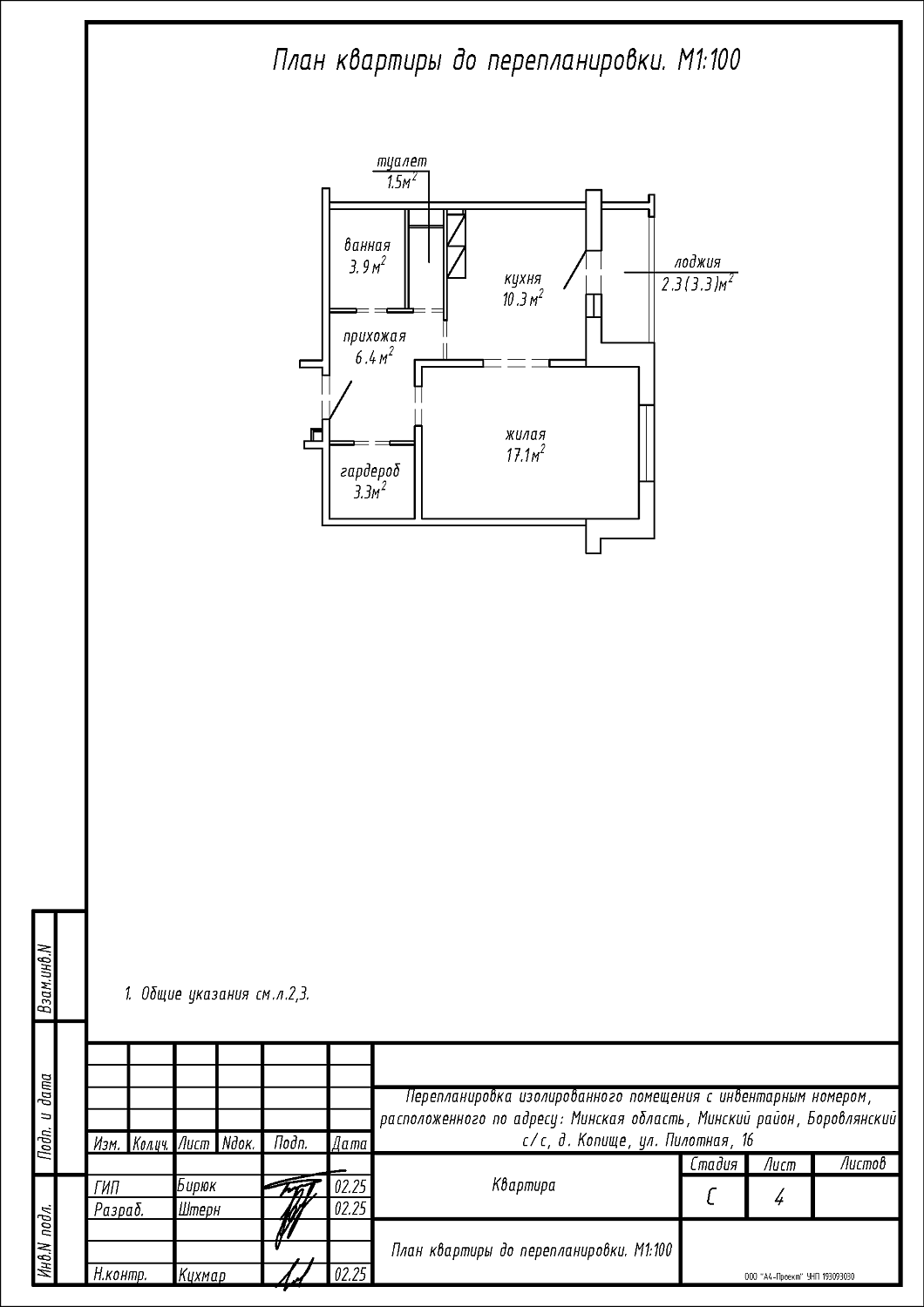
Перепланировка квартиры по ул. Пилотная, 16 в ЖК «Новая Боровая»
Пожелания заказчика:
- Устройство перегородки дверного проема между кухней и жилой (уменьшение дверного проема);
- Устройство перегородки на площади жилой;
- Демонтаж части существующих перегородок дверного проема между гардеробом и прихожей, туалетом и прихожей (увеличение дверных проемов);
- Демонтаж части существующей перегородки дверного проема между ванной и прихожей с последующим устройством перегородки дверного проема между ванной и прихожей (смещение дверного проема);
- Устройство дополнительной гидроизоляции между туалетом и прихожей, ванной и прихожей;
- Смена направления открывания входной двери;
- Устройство зашивки ГКЛ на части площади ванной.
Нами были разработаны следующие разделы проектной документации для согласования в исполкоме:
- АС - архитектурно-строительные решения.
