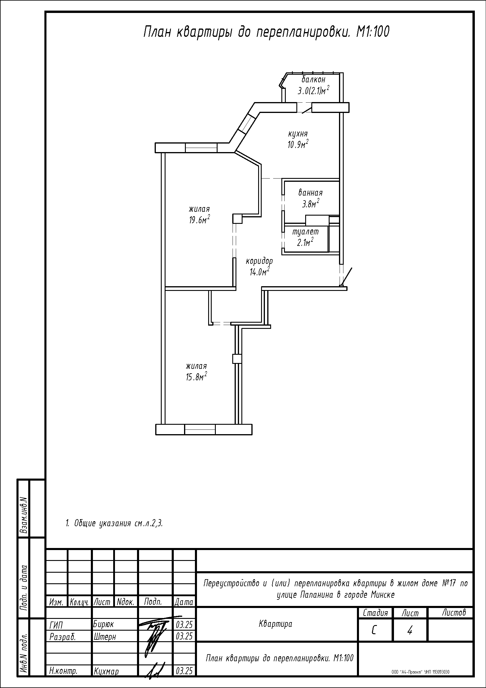
Перепланировка квартиры по ул. Папанина, 29 в ЖК «Ясный» в г. Минске
Пожелания заказчика:
- Демонтаж перегородок с дверными проемами между жилыми и коридором, между кухней и коридором;
- Демонтаж перегородки между жилой площадью 19,6 кв.м и коридором, между кухней и жилой;
- Демонтаж перегородки в санузле, закладка дверных проемов между санузлами и коридором, устройство дверного проема в перегородке между санузлом и коридором с целью устройства санузла на площади санузлов с устройством гидроизоляции;
- Устройство перегородок в кухне, перегородки в коридоре;
- Устройство перегородок с дверным проемом в жилой пл.15,8 кв.м с целью устройства гардероба на части площади жилой.
Нами были разработаны следующие разделы проектной документации для согласования в исполкоме:
- АС - архитектурно-строительные решения.
- ОВ - отопление и вентиляция.


