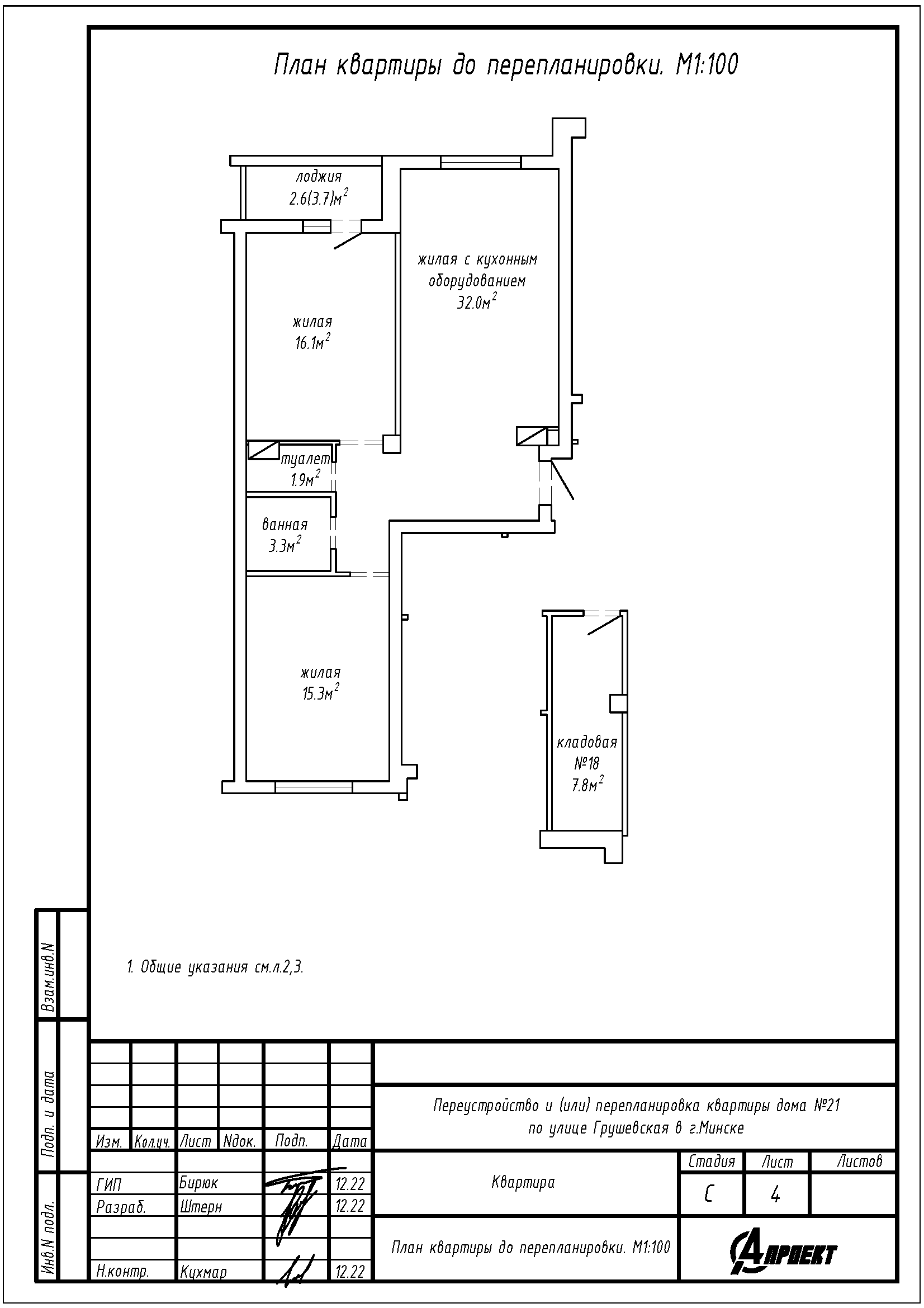
Перепланировка квартиры по ул. Грушевская, 21 в ЖК «Минский квартал»
Пожелания заказчика:
- Устройство санузла на площади туалета;
- Увеличение площади ванной, но не более чем на 25%;
- Устройство перегородки на площади жилой с кухонным оборудованием, с целью устройства жилой с кухонным оборудованием и коридора;
- Устройство зашивок в санузле.
Нами были разработаны следующие разделы проектной документации для согласования в исполкоме:
- АС - архитектурно-строительные решения.
