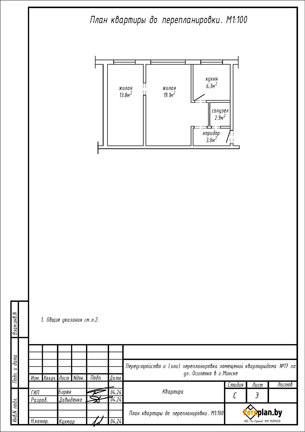
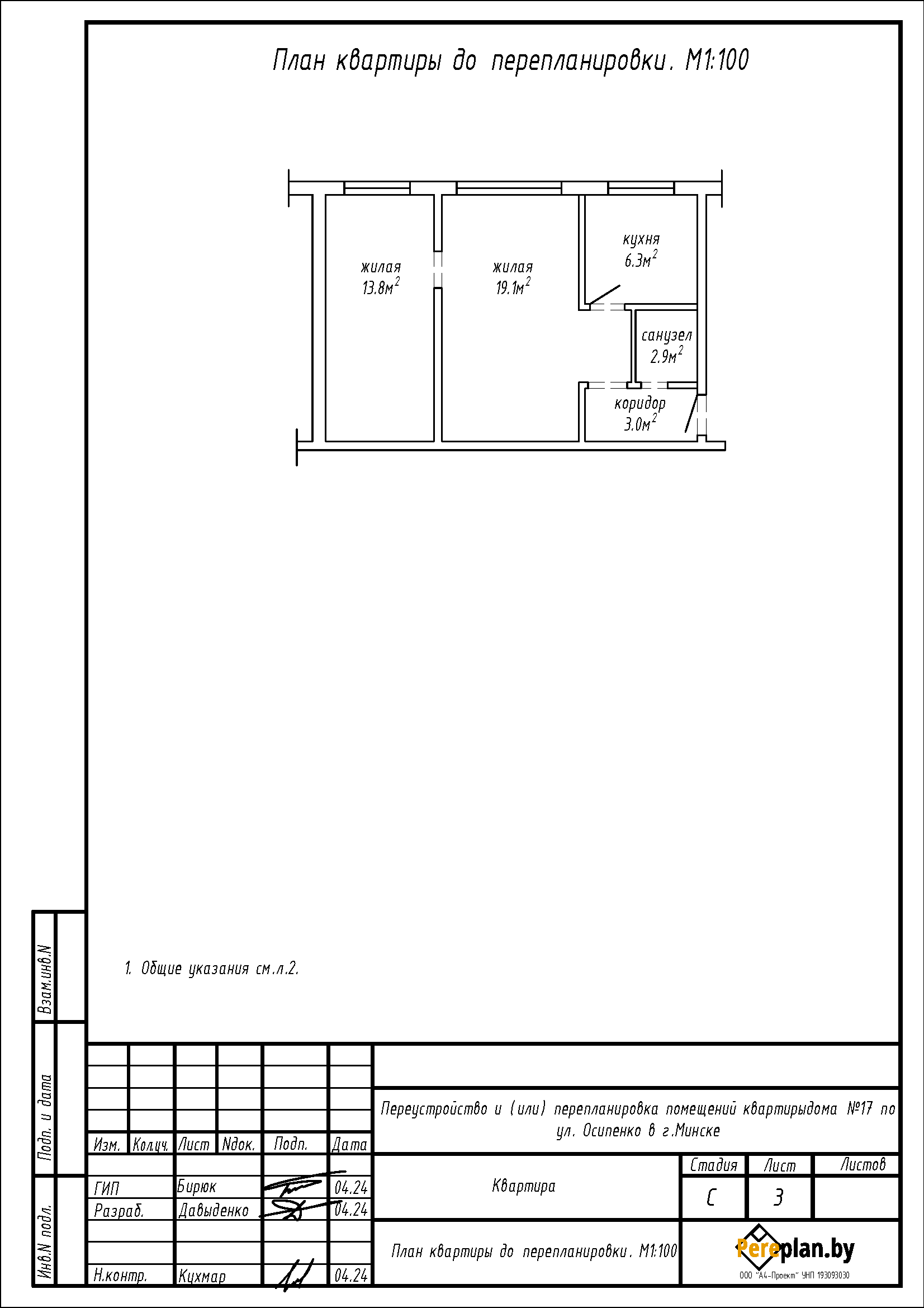
Перепланировка квартиры по ул. Осипенко, 17 в г. Минске
Пожелания заказчика:
- Демонтаж перегородок между коридором и жилой комнатой площадью 19,1 кв.м с последующим устройством новой перегородки, образованием помещений: жилой комнаты, коридора и кладовой;
- Демонтаж дверного блока между кухней и жилой 19.1м2 с последующим устройством перегородки;
- Демонтаж части перегородки между кухней и жилой комнатой площадью 19,1 кв.м с последующим образованием дверного проема с дверью;
- Устройство зашивок ГКЛ на части площади санузла 2.9 м2 и жилой 19.1 м2.
Нами были разработаны следующие разделы проектной документации для согласования в исполкоме:
- АС - архитектурно-строительные решения.


