Перепланировка квартиры по ул. Чичерина, 3 в г. Минске
Пожелания заказчика:
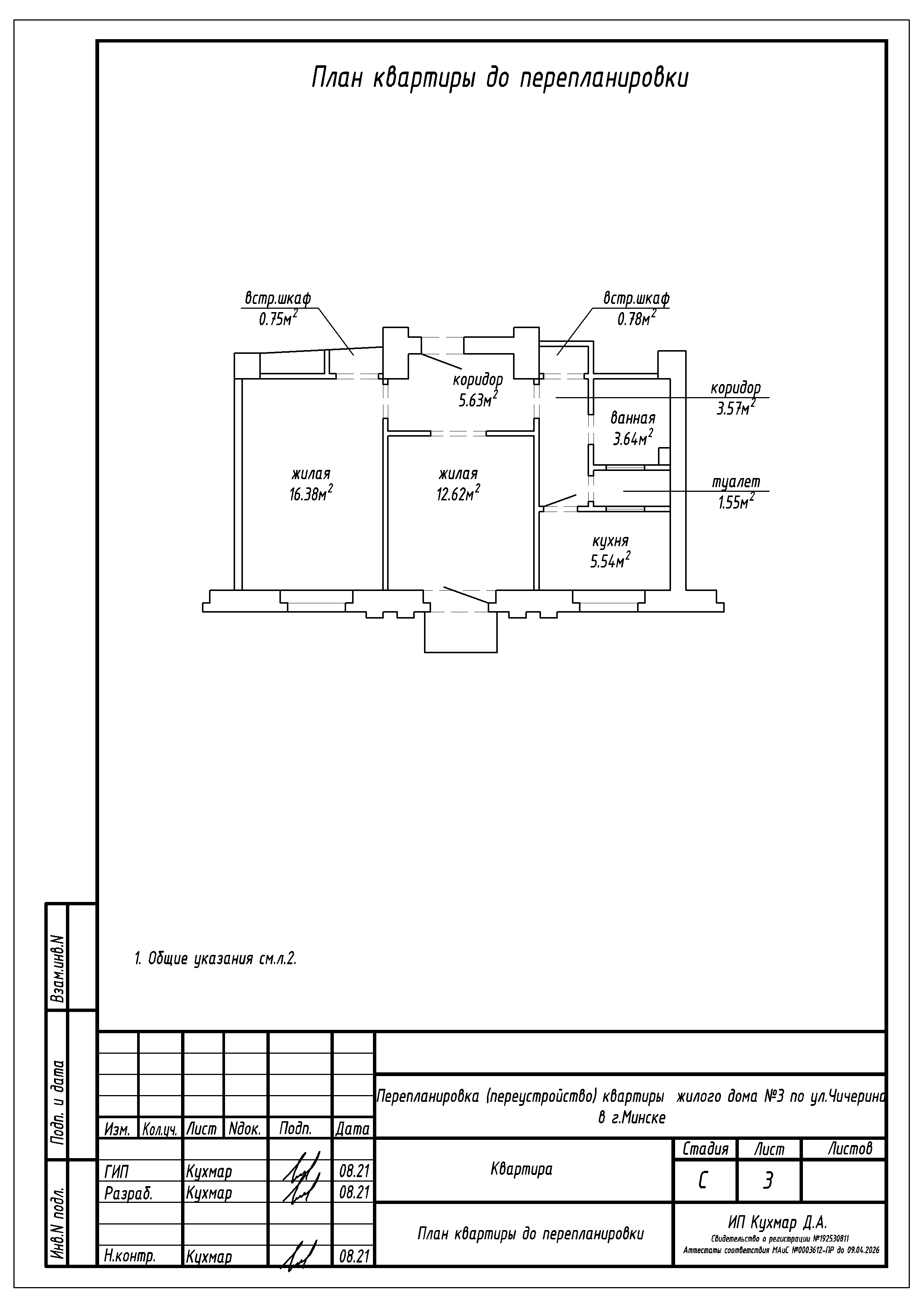
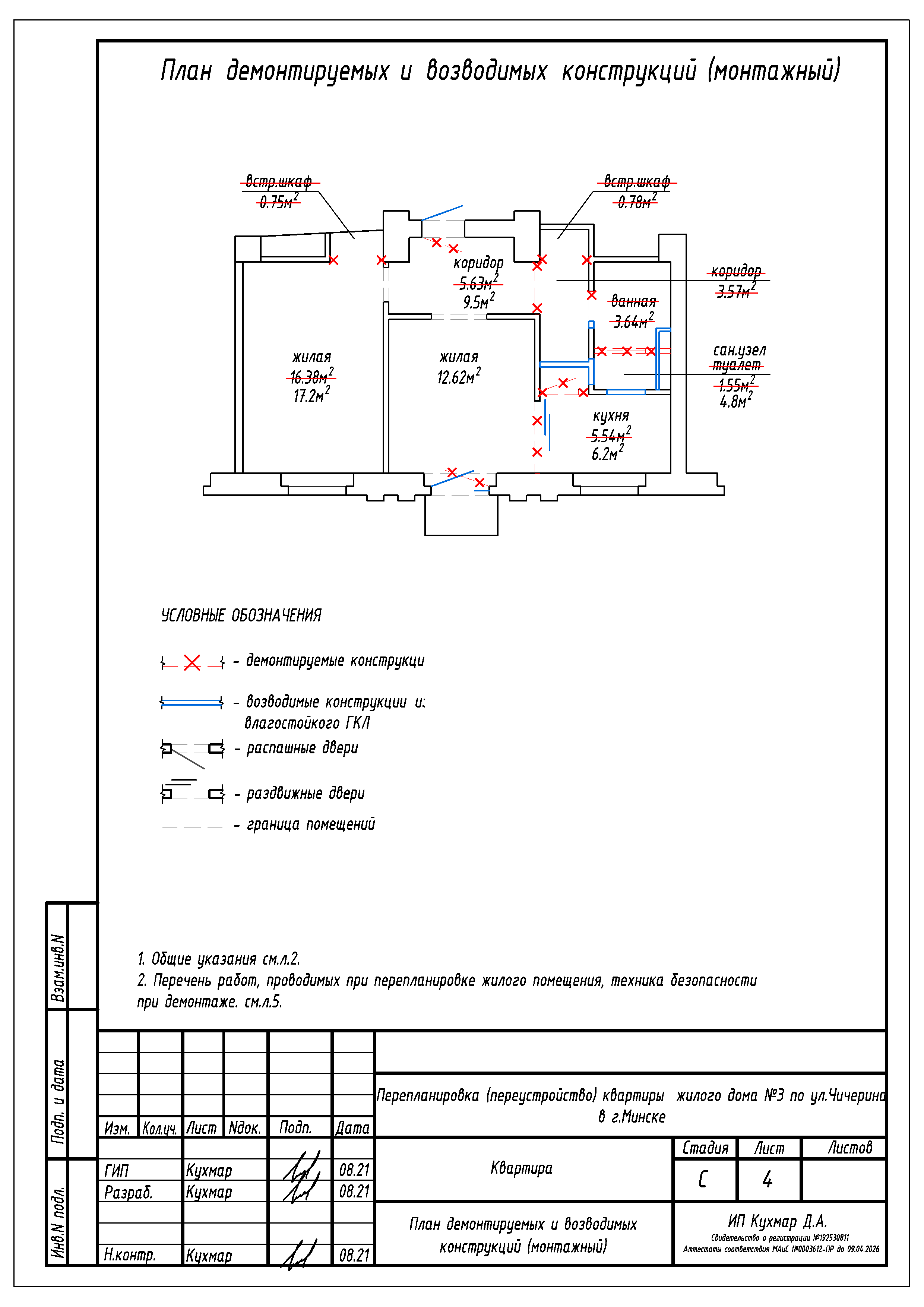
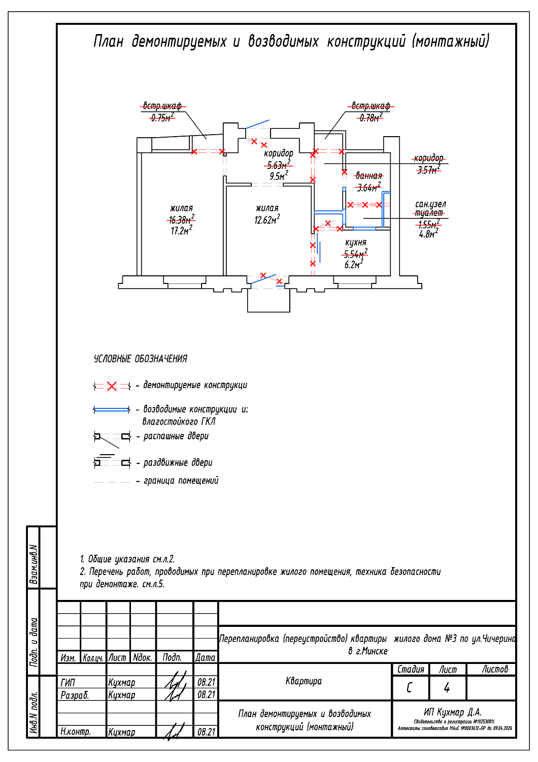
- Демонтаж встроенного шкафа в жилой;
- Объединение ванной и туалета в единый санузел;
- Демонтаж встроенного шкафа в коридоре;
- Демонтаж дверного проёма в коридоре;
- Смена дверного блока со сменой направления открывания входной двери;
- Устройство дверного проёма между жилой и кухней;
- Замена дверного блока со сменой направления открывания в стене между жилой и балконом;
- Закладка оконного проёма между туалетом и кухней;
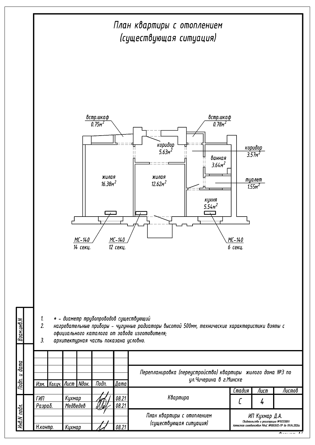
- Замена нагревательных приборов.
Нами были разработаны следующие разделы проектной документации для согласования в исполкоме:
- АС - архитектурно-строительные решения;
- ОВ - отопление и вентиляция.
