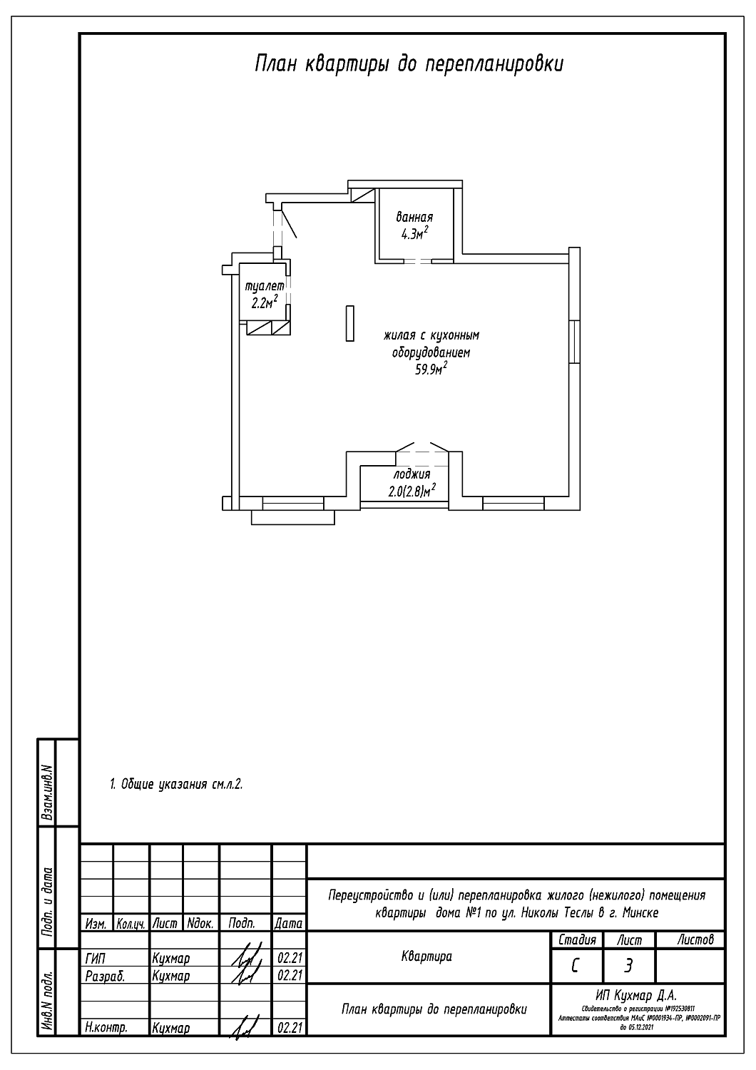
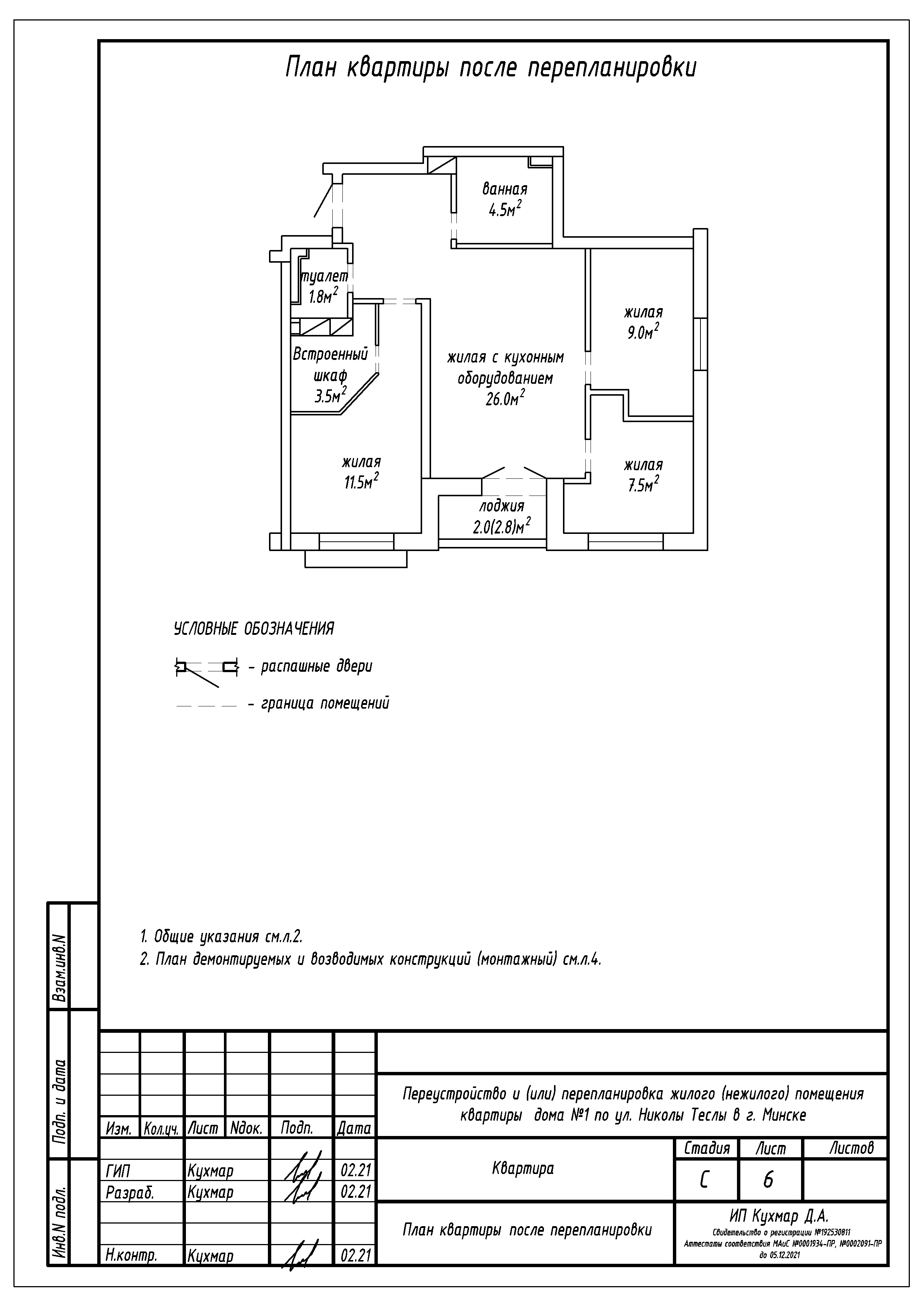
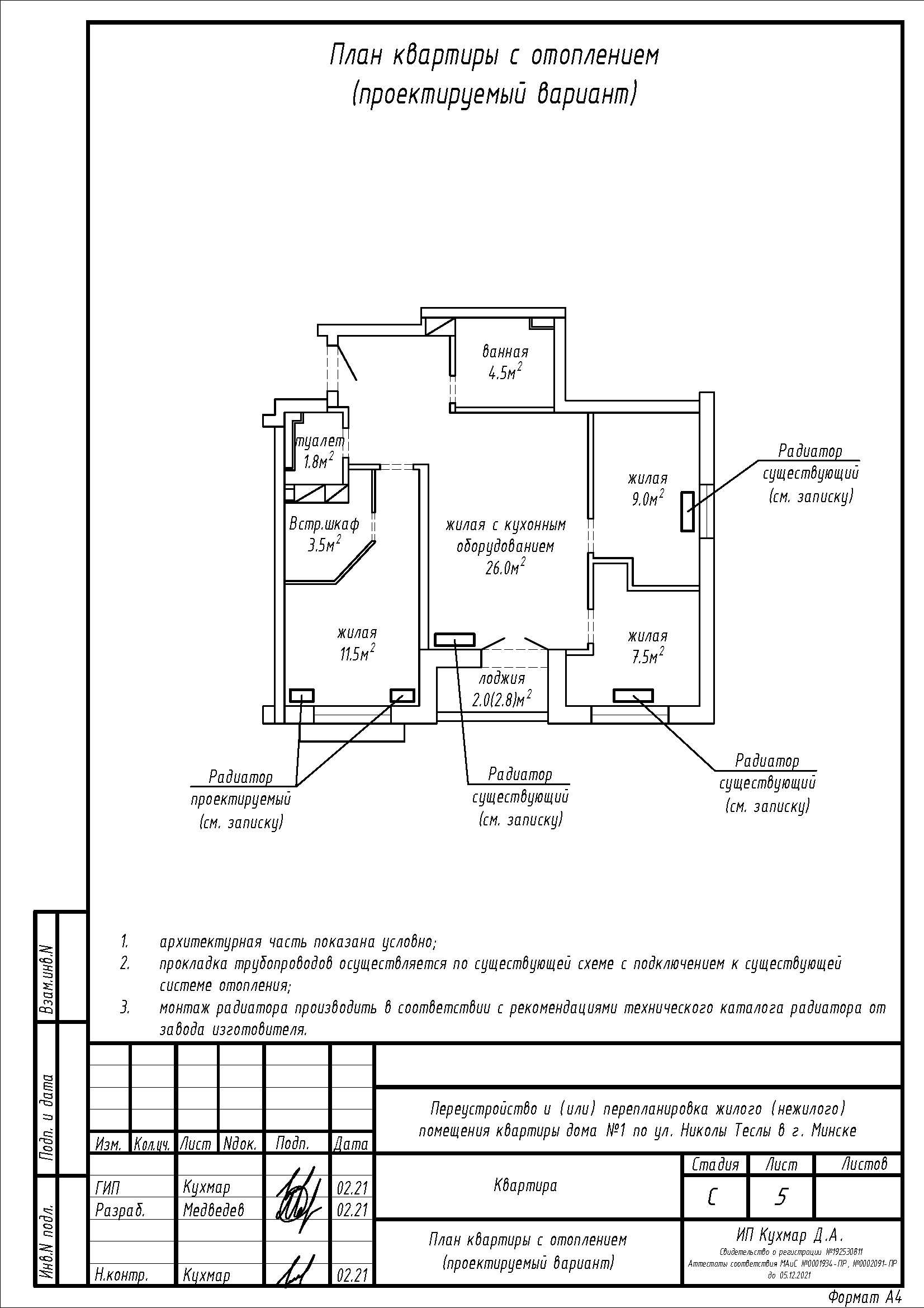
Перепланировка квартиры по ул. Николы Теслы, 1 в ЖК «Минск Мир»
Пожелания заказчика:
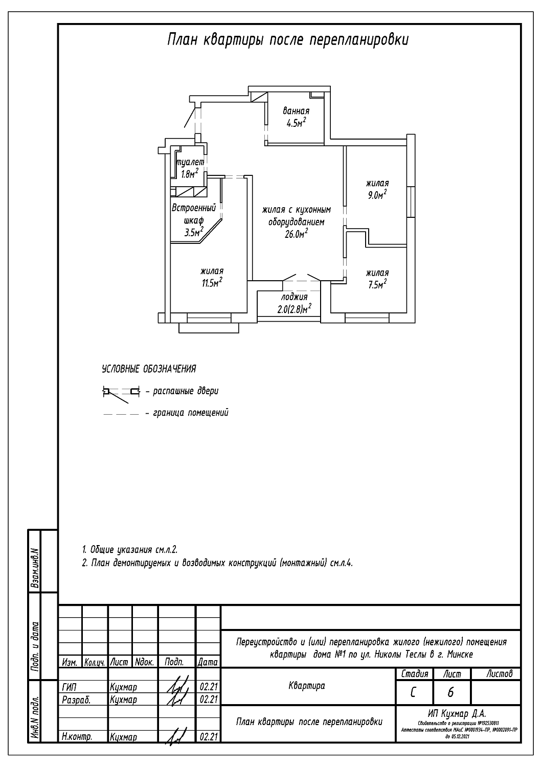
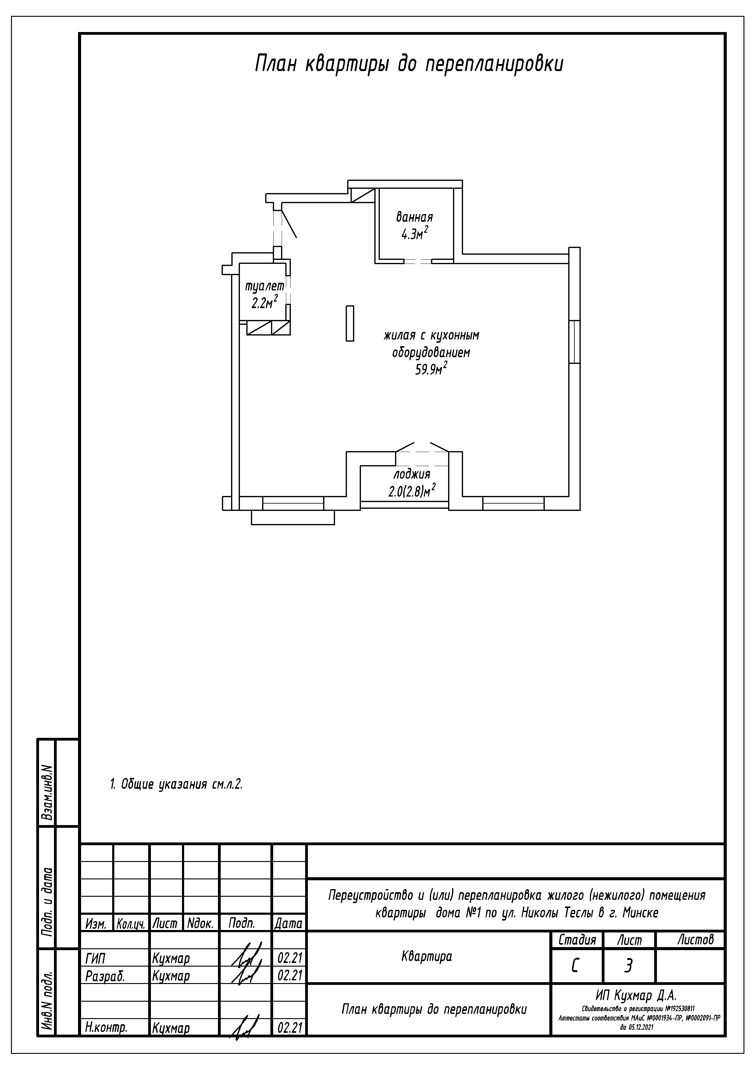
- Разделение общего помещения квартиры "жилая с кухонным оборудованием" на помещения;
- Увеличение помещения ванной;
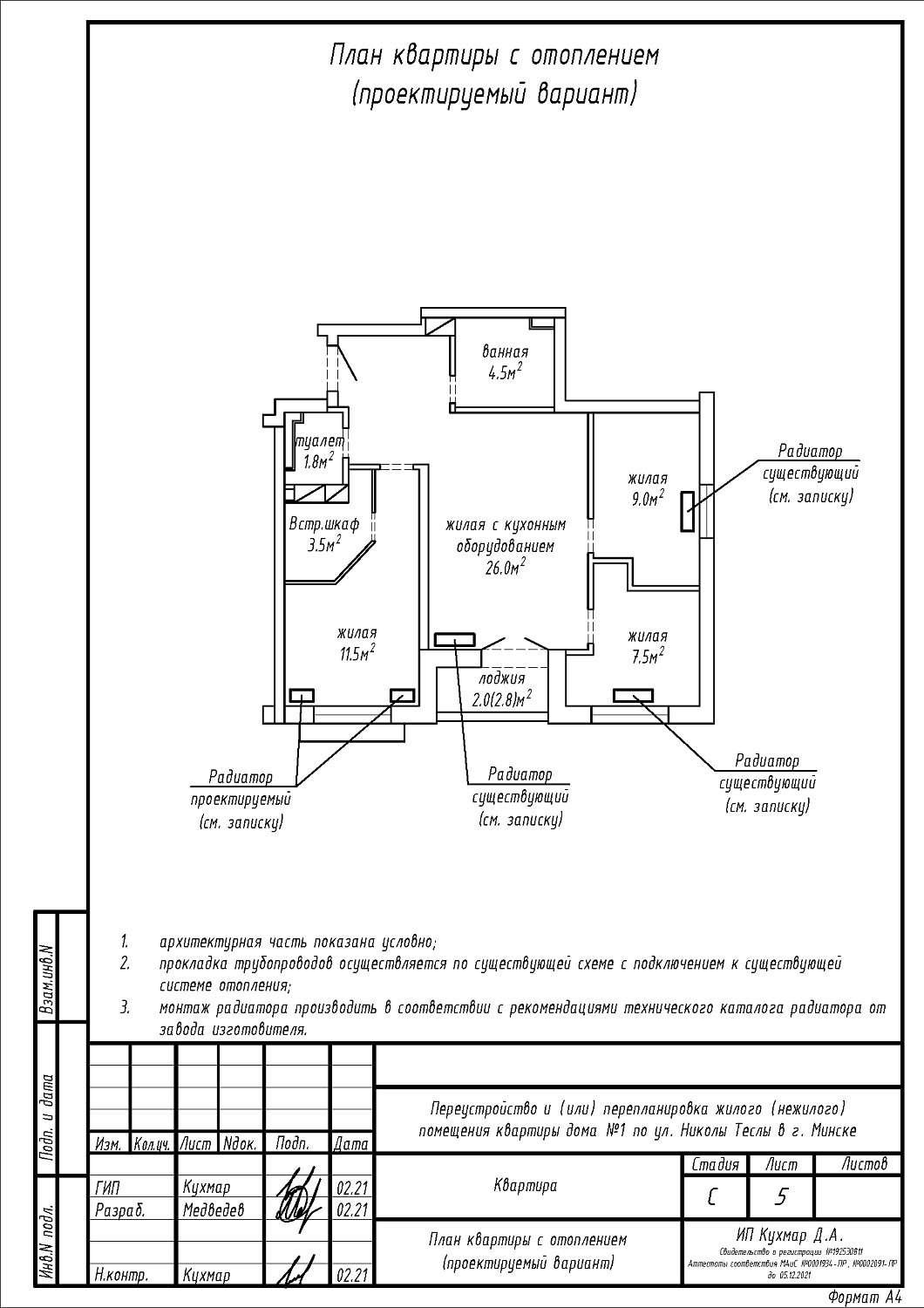
- Перенос и замена отопительных приборов.
Нами были разработаны следующие разделы проектной документации для согласования в исполкоме:
- АС - архитектурно-строительные решения;
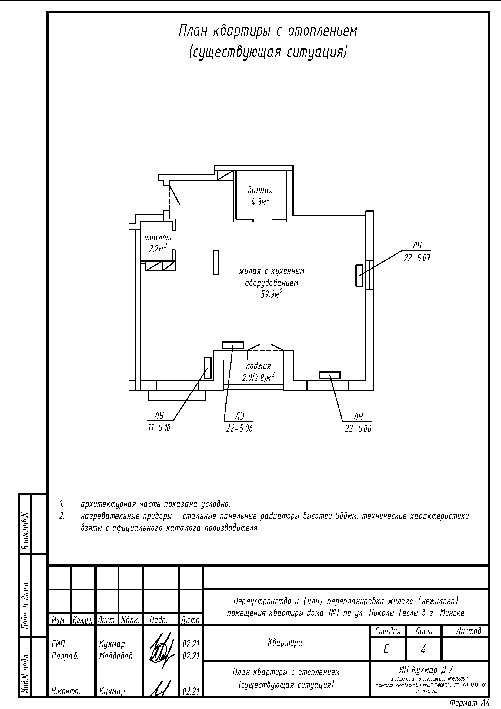
- ОВ - отопление и вентиляция.
