Перепланировка квартиры по ул. Нововиленская, 61 в ЖК «Левада»
Пожелания заказчика:
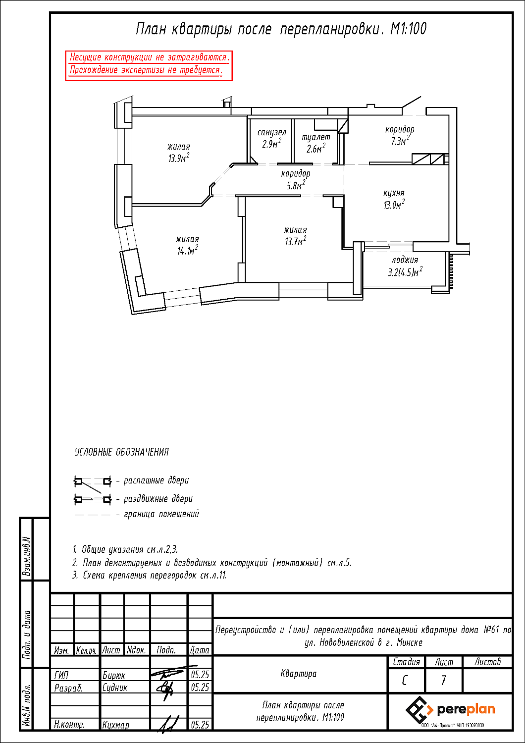
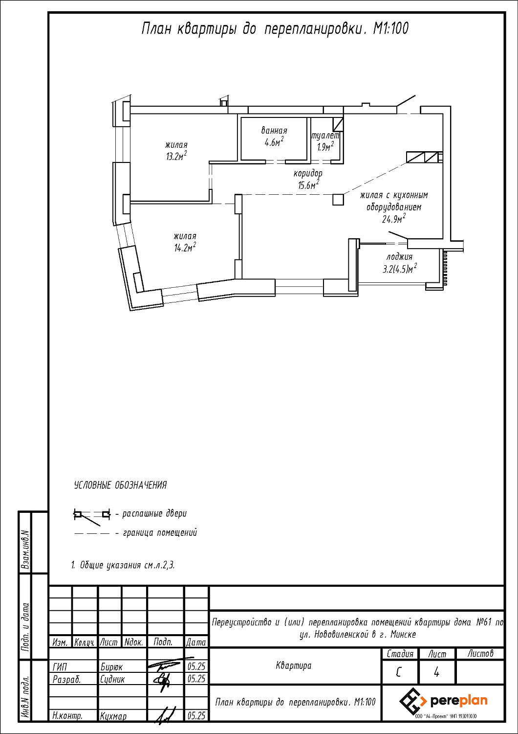
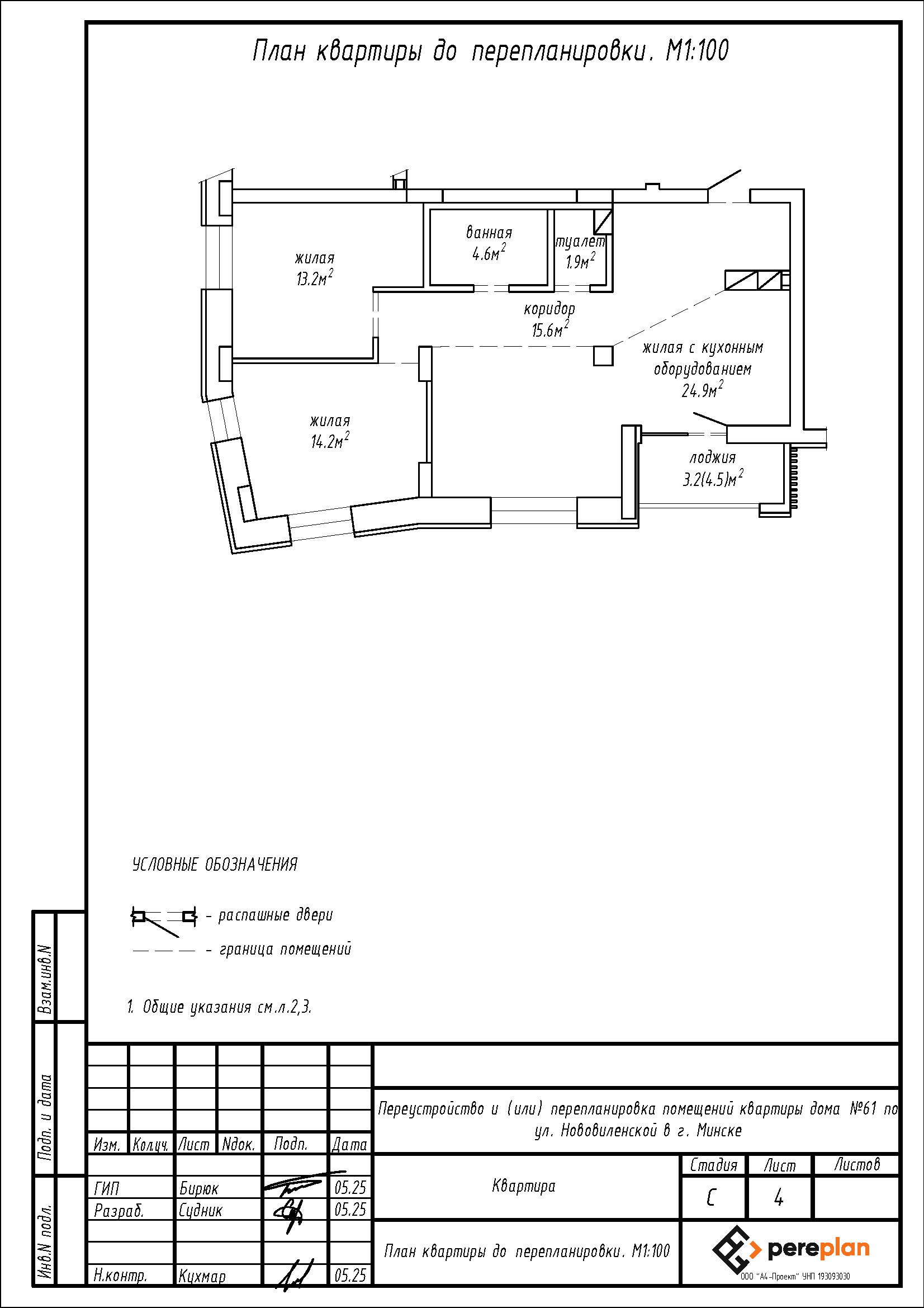
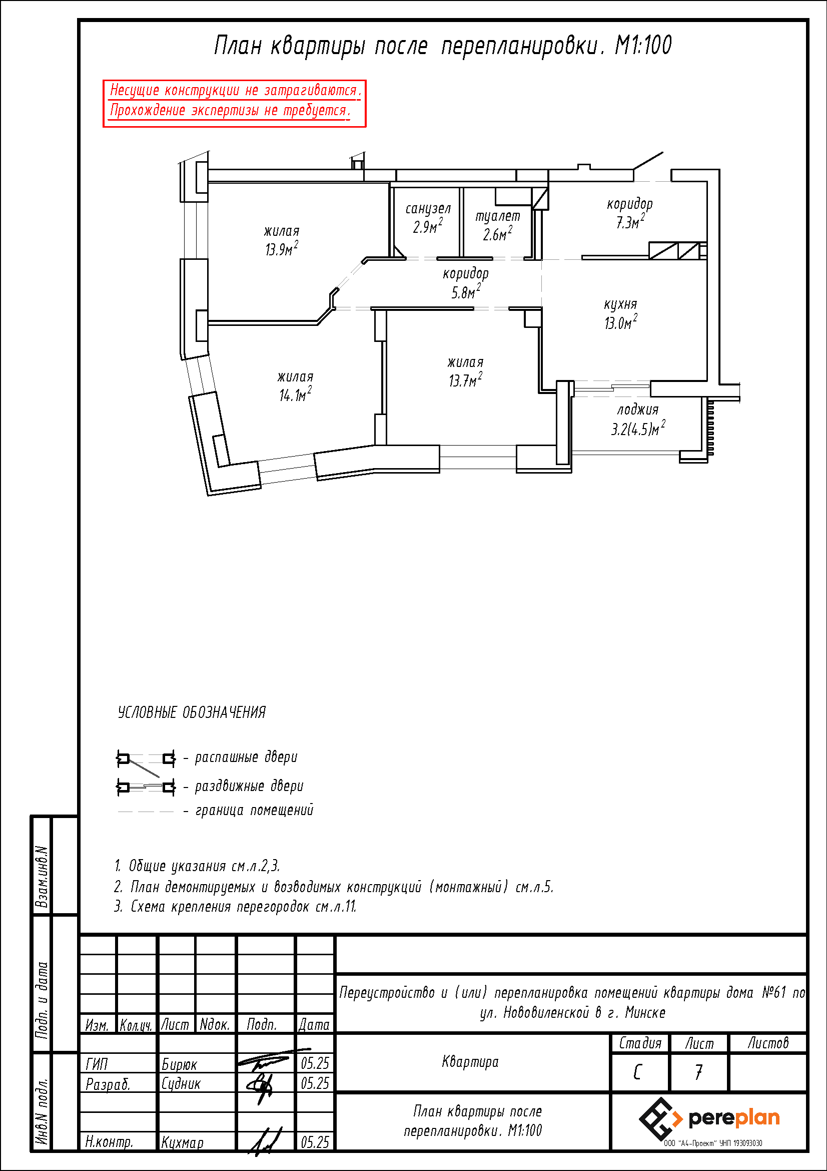
- Демонтаж перегородок между коридором, жилой комнатой с кухонным оборудованием площадью 24.9 кв.м, жилой комнатой площадью 14.2 кв.м, жилой комнатой площадью 13.2 кв.м, ванной и туалетом с последующим устройством новых перегородок, образованием помещений: трех жилых комнат, кухни, коридора, ванной и туалета;
- Демонтаж оконного и дверного блока между жилой комнатой с кухонным оборудованием и лоджией с последующим устройством нового оконного и дверного блоков.
Нами были разработаны следующие разделы проектной документации для согласования в исполкоме:
- АС - архитектурно-строительные решения.
