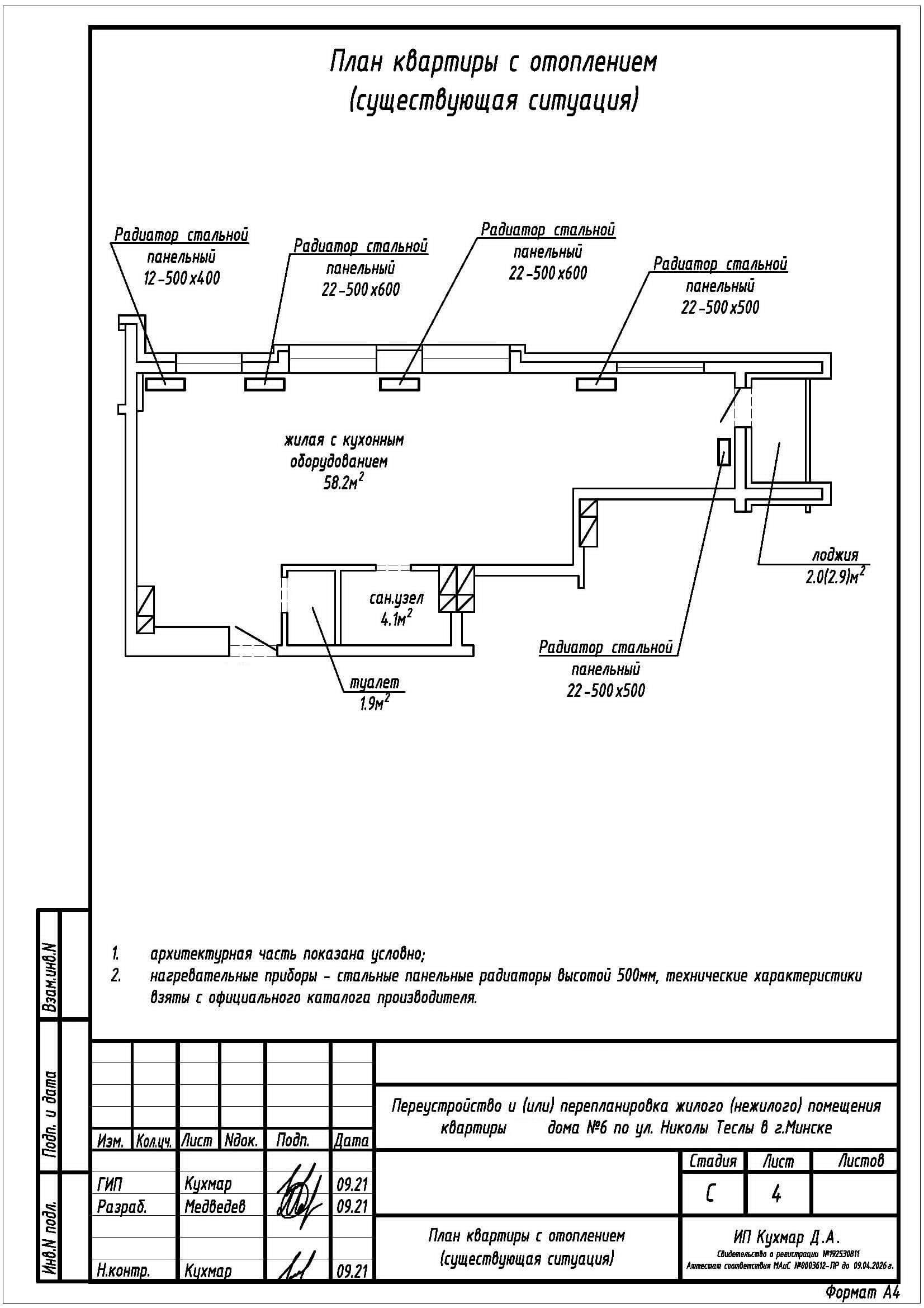
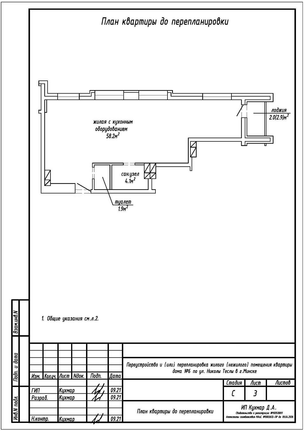
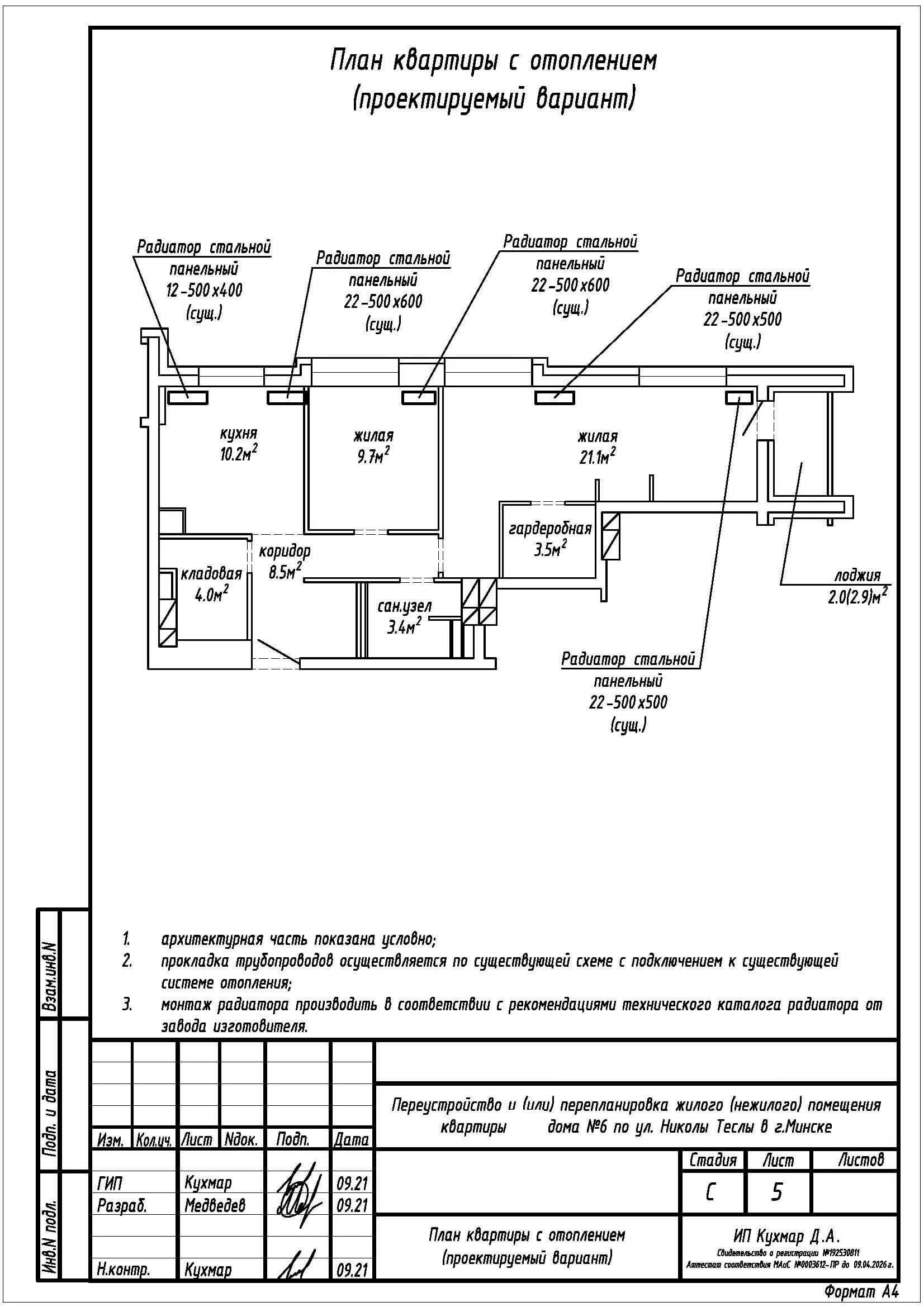
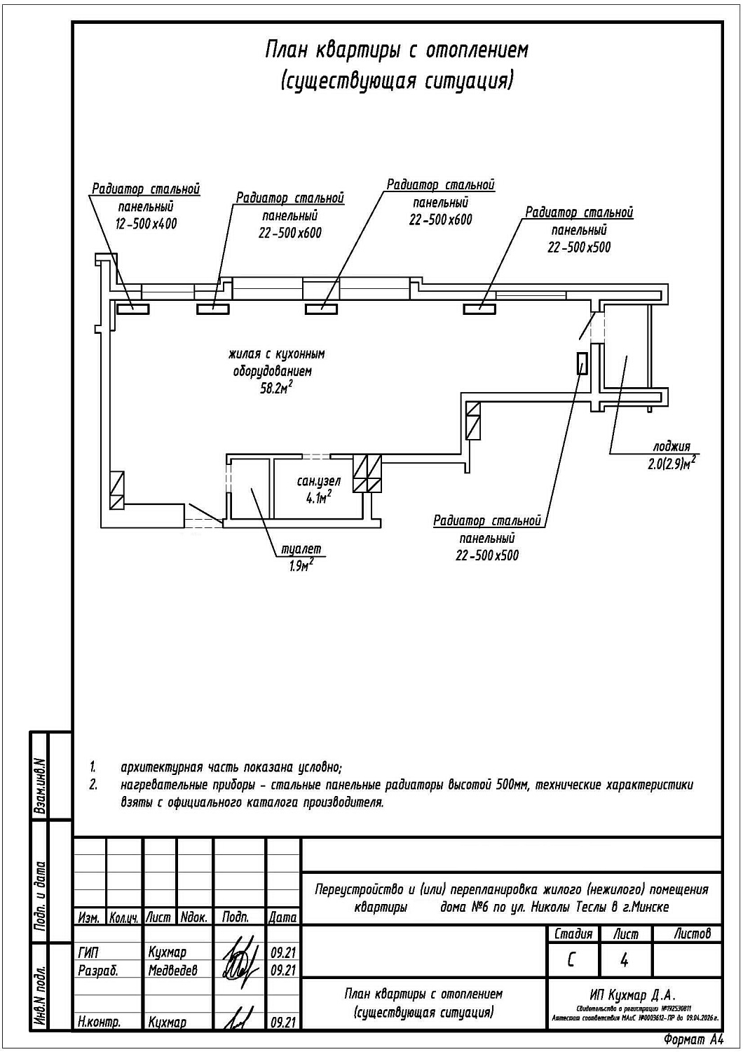
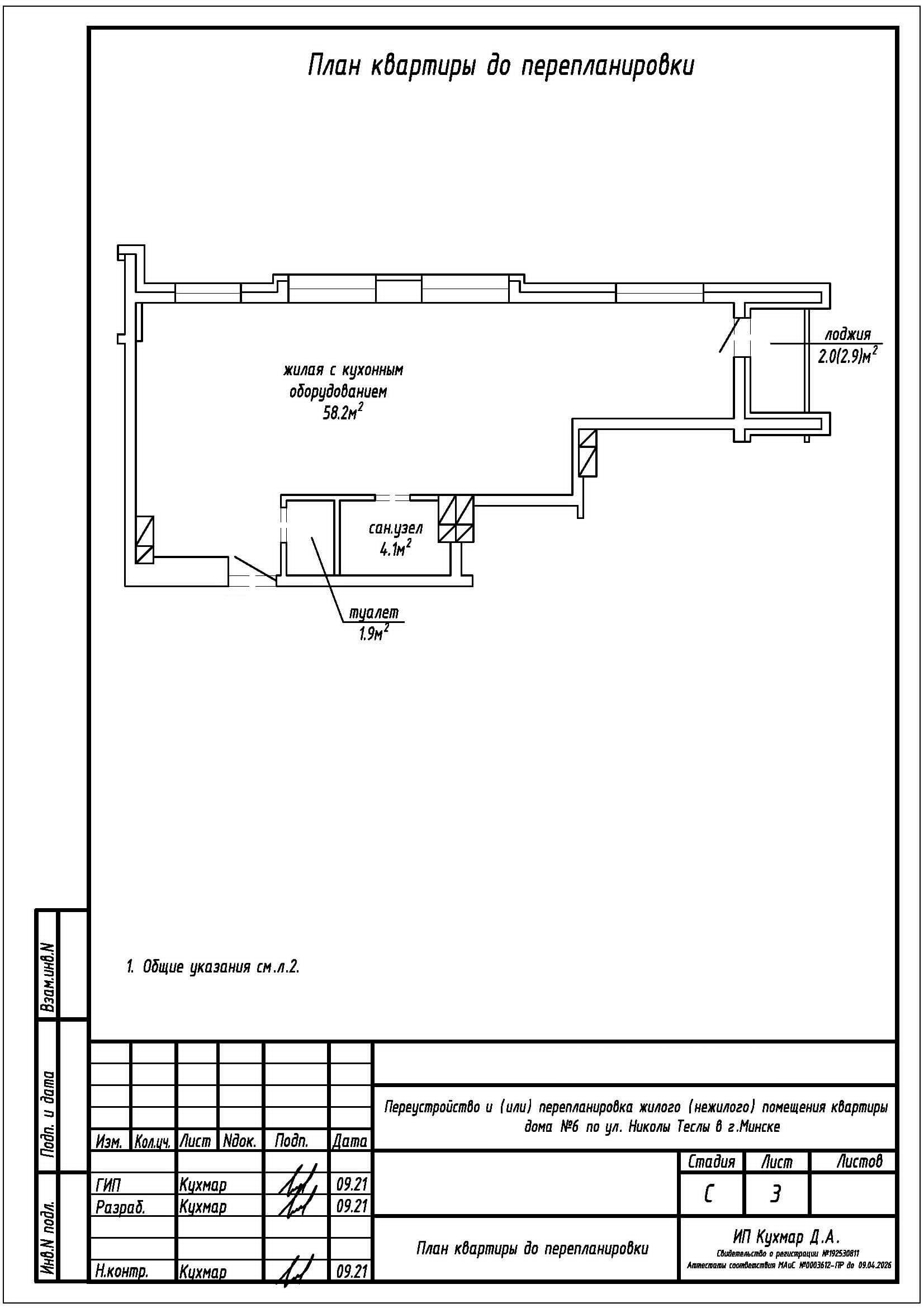
Перепланировка квартиры по ул. Николы Теслы, 6 в ЖК «Минск Мир»
Пожелания заказчика:- Разделение общего помещения жилой с кухонным оборудованием на две отдельные жилые, кухню, кладовую, коридор и гардеробную;;
- Увеличение коридора за счет помещения туалета (остается только санузел);
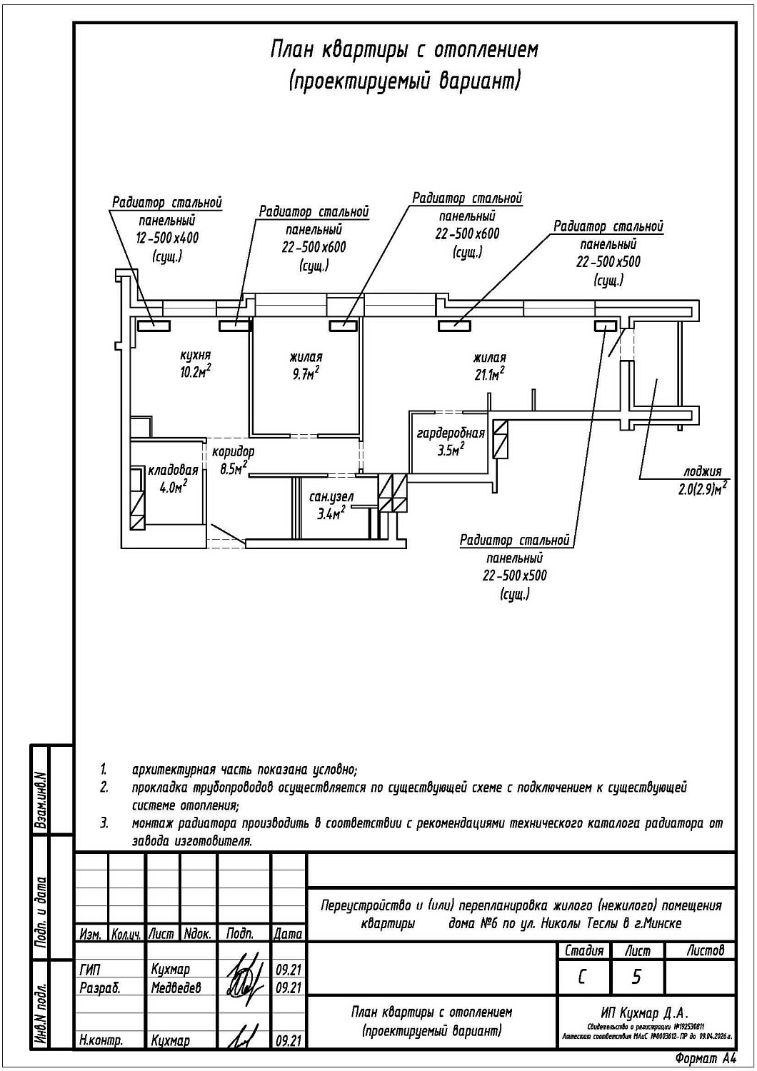
- Перенос существующих отопительных приборов.
Нами были разработаны следующие разделы проектной документации для согласования в исполкоме:
- АС - архитектурно-строительные решения;
- ОВ - отопление и вентиляция.
