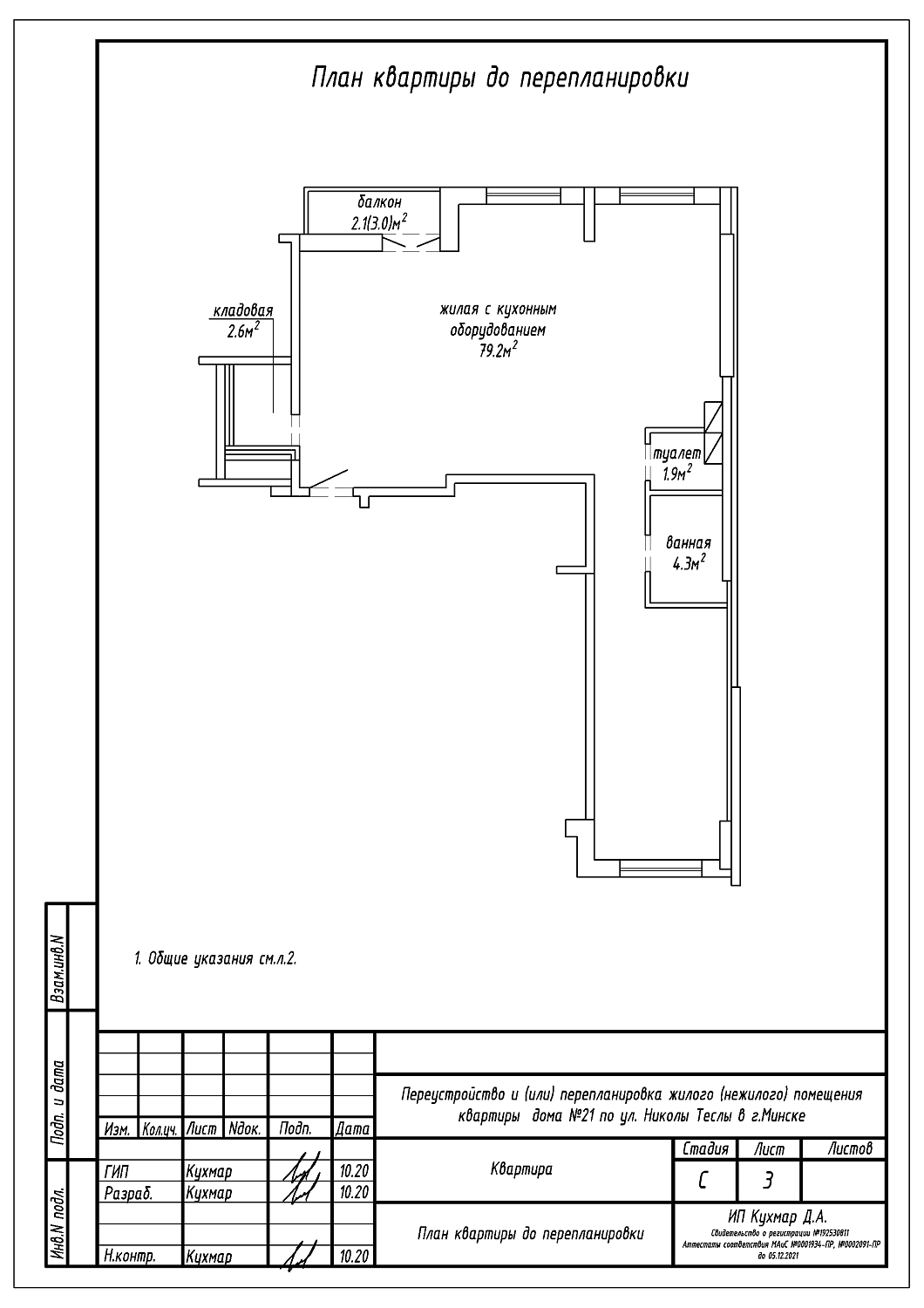
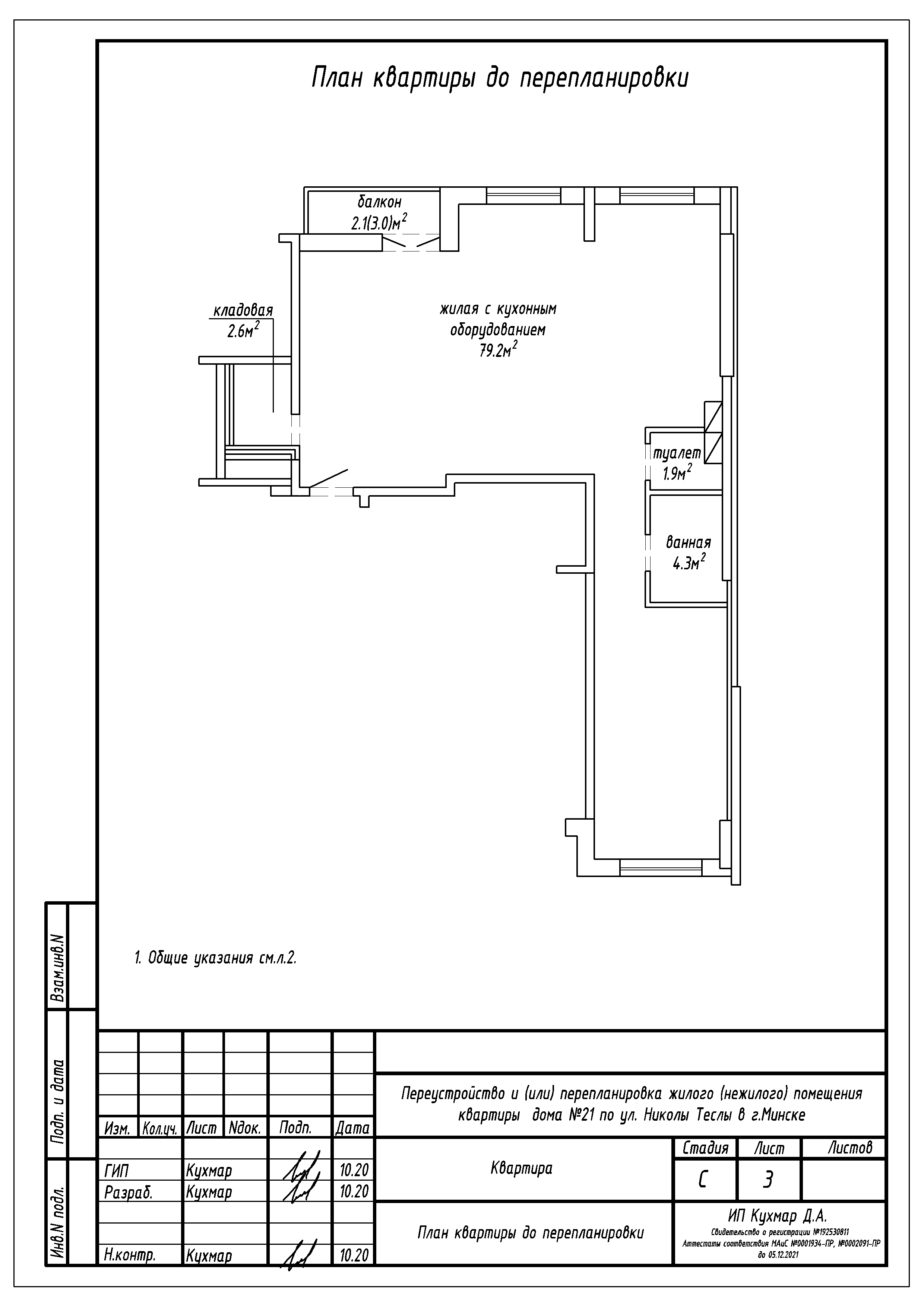
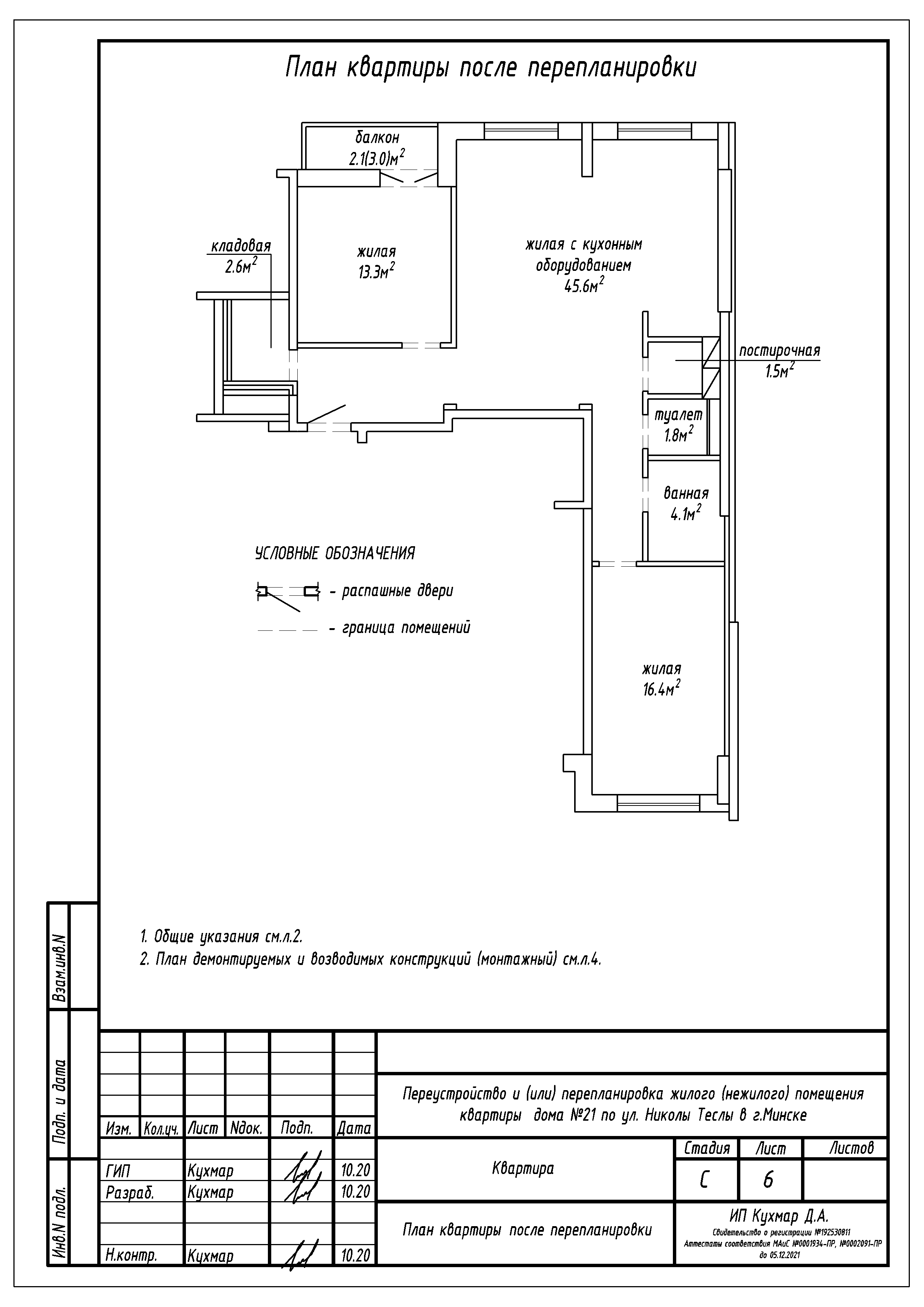
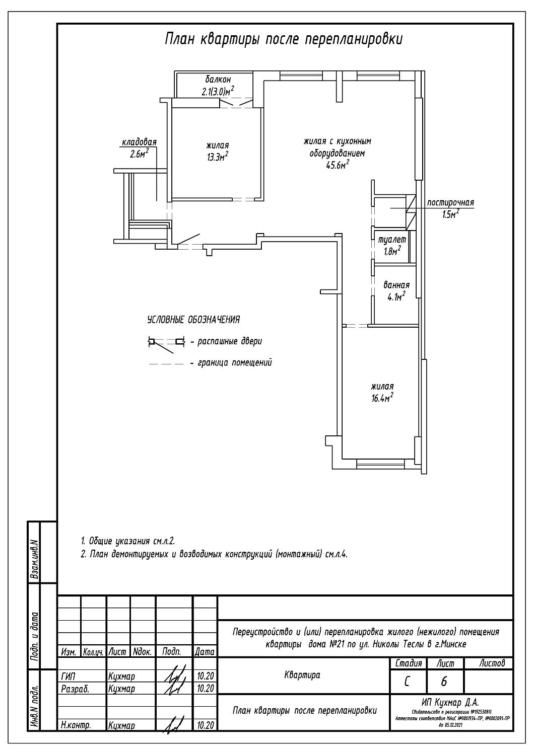
Перепланировка квартиры по ул. Николы Теслы, 21 в ЖК «Минск Мир»
Пожелания заказчика:
- Разделение общего помещения жилой с кухонным оборудованием на жилую с кухонным оборудованием и две жилые;
- Устройство постирочной;
- Изменение габаритов ванной и туалета.
Нами были разработаны следующие разделы проектной документации для согласования в исполкоме:
- АС - архитектурно-строительные решения.
