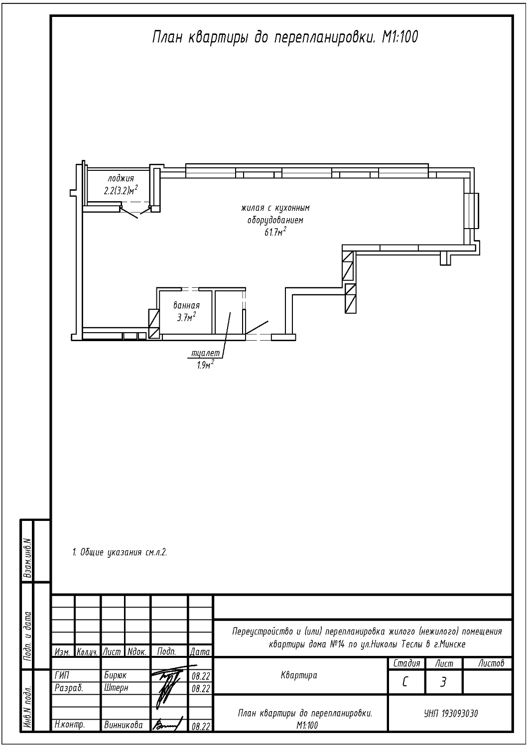
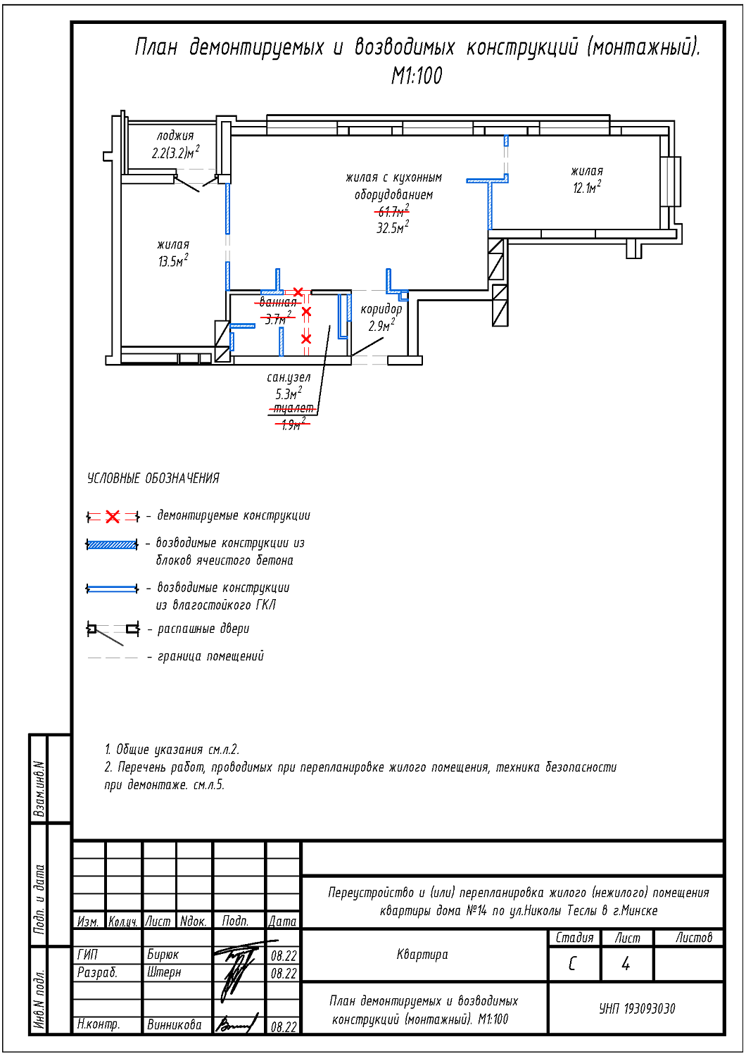
Перепланировка квартиры по ул. Николы Теслы, 14 в ЖК «Минск Мир»
Пожелания заказчика:
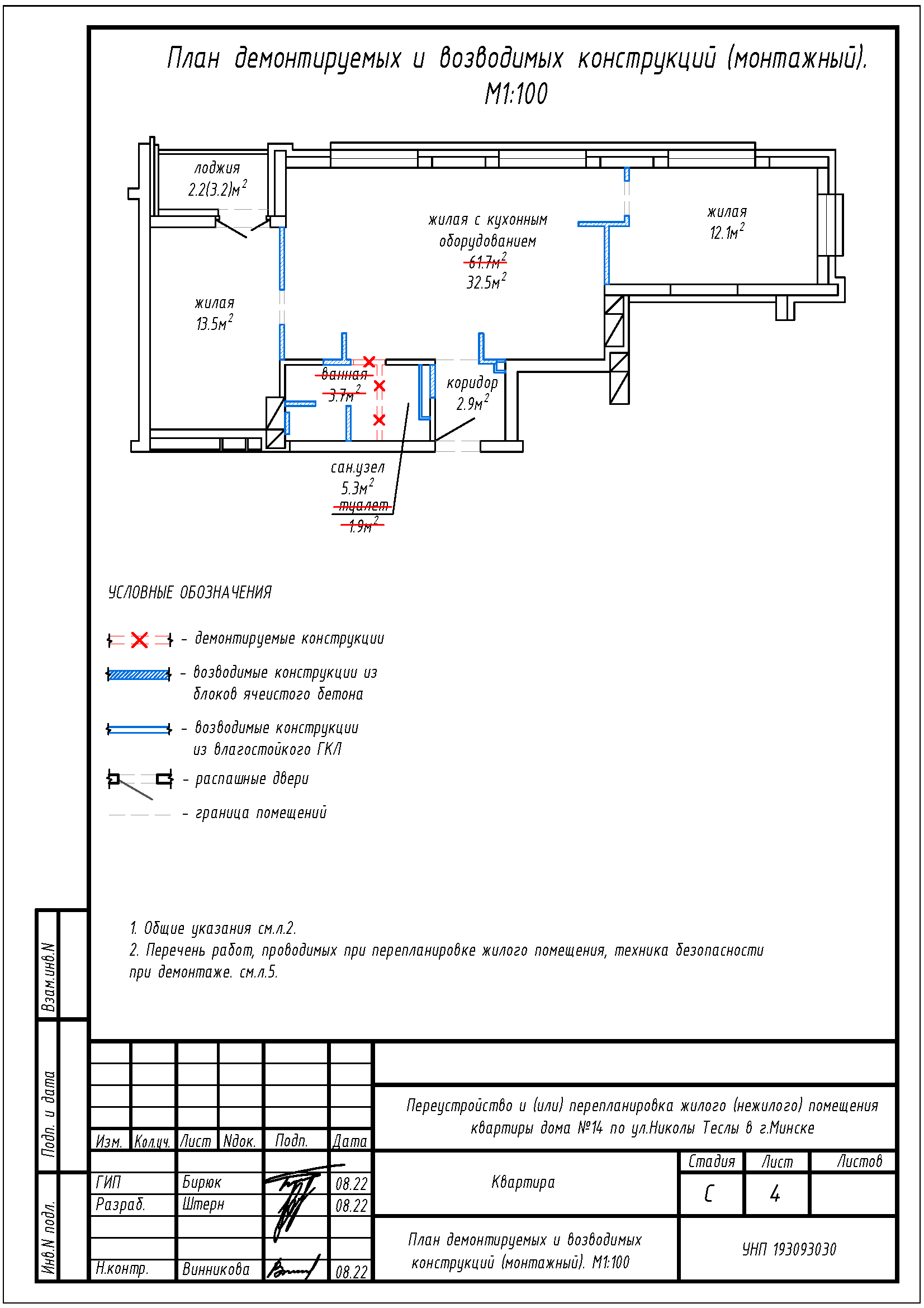
- Разделение общей жилой с кухонным оборудованием на жилую с кухонным оборудованием, две жилые, коридор;
- Объединение ванной и туалета в единый санузел;
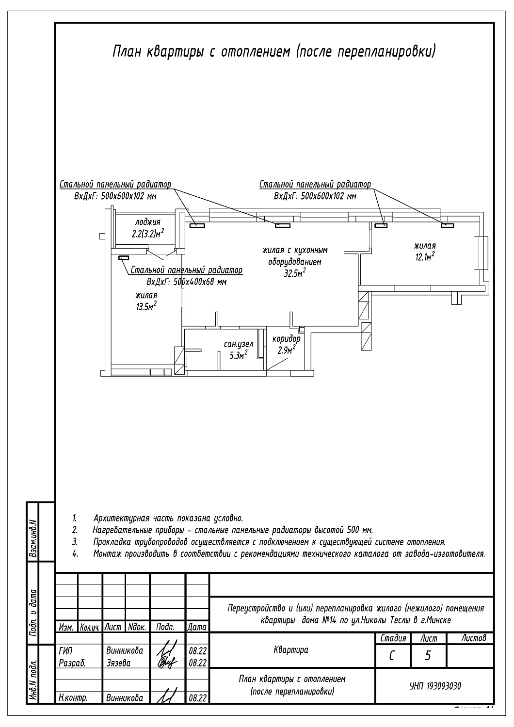
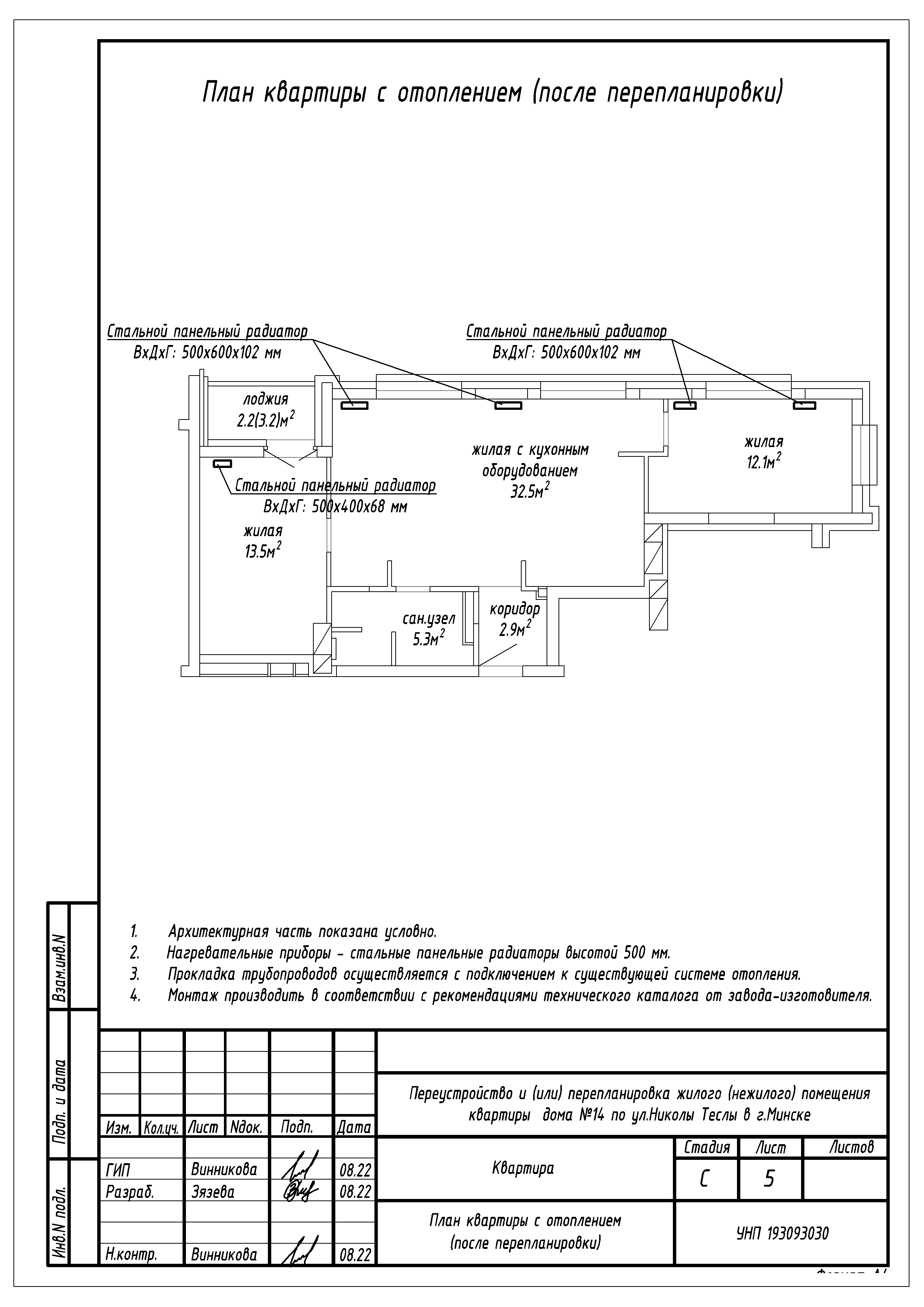
- Перенос существующих отопительных приборов.
Нами были разработаны следующие разделы проектной документации для согласования в исполкоме:
- АС - архитектурно-строительные решения;
- ОВ - отопление и вентиляция.
