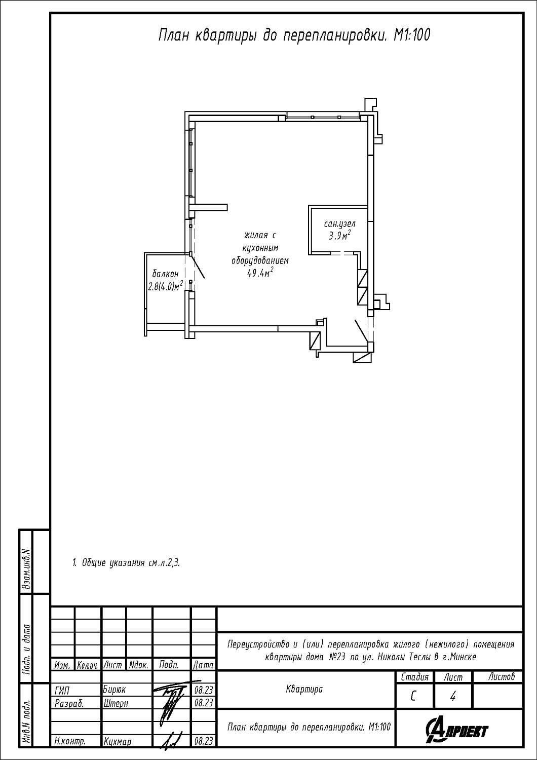
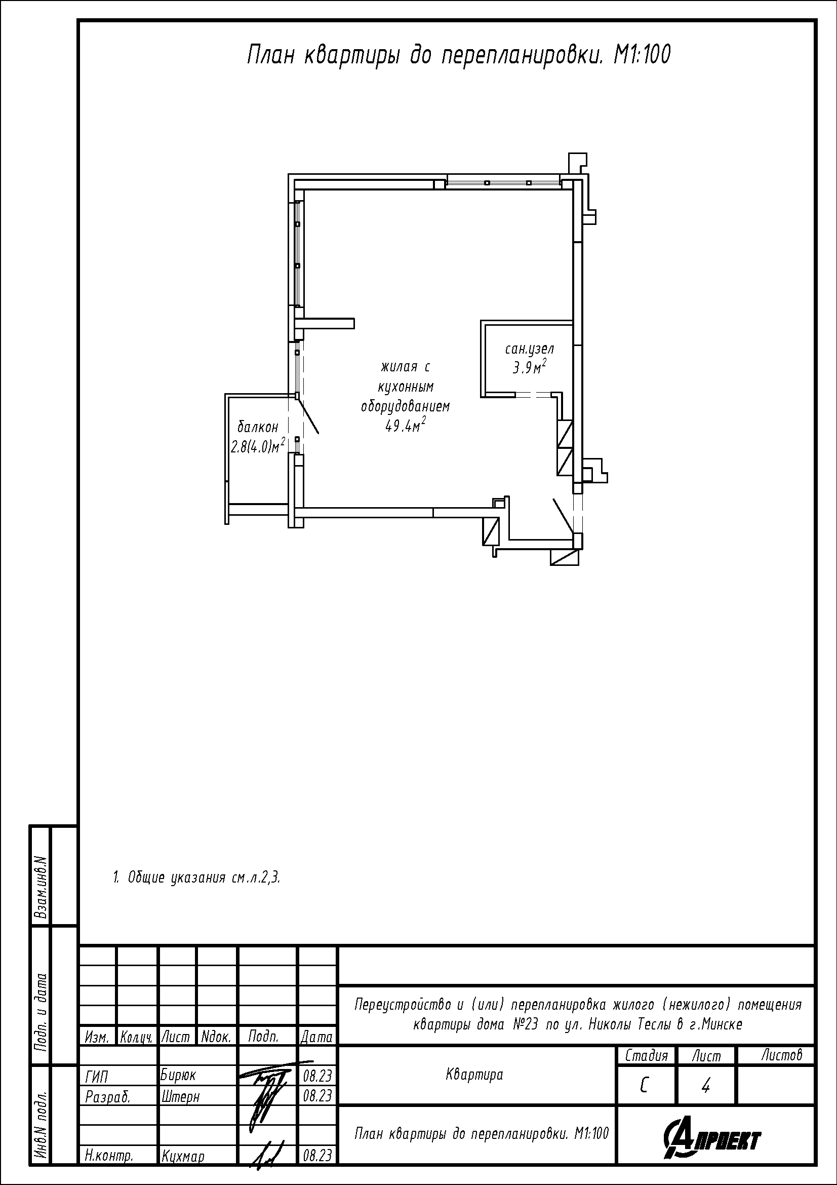
Перепланировка квартиры по ул.Николы Теслы, 23 в ЖК «Минск Мир»
Пожелания заказчика:- Разделение общей жилой с кухонным оборудованием на жилую с кухонным оборудованием и две жилые;
- Увеличение площади санузла.
Нами были разработаны следующие разделы проектной документации для согласования в исполкоме:
- АС - архитектурно-строительные решения.
