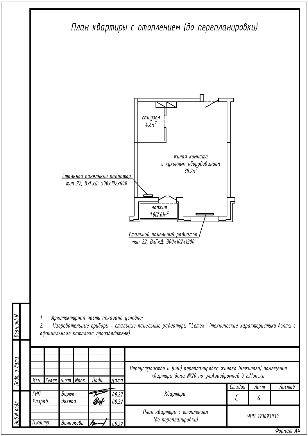
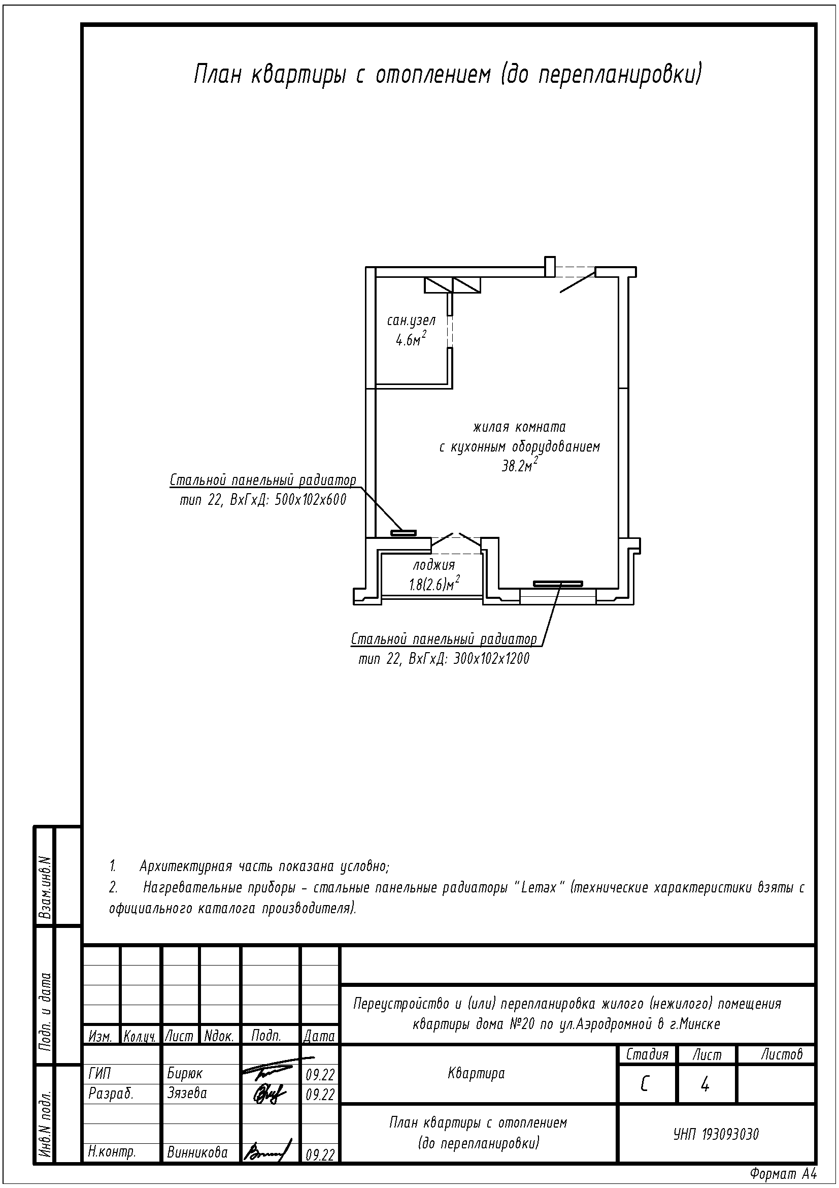
Перепланировка квартиры по ул. Аэродромная, 20 в ЖК «Минск Мир»
Пожелания заказчика:
- Перенос существующих отопительных приборов.
Нами были разработаны следующие разделы проектной документации для согласования в исполкоме:
- ОВ - отопление и вентиляция.
