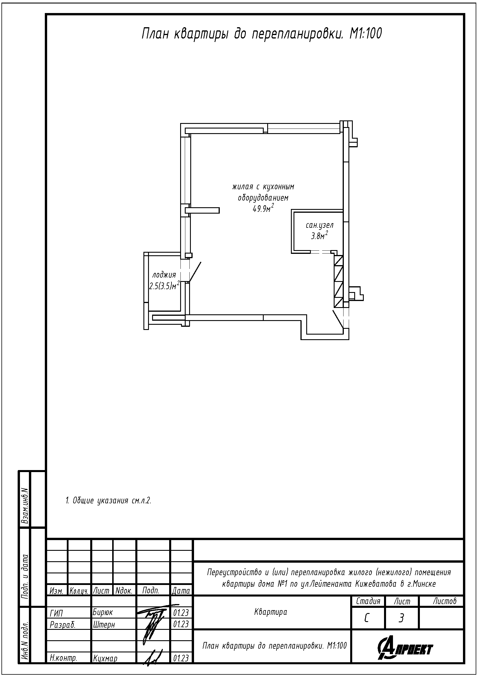
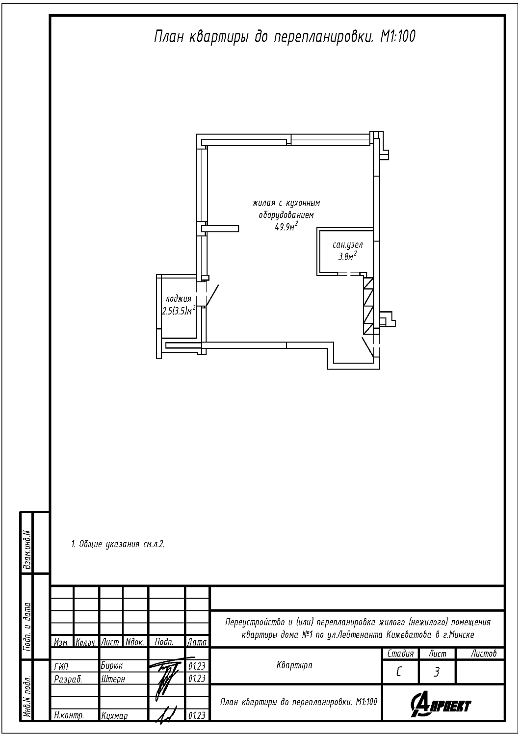
Перепланировка квартиры по ул. Кижеватова, 1 в ЖК «Минск Мир»
Пожелания заказчика:
- Разделение общей жилой с кухонным оборудованием на жилую с кухонным оборудованием, две жилые и коридор;
- Устройство ванной и туалета на площади существующего санузла;
- Устройство технической звукоизоляционной перегородки на части площади балкона;
- Замена дверного блока в балкон на раздвижной;
- Перенос и замена отопительных приборов.
Нами были разработаны следующие разделы проектной документации для согласования в исполкоме:
- АС - архитектурно-строительные решения;
- ОВ - отопление и вентиляция.
