Перепланировка квартиры по ул. Николы Теслы, 11 в ЖК «Минск Мир»
Пожелания заказчика:
- Разделение общего помещения жилой с кухонным оборудованием на жилую с кухонным оборудованием, жилую и гардероб;
- Объединение ванной и туалета в единый сан.узел;
- Увеличение площади нового сан. узла, но не более чем на 25%;
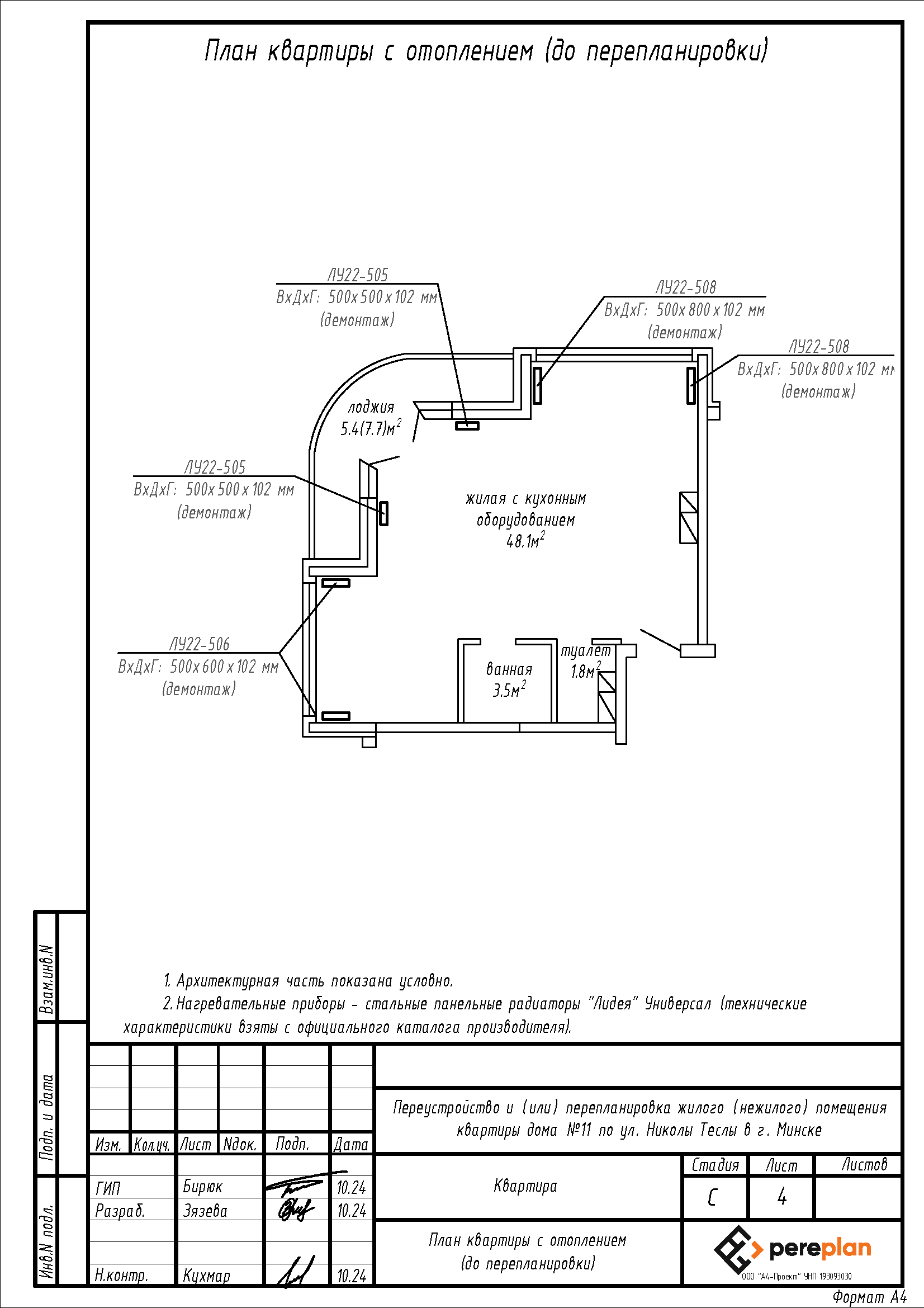
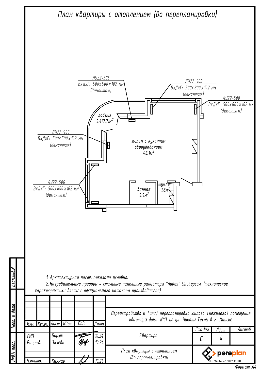
- Перенос и замена отопительных приборов.
Нами были разработаны следующие разделы проектной документации для согласования в исполкоме:
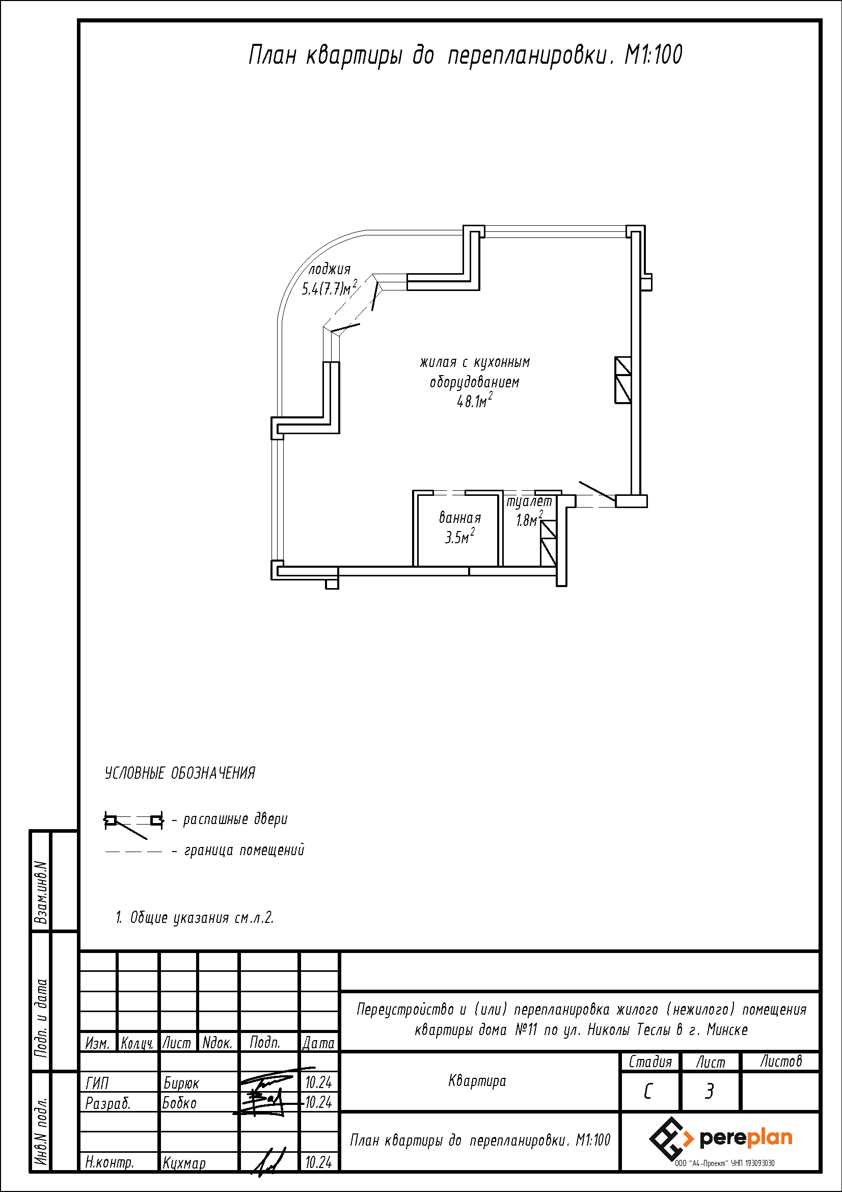
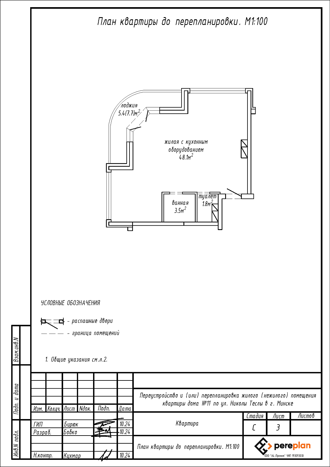
- АС - архитектурно-строительные решения;
- ОВ - отопление и вентиляция.
