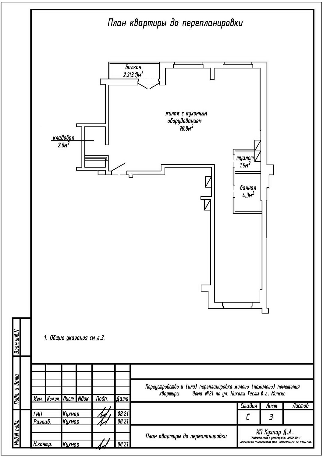
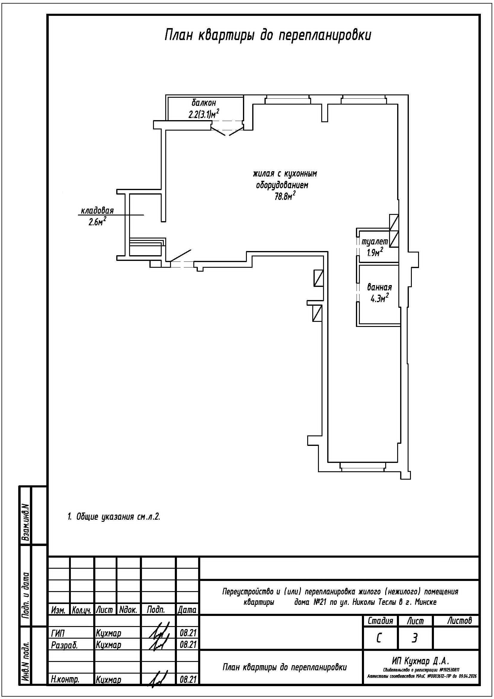
Перепланировка квартиры по ул. Николы Теслы, 21 в ЖК «Минск Мир»
Пожелания заказчика:
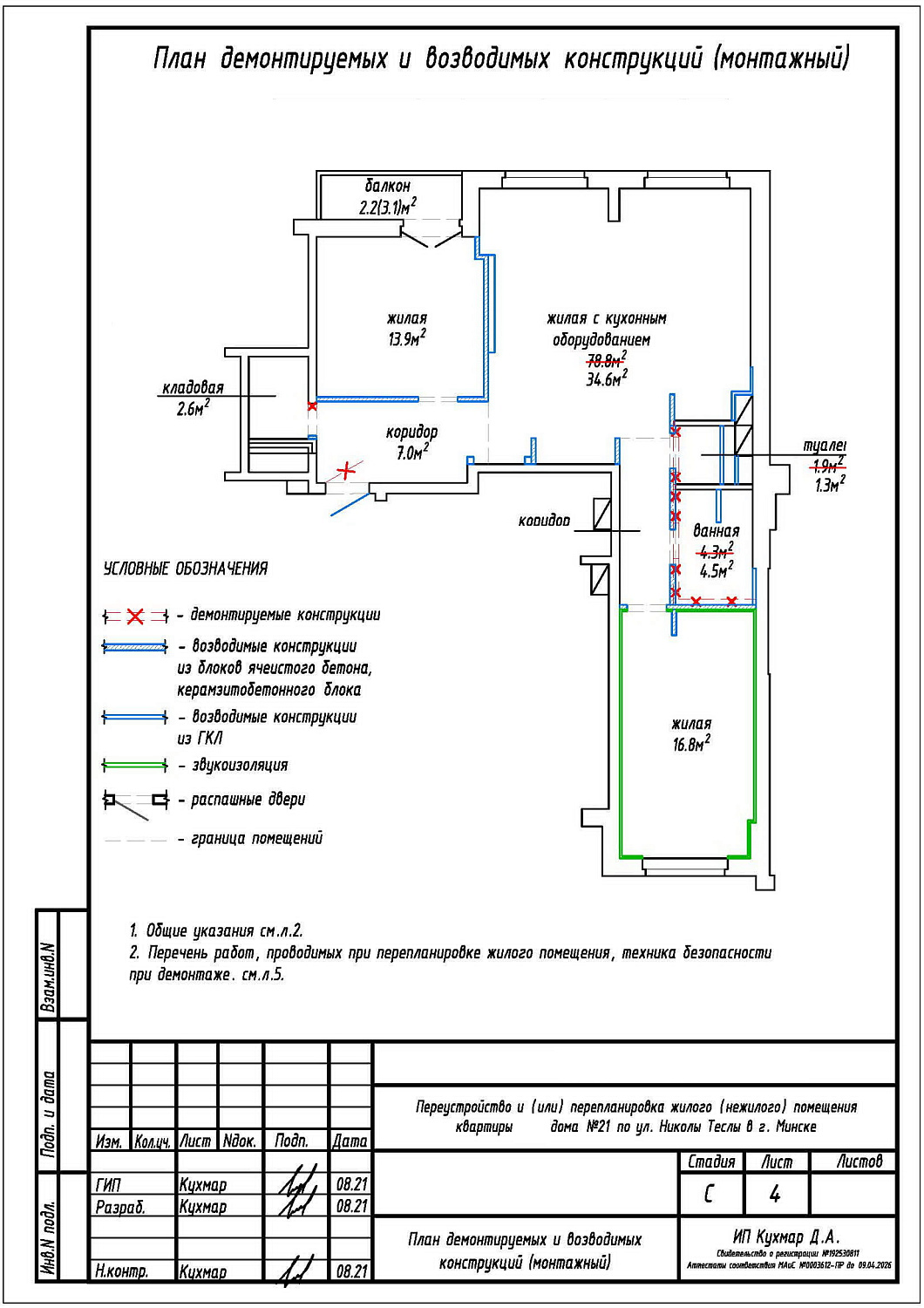
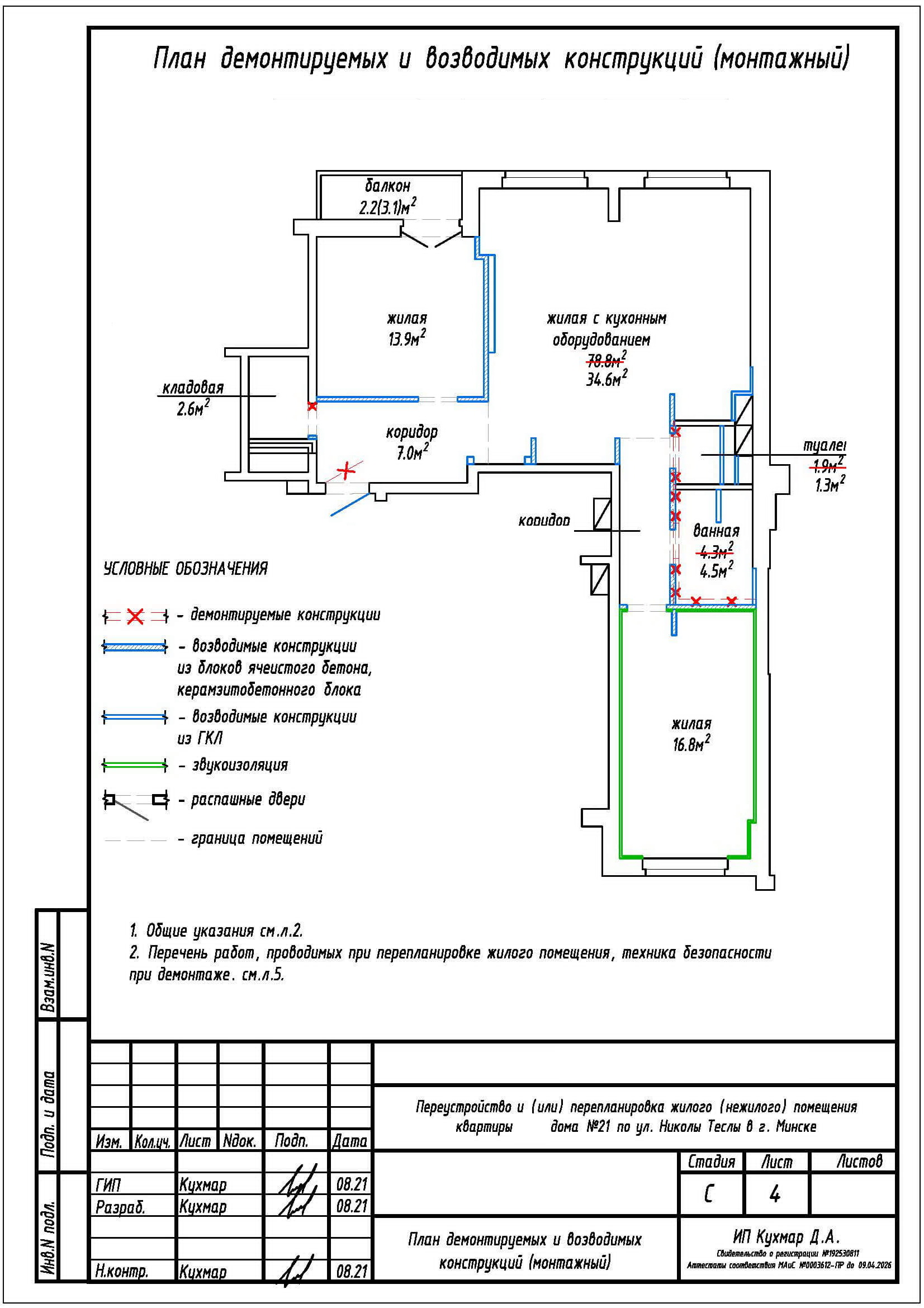
- Разделение общего помещения жилой с кухонным оборудованием на жилую с кухонным оборудованием, две жилые и два коридора;
- Смещение дверного проёма в перегородке между кладовой и жилой с кухонным оборудованием;
- Замена дверного блока входной двери со сменой направления открывания;
- Изменение габаритов туалета;
- Изменение габаритов ванной;
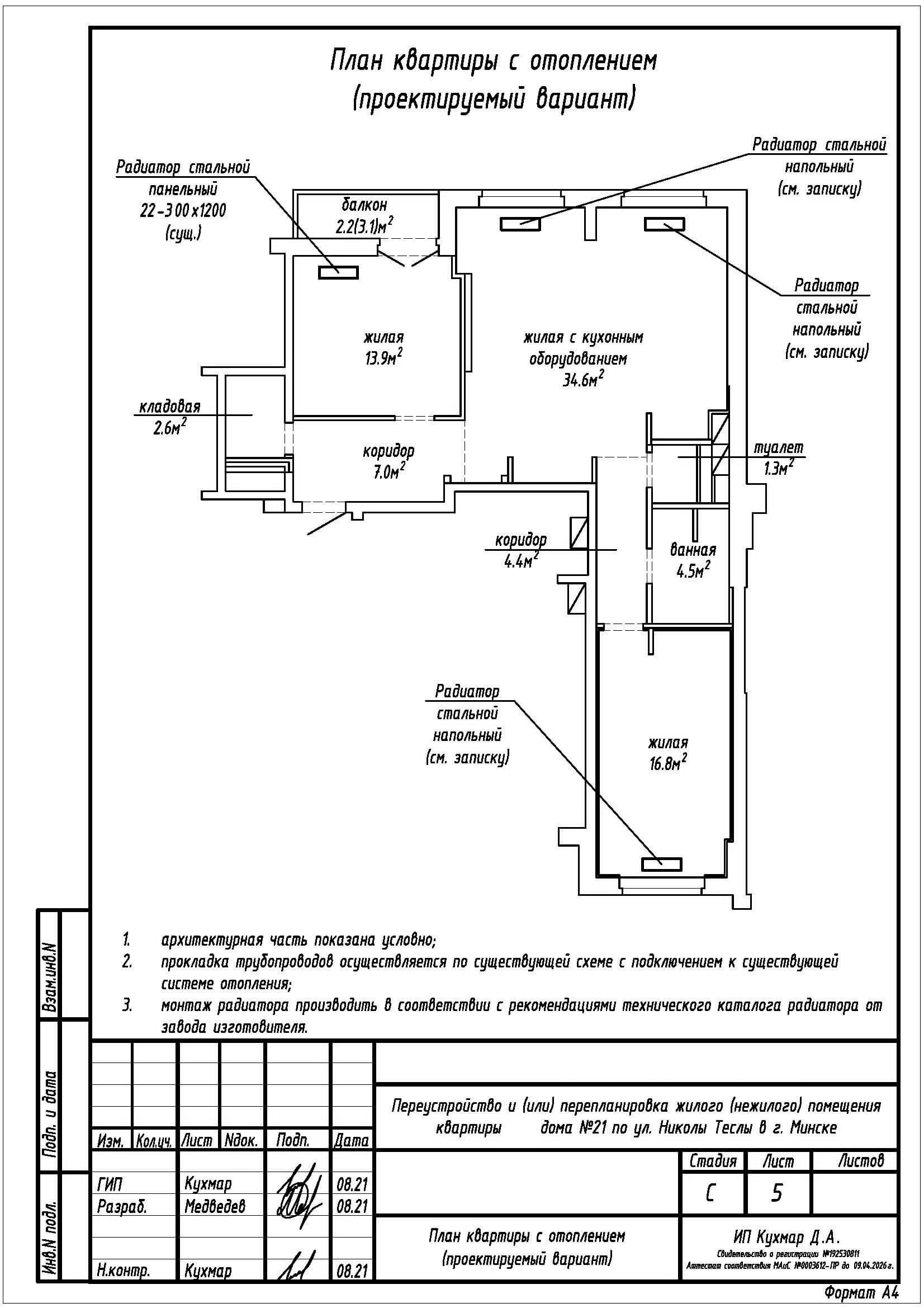
- Замена нагревательных приборов.
Нами были разработаны следующие разделы проектной документации для согласования в исполкоме:
- АС - архитектурно-строительные решения;
- ОВ - отопление и вентиляция.
