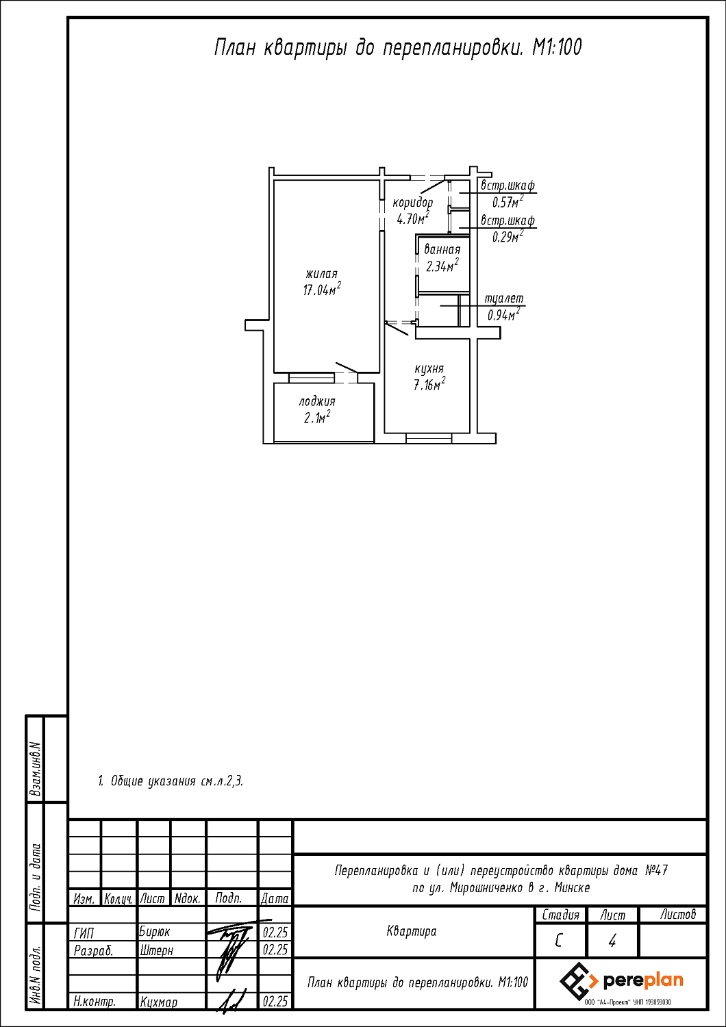
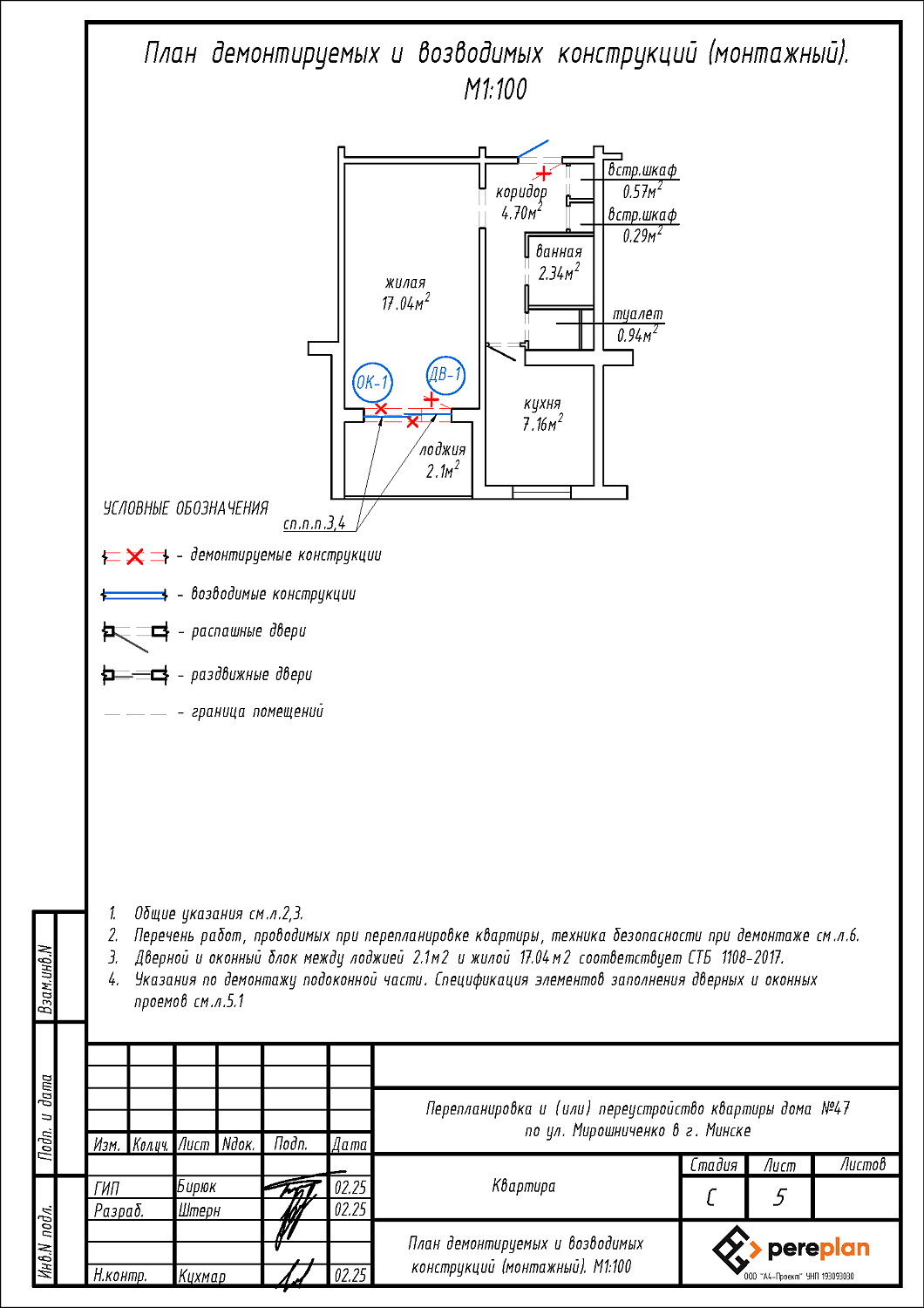
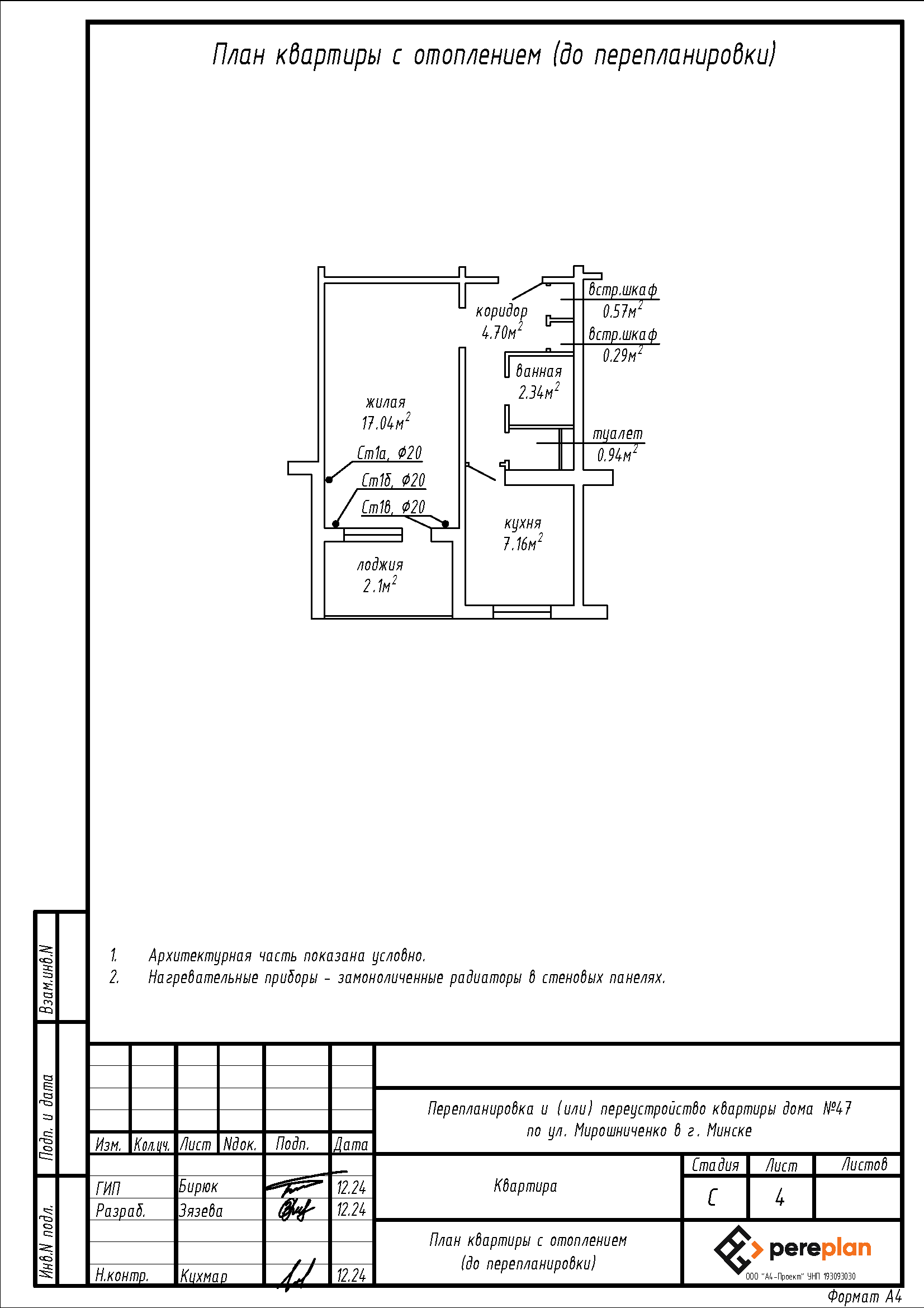
Перепланировка квартиры по ул. Мирошниченко, 47 в г. Минске
Пожелания заказчика:
- Демонтаж подоконной части в стене между жилой 17.04 м2 и лоджией 2.1 м2 с последующим устройством нового дверного блока;
- Замена входной двери со сменой направления открывания;
- Замена и перенос отопительного прибора.
Нами были разработаны следующие разделы проектной документации для согласования в исполкоме:
- АС - архитектурно-строительные решения;
- ОВ - отопление и вентиляция.
