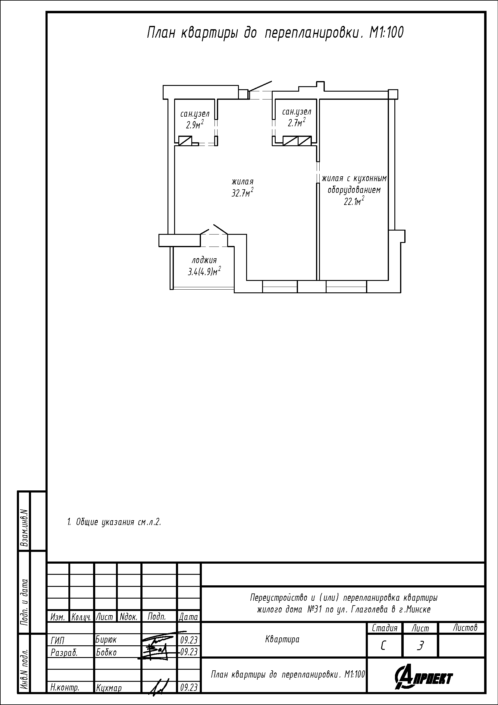
Перепланировка квартиры по ул. Глаголева в ЖК «Смарт»
Пожелания заказчика:
- Разделение общего жилого помещения на две жилые и коридор;
- Устройство ванной на площади санузла 2.9м2; увеличение площади ванной;
- Устройство туалета на площади санузла 2.7м2; устройство зашивок из ГКЛ;
- Смена направления открывания входной двери.
Нами были разработаны следующие разделы проектной документации для согласования в исполкоме:
- АС - архитектурно-строительные решения.
