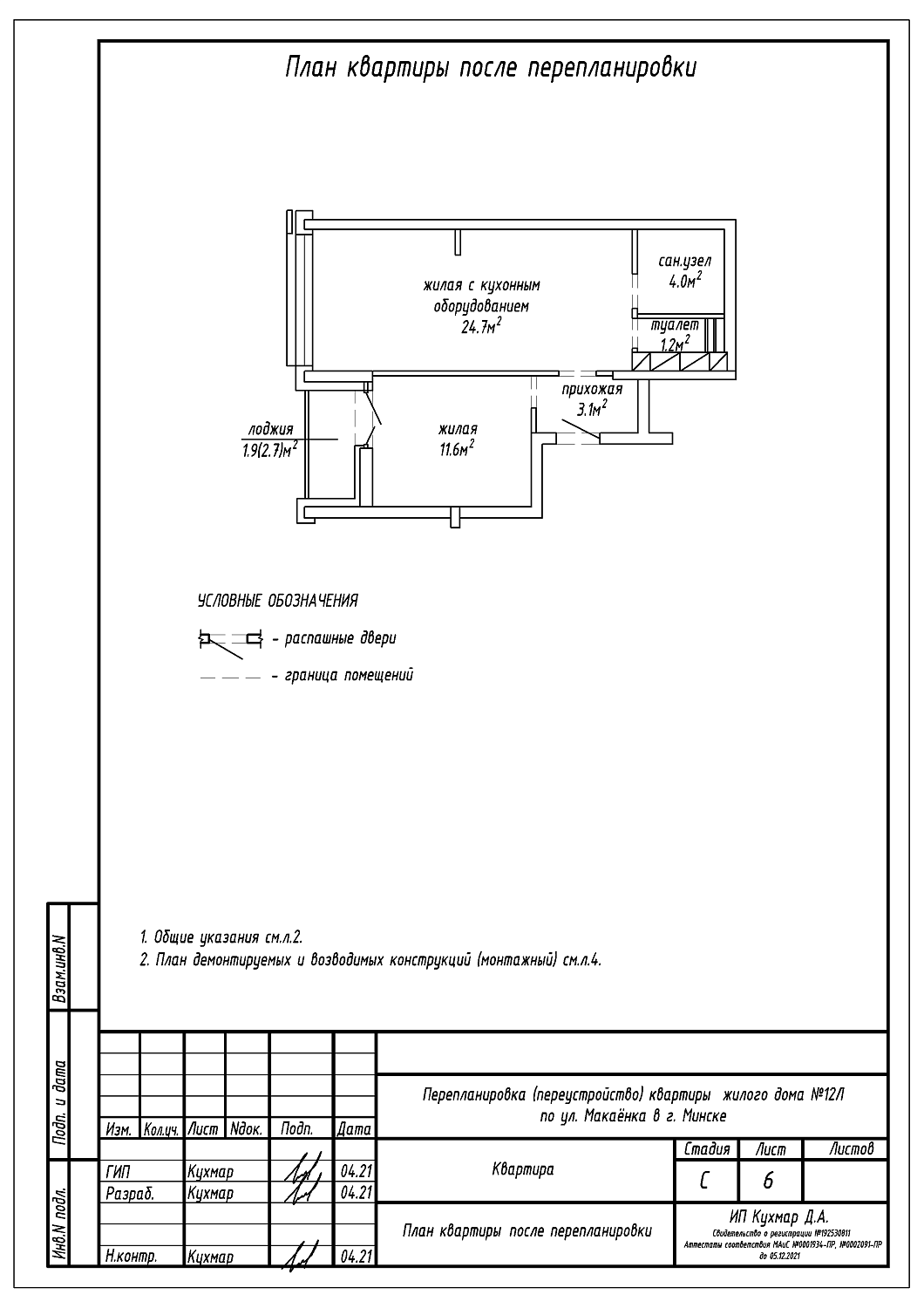
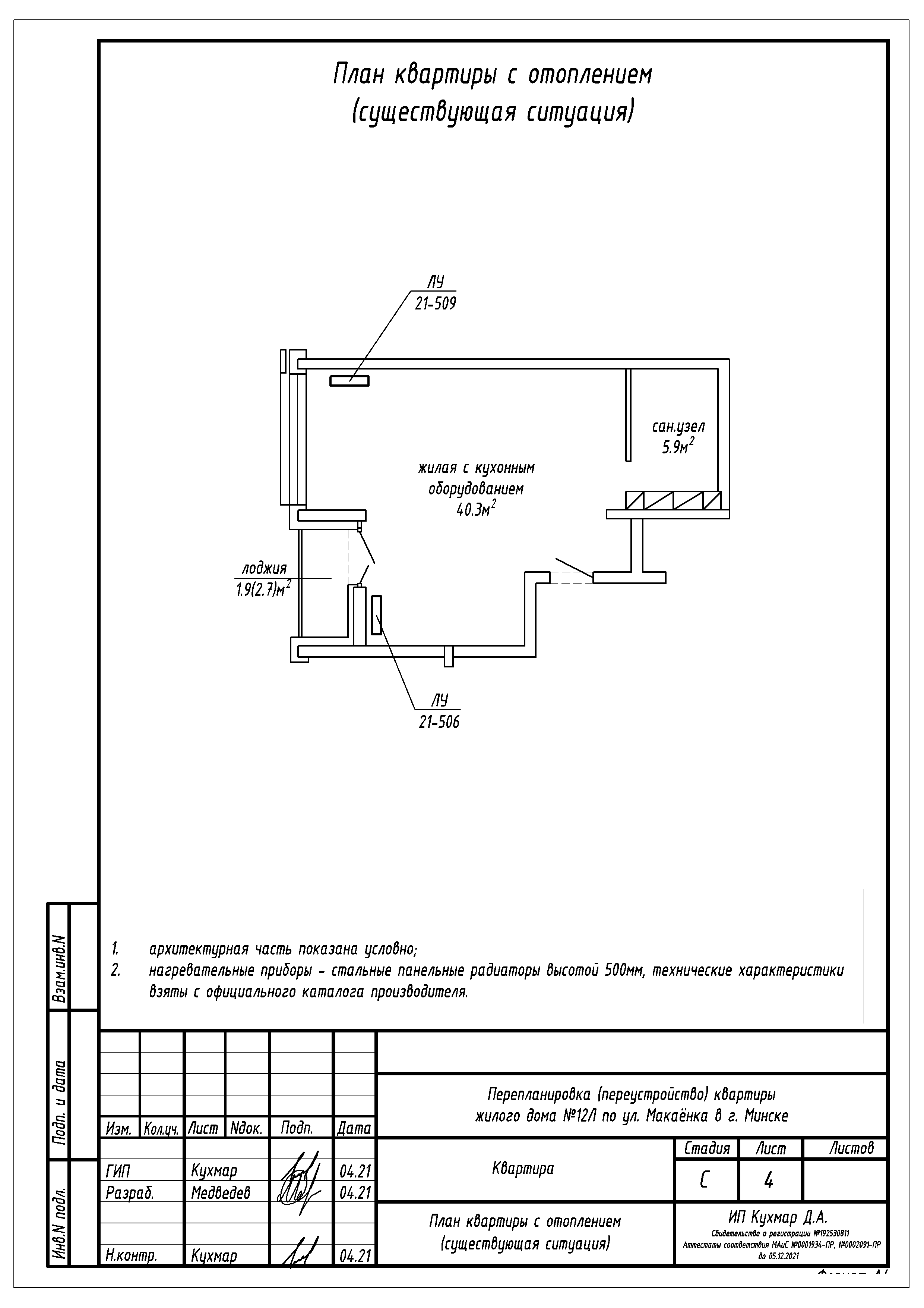
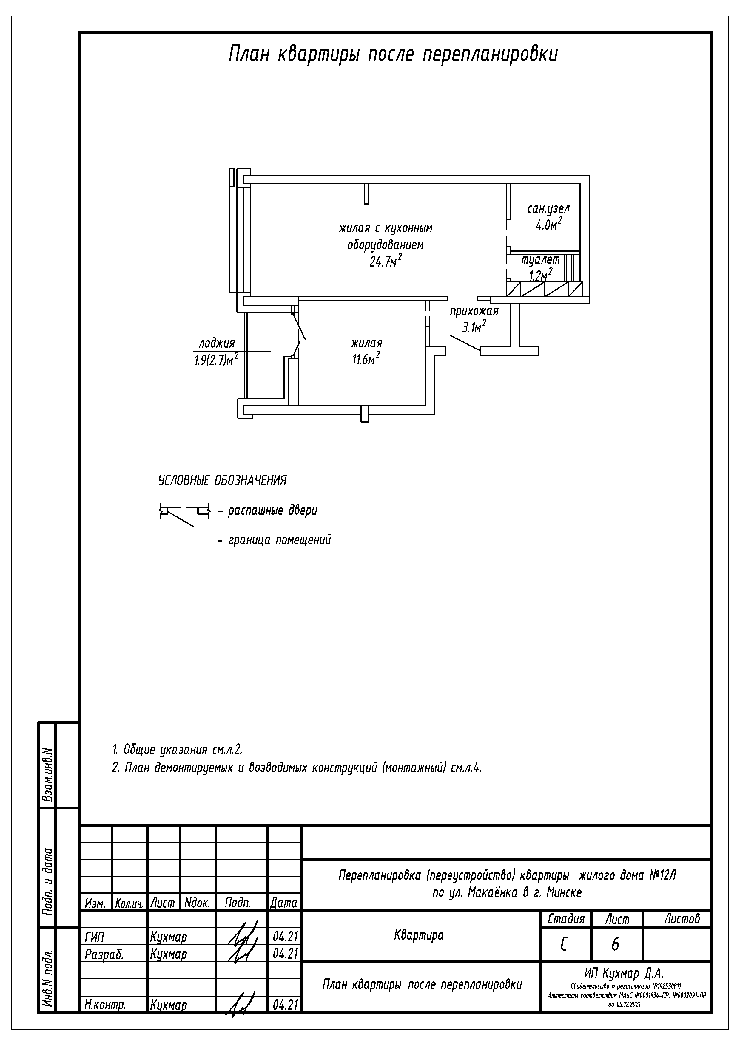
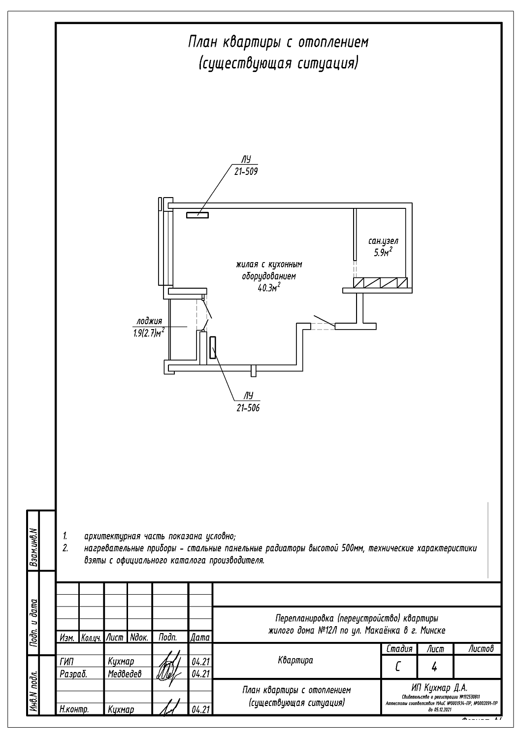
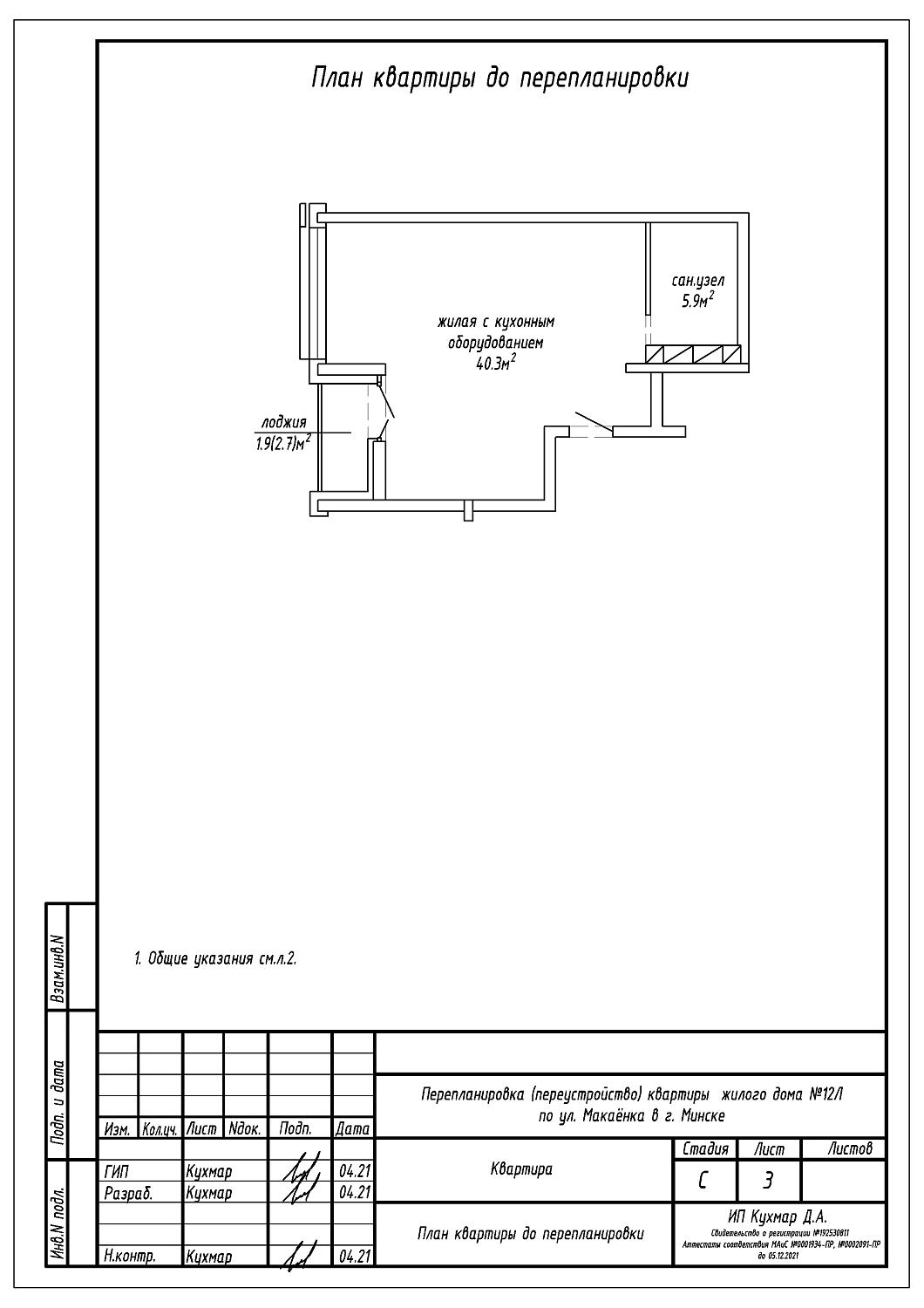
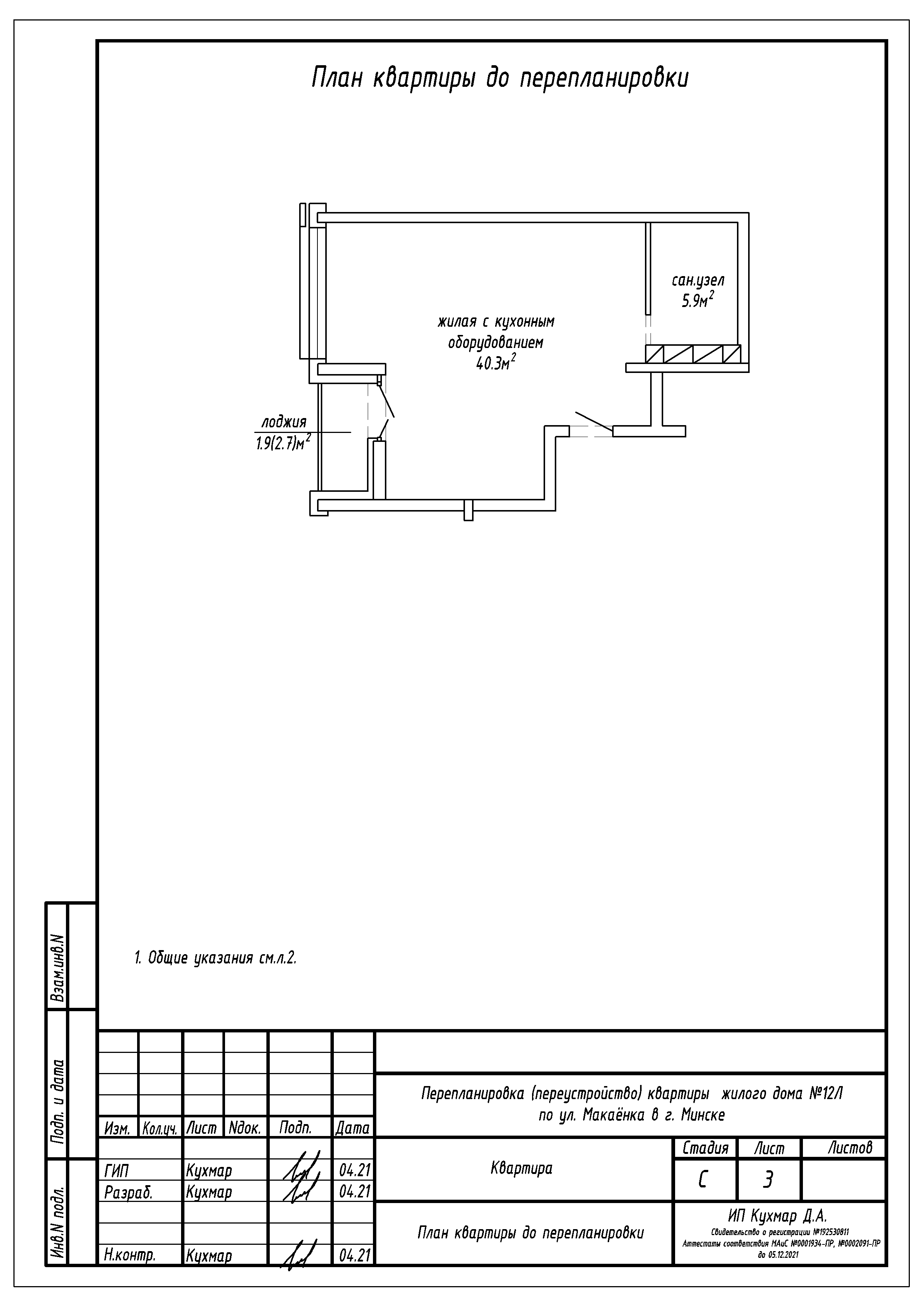
Перепланировка квартиры по ул. Макаёнка, 12Л в ЖК «Vogue»
Пожелания заказчика:
- Разделение общей жилой с кухонным оборудованием на жилую с кухонным оборудованием, жилую и прихожую;
- Разделение общего санузла на санузел и туалет;
- Замена и перенос отопительных приборов.
Нами были разработаны следующие разделы проектной документации для согласования в исполкоме:
- АС - архитектурно-строительные решения;
- ОВ - отопление и вентиляция.
