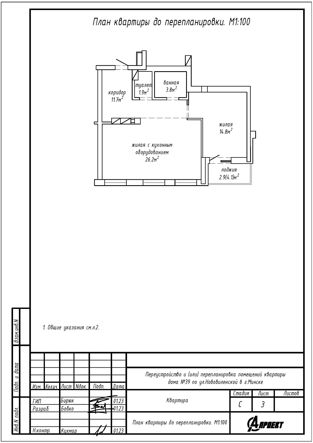
Перепланировка квартиры по ул. Нововиленская, 39 в ЖК «Левада»
Пожелания заказчика:
- Демонтаж части перегородок между жилой с кухонным оборудованием, жилой с коридором с последующим устройством новых перегородок , образованием помещений: жилой с кухонным оборудованием, жилой комнаты и коридора;
- Демонтаж перегородок между ванной и коридором с последующим устройством новых перегородок, образованием ванной с увеличением за счёт площади коридора.
Нами были разработаны следующие разделы проектной документации для согласования в исполкоме:
- АС - архитектурно-строительные решения.
