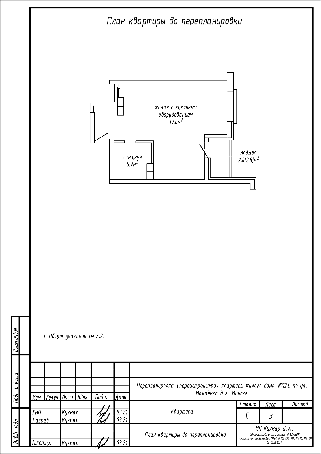
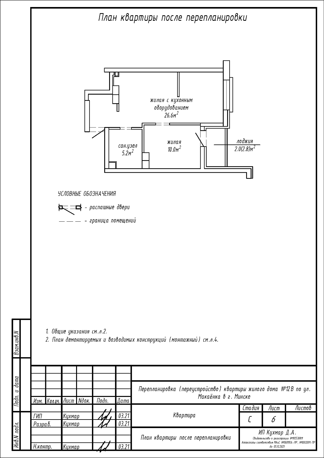
Перепланировка квартиры по ул. Макаёнка, 12В в ЖК «Vogue»
Пожелания заказчика:
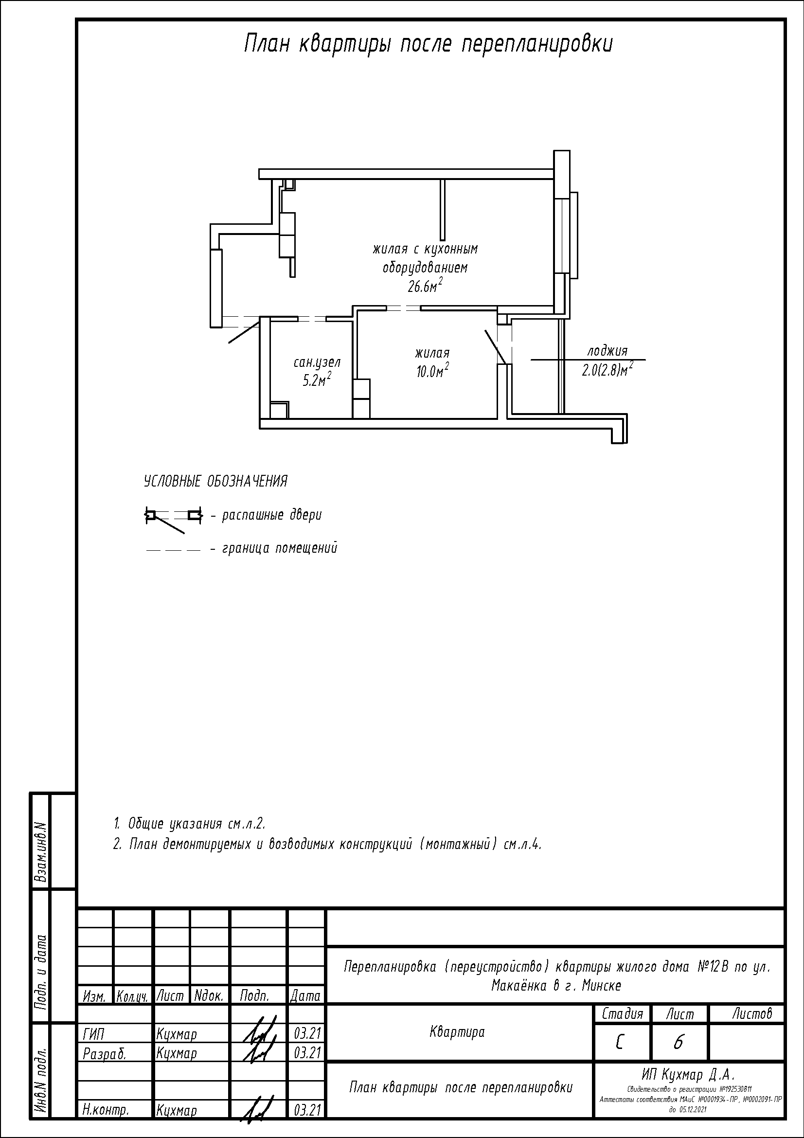
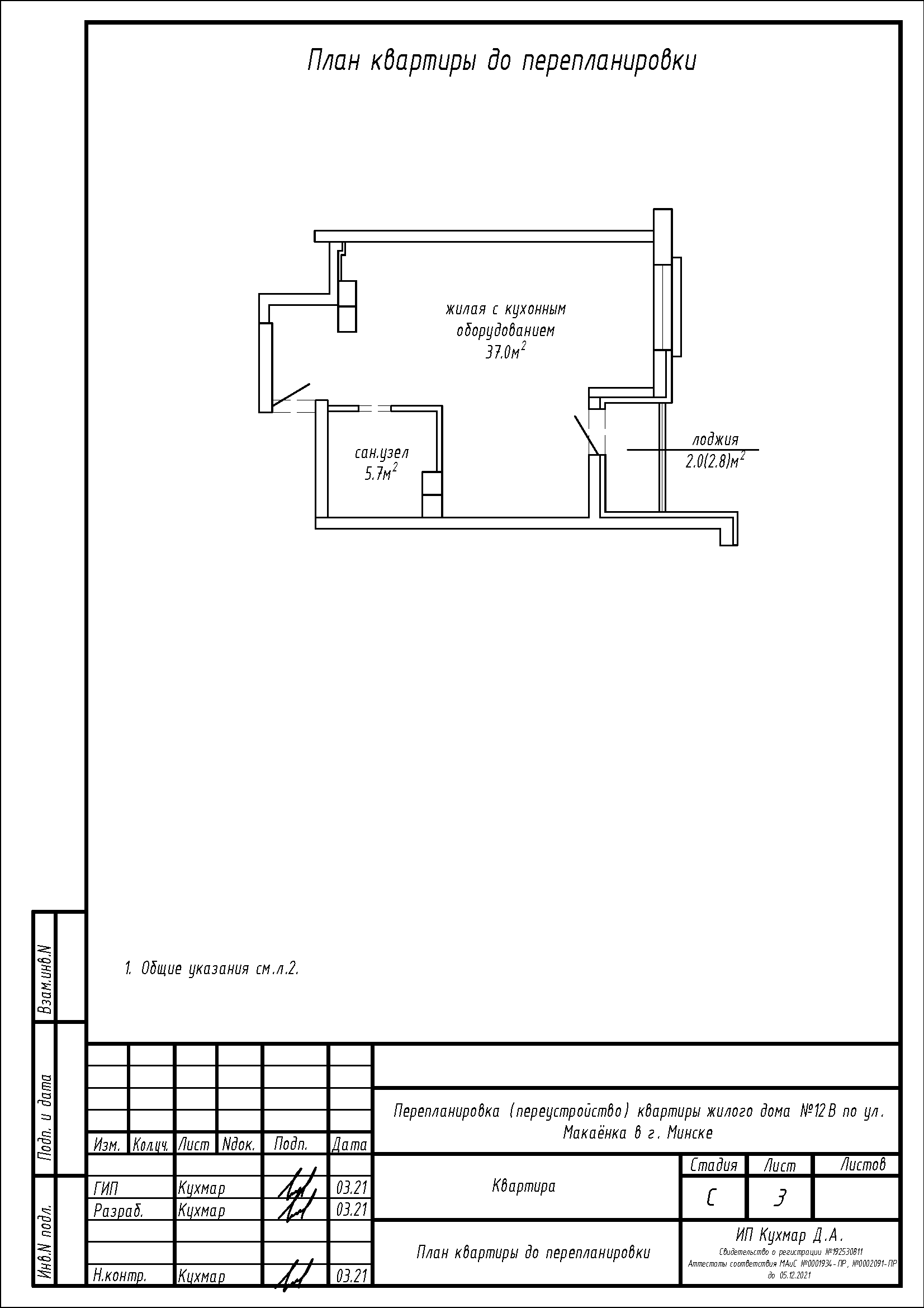
- Изменение площади санузла за счет жилой с кухонным оборудованием (не более 25%);
- Разделение общего помещения жилой с кухонным оборудованием на жилую и жилую с кухонным оборудованием;
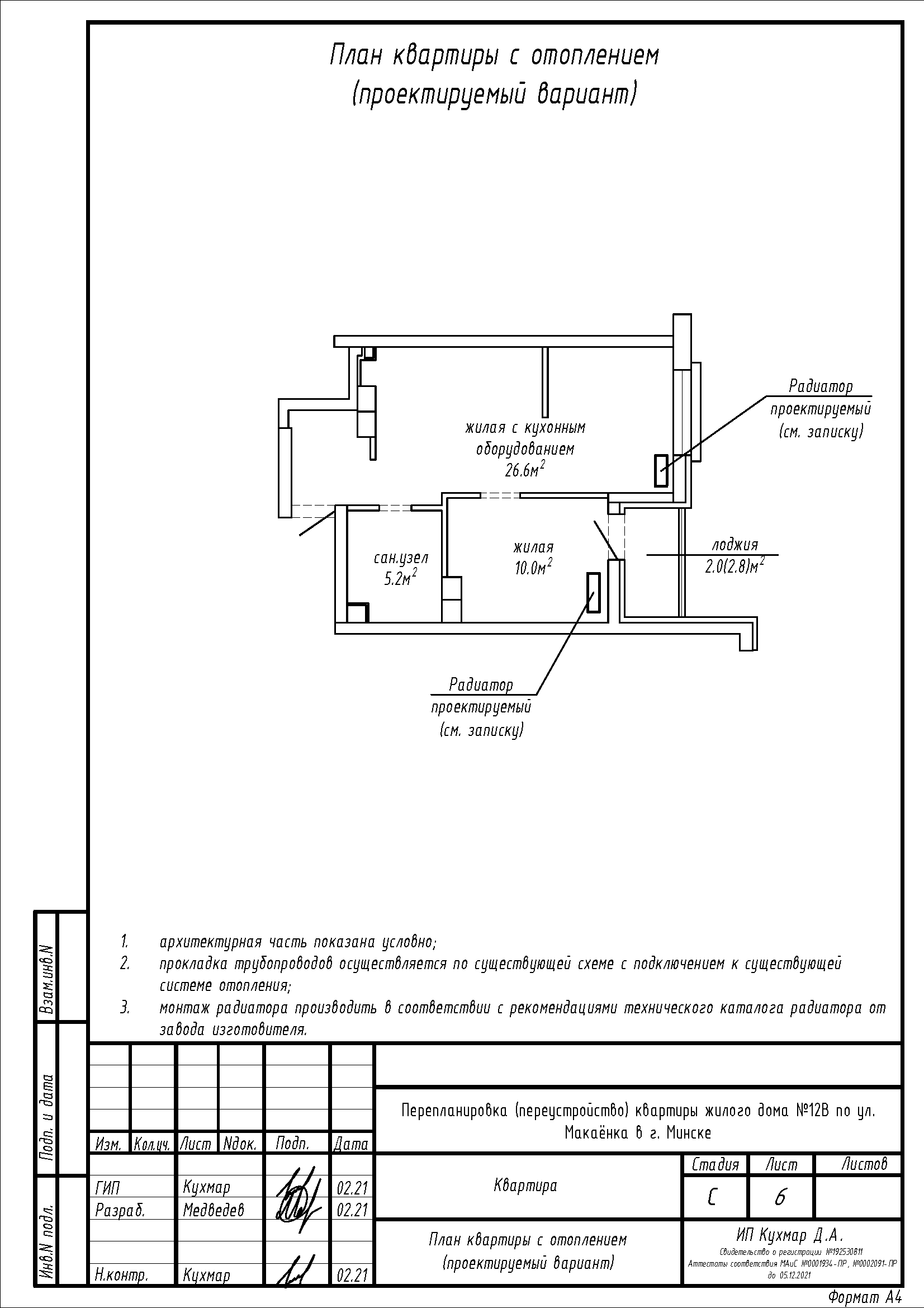
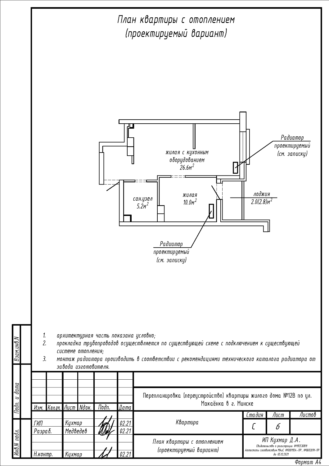
- Замена отопительных приборов.
Нами были разработаны следующие разделы проектной документации для согласования в исполкоме:
- АС - архитектурно-строительные решения;
- ОВ - отопление и вентиляция.
