Перепланировка квартиры по ул. Левина, 11 в ЖК «Минск Мир»
Пожелания заказчика:
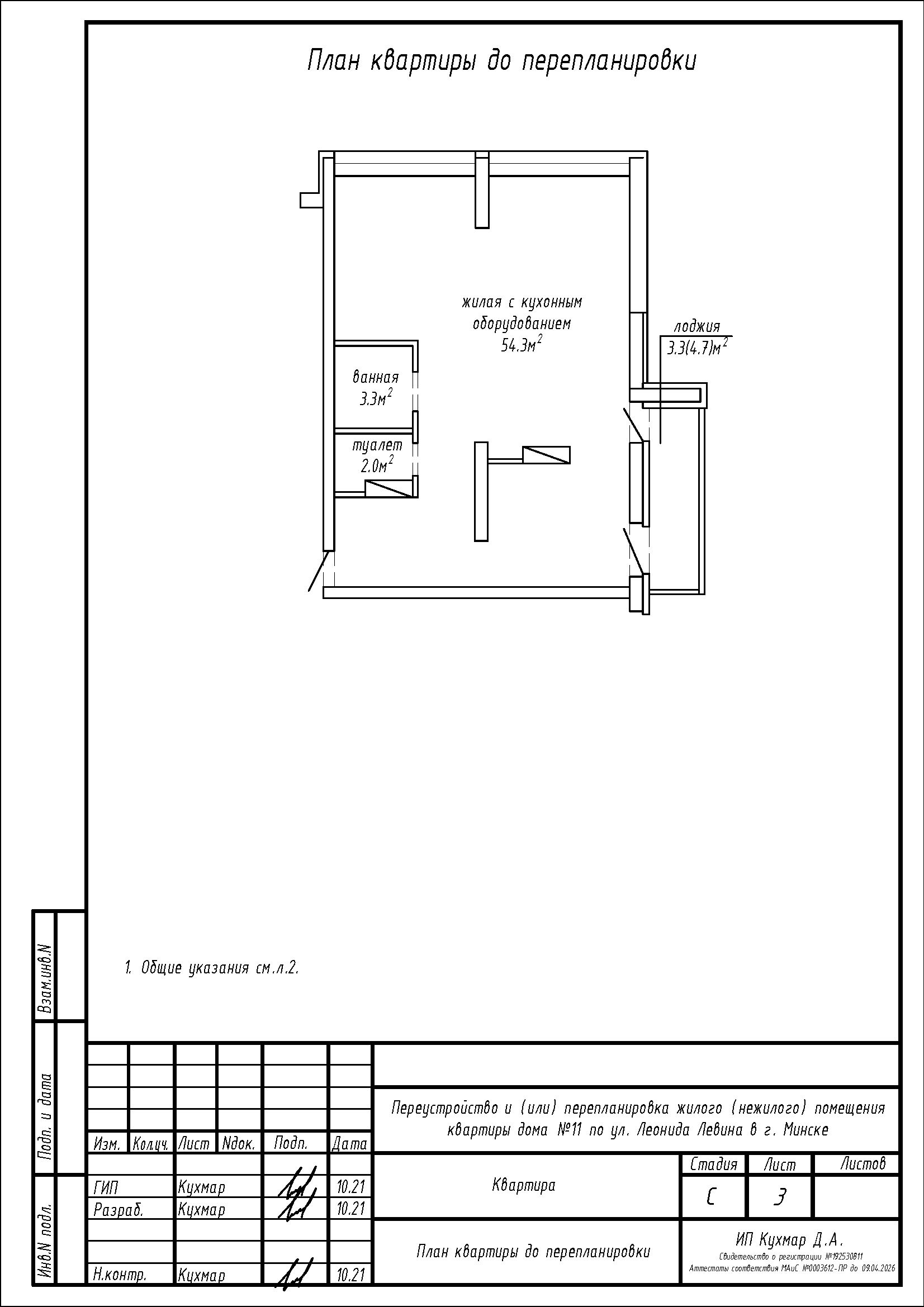
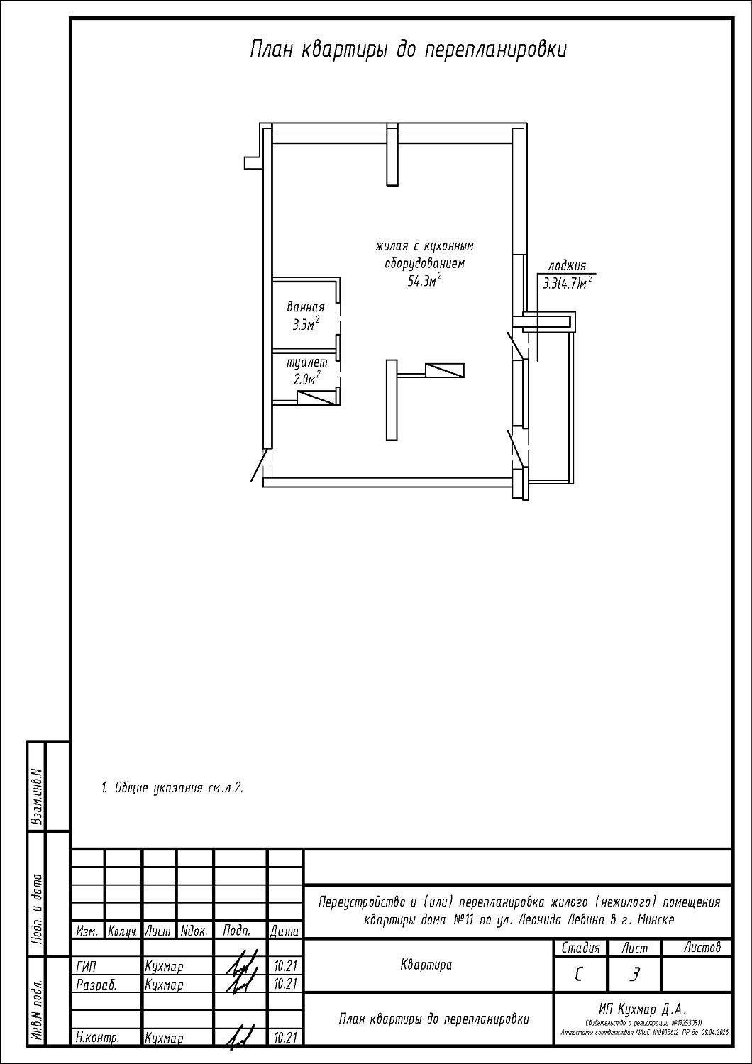
- Разделение общей жилой с кухонным оборудованием на жилую с кухонным оборудованием, две жилые, и прихожую;
- Закладка дверного проёма между лоджией и жилой;
- Объединение ванной и туалета в единый санузел; уменьшение площади ванной;
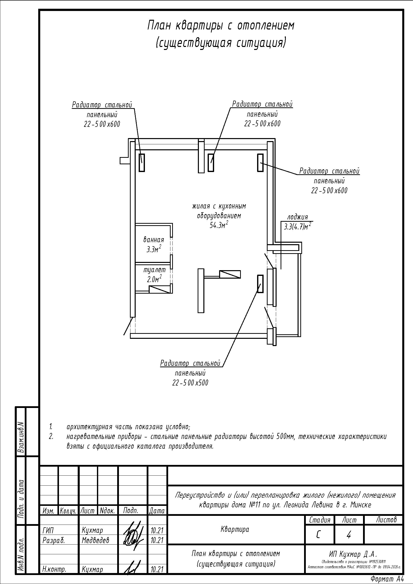
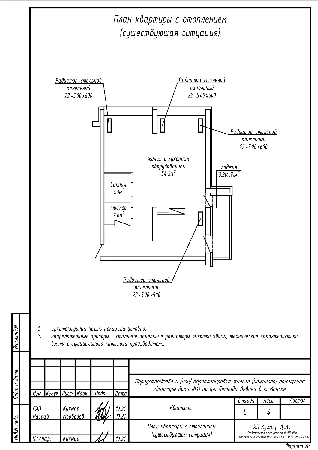
- Перенос и замена отопительных приборов.
Нами были разработаны следующие разделы проектной документации для согласования в исполкоме:
- АС - архитектурно-строительные решения;
- ОВ - отопление и вентиляция.
