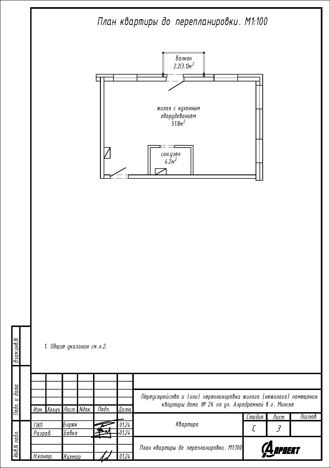
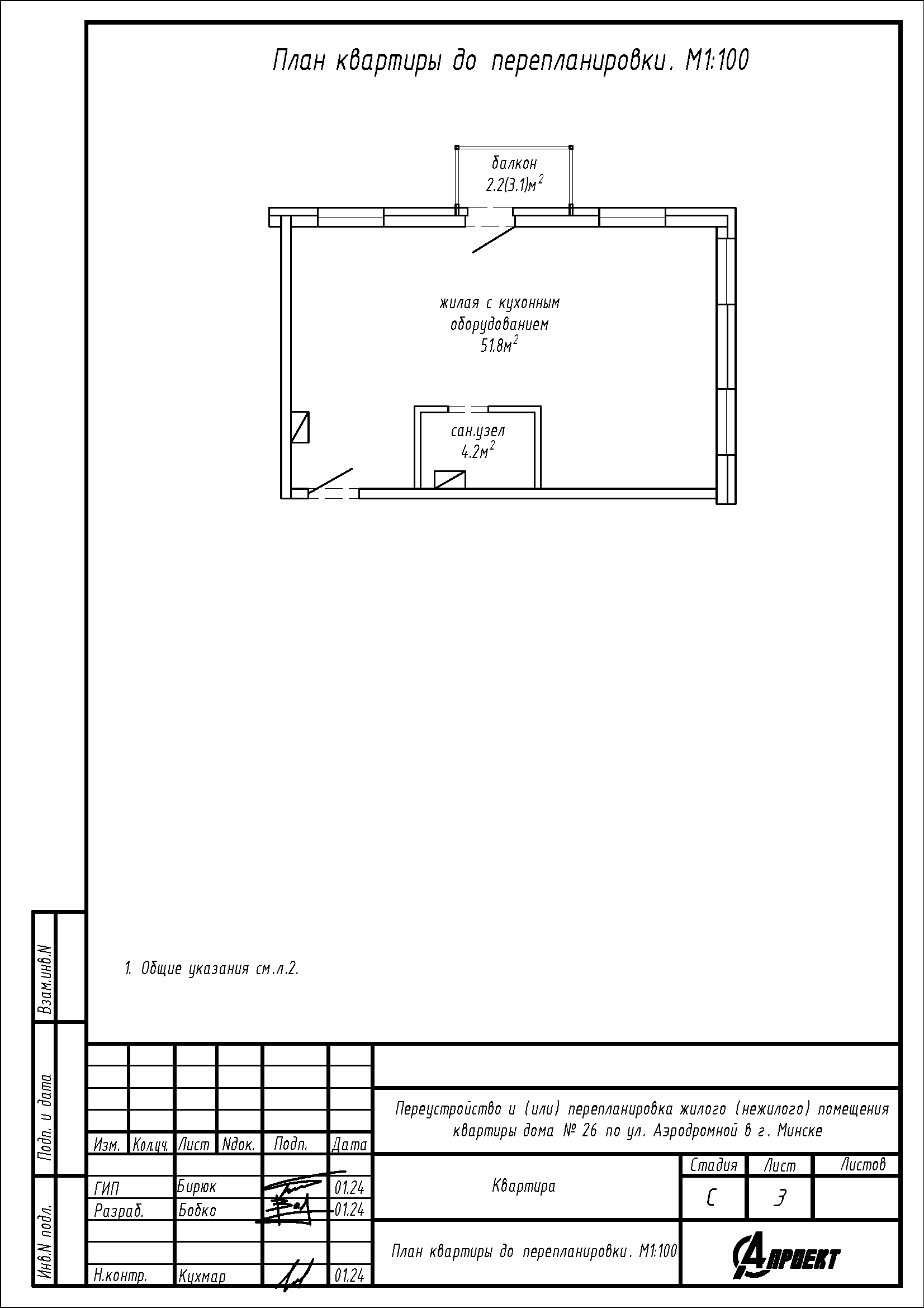
Перепланировка квартиры по ул. Аэродромная, 26 в ЖК «Минск Мир»
Пожелания заказчика:- Разделение общей жилой с кухонным оборудованием на жилую с кухонным оборудованием и две жилые;
- Смена направления открывания входной двери;
- Устройство зашивок из ГКЛ на площади санузла и площади жилой с кухонным оборудованием;
- Увеличение площади санузла, но не более чем на 25%.
Нами были разработаны следующие разделы проектной документации для согласования в исполкоме:
- АС - архитектурно-строительные решения.
