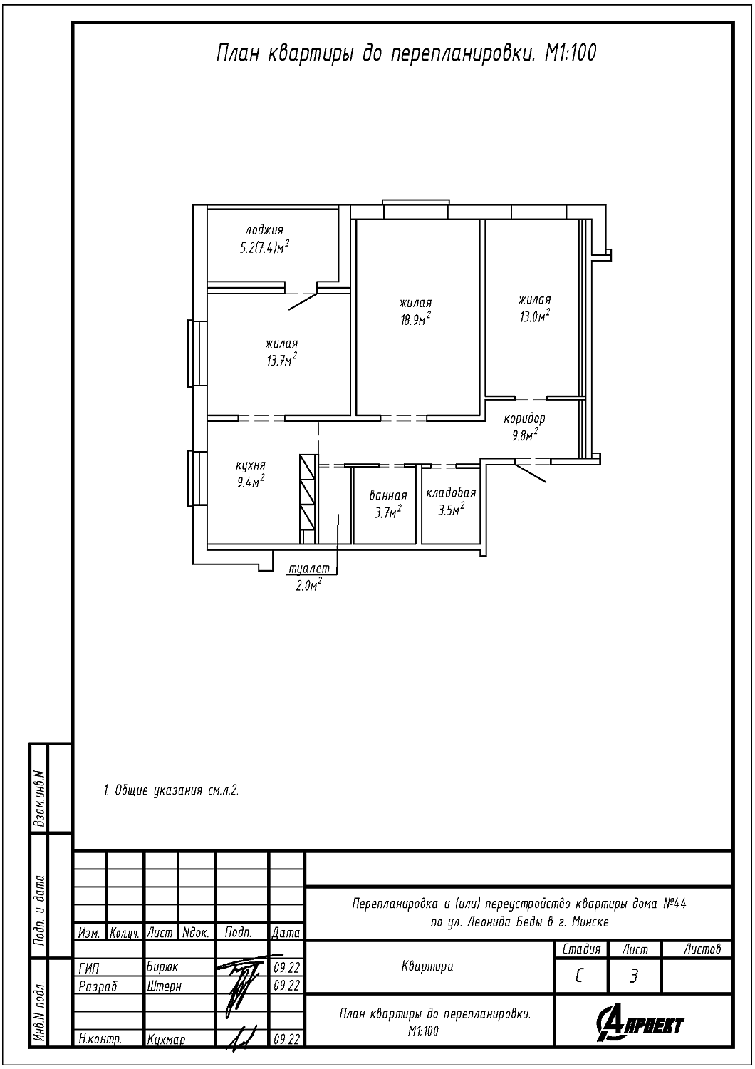
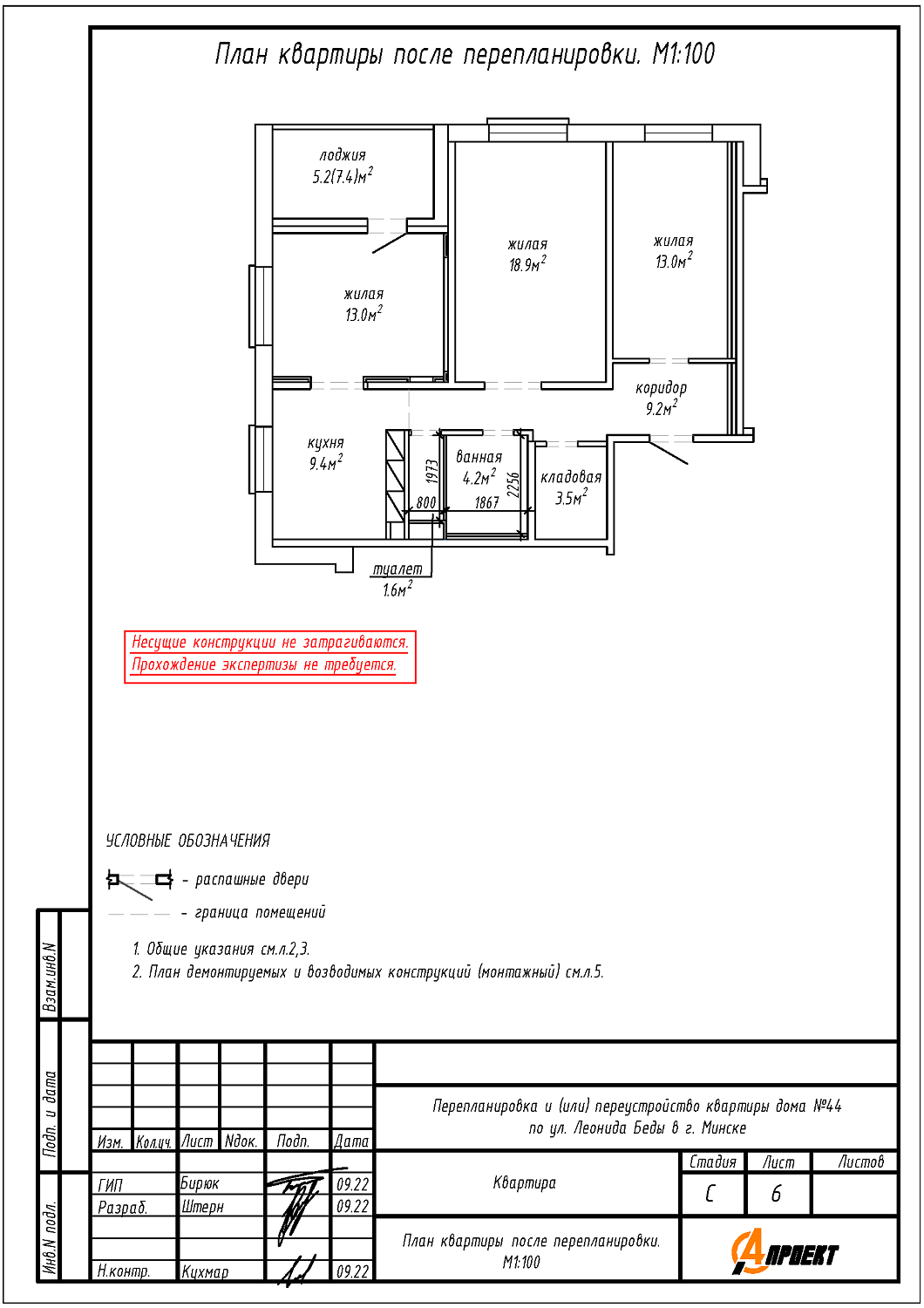
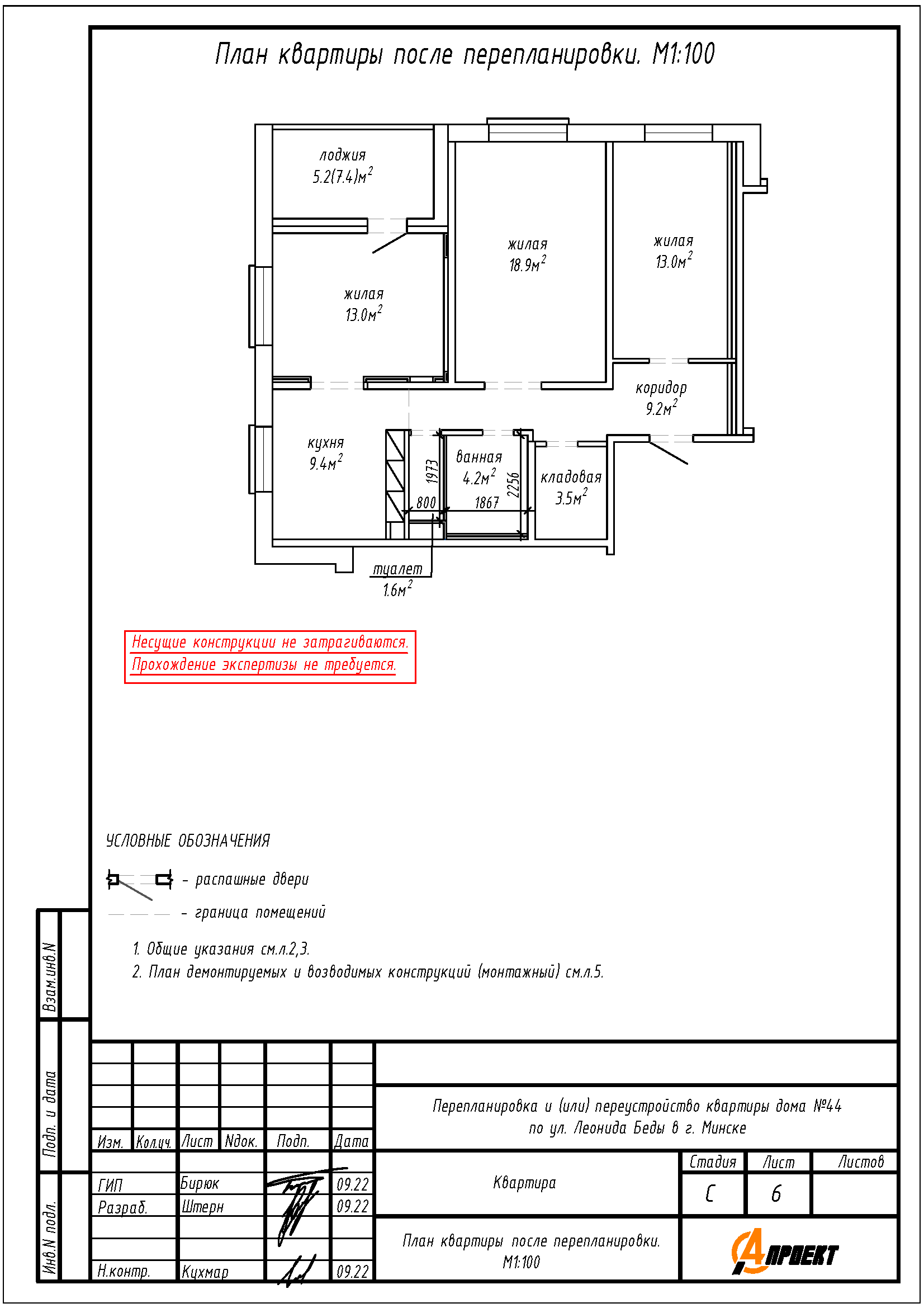
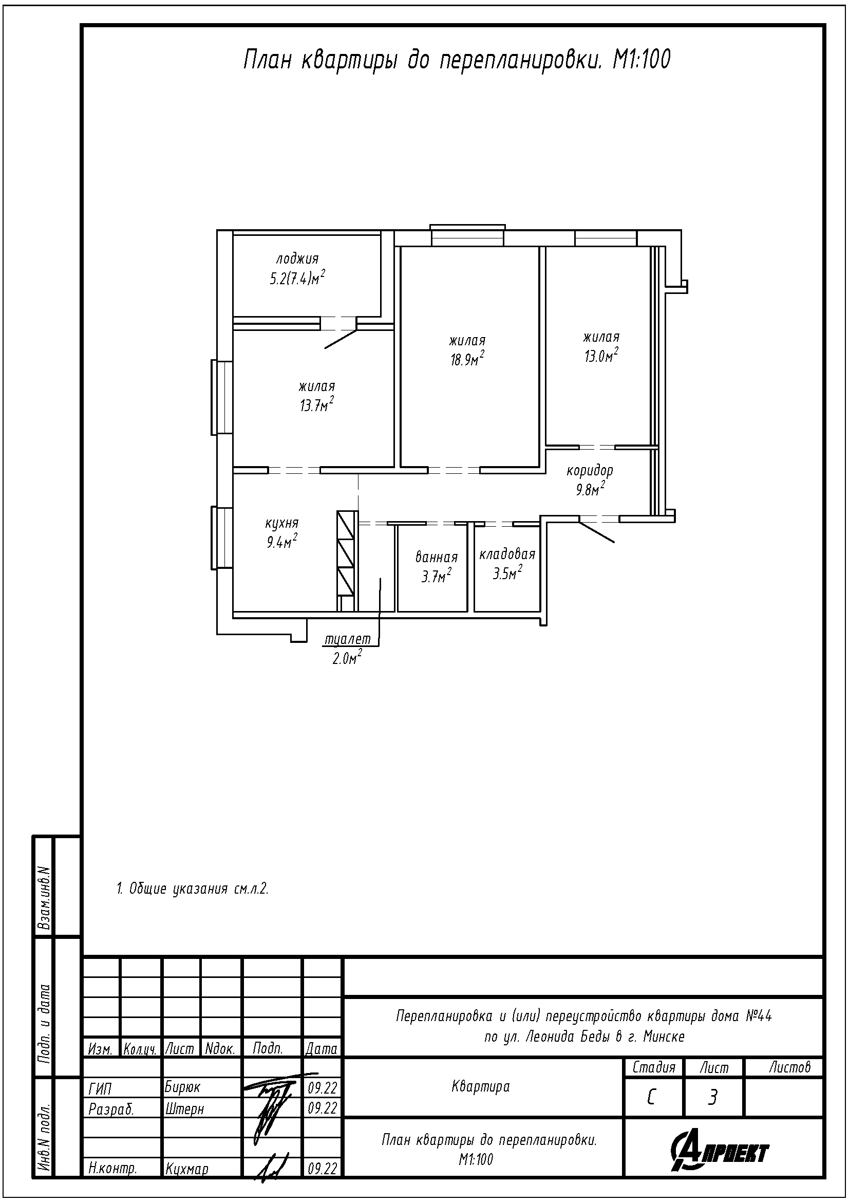
Перепланировка квартиры по ул. Леонида Беды, 44 в ЖК «4 Сезона»
Пожелания заказчика:
- Увеличение площади ванной;
- Изменение площади туалета;
- Сужение дверного проёма в стене между жилой и кухней;
- Устройство зашивок из ГКЛ на части площади жилой.
Нами были разработаны следующие разделы проектной документации для согласования в исполкоме:
- АС - архитектурно-строительные решения.
