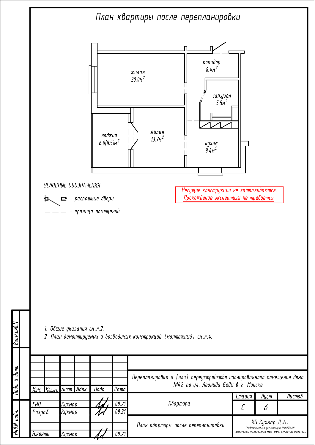
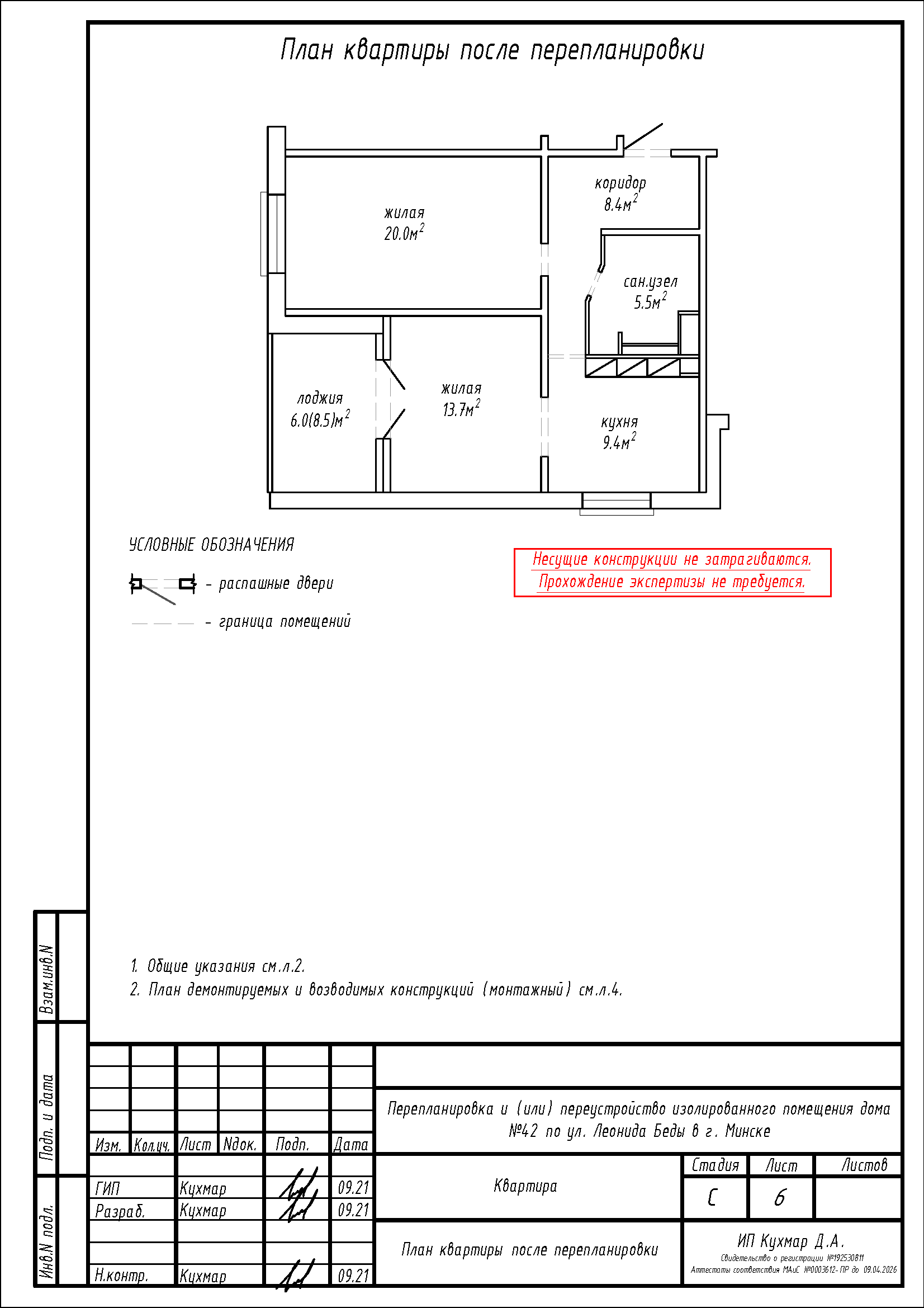
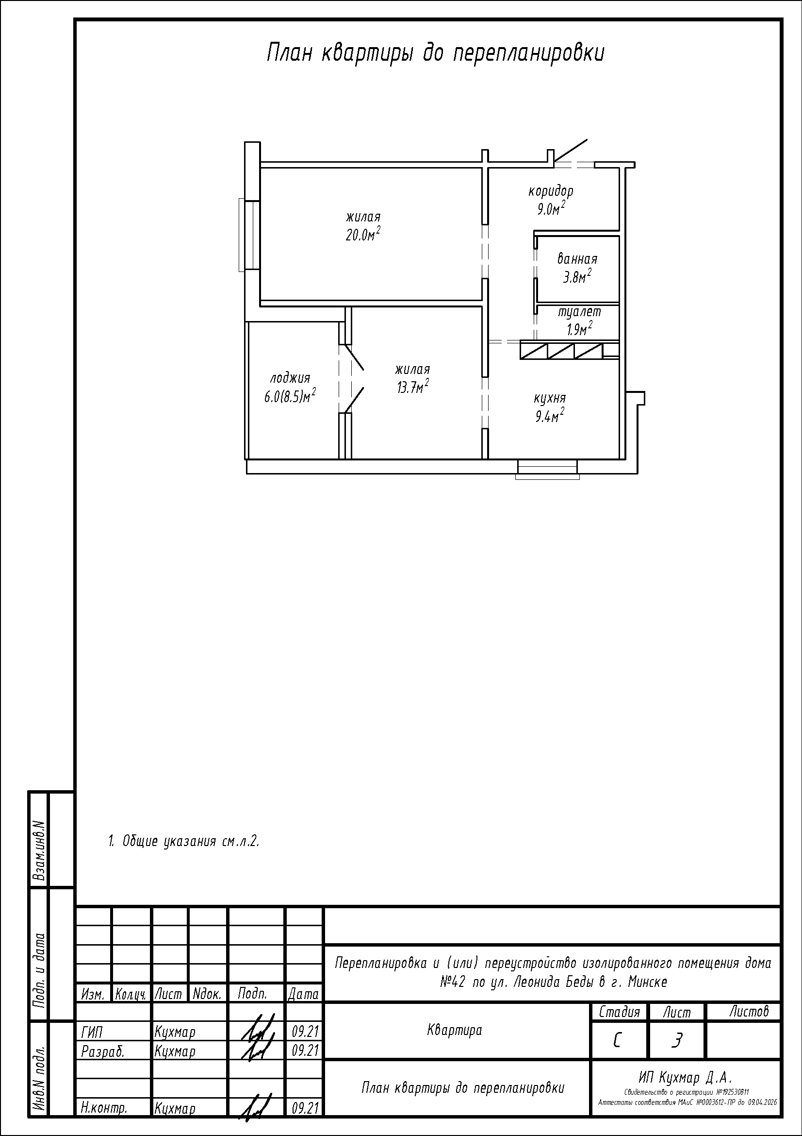
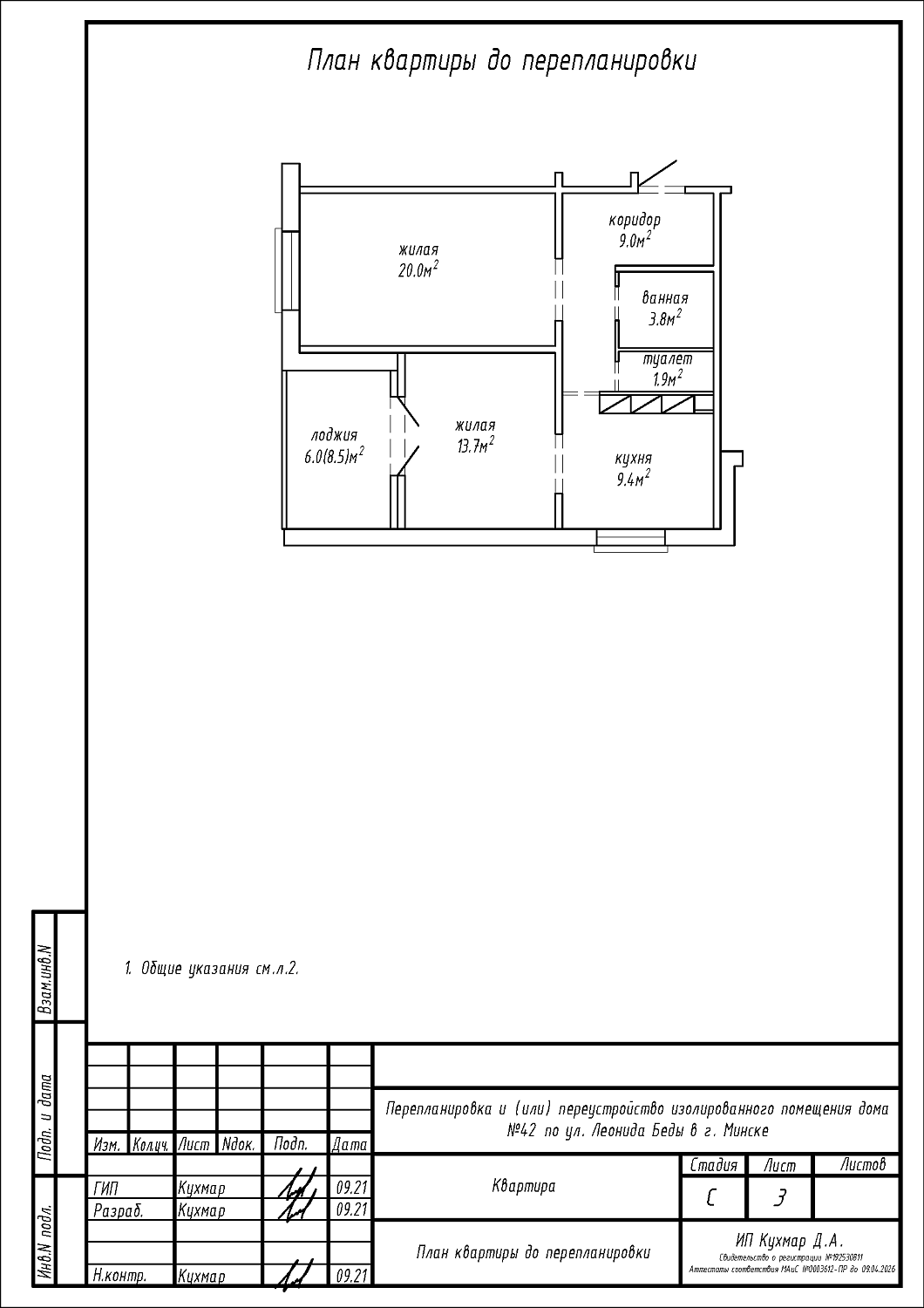
Перепланировка квартиры по ул. Леонида Беды, 42 в ЖК «4 Сезона»
Пожелания заказчика:- Сужение дверного проёма между жилой и коридором;
- Объединение ванной и туалета в единый санузел; Увеличение объединённого санузла за счёт части площади коридора.
Нами были разработаны следующие разделы проектной документации для согласования в исполкоме:
- АС - архитектурно-строительные решения.
