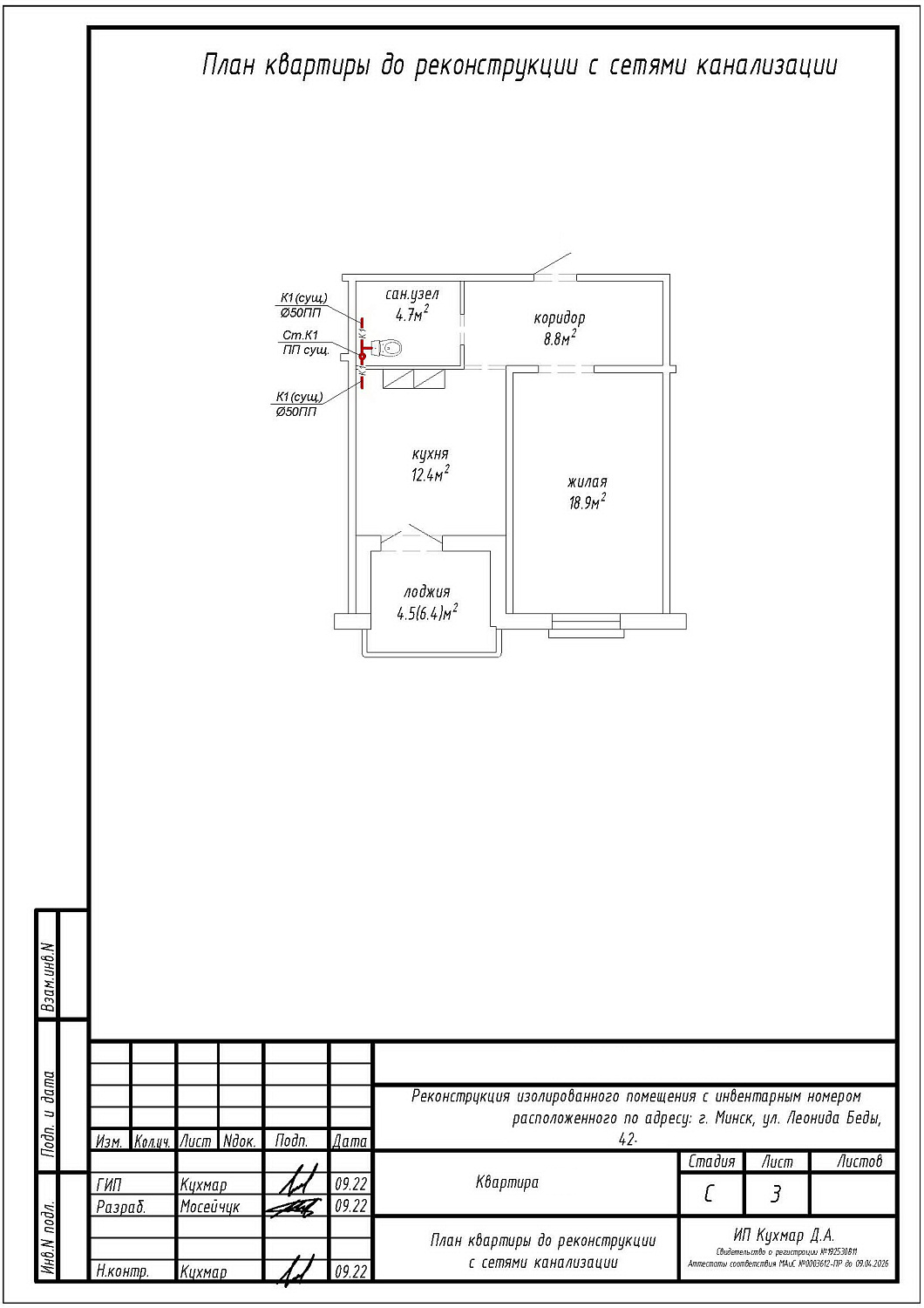
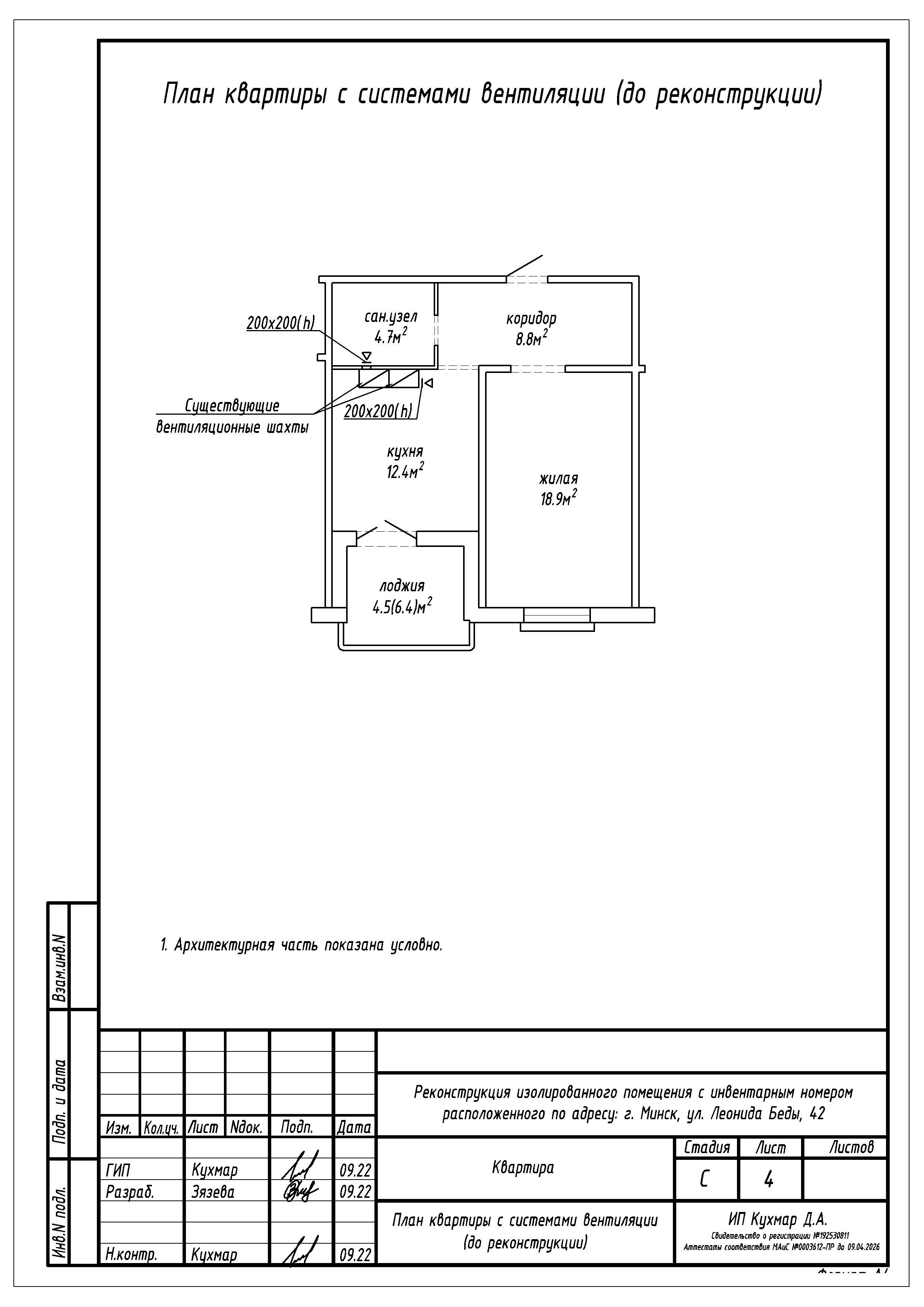
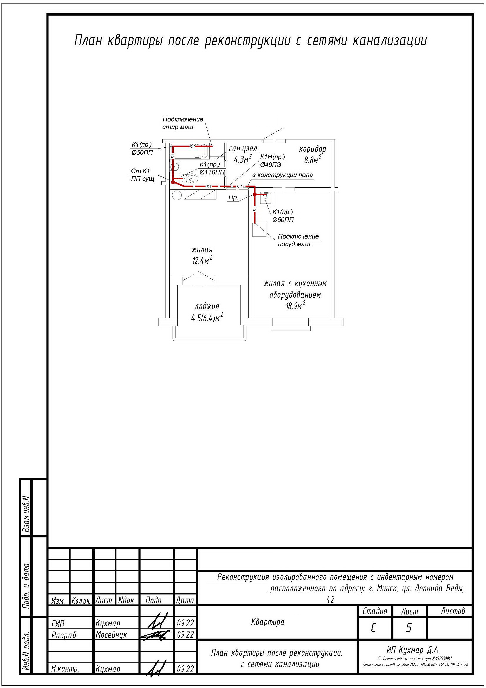
Реконструкция квартиры по ул. Леонида Беды, 42 в ЖК «4 Сезона»
Пожелания заказчика:
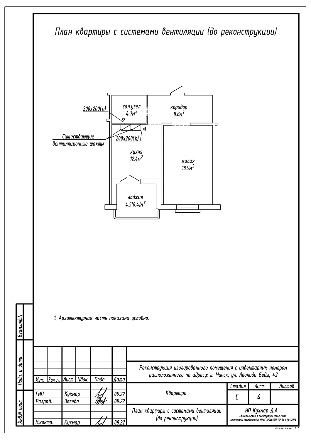
- Устройство жилой с кухонным оборудованием на площади жилой и жилой на площади кухни;
- Устройство зашивки из ГКЛ на части площади санузла;
- Частичная закладка дверного проёма в стене между жилой и коридором;
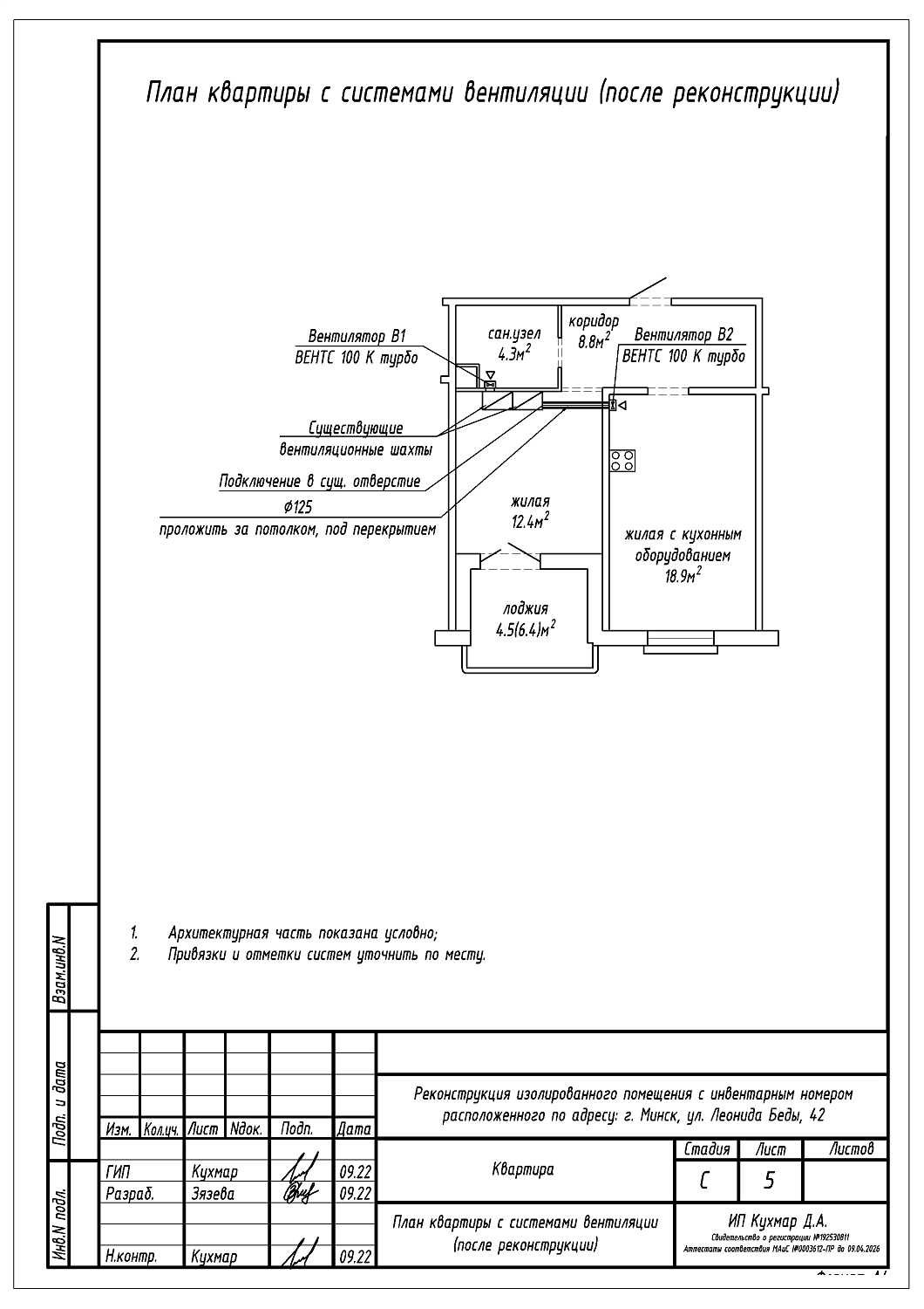
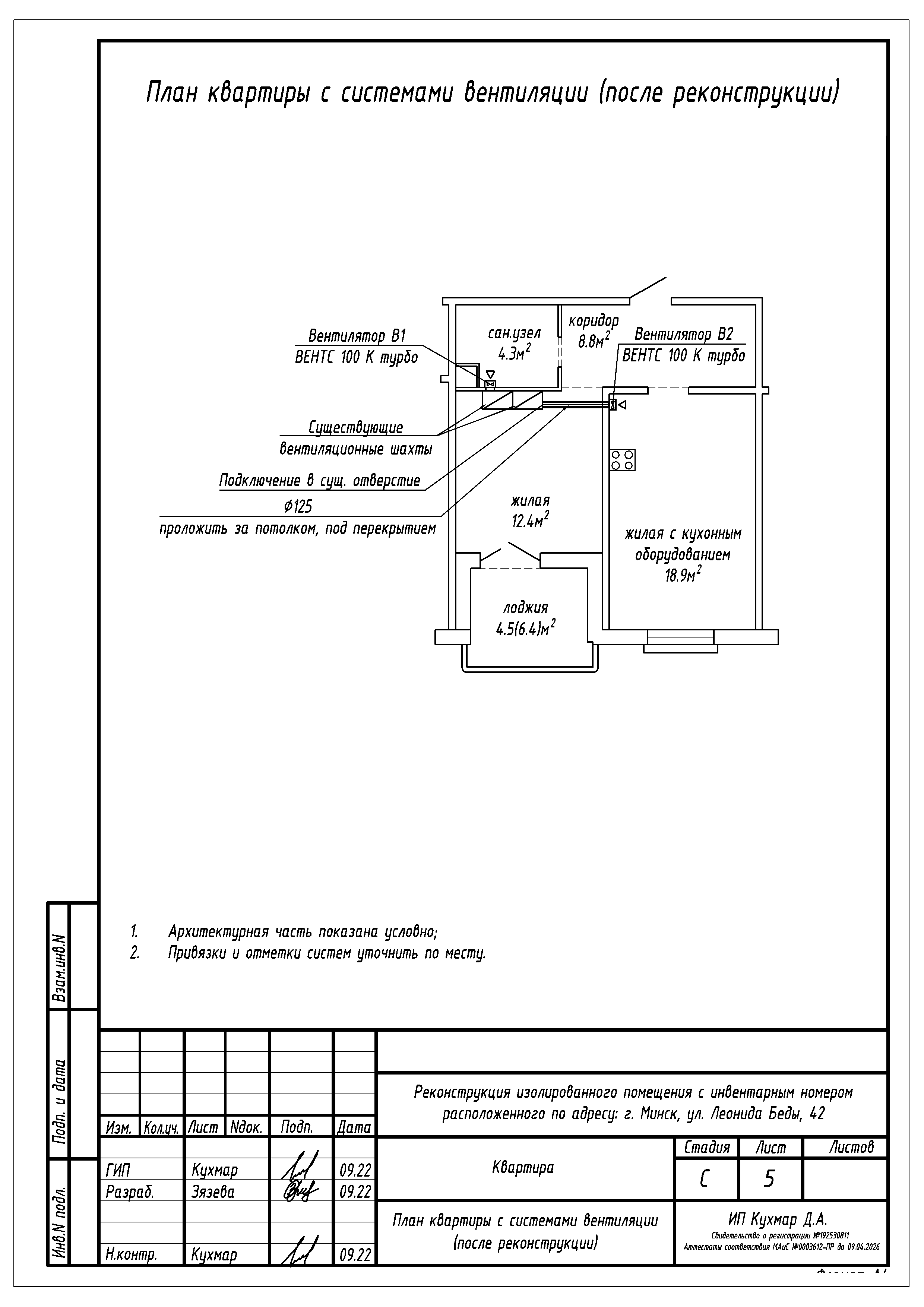
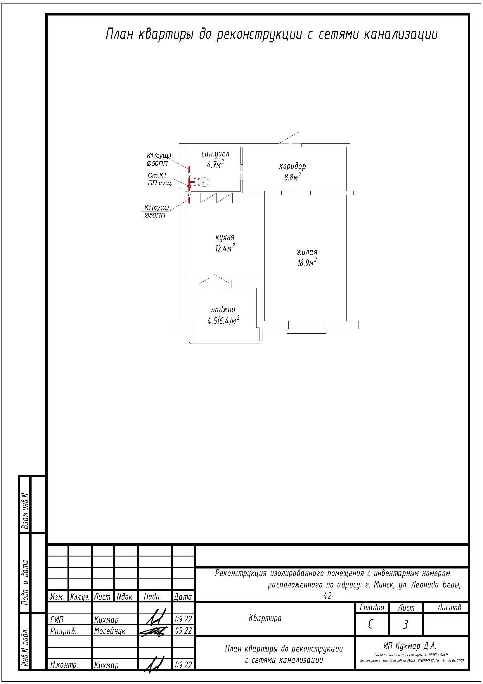
- Проектирование систем вентиляции, канализации, водоснабжения.
Нами были разработаны следующие разделы проектной документации для согласования в исполкоме:
- АС - архитектурно-строительные решения;
- ОВ - отопление и вентиляция;
- ВК - водоснабжение и канализация.
