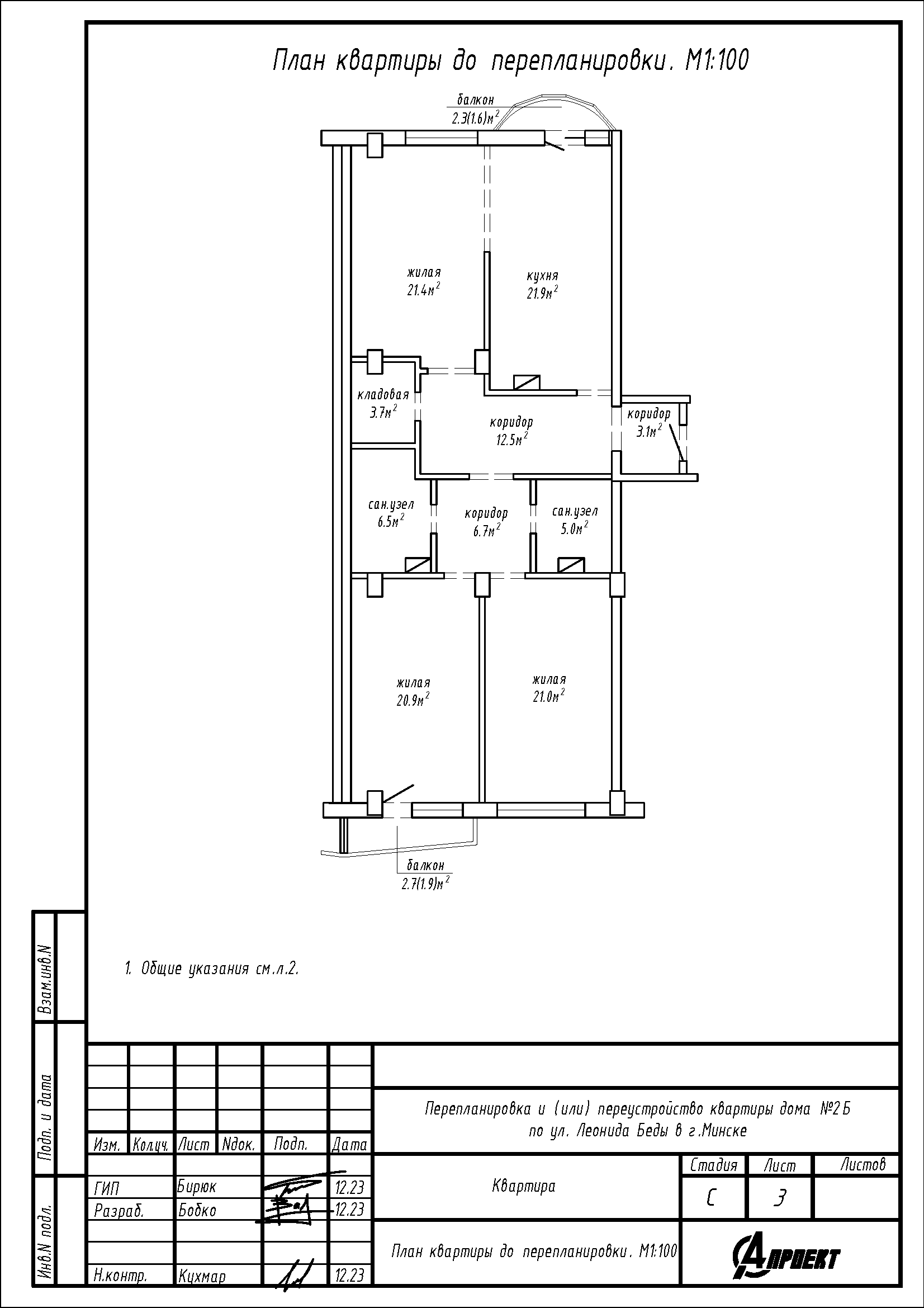
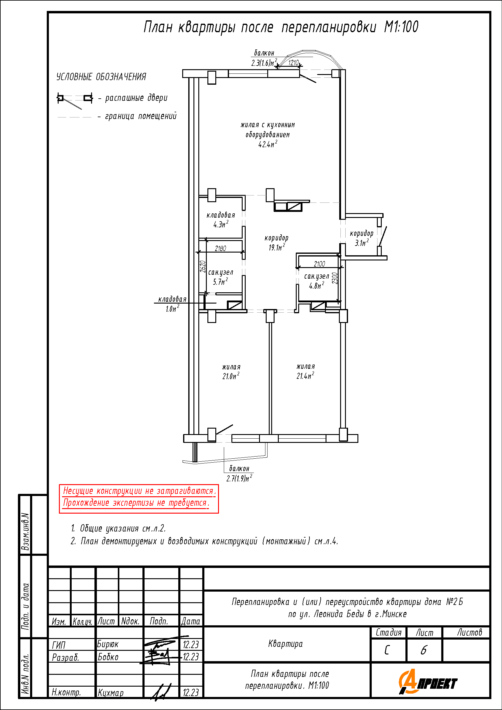
Перепланировка квартиры по ул. Леонида Беды, 2Б в г. Минске
Пожелания заказчика:
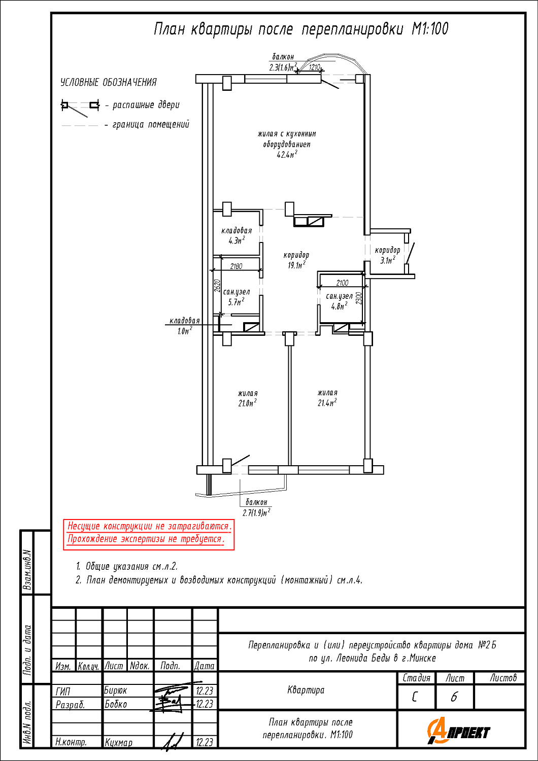
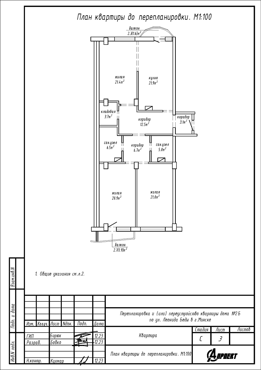
- Демонтаж подоконной части и расширение дверного проема с последующим устройством дверного блока в стене между балконом 2.3 (1.6) м2 и кухней 21.9 м2;
- Демонтаж перегородок с дверными проемами между кухней 21.9 м2, жилой 21.4 м2, коридором 12.5 м2, коридором 6.7м2, сан. узлом 5.0 м2, кладовой З.7 м2, сан. узлом 6.5 м2, жилой 21.0 м2 и жилой 20.9 м2 с последующим устройством перегородок с дверными проемами и зашивок из ГКЛ на части площади кухни 21.9 м2, кладовой 3.7 м2, коридора 12.5 м2, коридора 6.7 м2, сан. узла 6.5 м2, сан. узла 5.0 м2 и жилой 21.0 м2 с целью устройства жилой с кухонным оборудованием, коридора, двух кладовых, двух сан. узлов и двух жилых;
- Смещение дверного проема входной двери с заменой дверного блока со сменой направления открывания;
- Смещение дверного проема в перегородке между коридором 6.7 м2 и жилой 20.9 м2;
- Уменьшение дверного проема в стене между коридором 3.1 м2 и коридором 12.5 м2.
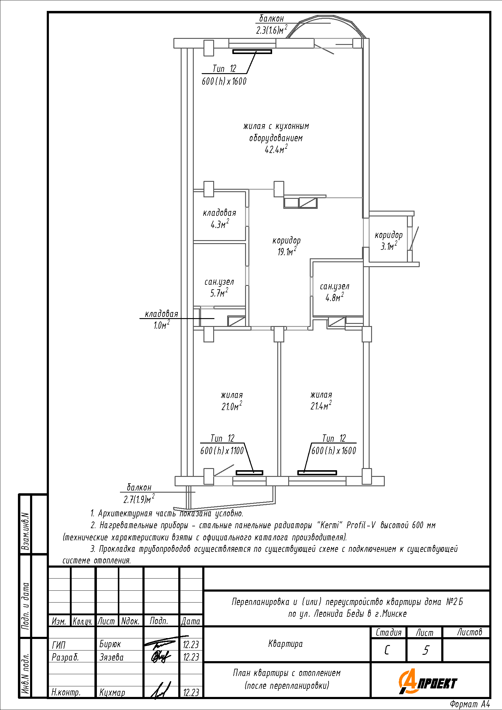
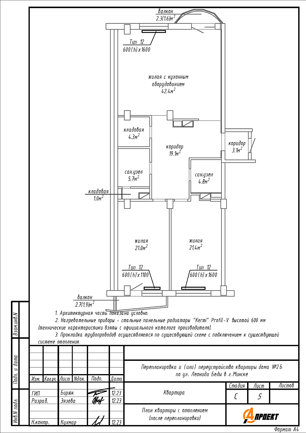
- Замена и перенос отопительных приборов.
Нами были разработаны следующие разделы проектной документации для согласования в исполкоме:
- АС - архитектурно-строительные решения.
- ОВ - отопление и вентиляция.


