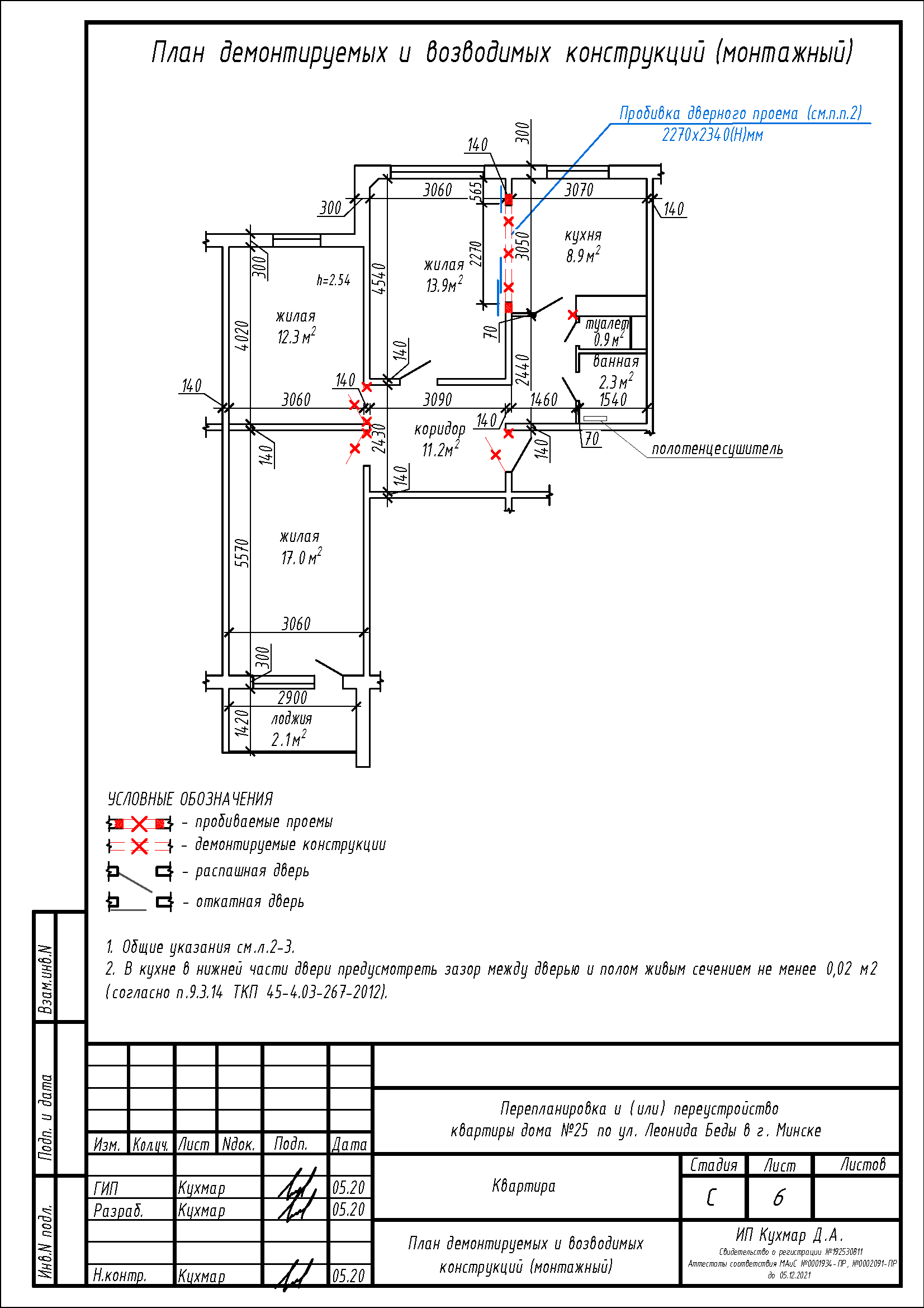
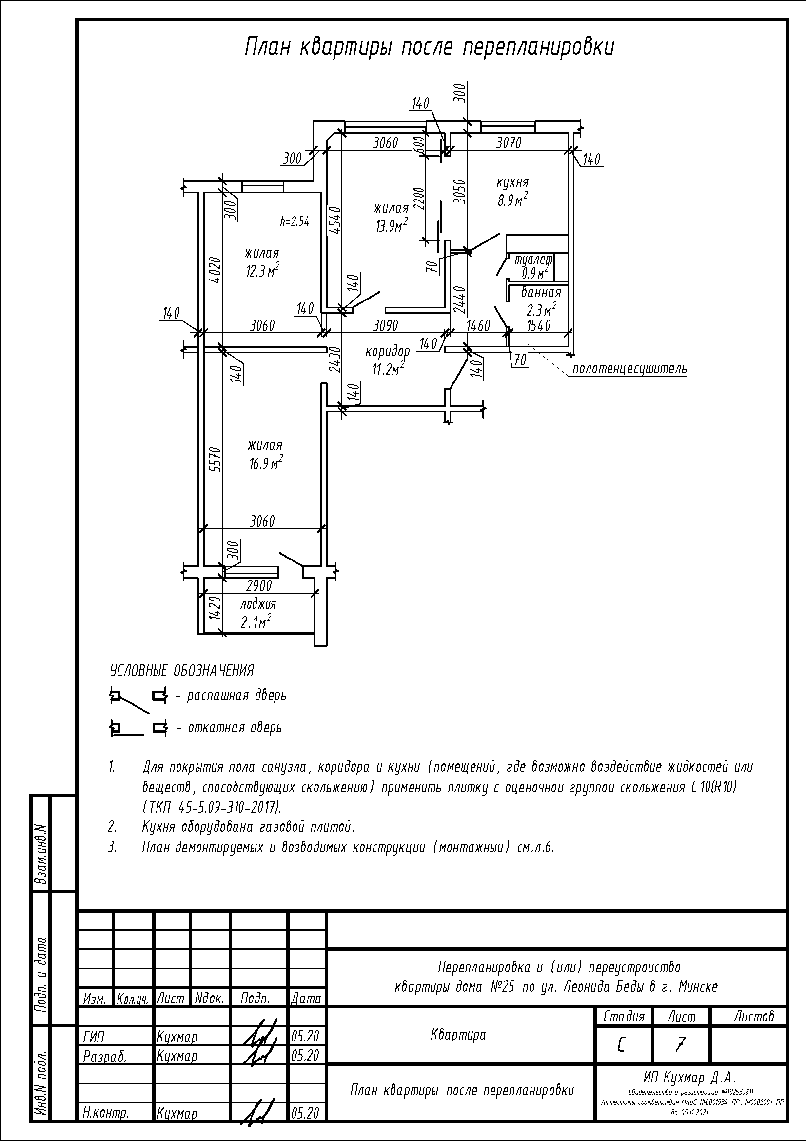
Перепланировка квартиры по ул. Леонида Беды, 25 в г.Минске
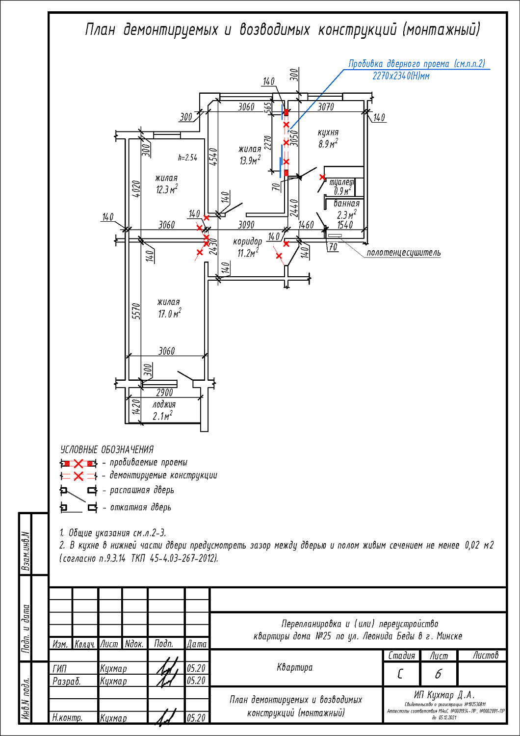
Пожелания заказчика:- Устройство дверного проёма в несущей стене между жилой и кухней с последующим устройством дверного блока;
- Расширение дверного проёма между коридором и кухней;
- Демонтаж дверных блоков в стене между жилой 13.9м2, коридором 11.2м2 и жилой 17.0м2 (несущ. конструкции не затрагиваются);
- Смена направления открывания входной двери.
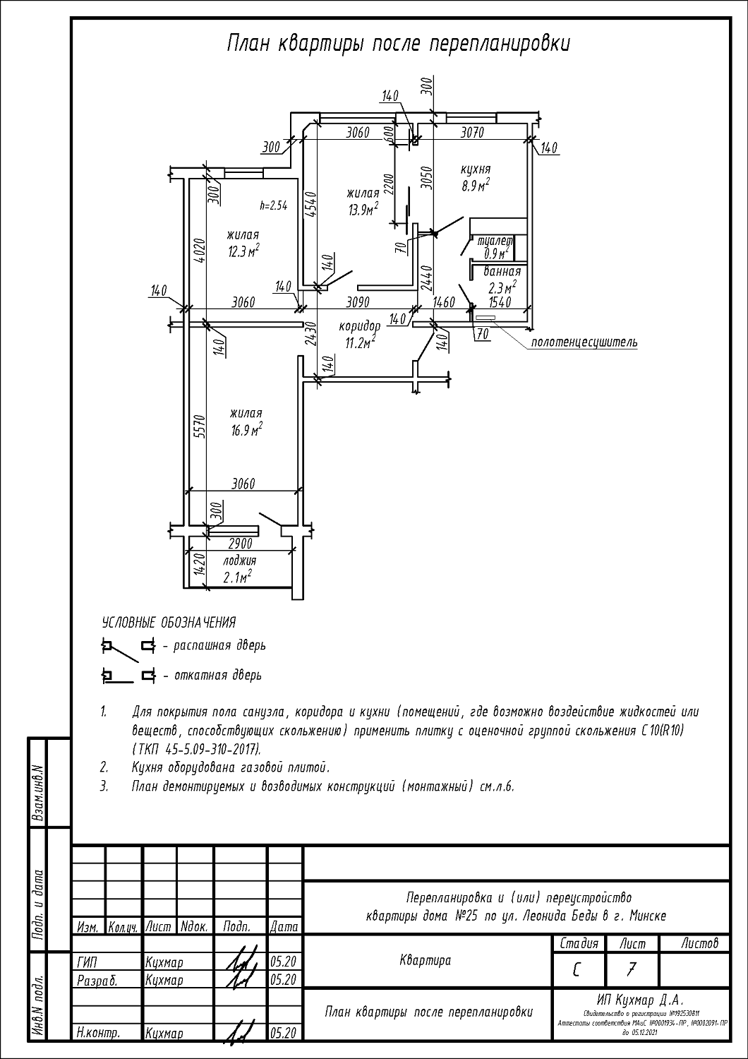
Нами были разработаны следующие разделы проектной документации для согласования в исполкоме:
- АС - архитектурно-строительные решения.
